Rzuty projektu
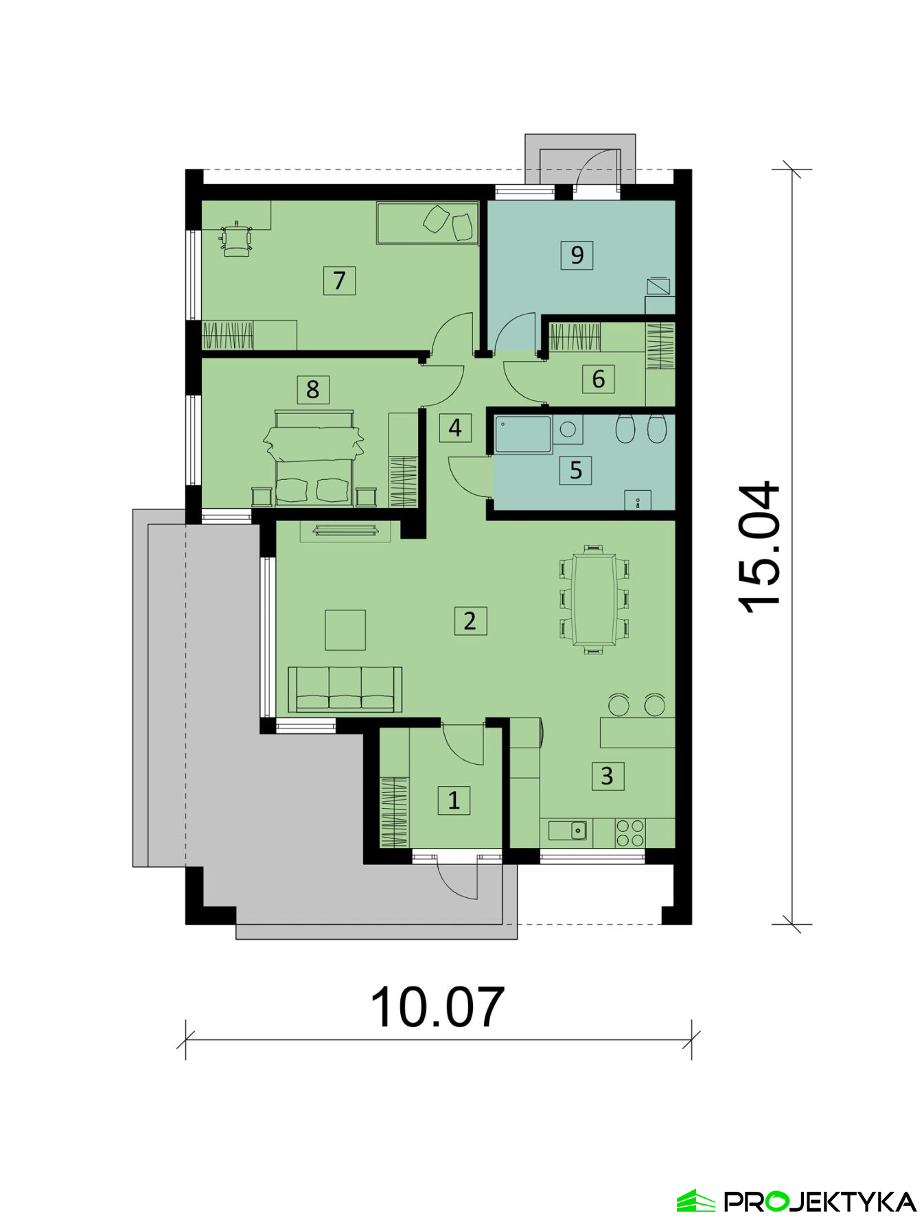
Rzut parteru
| Lp. | Pomieszczenie | Pow. pomieszczenia |
| 1 | wiatrołap | 5,91 m2 |
| 2 | salon + jadalnia | 31,12 m2 |
| 3 | kuchnia | 8,59 m2 |
| 4 | korytarz | 4,96 m2 |
| 5 | łazienka | 6,96 m2 |
| 6 | garderoba | 4,28 m2 |
| 7 | sypialnia | 16,61 m2 |
| 8 | sypialnia | 12,98 m2 |
| Pow. | mieszkalna | 91,41 m2 |
| 9 | pom. gospodarcze | 9,09 m2 |
| Pow. | użytkowa | 100,50 m2 |
| Lp. | Pomieszczenie | Pow. pomieszczenia |
| 1 | wiatrołap | 5,91 m2 |
| 2 | salon + jadalnia | 31,12 m2 |
| 3 | kuchnia | 8,59 m2 |
| 4 | korytarz | 4,96 m2 |
| 5 | łazienka | 6,96 m2 |
| 6 | garderoba | 4,28 m2 |
| 7 | sypialnia | 16,61 m2 |
| 8 | sypialnia | 12,98 m2 |
| Pow. | mieszkalna | 91,41 m2 |
| 9 | pom. gospodarcze | 9,09 m2 |
| Pow. | użytkowa | 100,50 m2 |
Wszystkie parametry
| Powierzchnia mieszkalna | 100.5 m2 |
| Pow. zabudowy | 122.31 m2 |
| Liczba pokoi | 3 |
| Liczba łazienek | 1 |
| Liczba sypialni | 2 |
| Ogrzewanie | gazowe |
| Poddasze | brak |
| Wysokość parteru | 2.85 m |
| Dach | płaski |
| Rodzaj zabudowy | wolnostojący |
| Pokrycie dachu | papa |
| Kąt nachylenia dachu | 5° |
| Powierzchnia dachu | 132.00 m2 |
| Powierzchnia całkowita | 121.68 m2 |
| Min. wymiary działki | 17.07 m / 21.74 m |
| Wysokość budynku | 4.87 m |
| Szerokość zabudowy | 10.07 m |
| Długość zabudowy | 15.04 m |
| Podpiwniczenie (z piwnicą) | Nie |
| Kondygnacje | parterowy |
| Technologia | szkieletowy drewniany |
| Garaż | bez garażu |
| Instalacje | elektryczne, gazowe, sanitarne, C.O |
| Rodzaj wentylacji | grawitacyjna |
| Dodatkowe informacje | na wąską działkę, kominek, pomieszczenie gospodarcze, garderoba |
Dane kosztorysowe
Poniższe koszty budowy są szacunkowe i mogą się różnić ze względu na:
- lokalizację (województwo)
- realizację (system zlecony lub gospodarczy)
od 331 790 zł netto - stan surowy zamknięty
od 601 216 zł netto - stan deweloperski
Do podanych cen należy doliczyć podatek VAT.
Szczegółowy kosztorys mogą Państwo zamówić przy składaniu zamówienia na projekt domu.
____
Data opracowania: IV kw. 2025
Rzut sytuacyjny
zapytaj o projekt
Masz pytania odnośnie projektu Ka1 Sz ?
Napisz do nas, chętnie pomożemy Ci wybrać idealny projekt domu
Napisz do nasDodatki
| Dziennik budowy | 1,- |
| Tablica budowy | 1,- |
| Projekt wentylacji mechanicznej | 1200,- |
| Projekt pompy ciepła | 800,- |
| Kotłownia na paliwo stałe | 550,- |
| Projekt ogrzewania podłogowego | 500,- |
| Pakiet szamba szczelnego | 300,- |
| Przydomowa oczyszczalnia ścieków | 500,- |
| Kosztorys inwestorski | 550,- |
Opis projektu
Ka1 Sz to wyjątkowy gotowy projekt domu na wąską działkę. Płaski dach oraz niewielka kubatura, pozwalają zakwalifikować go, jako tani w budowie gotowy projekt domu jednorodzinnego. Konstrukcja wykonana z drewna konstrukcyjnego została docieplona wełną mineralną. Ponadto jego bryła pozwala na zlokalizowanie go tuż przy granicy działki.
Część dzienna została zaplanowana, tuż przy wejściu głównym do domu, przy którym znajduje się taras. Wiatrołap uchroni nas, przed stratami ciepła w okresie jesiennym oraz zimowym. Gotowy projekt domu na wąską działkę zakłada wykonanie salonu, z możliwością montażu kominka oraz jadalnię. Otwarta kuchnia to niewątpliwa zaleta, która doda całemu wnętrzu przestrzeni i rodzinnego charakteru.
Strefa nocna w gotowy projekt domu jednorodzinnego, składa się z dwóch sypialni oraz łazienki dla mieszkańców. Garderoba zaś pozwoli na utrzymanie porządku oraz segregację odzieży. Ponadto pomieszczenie gospodarcze z osobnym wyjściem w gotowy projekt domu jednorodzinnego zapewnia funkcjonalność podczas codziennych czynności.
Część dzienna została zaplanowana, tuż przy wejściu głównym do domu, przy którym znajduje się taras. Wiatrołap uchroni nas, przed stratami ciepła w okresie jesiennym oraz zimowym. Gotowy projekt domu na wąską działkę zakłada wykonanie salonu, z możliwością montażu kominka oraz jadalnię. Otwarta kuchnia to niewątpliwa zaleta, która doda całemu wnętrzu przestrzeni i rodzinnego charakteru.
Strefa nocna w gotowy projekt domu jednorodzinnego, składa się z dwóch sypialni oraz łazienki dla mieszkańców. Garderoba zaś pozwoli na utrzymanie porządku oraz segregację odzieży. Ponadto pomieszczenie gospodarcze z osobnym wyjściem w gotowy projekt domu jednorodzinnego zapewnia funkcjonalność podczas codziennych czynności.




