Ka102

Ka102 jest projektem domu murowanego w nowoczesnym stylu, dedykowanym parcelom o minimalnych wymiarach 23.91 m x 21.9 m. To gotowy projekt domu wolnostojącego o powierzchni mieszkalnej 120.74 m2, z wjazdem od południowej strony. Wnętrze jest zaplanowane bardzo funkcjonalnie i stwarza doskonałe warunki do życia dla rodziny 2+2 lub nawet większej. Wzdłuż korytarza rozmieszczone zostały poszczególne pomieszczenia: łazienka, WC, garderoba, a także dwie sypialnie. Korytarz prowadzi wprost ... Pełny opis

Ka102

Oczekiwanie na projekt: 2 dni

4549,- 4949,-

Najniższa cena z 30 dni przed obniżką: 4949

kup projekt
ulubione
porównaj
drukuj
Pow. mieszkalna 120.74 m2
Pow. zabudowy 192.06 m2
Wysokość budynku 7.85 m
Główny kąt dachu 30°
Min. wymiary działki 21.9 m / 23.91 m
Kondygnacje parterowy
Technologia murowany
Garaż jednostanowiskowy

Rzuty projektu

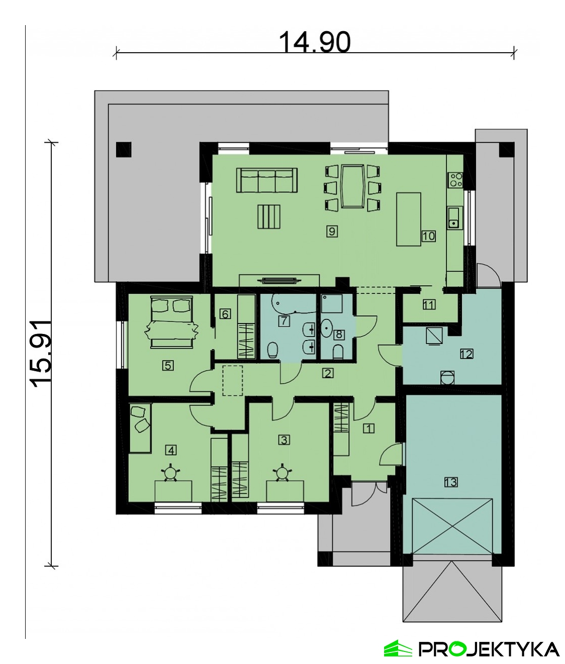
Rzut parteru

rzut-karta-domu
Lp.PomieszczeniePow. pomieszczenia
1wiatrołap6,49 m2
2korytarz14,30 m2
3sypialnia13,08 m2
4sypialnia13,31 m2
5sypialnia11,94 m2
6garderoba3,97 m2
7łazienka5,28 m2
8WC3,05 m2
9salon34,32  m2
10kuchnia12,70 m2
11spiżarnia2,30 m2
Pow.mieszkalna120,74 m2
12pom. gospodarcze10,03 m2
13garaż22,07 m2
Pow.użytkowa152,84 m2
Lp.PomieszczeniePow. pomieszczenia
1wiatrołap6,49 m2
2korytarz14,30 m2
3sypialnia13,08 m2
4sypialnia13,31 m2
5sypialnia11,94 m2
6garderoba3,97 m2
7łazienka5,28 m2
8WC3,05 m2
9salon34,32  m2
10kuchnia12,70 m2
11spiżarnia2,30 m2
Pow.mieszkalna120,74 m2
12pom. gospodarcze10,03 m2
13garaż22,07 m2
Pow.użytkowa152,84 m2

Wszystkie parametry

Powierzchnia mieszkalna 120.74 m2
Pow. zabudowy 192.06 m2
Liczba pokoi 4
Liczba łazienek 2
Liczba sypialni 3
Ogrzewanie gazowe
Poddasze strych
Wysokość parteru 2.78 m
Dach wielospadowy
Rodzaj zabudowy wolnostojący
Pokrycie dachu blachodachówka, dachówka
Kąt nachylenia dachu 30°
Powierzchnia dachu 326.87 m2
Powierzchnia całkowita 192.06 m2
Min. wymiary działki 21.9 m / 23.91 m
Wysokość budynku 7.85 m
Szerokość zabudowy 14.90 m
Długość zabudowy 15.91 m
Podpiwniczenie (z piwnicą) Nie
Kondygnacje parterowy
Technologia murowany
Garaż jednostanowiskowy
Instalacje elektryczne, gazowe, sanitarne, C.O
Rodzaj wentylacji grawitacyjna
Dodatkowe informacje kominek, pomieszczenie gospodarcze, garderoba, spiżarnia

Elewacje

Rzut sytuacyjny

Fundamenty: ławy żelbetowe/stopy fundamentowe
Ściany zewnętrzne: gazobeton +20 cm styropianu
Strop: pas dolny dźwigara prefabrykowanego MiTek
Elewacje: tynk cienkowarstwowy, okładzina drewniana
Ka102

zapytaj o projekt

Masz pytania odnośnie projektu Ka102 ?

Napisz do nas, chętnie pomożemy Ci wybrać idealny projekt domu

Napisz do nas

Dodatki

Dziennik budowy 1,-
Tablica budowy 1,-
Projekt wentylacji mechanicznej 1200,-
Projekt pompy ciepła 800,-
Kotłownia na paliwo stałe 550,-
Projekt ogrzewania podłogowego 500,-
Pakiet szamba szczelnego 300,-
Przydomowa oczyszczalnia ścieków 500,-
Kosztorys inwestorski 550,-
Dodatkowy papierowy egzemplarz projektu 600,-

Opis projektu

Ka102 jest projektem domu murowanego w nowoczesnym stylu, dedykowanym parcelom o minimalnych wymiarach 23.91 m x 21.9 m. To gotowy projekt domu wolnostojącego o powierzchni mieszkalnej 120.74 m2, z wjazdem od południowej strony. Wnętrze jest zaplanowane bardzo funkcjonalnie i stwarza doskonałe warunki do życia dla rodziny 2+2 lub nawet większej. Wzdłuż korytarza rozmieszczone zostały poszczególne pomieszczenia: łazienka, WC, garderoba, a także dwie sypialnie. Korytarz prowadzi wprost do przestronnego aneksu kuchennego połączonego z jadalnią i salonem, który stanowi centrum życia rodzinnego. Z salonu wychodzi się prosto na taras w kształcie litery L, wychodzący na dwie strony – północną i zachodnią. W domu znajduje się także spiżarnia oraz pomieszczenie gospodarcze, a od strony wejścia również jednostanowiskowy garaż z bezpośrednim wejściem do budynku. Wielospadowy dach nachylony pod kątem 30 stopni sprawia, że ten projekt domu jednorodzinnego zyskuje jeszcze bardziej nowoczesnego charakteru. 

zapytaj o projekt

Masz pytania odnośnie projektu Ka102 ?

Napisz do nas, chętnie pomożemy Ci wybrać idealny projekt domu

Napisz do nas
c4ca4238a0b923820dcc509a6f75849b