Ka111 S

Ka111 S to gotowy projekt domu o niewielkiej powierzchni i charakterystycznym, wydłużonym kształcie. Jest to projekt idealny dla rodzin, poszukujących rozwiązań na miarę swojej wąskiej działki. Całkowita powierzchnia użytkowa tego domu to 91.27 m2, jest to projekt budynku z poddaszem użytkowym ulokowanym pod dwuspadowym dachem o kącie nachylenia 30°. Wewnątrz znajduje się kominek zaprojektowany w nowoczesnym salonie z wyjściem na taras, połączonym z aneksem kuchennym i jadalnią. Opróc... Pełny opis

Ka111 S

Oczekiwanie na projekt: 14 dni

3999,- 4399,-

Najniższa cena z 30 dni przed obniżką: 4399

kup projekt
ulubione
porównaj
drukuj
Pow. mieszkalna 91.27 m2
Pow. zabudowy 68.96 m2
Wysokość budynku 9.31 m
Główny kąt dachu 30°
Min. wymiary działki 12.77 m / 22.3 m
Kondygnacje parterowy z poddaszem
Technologia murowany
Garaż bez garażu

Rzuty projektu

Rzut parteru

rzut-karta-domu
LpNazwa pomieszczeniaPow. użytkowa
1 wiatrołap 3,38 m2
3 WC 2,22 m2
4 spiżarnia 1,84 m2
5 holl 5,91 m2
6 kuchnia 6,44 m2
7 salon 20,64 m2
Pow. użytkowa 40,43 m2
2 pom. gospodarcze 4,53 m2
Pow. parteru 44,96 m2
LpNazwa pomieszczeniaPow. użytkowa
1 wiatrołap 3,38 m2
3 WC 2,22 m2
4 spiżarnia 1,84 m2
5 holl 5,91 m2
6 kuchnia 6,44 m2
7 salon 20,64 m2
Pow. użytkowa 40,43 m2
2 pom. gospodarcze 4,53 m2
Pow. parteru 44,96 m2

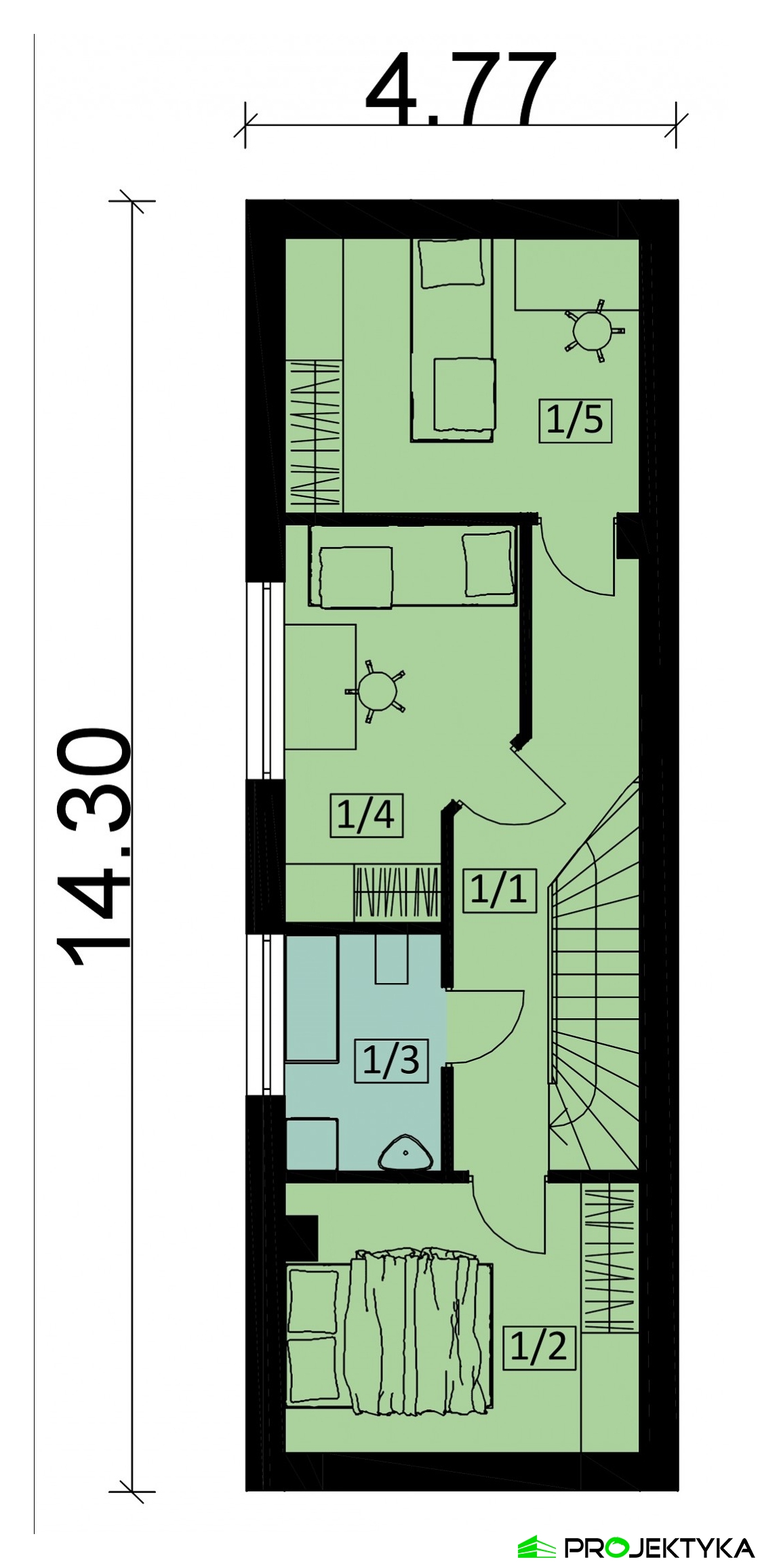
Rzut poddasza

rzut-karta-domu
LpNazwa pomieszczeniaPow. użytkowa
1 holl 12,40 m2
2 pokój 11,78 m2
3 łazienka 4,59 m2
4 pokój 10,08 m2
5 pokój 11,99 m2
Pow. użytkowa 50,84 m2
LpNazwa pomieszczeniaPow. użytkowa
1 holl 12,40 m2
2 pokój 11,78 m2
3 łazienka 4,59 m2
4 pokój 10,08 m2
5 pokój 11,99 m2
Pow. użytkowa 50,84 m2

Wszystkie parametry

Powierzchnia mieszkalna 91.27 m2
Pow. zabudowy 68.96 m2
Liczba pokoi 4
Liczba łazienek 2
Liczba sypialni 3
Ogrzewanie gazowe
Poddasze użytkowe
Wysokość parteru 2.70 m
Wysokość poddasza 2.59 m
Dach dwuspadowy
Rodzaj zabudowy wolnostojący
Pokrycie dachu blachodachówka, dachówka
Kąt nachylenia dachu 30°
Powierzchnia dachu 66.95 m2
Powierzchnia całkowita 134.79 m2
Min. wymiary działki 12.77 m / 22.3 m
Wysokość budynku 9.31 m
Szerokość zabudowy 4.77 m
Długość zabudowy 14.30 m
Wysokość ścianki kolankowej 112.00 cm
Podpiwniczenie (z piwnicą) Nie
Kondygnacje parterowy z poddaszem
Technologia murowany
Garaż bez garażu
Instalacje elektryczne, gazowe, sanitarne, C.O
Dodatkowe informacje wjazd od południa, na wąską działkę, kominek, pomieszczenie gospodarcze, spiżarnia

Elewacje

Rzut sytuacyjny

Lokalizacja budynku
Fundamenty: ławy fundamentowe/stopy fundamentowe
Ściany zewnętrzne: gazobeton +20 cm styropianu
Strop: Teriva
Elewacje: tynk cienkowarstwowy, okładzina drewniana
Ka111 S

zapytaj o projekt

Masz pytania odnośnie projektu Ka111 S ?

Napisz do nas, chętnie pomożemy Ci wybrać idealny projekt domu

Napisz do nas

Warianty projektu

Dodatki

Dziennik budowy 1,-
Tablica budowy 1,-
Projekt wentylacji mechanicznej 1200,-
Projekt pompy ciepła 800,-
Kotłownia na paliwo stałe 550,-
Projekt ogrzewania podłogowego 500,-
Pakiet szamba szczelnego 300,-
Przydomowa oczyszczalnia ścieków 500,-
Kosztorys inwestorski 550,-
Dodatkowy papierowy egzemplarz projektu 600,-

Opis projektu

Ka111 S to gotowy projekt domu o niewielkiej powierzchni i charakterystycznym, wydłużonym kształcie. Jest to projekt idealny dla rodzin, poszukujących rozwiązań na miarę swojej wąskiej działki. Całkowita powierzchnia użytkowa tego domu to 91.27 m2, jest to projekt budynku z poddaszem użytkowym ulokowanym pod dwuspadowym dachem o kącie nachylenia 30°. Wewnątrz znajduje się kominek zaprojektowany w nowoczesnym salonie z wyjściem na taras, połączonym z aneksem kuchennym i jadalnią. Oprócz tego otwartego pomieszczenia w strefie dziennej na parterze znajduje się małe pomieszczenie gospodarcze tuż przy wejściu od strony południowej, spiżarnia i WC. Na poddaszu pod skosem po obydwu stronach umieszczono trzy niewielkie pokoje oraz łazienkę. Jest to projekt domu, który można zbliźniaczyć, tworząc idealne miejsce do życia dla dwóch rodzin. 

zapytaj o projekt

Masz pytania odnośnie projektu Ka111 S ?

Napisz do nas, chętnie pomożemy Ci wybrać idealny projekt domu

Napisz do nas
c4ca4238a0b923820dcc509a6f75849b