Rzuty projektu
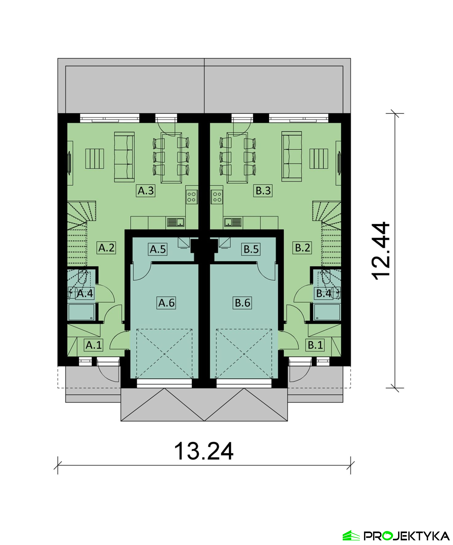
Rzut parteru

LOKAL A
Lp. | Pomieszczenie | Pow. pomieszczenia | Pow. podłogi |
1 | wiatrołap | 3,92 m2 | 3,92 m2 |
2 | korytarz + schody | 9,41 m2 | 11,83 m2 |
3 | salon + kuchnia | 25,44 m2 | 25,44 m2 |
4 | WC | 2,99 m2 | 3,03 m2 |
Pow. | mieszkalna | 41,76 m2 | 44,22 m2 |
5 | pom.. gospodarcze | 3,00 m2 | 3,00 m2 |
6 | garaż | 16,12 m2 | 16,12 m2 |
Pow. | użytkowa | 60,88 m2 | 63,34 m2 |
LOKAL B
Lp. | Pomieszczenie | Pow. pomieszczenia | Pow. podłogi |
1 | wiatrołap | 3,92 m2 | 3,92 m2 |
2 | korytarz + schody | 9,41 m2 | 11,83 m2 |
3 | salon + kuchnia | 25,44 m2 | 25,44 m2 |
4 | WC | 2,99 m2 | 3,03 m2 |
Pow. | mieszkalna | 41,76 m2 | 44,22 m2 |
5 | pom.. gospodarcze | 3,00 m2 | 3,00 m2 |
6 | garaż | 16,12 m2 | 16,12 m2 |
Pow. | użytkowa | 60,88 m2 | 63,34 m2 |
LOKAL A
Lp. | Pomieszczenie | Pow. pomieszczenia | Pow. podłogi |
1 | wiatrołap | 3,92 m2 | 3,92 m2 |
2 | korytarz + schody | 9,41 m2 | 11,83 m2 |
3 | salon + kuchnia | 25,44 m2 | 25,44 m2 |
4 | WC | 2,99 m2 | 3,03 m2 |
Pow. | mieszkalna | 41,76 m2 | 44,22 m2 |
5 | pom.. gospodarcze | 3,00 m2 | 3,00 m2 |
6 | garaż | 16,12 m2 | 16,12 m2 |
Pow. | użytkowa | 60,88 m2 | 63,34 m2 |
LOKAL B
Lp. | Pomieszczenie | Pow. pomieszczenia | Pow. podłogi |
1 | wiatrołap | 3,92 m2 | 3,92 m2 |
2 | korytarz + schody | 9,41 m2 | 11,83 m2 |
3 | salon + kuchnia | 25,44 m2 | 25,44 m2 |
4 | WC | 2,99 m2 | 3,03 m2 |
Pow. | mieszkalna | 41,76 m2 | 44,22 m2 |
5 | pom.. gospodarcze | 3,00 m2 | 3,00 m2 |
6 | garaż | 16,12 m2 | 16,12 m2 |
Pow. | użytkowa | 60,88 m2 | 63,34 m2 |
Rzut piętra

LOKAL A
Lp. | Pomieszczenie | Pow. pomieszczenia |
7 | korytarz + schody | 8,85 m2 |
8 | sypialnia | 9,94 m2 |
9 | sypialnia | 10,95 m2 |
10 | sypialnia | 8,00 m2 |
11 | sypialnia | 12,53 m2 |
12 | łazienka | 7,03 m2 |
Pow. | mieszkalna | 57,30 m2 |
LOKAL B
Lp. | Pomieszczenie | Pow. pomieszczenia |
7 | korytarz + schody | 8,85 m2 |
8 | sypialnia | 9,94 m2 |
9 | sypialnia | 10,95 m2 |
10 | sypialnia | 8,00 m2 |
11 | sypialnia | 12,53 m2 |
12 | łazienka | 7,03 m2 |
Pow. | mieszkalna | 57,30 m2 |
LOKAL A
Lp. | Pomieszczenie | Pow. pomieszczenia |
7 | korytarz + schody | 8,85 m2 |
8 | sypialnia | 9,94 m2 |
9 | sypialnia | 10,95 m2 |
10 | sypialnia | 8,00 m2 |
11 | sypialnia | 12,53 m2 |
12 | łazienka | 7,03 m2 |
Pow. | mieszkalna | 57,30 m2 |
LOKAL B
Lp. | Pomieszczenie | Pow. pomieszczenia |
7 | korytarz + schody | 8,85 m2 |
8 | sypialnia | 9,94 m2 |
9 | sypialnia | 10,95 m2 |
10 | sypialnia | 8,00 m2 |
11 | sypialnia | 12,53 m2 |
12 | łazienka | 7,03 m2 |
Pow. | mieszkalna | 57,30 m2 |
Wszystkie parametry
Powierzchnia mieszkalna | 198.12 m2 |
Pow. zabudowy | 159 m2 |
Liczba pokoi | 10 |
Liczba łazienek | 4 |
Liczba sypialni | 8 |
Ogrzewanie | gazowe |
Poddasze | brak |
Wysokość parteru | 2.68 m |
Wysokość piętra | 2.56 m |
Dach | płaski |
Rodzaj zabudowy | bliźniak, dwulokalowy, szeregowy, dwurodzinny |
Pokrycie dachu | papa |
Kąt nachylenia dachu | 3° |
Powierzchnia dachu | 125.00 m2 |
Powierzchnia całkowita | 310.47 m2 |
Min. wymiary działki | 19.24 m / 20.24 m |
Wysokość budynku | 7.17 m |
Szerokość zabudowy | 13.24 m |
Długość zabudowy | 12.44 m |
Powierzchnia. tarasu | 33.10 m2 |
Podpiwniczenie (z piwnicą) | Nie |
Kondygnacje | piętrowy |
Technologia | murowany |
Garaż | jednostanowiskowy |
Instalacje | elektryczne, gazowe, sanitarne, C.O |
Rodzaj wentylacji | grawitacyjna |
Dodatkowe informacje | pomieszczenie gospodarcze |
Rzut sytuacyjny

zapytaj o projekt
Masz pytania odnośnie projektu Ka120 ?
Napisz do nas, chętnie pomożemy Ci wybrać idealny projekt domu
Napisz do nasDodatki
Dziennik budowy | 1,- |
Tablica budowy | 1,- |
Projekt wentylacji mechanicznej | 1200,- |
Projekt pompy ciepła | 800,- |
Kotłownia na paliwo stałe | 550,- |
Projekt ogrzewania podłogowego | 500,- |
Pakiet szamba szczelnego | 300,- |
Przydomowa oczyszczalnia ścieków | 500,- |
Kosztorys inwestorski | 550,- |
Dodatkowy papierowy egzemplarz projektu | 600,- |
Opis projektu
Ka120 to projekt domu w zabudowie bliźniaczej, dwulokalowej lub szeregowej, o łącznej powierzchni mieszkalnej 198,12 m2. Cechuje go minimalistyczny styl zastosowany w technologii murowanej, prosta bryła i funkcjonalność, a to wszystko przykryte płaskim dachem. Z uwagi na to, iż jest to projekt domu piętrowego, doskonale sprawdzi się na niewielkich działkach, o wymiarze minimum 19.24 m x 20.24 m. Każdy z segmentów posiada jednostanowiskowy garaż z pomieszczeniem gospodarczym, usytuowany od strony wejścia. Dolna kondygnacja przeznaczona została na strefę dzienną – hol prowadzi wprost do przestronnego salonu z jadalnią oraz aneksem kuchennym i wyjściem na taras. Na parterze usytuowano również WC. Górna kondygnacja posiada aż cztery sypialnie oraz przestronną łazienkę. Od strony tarasu w projekcie uwzględniono wysokie okna – górne zabezpieczone efektownymi, przeszklonymi balustradami, co doświetla i ożywia wnętrze. Od strony frontowej natomiast dominują tradycyjne, niskie okna, zapewniające maksimum komfortu domownikom. Ten nowoczesny projekt domu jest dedykowany inwestorom poszukującym uniwersalnych, ponadczasowych pomysłów do realizacji.