Ka136 L

Projekt Ka136 to dom zaprojektowany w klimatycznym, rodzinnym stylu. Przestronne wnętrze zajmuje 161,78 m2 powierzchni użytkowej. Rzut budynku przybiera kształt litery T.Wygodne rozmieszczenie pomieszczeń zapewnia komfort i swobodę. Jedno ze skrzydeł połączone z tarasem wydziela duży salon, jadalnię oraz otwartą kuchnię ze spiżarnią. W tej części, z wejściem od wiatrołapu, umieszczono także dodatkowy pokój, który może pełnić funkcję gabinetu lub pokoju gościnnego. W strefie nocnej zap... Pełny opis

Ka136 L

Oczekiwanie na projekt: 21 dni

5749,-

kup projekt
ulubione
porównaj
drukuj
Pow. mieszkalna 161.78 m2
Pow. zabudowy 257.65 m2
Wysokość budynku 6.44 m
Główny kąt dachu 30°
Min. wymiary działki 26.22 m / 26.52 m
Kondygnacje parterowy
Technologia murowany
Garaż dwustanowiskowy

Rzuty projektu

Rzut

rzut-karta-domu
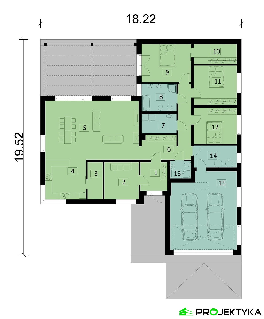
LpNazwa pomieszczeniaPow. użytkowa
1 wiatrołap 6,37 m2
2 pokój 10,64 m2
3 spiżarnia 4,70 m2
4 kuchnia 13,39 m2
5 salon + jadalnia 45,12 m2
6 korytarz 15,76 m2
7 pralnia 5,59 m2
8 łaizenka 7,94 m2
9 pokój 15,52 m2
10 garderoba 6,98 m2
11 pokój 13,92 m2
12 pokój 12,80 m2
13 WC 3,05 m2
Pow. użytkowa 161,78 m2
14 pom. gospodarcze 7,76 m2
15 garaż 40,58 m2
Pow. razem 210,12 m2
LpNazwa pomieszczeniaPow. użytkowa
1 wiatrołap 6,37 m2
2 pokój 10,64 m2
3 spiżarnia 4,70 m2
4 kuchnia 13,39 m2
5 salon + jadalnia 45,12 m2
6 korytarz 15,76 m2
7 pralnia 5,59 m2
8 łaizenka 7,94 m2
9 pokój 15,52 m2
10 garderoba 6,98 m2
11 pokój 13,92 m2
12 pokój 12,80 m2
13 WC 3,05 m2
Pow. użytkowa 161,78 m2
14 pom. gospodarcze 7,76 m2
15 garaż 40,58 m2
Pow. razem 210,12 m2

Wszystkie parametry

Powierzchnia mieszkalna 161.78 m2
Pow. zabudowy 257.65 m2
Liczba pokoi 5
Liczba łazienek 2
Liczba sypialni 4
Ogrzewanie pompa ciepła
Poddasze strych
Wysokość parteru 2.76 m
Wysokość poddasza 2.20 m
Dach wielospadowy
Rodzaj zabudowy wolnostojący
Pokrycie dachu blachodachówka, dachówka
Kąt nachylenia dachu 30°
Powierzchnia dachu 355.77 m2
Powierzchnia całkowita 257.65 m2
Min. wymiary działki 26.22 m / 26.52 m
Wysokość budynku 6.44 m
Szerokość zabudowy 18.22 m
Długość zabudowy 19.52 m
Podpiwniczenie (z piwnicą) Nie
Kondygnacje parterowy
Technologia murowany
Garaż dwustanowiskowy
Instalacje elektryczne, sanitarne, C.O
Rodzaj wentylacji grawitacyjna
Dodatkowe informacje kominek, pomieszczenie gospodarcze, gabinet, garderoba, spiżarnia, pralnia

Elewacje

Rzut sytuacyjny

Lokalizacja budynku
Fundamenty: ławy fundamentowe/stopy fundamentowe
Ściany zewnętrzne: gazobeton +20 cm styropianu
Strop: pas dolny dźwigara prefabrykowanego MiTek
Elewacje: tynk cienkowarstwowy, okładzina drewniana
Ka136

zapytaj o projekt

Masz pytania odnośnie projektu Ka136 L?

Napisz do nas, chętnie pomożemy Ci wybrać idealny projekt domu

Napisz do nas

Dodatki

Dziennik budowy 1,-
Tablica budowy 1,-
Projekt wentylacji mechanicznej 1200,-
Kotłownia na paliwo stałe 550,-
Projekt ogrzewania podłogowego 500,-
Pakiet szamba szczelnego 300,-
Przydomowa oczyszczalnia ścieków 500,-
Kosztorys inwestorski 550,-
Dodatkowy papierowy egzemplarz projektu 600,-

Opis projektu

Projekt Ka136 to dom zaprojektowany w klimatycznym, rodzinnym stylu. Przestronne wnętrze zajmuje 161,78 m2 powierzchni użytkowej. Rzut budynku przybiera kształt litery T.
Wygodne rozmieszczenie pomieszczeń zapewnia komfort i swobodę. Jedno ze skrzydeł połączone z tarasem wydziela duży salon, jadalnię oraz otwartą kuchnię ze spiżarnią. W tej części, z wejściem od wiatrołapu, umieszczono także dodatkowy pokój, który może pełnić funkcję gabinetu lub pokoju gościnnego. W strefie nocnej zaprojektowano dużą sypialnię z osobną garderobą i dwie mniejsze sypialnie z wnękami na szafę. W ciągu komunikacyjnym uwzględniono łazienkę, osobne WC, pralnię oraz pomieszczenie gospodarcze, które łączy garaż z domem.

zapytaj o projekt

Masz pytania odnośnie projektu Ka136 L?

Napisz do nas, chętnie pomożemy Ci wybrać idealny projekt domu

Napisz do nas
c4ca4238a0b923820dcc509a6f75849b