Ka145 S

Ka145 S to wyjątkowy projekt domu wolnostojącego z możliwością zabudowy bliźniaczej, o powierzchni użytkowej 117.12 m2. Charakteryzuje go prosta bryła – w rzucie dom przypomina kwadrat, co pozwala zrealizować ten projekt domu również na niewielkich działkach. Jest to dom piętrowy, wykonany w technologii murowanej w stylu nowoczesnym, pokryty czterospadowym dachem. Projekt domu piętrowego Ka145 S podzielono funkcjonalnie na strefy. Na dole mieści się strefa dzienna – znajdująca się na ... Pełny opis

Ka145 S

Oczekiwanie na projekt: 21 dni

5299,-

kup projekt
ulubione
porównaj
drukuj
Pow. mieszkalna 117.12 m2
Pow. zabudowy 95.31 m2
Wysokość budynku 8.83 m
Główny kąt dachu 20°
Min. wymiary działki 14.09 m / 21.44 m
Kondygnacje piętrowy
Technologia murowany
Garaż jednostanowiskowy

Rzuty projektu

Rzut parteru

rzut-karta-domu
LpNazwa pomieszczeniaPow. użytkowa
1 wiatrołap 4,03 m2
2 WC 3,29 m2
3 holl 6,38 m2
4 salon + kuchnia 32,54 m2
Pow. użytkowa 46,24 m2
5 pom. gospodarcze 2,49 m2
6 garaż 15,80 m2
Pow. razem 64,53 m2

 

LpNazwa pomieszczeniaPow. użytkowa
1 wiatrołap 4,03 m2
2 WC 3,29 m2
3 holl 6,38 m2
4 salon + kuchnia 32,54 m2
Pow. użytkowa 46,24 m2
5 pom. gospodarcze 2,49 m2
6 garaż 15,80 m2
Pow. razem 64,53 m2

 

Lokalizacja budynku

rzut-karta-domu
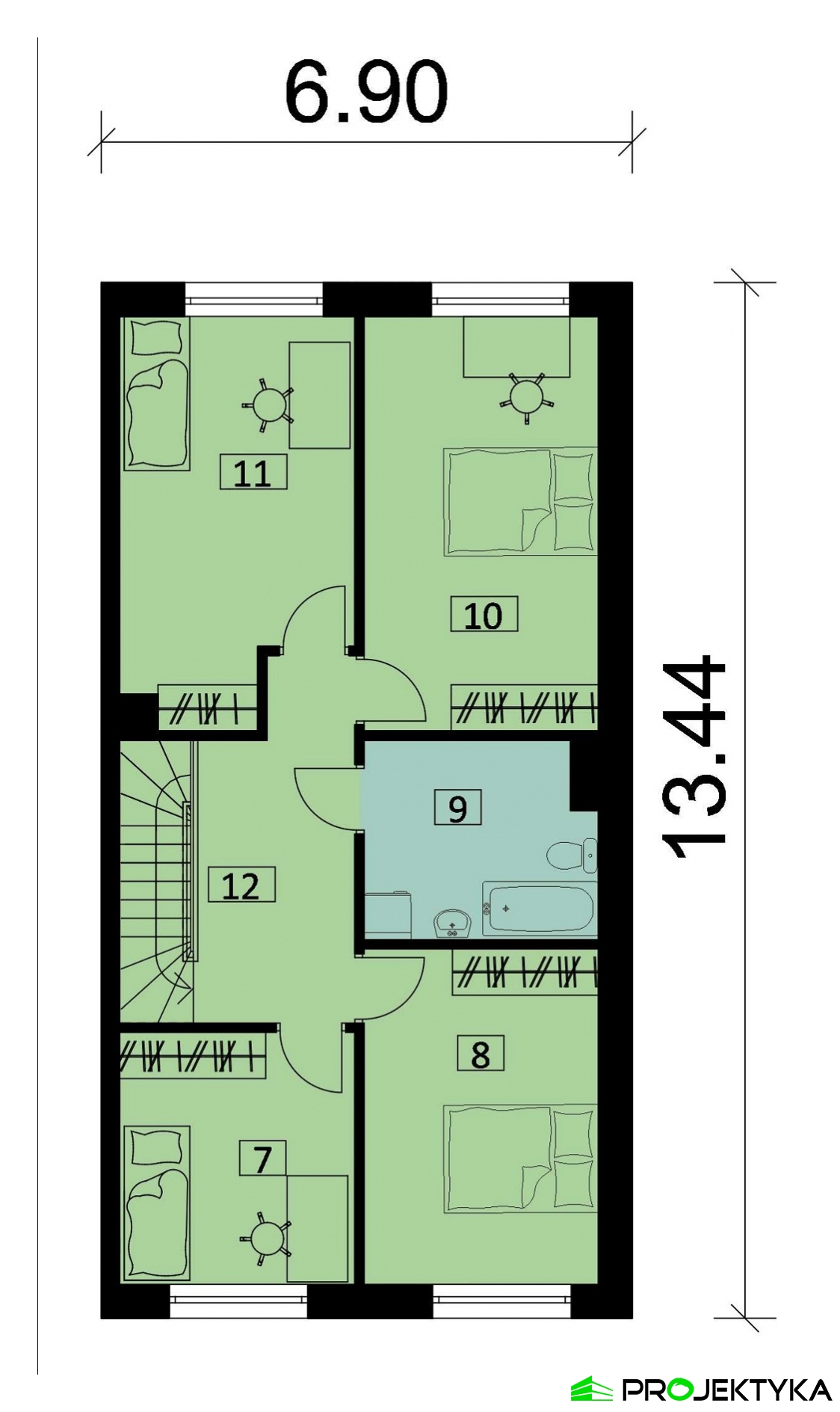
LpNazwa pomieszczeniaPow. użytkowa
7 sypialnia 9,86 m2
8 sypialnia 13,26 m2
9 łazienka 7,50 m2
10 sypialnia 16,35 m2
11 sypialnia 14,84 m2
12 korytarz 9,07 m2
Pow. użytkowa 70,88 m2

 

LpNazwa pomieszczeniaPow. użytkowa
7 sypialnia 9,86 m2
8 sypialnia 13,26 m2
9 łazienka 7,50 m2
10 sypialnia 16,35 m2
11 sypialnia 14,84 m2
12 korytarz 9,07 m2
Pow. użytkowa 70,88 m2

 

Wszystkie parametry

Powierzchnia mieszkalna 117.12 m2
Pow. zabudowy 95.31 m2
Liczba pokoi 5
Liczba łazienek 2
Liczba sypialni 4
Ogrzewanie gazowe
Poddasze brak
Wysokość parteru 2.70 m
Dach czterospadowy
Rodzaj zabudowy wolnostojący, możliwość zbliźniaczenia
Pokrycie dachu blachodachówka, dachówka
Kąt nachylenia dachu 20°
Powierzchnia dachu 129.44 m2
Powierzchnia całkowita 184.69 m2
Min. wymiary działki 14.09 m / 21.44 m
Wysokość budynku 8.83 m
Podpiwniczenie (z piwnicą) Nie
Kondygnacje piętrowy
Technologia murowany
Garaż jednostanowiskowy
Instalacje elektryczne, gazowe, sanitarne, C.O
Dodatkowe informacje pomieszczenie gospodarcze

Elewacje

Rzut sytuacyjny

Lokalizacja budynku
Fundamenty: ławy fundamentowe/stopy fundamentowe
Ściany zewnętrzne: gazobeton +20 cm styropianu
Strop: Teriva
Elewacje: tynk cienkowarstwowy, beton architektoniczny, panele drewniane
Ka145 S

zapytaj o projekt

Masz pytania odnośnie projektu Ka145 S ?

Napisz do nas, chętnie pomożemy Ci wybrać idealny projekt domu

Napisz do nas

Warianty projektu

Dodatki

Dziennik budowy 1,-
Tablica budowy 1,-
Projekt wentylacji mechanicznej 1200,-
Projekt pompy ciepła 800,-
Kotłownia na paliwo stałe 550,-
Projekt ogrzewania podłogowego 500,-
Pakiet szamba szczelnego 300,-
Przydomowa oczyszczalnia ścieków 500,-
Kosztorys inwestorski 550,-
Dodatkowy papierowy egzemplarz projektu 600,-

Opis projektu

Ka145 S to wyjątkowy projekt domu wolnostojącego z możliwością zabudowy bliźniaczej, o powierzchni użytkowej 117.12 m2. Charakteryzuje go prosta bryła – w rzucie dom przypomina kwadrat, co pozwala zrealizować ten projekt domu również na niewielkich działkach. Jest to dom piętrowy, wykonany w technologii murowanej w stylu nowoczesnym, pokryty czterospadowym dachem. Projekt domu piętrowego Ka145 S podzielono funkcjonalnie na strefy. Na dole mieści się strefa dzienna – znajdująca się na końcu ciągu komunikacyjnego z łazienką i wejściem do garażu przy drzwiach frontowych. Do jednostanowiskowego garażu wkomponowanego w bryłę budynku przylega niewielkie pomieszczenie gospodarcze. W projekcie uwzględniono dwie łazienki – jedna znajduje się na parterze, zaś druga na piętrze, w pobliżu sypialni. To projekt domu z czterema sypialniami, idealny do zamieszkania przez 5-osobową rodzinę. 

zapytaj o projekt

Masz pytania odnośnie projektu Ka145 S ?

Napisz do nas, chętnie pomożemy Ci wybrać idealny projekt domu

Napisz do nas
c4ca4238a0b923820dcc509a6f75849b