Ka146 Sz L

Ka 146 Sz to nowoczesny projekt domu letniskowego o powierzchni zabudowy wynoszącej zaledwie 35.28 m2, idealnej dla małych działek. Wnętrze zaprojektowano na dwóch kondygnacjach, na 47,90 m2 powierzchni mieszkalnej. Ten projekt domu w technologii szkieletowej drewnianej o prostej bryle, wieńczy dwuspadowy dach o kącie nachylenia 45 st. Budynek zaprojektowano na planie prostokąta, z funkcjonalnym układem pomieszczeń. Wejście główne do domku zadaszono. Na tarasie zaprojektowa... Pełny opis

Ka146 Sz L

Oczekiwanie na projekt: 2 dni

2249,- 2449,-

Najniższa cena z 30 dni przed obniżką: 2449

kup projekt
ulubione
porównaj
drukuj
Pow. mieszkalna 47.9 m2
Pow. zabudowy 35.28 m2
Wysokość budynku 6.82 m
Główny kąt dachu 42°
Min. wymiary działki 15.11 m / 11.92 m
Kondygnacje parterowy z poddaszem
Technologia szkieletowy drewniany
Garaż bez garażu

Rzuty projektu

Rzut parteru

rzut-karta-domu
LpNazwa pomieszczeniaPow. mieszkalna
1 kuchnia 7,95 m2
2 kuchnia + salon 16,65 m2
3 łazienka 3,02 m2
Pow. mieszkalna 27,62 m2
LpNazwa pomieszczeniaPow. mieszkalna
1 kuchnia 7,95 m2
2 kuchnia + salon 16,65 m2
3 łazienka 3,02 m2
Pow. mieszkalna 27,62 m2

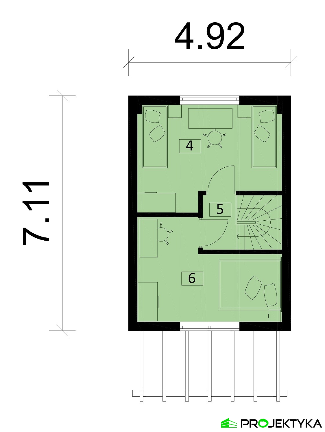
Rzut poddasza

rzut-karta-domu
LpNazwa pomieszczeniaPow. mieszkalnaPow. podłogi
4 sypialnia 9,30 m2 12,57 m2
5 korytarz 2,90 m2 2,90 m2
6 sypialnia 8,08 m2 11,05 m2
Pow. mieszkalna 20,28 m2
26,52 m2
LpNazwa pomieszczeniaPow. mieszkalnaPow. podłogi
4 sypialnia 9,30 m2 12,57 m2
5 korytarz 2,90 m2 2,90 m2
6 sypialnia 8,08 m2 11,05 m2
Pow. mieszkalna 20,28 m2
26,52 m2

Wszystkie parametry

Powierzchnia mieszkalna 47.9 m2
Pow. zabudowy 35.28 m2
Liczba pokoi 3
Liczba łazienek 1
Liczba sypialni 2
Poddasze użytkowe
Wysokość parteru 2.56 m
Wysokość poddasza 2.84 m
Dach dwuspadowy
Rodzaj zabudowy wolnostojący, letniskowy
Pokrycie dachu blachodachówka, dachówka
Kąt nachylenia dachu 42°
Powierzchnia dachu 47.21 m2
Powierzchnia całkowita 70.26 m2
Min. wymiary działki 15.11 m / 11.92 m
Wysokość budynku 6.82 m
Szerokość zabudowy 7.11 m
Długość zabudowy 4.92 m
Wysokość ścianki kolankowej 131.00 cm
Podpiwniczenie (z piwnicą) Nie
Kondygnacje parterowy z poddaszem
Technologia szkieletowy drewniany
Garaż bez garażu
Instalacje elektryczne, sanitarne

Elewacje

Rzut sytuacyjny

Lokalizacja budynku
Fundamenty: ławy fundamentowe/stopy fundamentowe
Ściany zewnętrzne: drewno konstrukcyjne, płyta wiórowa, maty z wełny mineralnej
Strop: drewniany
Elewacje: tynk cienkowarstwowy, okładzina drewniana
Ka146 Sz

zapytaj o projekt

Masz pytania odnośnie projektu Ka146 Sz L?

Napisz do nas, chętnie pomożemy Ci wybrać idealny projekt domu

Napisz do nas

Dodatki

Dziennik budowy 1,-
Tablica budowy 1,-
Projekt wentylacji mechanicznej 1200,-
Projekt pompy ciepła 800,-
Kotłownia na paliwo stałe 550,-
Projekt ogrzewania podłogowego 500,-
Pakiet szamba szczelnego 300,-
Przydomowa oczyszczalnia ścieków 500,-
Kosztorys inwestorski 550,-
Dodatkowy papierowy egzemplarz projektu 600,-

Opis projektu

Ka 146 Sz to nowoczesny projekt domu letniskowego o powierzchni zabudowy wynoszącej zaledwie 35.28 m2, idealnej dla małych działek. Wnętrze zaprojektowano na dwóch kondygnacjach, na 47,90 m2 powierzchni mieszkalnej. Ten projekt domu w technologii szkieletowej drewnianej o prostej bryle, wieńczy dwuspadowy dach o kącie nachylenia 45 st. Budynek zaprojektowano na planie prostokąta, z funkcjonalnym układem pomieszczeń. Wejście główne do domku zadaszono. Na tarasie zaprojektowano duże, przesuwne drzwi tarasowe prowadzące wprost do niewielkiego salonu z aneksem jadalnym i kuchennym. Tuż przy nim usytuowano również małą łazienkę. Schody ulokowane w części salonowej prowadzą na poddasze, gdzie domownicy mogą skorzystać z noclegu w dwóch wygodnych, niewielkich sypialniach. Taki projekt domu z poddaszem użytkowym, prezentuje się bardzo efektownie, głównie z uwagi na nowoczesne wykończenie oraz zastosowanie dużych przeszkleń zapewniających odpowiedni dopływ światła słonecznego. 

zapytaj o projekt

Masz pytania odnośnie projektu Ka146 Sz L?

Napisz do nas, chętnie pomożemy Ci wybrać idealny projekt domu

Napisz do nas
c4ca4238a0b923820dcc509a6f75849b