Wszystkie parametry
| Powierzchnia mieszkalna | 229.29 m2 |
| Pow. zabudowy | 343.53 m2 |
| Liczba pokoi | 6 |
| Liczba łazienek | 2 |
| Liczba sypialni | 5 |
| Ogrzewanie | pompa ciepła |
| Poddasze | brak |
| Wysokość parteru | 2.76 m |
| Dach | płaski |
| Rodzaj zabudowy | wolnostojący |
| Pokrycie dachu | papa |
| Kąt nachylenia dachu | 2° |
| Powierzchnia dachu | 311.00 m2 |
| Powierzchnia całkowita | 343.17 m2 |
| Min. wymiary działki | 35.68 m / 24.37 m |
| Wysokość budynku | 4.15 m |
| Szerokość zabudowy | 27.08 m |
| Długość zabudowy | 16.37 m |
| Powierzchnia. tarasu | 55.50 m2 |
| Podpiwniczenie (z piwnicą) | Nie |
| Kondygnacje | parterowy |
| Technologia | murowany |
| Garaż | dwustanowiskowy |
| Instalacje | elektryczne, sanitarne, C.O |
| Rodzaj wentylacji | mechaniczna |
| Dodatkowe informacje | kominek, pomieszczenie gospodarcze, gabinet, garderoba, spiżarnia, pralnia |
Dane kosztorysowe
Ka150 MONOLITYCZNY (kosztorys uwzględnia: klimatyzację, rekuperację, pompę ciepła: powietrze-woda)
od 457 991 zł netto - stan surowy zamknięty
od 766 784 zł netto - stan deweloperski
Do podanych cen należy doliczyć podatek VAT.
Szczegółowy kosztorys mogą Państwo zamówić przy składaniu zamówienia na projekt domu.
____
Data opracowania: III kw. 2022
Rzut sytuacyjny
zapytaj o projekt
Masz pytania odnośnie projektu Ka150 M L?
Napisz do nas, chętnie pomożemy Ci wybrać idealny projekt domu
Napisz do nasDodatki
| Dziennik budowy | 1,- |
| Tablica budowy | 1,- |
| Kotłownia na paliwo stałe | 550,- |
| Projekt ogrzewania gazowego | 600,- |
| Pakiet szamba szczelnego | 300,- |
| Przydomowa oczyszczalnia ścieków | 500,- |
| Kosztorys inwestorski | 550,- |
| Dodatkowy papierowy egzemplarz projektu | 600,- |
Opis projektu
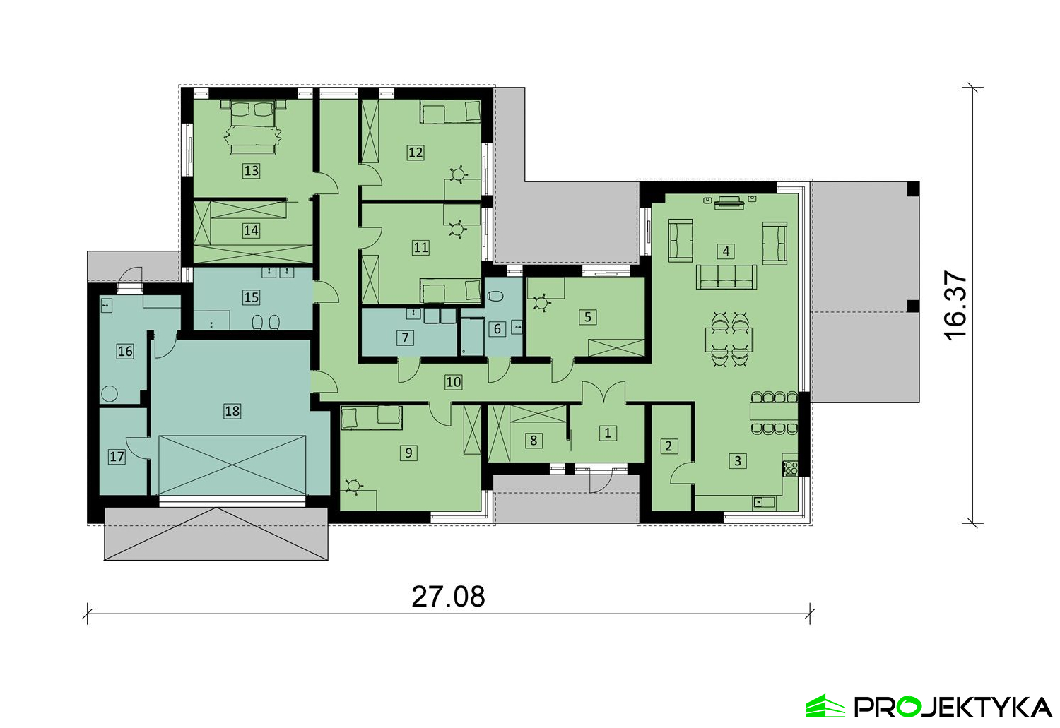
Ka150 M jest imponującym projektem domu parterowego w stylu nowoczesnym. Budynek przykryto dachem płaskim, natomiast wykonany został w technologii murowanej. Jego powierzchnia mieszkalna wynosi aż 229.29 m2, co sprawia, że będzie idealnym miejscem dla dużej rodziny. Dwustanowiskowy garaż łączy się z dwoma pomieszczeniami gospodarczymi. Dodatkowa można do niego wejść z korytarza wewnątrz domu. W lewej części domu znajduje się kuchnia z wydzieloną spiżarnia, jadalnia oraz przestronny salon połączony przeszkloną ścianą z dużym tarasem. Dodatkowy taras z tyłu domu, będzie idealnym miejscem na rozpoczęcia dnia, ponieważ mają do niego sypialnie. Ciąg komunikacyjny w kształcie litery L prowadzi do strefy nocnej składającej się z czterech sypialni, gabinetu, pralni, łazienki oraz WC. Dużym atutem tego projektu jest spora garderoba zlokalizowana przy wejściu, która dostępna jest z wiatrołapu. Wysokie okna sprawiają, że ten gotowy projekt domu parterowego gwarantuje dostęp do światła słonecznego przez cały dzień, o każdej porze roku!
Projekt domu dostępny jest również w wersji ze stropem Teriva.




