Ka156 T

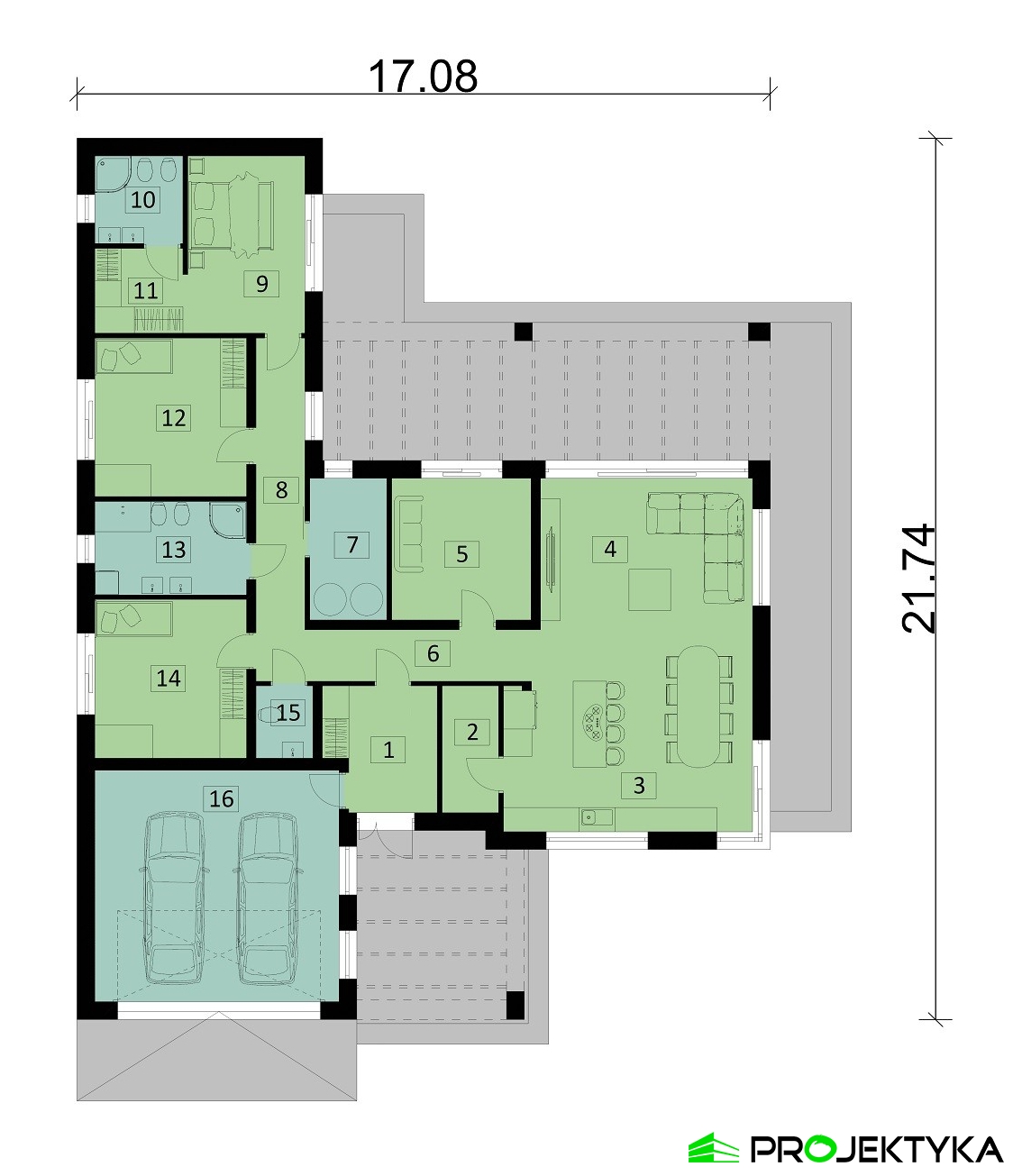
Ka156 T to niebanalny projekt domu parterowego w stylu nowoczesnym na planie litery T. Do domu przylega dwustanowiskowy garaż pokryty dachem płaskim, który stanowi kontrast w stosunku do wielospadowego poszycia. Ten stylowy gotowy projekt domu nowoczesnego zaprojektowano na 152,83 m2 powierzchni użytkowej. Wewnątrz niego znajdują się doskonale skomunikowane ze sobą pomieszczenia. W prawym skrzydle budynku umieszczono strefę dzienną – korytarzem przechodzi się z wiatrołapu do kuchni ze... Pełny opis

Ka156 T

Oczekiwanie na projekt: 21 dni

4999,- 5449,-

Najniższa cena z 30 dni przed obniżką: 5449

kup projekt
ulubione
porównaj
drukuj
Pow. mieszkalna 152.83 m2
Pow. zabudowy 239.43 m2
Wysokość budynku 6.52 m
Główny kąt dachu 30°
Min. wymiary działki 25.08 m / 28.74 m
Kondygnacje parterowy
Technologia murowany
Garaż dwustanowiskowy

Rzuty projektu

Rzut

rzut-karta-domu
LpNazwa pomieszczeniaPow. użytkowa
1 wiatrołap 7,96 m2
2 spiżarnia 4,36 m2
3 kuchnia z jadalnią 29,55 m2
4 salon 19,45 m2
5 pokój 11,99 m2
6 holl 8,62 m2
8 korytarz 8,63 m2
9 sypialnia 12,62 m2
10 łazienka 4,68 m2
11 garderoba 4,70 m2
12 sypialnia 14,59 m2
13 łazienka 8,58 m2
14 sypialnia 14,61 m2
15 WC 2,49 m2
Pow. użytkowa 152,83 m2
7 pom. gospodarcze 6,63 m2
16 garaż 34,39 m2
Pow. razem 193,85 m2
LpNazwa pomieszczeniaPow. użytkowa
1 wiatrołap 7,96 m2
2 spiżarnia 4,36 m2
3 kuchnia z jadalnią 29,55 m2
4 salon 19,45 m2
5 pokój 11,99 m2
6 holl 8,62 m2
8 korytarz 8,63 m2
9 sypialnia 12,62 m2
10 łazienka 4,68 m2
11 garderoba 4,70 m2
12 sypialnia 14,59 m2
13 łazienka 8,58 m2
14 sypialnia 14,61 m2
15 WC 2,49 m2
Pow. użytkowa 152,83 m2
7 pom. gospodarcze 6,63 m2
16 garaż 34,39 m2
Pow. razem 193,85 m2

Wszystkie parametry

Powierzchnia mieszkalna 152.83 m2
Pow. zabudowy 239.43 m2
Liczba pokoi 5
Liczba łazienek 3
Liczba sypialni 4
Ogrzewanie pompa ciepła
Wysokość parteru 2.80 m
Dach wielospadowy
Rodzaj zabudowy wolnostojący
Pokrycie dachu blachodachówka, dachówka
Kąt nachylenia dachu 30° / 2.5°
Powierzchnia dachu 311.68 m2
Powierzchnia całkowita 239.43 m2
Min. wymiary działki 25.08 m / 28.74 m
Wysokość budynku 6.52 m
Szerokość zabudowy 17.08 m
Długość zabudowy 21.74 m
Podpiwniczenie (z piwnicą) Nie
Kondygnacje parterowy
Technologia murowany
Garaż dwustanowiskowy
Instalacje elektryczne, sanitarne, C.O
Dodatkowe informacje pomieszczenie gospodarcze, garderoba, spiżarnia, master bedroom

Elewacje

Rzut sytuacyjny

Fundamenty: ławy fundamentowe/stopy fundamentowe
Ściany zewnętrzne: gazobeton +20 cm styropianu
Strop: Teriva
Elewacje: tynk cienkowarstwowy, okładzina elewacyjna
Ka156 T

zapytaj o projekt

Masz pytania odnośnie projektu Ka156 T ?

Napisz do nas, chętnie pomożemy Ci wybrać idealny projekt domu

Napisz do nas

Dodatki

Dziennik budowy 1,-
Tablica budowy 1,-
Projekt wentylacji mechanicznej 1200,-
Projekt pompy ciepła 800,-
Kotłownia na paliwo stałe 550,-
Projekt ogrzewania podłogowego 500,-
Pakiet szamba szczelnego 300,-
Przydomowa oczyszczalnia ścieków 500,-
Kosztorys inwestorski 550,-
Dodatkowy papierowy egzemplarz projektu 600,-

Opis projektu

Ka156 T to niebanalny projekt domu parterowego w stylu nowoczesnym na planie litery T. Do domu przylega dwustanowiskowy garaż pokryty dachem płaskim, który stanowi kontrast w stosunku do wielospadowego poszycia. Ten stylowy gotowy projekt domu nowoczesnego zaprojektowano na 152,83 m2 powierzchni użytkowej. Wewnątrz niego znajdują się doskonale skomunikowane ze sobą pomieszczenia. W prawym skrzydle budynku umieszczono strefę dzienną – korytarzem przechodzi się z wiatrołapu do kuchni ze spiżarnią i przestronnego salonu z wyjściem na taras. W pobliżu niego znajduje się także dodatkowy pokój – idealny jako gabinet. Lewe skrzydło to natomiast rozmieszczone wzdłuż korytarza dwie mniejsze sypialnie, WC, łazienka i pomieszczenie gospodarcze. Jednym z największych atutów tego domu jest duża sypialnia zlokalizowana w najodleglejszej części budynku, posiadająca prywatną łazienkę i garderobę.  Wysokość garażu:
2,50 m
2,95 m

zapytaj o projekt

Masz pytania odnośnie projektu Ka156 T ?

Napisz do nas, chętnie pomożemy Ci wybrać idealny projekt domu

Napisz do nas
c4ca4238a0b923820dcc509a6f75849b