Rzuty projektu
Rzut parteru
| Lp. | Pomieszczenie | Pow. pomieszczenia | Pow. podłogi |
| 1 | wiatrołap | 4,93 m2 | 4,93 m2 |
| 2 | korytarz | 10,40 m2 | 10,40 m2 |
| 3 | salon + jadalnia | 41,06 m2 | 41,06 m2 |
| 4 | kuchnia | 8,78 m2 | 8,78 m2 |
| 5 | łazienka | 4,81 m2 | 4,81 m2 |
| 6 | sypialnia | 12,32 m2 | 12,32 m2 |
| Pow. | mieszkalna | 82,30 m2 | 82,30 m2 |
| 7 | pom. gospodarcze | 6,22 m2 | 7,68 m2 |
| Pow. | użytkowa | 88,52 m2 | 89,98 m2 |
| Lp. | Pomieszczenie | Pow. pomieszczenia | Pow. podłogi |
| 1 | wiatrołap | 4,93 m2 | 4,93 m2 |
| 2 | korytarz | 10,40 m2 | 10,40 m2 |
| 3 | salon + jadalnia | 41,06 m2 | 41,06 m2 |
| 4 | kuchnia | 8,78 m2 | 8,78 m2 |
| 5 | łazienka | 4,81 m2 | 4,81 m2 |
| 6 | sypialnia | 12,32 m2 | 12,32 m2 |
| Pow. | mieszkalna | 82,30 m2 | 82,30 m2 |
| 7 | pom. gospodarcze | 6,22 m2 | 7,68 m2 |
| Pow. | użytkowa | 88,52 m2 | 89,98 m2 |
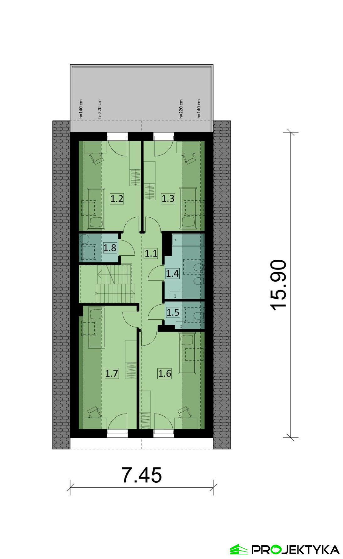
Rzut poddasza
| Lp. | Pomieszczenie | Pow. pomieszczenia | Pow. podłogi |
| 1 | korytarz | 11,16 m2 | 11,16 m2 |
| 2 | sypialnia | 12,31 m2 | 15,24 m2 |
| 3 | sypialnia | 12,07 m2 | 15,04 m2 |
| 4 | łazienka | 4,57 m2 | 6,70 m2 |
| 5 | WC | 2,06 m2 | 2,98 m2 |
| 6 | sypialnia | 14,16 m2 | 17,37 m2 |
| 7 | sypialnia | 15,45 m2 | 19,47 m2 |
| 8 | pralnia | 2,19 m2 | 3,15 m2 |
| Pow. | mieszkalna | 73,97 m2 | 91,11 m2 |
| Lp. | Pomieszczenie | Pow. pomieszczenia | Pow. podłogi |
| 1 | korytarz | 11,16 m2 | 11,16 m2 |
| 2 | sypialnia | 12,31 m2 | 15,24 m2 |
| 3 | sypialnia | 12,07 m2 | 15,04 m2 |
| 4 | łazienka | 4,57 m2 | 6,70 m2 |
| 5 | WC | 2,06 m2 | 2,98 m2 |
| 6 | sypialnia | 14,16 m2 | 17,37 m2 |
| 7 | sypialnia | 15,45 m2 | 19,47 m2 |
| 8 | pralnia | 2,19 m2 | 3,15 m2 |
| Pow. | mieszkalna | 73,97 m2 | 91,11 m2 |
Wszystkie parametry
| Powierzchnia mieszkalna | 156.27 m2 |
| Pow. zabudowy | 119.18 m2 |
| Liczba pokoi | 6 |
| Liczba łazienek | 3 |
| Liczba sypialni | 5 |
| Ogrzewanie | pompa ciepła |
| Poddasze | użytkowe |
| Wysokość parteru | 2.90 m |
| Wysokość poddasza | 2.60 m |
| Dach | dwuspadowy |
| Rodzaj zabudowy | wolnostojący |
| Pokrycie dachu | blachodachówka, dachówka |
| Kąt nachylenia dachu | 40° |
| Powierzchnia dachu | 206.93 m2 |
| Powierzchnia całkowita | 238.36 m2 |
| Min. wymiary działki | 14.45 m / 25.53 m |
| Wysokość budynku | 8.39 m |
| Szerokość zabudowy | 7.45 m |
| Długość zabudowy | 15.90 m |
| Powierzchnia. tarasu | 53.68 m2 |
| Wysokość ścianki kolankowej | 127.00 cm |
| Podpiwniczenie (z piwnicą) | Nie |
| Kondygnacje | parterowy z poddaszem |
| Technologia | murowany |
| Garaż | bez garażu |
| Instalacje | elektryczne, sanitarne, C.O |
| Rodzaj wentylacji | grawitacyjna |
| Dodatkowe informacje | na wąską działkę, kominek, pomieszczenie gospodarcze, dodatkowy pokój na parterze, pralnia |
Dane kosztorysowe
Poniższe koszty budowy są szacunkowe i mogą się różnić ze względu na:
- lokalizację (województwo)
- realizację (system zlecony lub gospodarczy)
od 378 286 zł netto - stan surowy zamknięty
od 810 563 zł netto - stan deweloperski
Do podanych cen należy doliczyć podatek VAT.
Szczegółowy kosztorys mogą Państwo zamówić przy składaniu zamówienia na projekt domu.
____
Data opracowania: II kw. 2025
Rzut sytuacyjny
zapytaj o projekt
Masz pytania odnośnie projektu Ka166 T ?
Napisz do nas, chętnie pomożemy Ci wybrać idealny projekt domu
Napisz do nasDodatki
| Dziennik budowy | 1,- |
| Tablica budowy | 1,- |
| Projekt wentylacji mechanicznej | 1200,- |
| Kotłownia na paliwo stałe | 550,- |
| Projekt ogrzewania gazowego | 600,- |
| Pakiet szamba szczelnego | 300,- |
| Przydomowa oczyszczalnia ścieków | 500,- |
| Kosztorys inwestorski | 550,- |
| Dodatkowy papierowy egzemplarz projektu | 600,- |
Opis projektu
Ka166 T to projekt domu z poddaszem o powierzchni mieszkalnej 156.27 m2. Został on pokryty dachem dwuspadowym, co nadaje mu klasycznego uroku. Jest to projekt domu z pompą ciepła oraz kominkiem. W części frontowej elewacji znajduje się wejście do budynku umieszczone w niewielkiej wnęce – po tej samej stronie umieszczono okna do jednej z sypialni. Wzdłuż ciągu komunikacyjnego parteru mieszczą się wiatrołap, pomieszczenie gospodarcze, łazienka oraz półotwarta kuchnia. W głębi budynku umieszczono przestronny salon z jadalnią i wyjściem na zadaszony taras. Na poddaszu umieszczono 4 sypialnie – dwie z nich posiadają wyjście na przestronny balkon. W dwóch pozostałych znajdujących się w części frontowej zaprojektowano balkony francuskie, które doskonale doświetlają wnętrze. Na poddaszu zaplanowano również łazienkę, WC oraz pralnię. To sprawia, że ów projekt domu z poddaszem użytkowym jest niezwykle funkcjonalnym miejscem do życia nawet dla 6-osobowej rodziny. Nowoczesne elementy wykończeniowe idealnie wpiszą się w styl tego przestronnego, komfortowego budynku.




