Ka190 U

Ka190 U to projekt domu z funkcją usługową stworzony z myślą o nietypowej grupie inwestorów – poszukujących domu mieszkalnego z możliwością prowadzenia w nim niewielkiego biznesu. Jest to projekt domu parterowego, pokryty dachem dwuspadowym, pod którym dodatkowo zaprojektowano strych. Z przodu domu znajduje się duży jednostanowiskowy garaż, nieco wysunięty poza obrys budynku, podobnie jak pomieszczenie usługowe po drugiej stronie domu. Posiada ono osobne wejście oraz WC, co w pełni odpowiada pot... Pełny opis

Ka190 U

Oczekiwanie na projekt: 2 dni

4949,-

kup projekt
ulubione
porównaj
drukuj
Pow. mieszkalna 121.41 m2
Pow. zabudowy 208.56 m2
Wysokość budynku 6.1 m
Główny kąt dachu 22°
Min. wymiary działki 23.04 m / 18.94 m
Kondygnacje parterowy
Technologia murowany
Garaż jednostanowiskowy

Rzuty projektu

Rzut

rzut-karta-domu
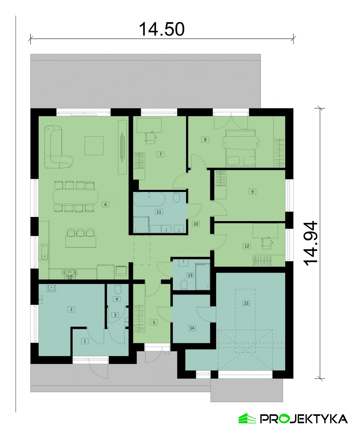
LpNazwa pomieszczeniaPow. mieszkalna
1 wiatrołap 4,65 m2
2 pom. usługowe 11,52 m2
3 przedsionek 1,26 m2
4 WC 1,44 m2
Pow. usługowa 18,87 m2
5 wiatrołap 6,79 m2
6 salon+jadalnia+kuchnia 44,95 m2
7 sypialnia 11,75 m2
8 sypialnia 15,26 m2
9 sypialnia 11,07 m2
10 korytarz 12,01 m2
11 łazienka 6,65 m2
12 sypialnia 9,39 m2
13 łazienka 3,54 m2
Pow. mieszkalna 121,41 m2
14 pom. gospodarcze 5,54 m2
15 garaż 22,59 m2
Pow. razem 168,41 m2
LpNazwa pomieszczeniaPow. mieszkalna
1 wiatrołap 4,65 m2
2 pom. usługowe 11,52 m2
3 przedsionek 1,26 m2
4 WC 1,44 m2
Pow. usługowa 18,87 m2
5 wiatrołap 6,79 m2
6 salon+jadalnia+kuchnia 44,95 m2
7 sypialnia 11,75 m2
8 sypialnia 15,26 m2
9 sypialnia 11,07 m2
10 korytarz 12,01 m2
11 łazienka 6,65 m2
12 sypialnia 9,39 m2
13 łazienka 3,54 m2
Pow. mieszkalna 121,41 m2
14 pom. gospodarcze 5,54 m2
15 garaż 22,59 m2
Pow. razem 168,41 m2

Wszystkie parametry

Powierzchnia mieszkalna 121.41 m2
Pow. zabudowy 208.56 m2
Liczba pokoi 5
Liczba łazienek 2
Liczba sypialni 4
Ogrzewanie pompa ciepła
Poddasze strych
Wysokość parteru 2.90 m
Wysokość poddasza 2.02 m
Dach dwuspadowy
Rodzaj zabudowy wolnostojący, z funkcją usługową
Pokrycie dachu blachodachówka, dachówka
Kąt nachylenia dachu 22°
Powierzchnia dachu 253.08 m2
Powierzchnia całkowita 208.56 m2
Min. wymiary działki 23.04 m / 18.94 m
Wysokość budynku 6.1 m
Szerokość zabudowy 15.04 m
Długość zabudowy 9.94 m
Podpiwniczenie (z piwnicą) Nie
Kondygnacje parterowy
Technologia murowany
Garaż jednostanowiskowy
Instalacje elektryczne, sanitarne, C.O
Rodzaj wentylacji grawitacyjna
Dodatkowe informacje pomieszczenie gospodarcze, pomieszczenie usługowe

Elewacje

Rzut sytuacyjny

Lokalizacja budynku
Fundamenty: ławy fundamentowe/stopy fundamentowe
Ściany zewnętrzne: gazobeton +20 cm styropianu
Strop: pas dolny dźwigara prefabrykowanego MiTek
Elewacje: tynk cienkowarstwowy, beton architektoniczny
Ka190 U

zapytaj o projekt

Masz pytania odnośnie projektu Ka190 U ?

Napisz do nas, chętnie pomożemy Ci wybrać idealny projekt domu

Napisz do nas

Dodatki

Dziennik budowy 1,-
Tablica budowy 1,-
Projekt wentylacji mechanicznej 1200,-
Kotłownia na paliwo stałe 550,-
Projekt ogrzewania podłogowego 500,-
Pakiet szamba szczelnego 300,-
Przydomowa oczyszczalnia ścieków 500,-
Kosztorys inwestorski 550,-
Dodatkowy papierowy egzemplarz projektu 600,-

Opis projektu

Ka190 U to projekt domu z funkcją usługową stworzony z myślą o nietypowej grupie inwestorów – poszukujących domu mieszkalnego z możliwością prowadzenia w nim niewielkiego biznesu. Jest to projekt domu parterowego, pokryty dachem dwuspadowym, pod którym dodatkowo zaprojektowano strych. Z przodu domu znajduje się duży jednostanowiskowy garaż, nieco wysunięty poza obrys budynku, podobnie jak pomieszczenie usługowe po drugiej stronie domu. Posiada ono osobne wejście oraz WC, co w pełni odpowiada potrzebom prowadzenia tam niewielkiego biura lub pracowni. Z garażu można wejść do pomieszczenia gospodarczego, z którego przechodzi się bezpośrednio do wiatrołapu w domu. W jego tylnej części zlokalizowano otwartą kuchnię, jadalnię oraz salon z wyjściem na taras. W drugiej części budynku znajduje się ciąg komunikacyjny z dwiema odrębnymi łazienkami oraz cztery sypialnie. Powierzchnia mieszkalna domu wynosi 121.41 m2, co sprawia, że jest on idealnym miejscem do życia dla 5-osobowej rodziny. Ka190 U jest to projekt domu jednorodzinnego w nowoczesnym stylu, który podkreśla wyjątkowa elewacja.

zapytaj o projekt

Masz pytania odnośnie projektu Ka190 U ?

Napisz do nas, chętnie pomożemy Ci wybrać idealny projekt domu

Napisz do nas
c4ca4238a0b923820dcc509a6f75849b