Ka24 L

Gotowy projekt domu jednorodzinnego Ka24 to nowoczesna konstrukcja z nutką Prowansji. Kamienna okładzina elewacji oraz szklane i stalowe wykończenie balkonu, dodaje mu niepowtarzalnego uroku. Dodatkowo jednostanowiskowy garaż stanowi podstawę dla wyjątkowego tarasu zlokalizowanego na piętrze domu.  Parter w gotowy projekt domu jednorodzinnego stanowi wyodrębnioną strefę dzienną. Składa się ona z wiatrołapu oraz łazienki dla gości. Dodatkowo znajdziemy tu otwartą kuchnię i jadalnię z antresolą, ... Pełny opis

Ka24 L

Oczekiwanie na projekt: 14 dni

4499,- 4949,-

Najniższa cena z 30 dni przed obniżką: 4949

kup projekt
ulubione
porównaj
drukuj
Pow. mieszkalna 134.47 m2
Pow. zabudowy 133.31 m2
Wysokość budynku 8.51 m
Główny kąt dachu 40°
Min. wymiary działki 22.3 m / 18.81 m
Kondygnacje parterowy z poddaszem
Technologia murowany
Garaż jednostanowiskowy

Rzuty projektu

Rzut parteru

rzut-karta-domu
Lp.PomieszczeniePow. pomieszczeniaPow. podłogi
1.korytarz + schody17,69 m219,92 m2
2spiżarnia1,33 m22,02 m2
3kuchnia12,90 m212,90 m2
4salon + jadalnia29,17 m229,17 m2
5sypialnia12,88 m212,88 m2
6WC2,98 m22,98 m2
Pow.mieszkalna76,95 m279,87 m2
7pom. gospodarcze5,65 m25,65 m2
8garaż24,39 m224,39 m2
Pow.użytkowa106,99 m2109,91 m2
Lp.PomieszczeniePow. pomieszczeniaPow. podłogi
1.korytarz + schody17,69 m219,92 m2
2spiżarnia1,33 m22,02 m2
3kuchnia12,90 m212,90 m2
4salon + jadalnia29,17 m229,17 m2
5sypialnia12,88 m212,88 m2
6WC2,98 m22,98 m2
Pow.mieszkalna76,95 m279,87 m2
7pom. gospodarcze5,65 m25,65 m2
8garaż24,39 m224,39 m2
Pow.użytkowa106,99 m2109,91 m2

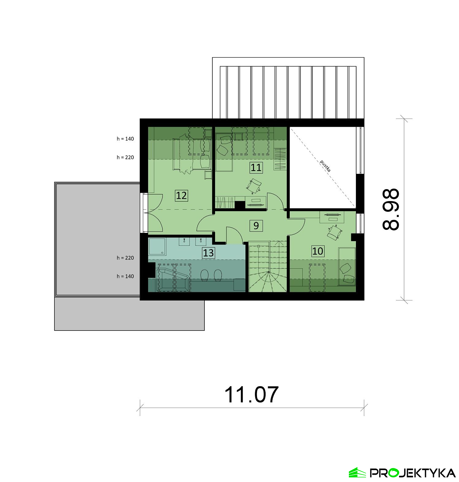
Rzut poddasza

rzut-karta-domu
Lp.PomieszczeniePow. pomieszczeniaPow. podłogi
9korytarz + schody7,73 m27,73 m2
10sypialnia
9,44 m213,21 m2
11sypialnia10,20 m214,28 m2
12sypialnia13,41 m217,04 m2
13łazienka6,89 m212,29 m2
Pow.mieszkalna57,52 m277,53 m2
Lp.PomieszczeniePow. pomieszczeniaPow. podłogi
9korytarz + schody7,73 m27,73 m2
10sypialnia
9,44 m213,21 m2
11sypialnia10,20 m214,28 m2
12sypialnia13,41 m217,04 m2
13łazienka6,89 m212,29 m2
Pow.mieszkalna57,52 m277,53 m2

Wszystkie parametry

Powierzchnia mieszkalna 134.47 m2
Pow. zabudowy 133.31 m2
Liczba pokoi 5
Liczba łazienek 2
Liczba sypialni 4
Ogrzewanie gazowe
Poddasze użytkowe
Wysokość parteru 2.76 m
Wysokość poddasza 2.65 m
Dach dwuspadowy
Rodzaj zabudowy wolnostojący
Pokrycie dachu blachodachówka, dachówka
Kąt nachylenia dachu 40° / 2°
Powierzchnia dachu 130.00 m2
Powierzchnia całkowita 232.60 m2
Min. wymiary działki 22.3 m / 18.81 m
Wysokość budynku 8.51 m
Szerokość zabudowy 15.30 m
Długość zabudowy 10.48 m
Powierzchnia. tarasu 23.48 m2
Wysokość ścianki kolankowej 84.00 cm
Podpiwniczenie (z piwnicą) Nie
Kondygnacje parterowy z poddaszem
Technologia murowany
Garaż jednostanowiskowy
Instalacje elektryczne, gazowe, sanitarne, C.O
Kalenica równoległa do fronu
Rodzaj wentylacji grawitacyjna
Dodatkowe informacje kominek, pomieszczenie gospodarcze, pustka nad jadalnią, pokój dla seniora, dodatkowy pokój na parterze, spiżarnia

Elewacje

Rzut sytuacyjny

Lokalizacja budynku
Fundamenty: ławy fundamentowe, stopy fundamentowe
Ściany zewnętrzne: gazobeton + styropian
Strop: Teriva
Elewacje: tynk cienkowarstwowy
Ka24

zapytaj o projekt

Masz pytania odnośnie projektu Ka24 L?

Napisz do nas, chętnie pomożemy Ci wybrać idealny projekt domu

Napisz do nas

Dodatki

Dziennik budowy 1,-
Tablica budowy 1,-
Projekt wentylacji mechanicznej 1200,-
Projekt pompy ciepła 800,-
Kotłownia na paliwo stałe 550,-
Projekt ogrzewania podłogowego 500,-
Pakiet szamba szczelnego 300,-
Przydomowa oczyszczalnia ścieków 500,-
Kosztorys inwestorski 550,-
Dodatkowy papierowy egzemplarz projektu 600,-

Opis projektu

Gotowy projekt domu jednorodzinnego Ka24 to nowoczesna konstrukcja z nutką Prowansji. Kamienna okładzina elewacji oraz szklane i stalowe wykończenie balkonu, dodaje mu niepowtarzalnego uroku. Dodatkowo jednostanowiskowy garaż stanowi podstawę dla wyjątkowego tarasu zlokalizowanego na piętrze domu.  Parter w gotowy projekt domu jednorodzinnego stanowi wyodrębnioną strefę dzienną. Składa się ona z wiatrołapu oraz łazienki dla gości. Dodatkowo znajdziemy tu otwartą kuchnię i jadalnię z antresolą, połączoną z salonem. Na parterze domu jednorodzinnego zlokalizowano również gabinet, lub funkcjonalny pokój dla gości.  Gotowy projekt domu jednorodzinnego na piętrze wyodrębnia obszerną sypialnie połączoną z balkonem o niespotykanie dużej powierzchni. Ponadto w jej sąsiedztwie umieszczono łazienkę dla mieszkańców, w której znajdziemy wannę, dwie umywalki, prysznic oraz toaletę. Gotowy projekt domu, w części nocnej przewiduje wykonanie dwóch sypialni dla dzieci, zaś wszystkie pomieszczenia zostały połączone hollem umieszczonym w centrum piętra domu. 

zapytaj o projekt

Masz pytania odnośnie projektu Ka24 L?

Napisz do nas, chętnie pomożemy Ci wybrać idealny projekt domu

Napisz do nas
c4ca4238a0b923820dcc509a6f75849b