Ka255 T

Projekt domu nowoczesnego Ka255 T to ciekawe rozwiązanie, łączące w sobie prostotę budowy z ogromną funkcjonalnością. Jest to projekt domu na zgłoszenie, który nie wymaga uzyskania pozwolenia na budowę z uwagi na powierzchnię zabudowy nie przekraczającą 70 m2. Powierzchnia mieszkalna wynosi tu 86.76 m2, co daje dość przestrzeni do zamieszkania 4-osobowej rodzinie. To prosty budynek na planie prostokąta, z poddaszem użytkowym skrytym pod dwuspadowym dachem, z wysoką ścianą k... Pełny opis

Ka255 T

Oczekiwanie na projekt: 14 dni roboczych

4184,10 4649,-

Najniższa cena z 30 dni przed obniżką: 4649

kup projekt
ulubione
porównaj
drukuj
Pow. mieszkalna 86.76 m2
Pow. zabudowy 69.92 m2
Wysokość budynku 8.15 m
Główny kąt dachu 35°
Min. wymiary działki 15.6 m / 17.2 m
Kondygnacje parterowy z poddaszem
Technologia murowany
Garaż bez garażu

Rzuty projektu

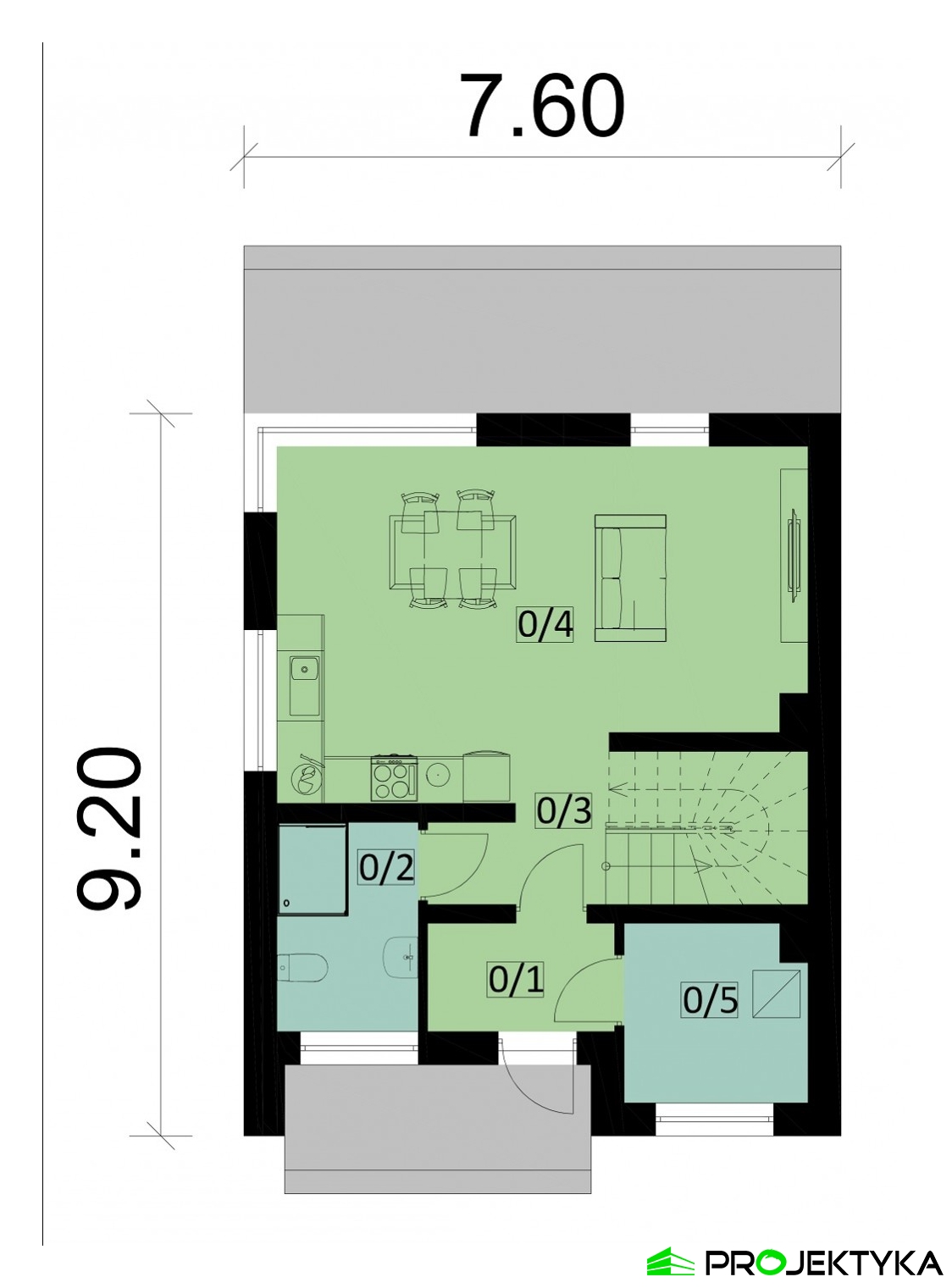
Rzut parteru

rzut-karta-domu
Lp.PomieszczeniePow. pomieszczenia
1wiatrołap3,28 m2
2łazienka4,80 m2
3holl + schody7,90 m2
4salon + kuchnia27,16 m2
Pow.mieszkalna43,14 m2
5pom. gospodarcze5,17 m2
Pow.użytkowa48,31 m2
Lp.PomieszczeniePow. pomieszczenia
1wiatrołap3,28 m2
2łazienka4,80 m2
3holl + schody7,90 m2
4salon + kuchnia27,16 m2
Pow.mieszkalna43,14 m2
5pom. gospodarcze5,17 m2
Pow.użytkowa48,31 m2

Rzut poddasza

rzut-karta-domu
Lp.PomieszczeniePow. pomieszczeniaPow. podłogi
1łazienka6,39 m28,44 m2
2holl + schody5,29 m25,29 m2
3sypialnia10,50 m212,56 m2
4sypialnia11,53 m213,26  m2
5sypialnia9,91  m211,63  m2
Pow.mieszkalna43,62 m251,18  m2
Lp.PomieszczeniePow. pomieszczeniaPow. podłogi
1łazienka6,39 m28,44 m2
2holl + schody5,29 m25,29 m2
3sypialnia10,50 m212,56 m2
4sypialnia11,53 m213,26  m2
5sypialnia9,91  m211,63  m2
Pow.mieszkalna43,62 m251,18  m2

Wszystkie parametry

Powierzchnia mieszkalna 86.76 m2
Pow. zabudowy 69.92 m2
Liczba pokoi 4
Liczba łazienek 2
Liczba sypialni 3
Ogrzewanie gazowe
Poddasze użytkowe
Wysokość parteru 2.71 m
Wysokość poddasza 2.57 m
Dach dwuspadowy
Rodzaj zabudowy wolnostojący
Pokrycie dachu blachodachówka, dachówka
Kąt nachylenia dachu 35°
Powierzchnia dachu 87.21 m2
Powierzchnia całkowita 136.29 m2
Min. wymiary działki 15.6 m / 17.2 m
Wysokość budynku 8.15 m
Szerokość zabudowy 7.60 m
Długość zabudowy 9.20 m
Wysokość ścianki kolankowej 140.00 cm
Podpiwniczenie (z piwnicą) Nie
Kondygnacje parterowy z poddaszem
Technologia murowany
Garaż bez garażu
Instalacje elektryczne, gazowe, sanitarne, C.O
Rodzaj wentylacji grawitacyjna
Dodatkowe informacje kominek, pomieszczenie gospodarcze

Elewacje

Rzut sytuacyjny

Lokalizacja budynku
Fundamenty: ławy fundamentowe
Ściany zewnętrzne: gazobeton +20 cm styropianu
Strop: Teriva
Elewacje: tynk cienkowarstwowy, panele drewniane, beton architektoniczny
Ka255 T

zapytaj o projekt

Masz pytania odnośnie projektu Ka255 T ?

Napisz do nas, chętnie pomożemy Ci wybrać idealny projekt domu

Napisz do nas

Warianty projektu

Dodatki

Dziennik budowy 1,-
Tablica budowy 1,-
Projekt wentylacji mechanicznej 1200,-
Projekt pompy ciepła 800,-
Kotłownia na paliwo stałe 550,-
Pakiet szamba szczelnego 300,-
Przydomowa oczyszczalnia ścieków 500,-
Kosztorys inwestorski 550,-
Dodatkowy papierowy egzemplarz projektu 600,-

Opis projektu

Projekt domu nowoczesnego Ka255 T to ciekawe rozwiązanie, łączące w sobie prostotę budowy z ogromną funkcjonalnością. Jest to projekt domu na zgłoszenie, który nie wymaga uzyskania pozwolenia na budowę z uwagi na powierzchnię zabudowy nie przekraczającą 70 m2. Powierzchnia mieszkalna wynosi tu 86.76 m2, co daje dość przestrzeni do zamieszkania 4-osobowej rodzinie. To prosty budynek na planie prostokąta, z poddaszem użytkowym skrytym pod dwuspadowym dachem, z wysoką ścianą kolankową (140 cm) – umożliwia to wygodne umeblowanie pokoi dzięki mniejszym skosom. Zastosowano w nim rozwiązania takie jak ogrzewanie gazowe oraz kominek. Parter podzielony jest na dwie strefy. W części frontowej znajduje się wiatrołap z wejściem do małego pomieszczenia gospodarczego, łazienka i klatka schodowa, a na tyłach domu – salon z otwartą kuchnią, jadalnią i wyjściem na taras. Na poddaszu umieszczono trzy sypialnie – dwie w tylnej części domu oraz jedną we frontowej, posiadające wygodne balkony francuskie, oraz łazienkę z oknem dachowym. Ten projekt domu z dachem dwuspadowym to idealny wybór dla inwestorów, którzy cenią sobie prostotę projektów połączoną z wygodą użytkowania, i szukają czegoś, co można wybudować w jak najkrótszym czasie na niewielkiej działce. 

zapytaj o projekt

Masz pytania odnośnie projektu Ka255 T ?

Napisz do nas, chętnie pomożemy Ci wybrać idealny projekt domu

Napisz do nas
c4ca4238a0b923820dcc509a6f75849b