Rzuty projektu
Rzut parteru
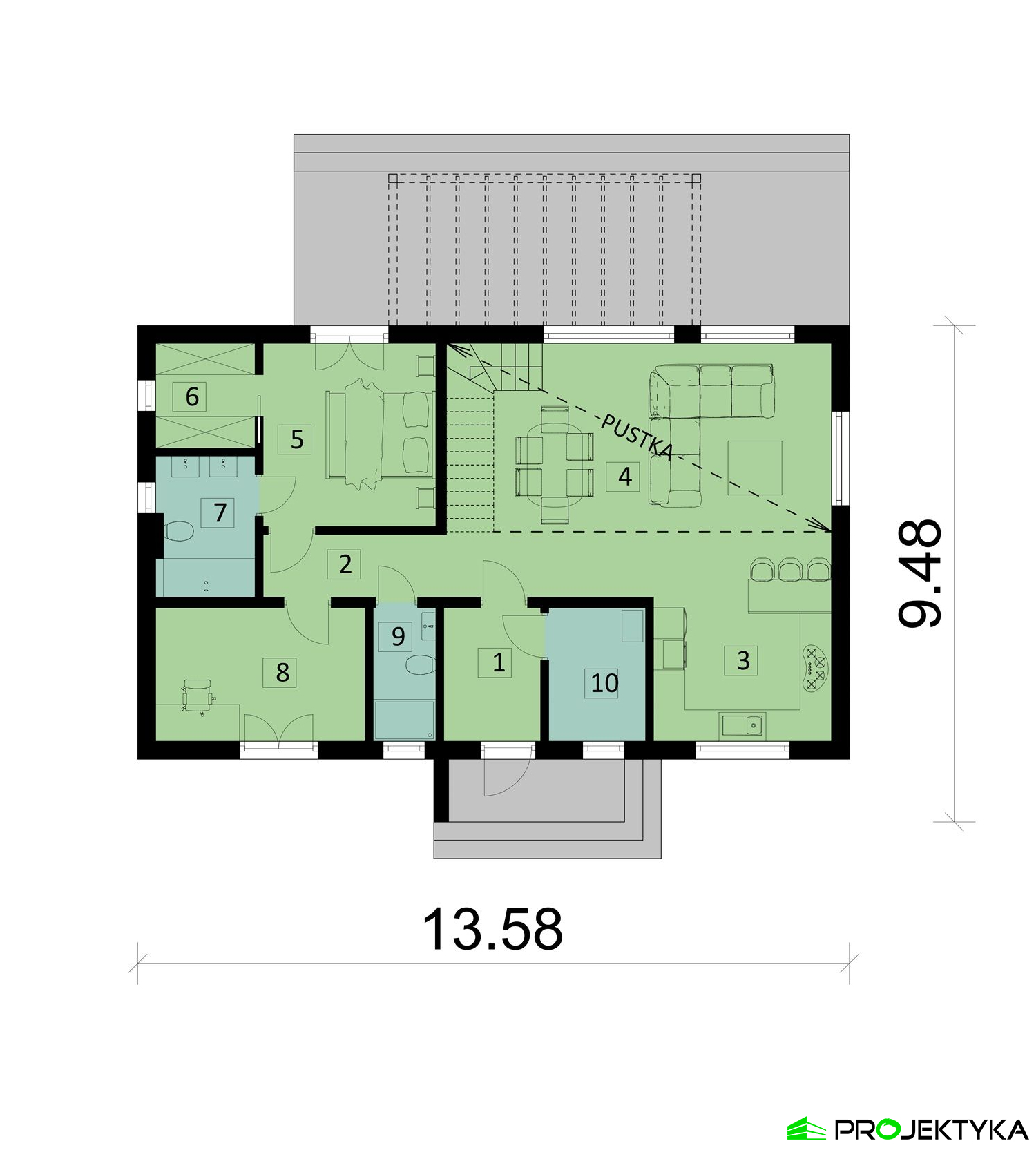
| Lp. | Pomieszczenie | Pow. pomieszczenia | Pow. podłogi |
| 1 | wiatrołap | 4,69 m2 | 4,69 m2 |
| 2 | korytarz | 4,21 m2 | 4,21 m2 |
| 3 | kuchnia | 9,24 m2 | 9,24 m2 |
| 4 | salon | 34,69 m2 | 37,70 m2 |
| 5 | sypialnia | 11,55 m2 | 11,55 m2 |
| 6 | garderoba | 3,76 m2 | 3,76 m2 |
| 7 | łazienka | 5,03 m2 | 5,03 m2 |
| 8 | sypialnia | 10,09 m2 | 10,09 m2 |
| 9 | WC | 3,07 m2 | 3,07 m2 |
| Pow. | mieszkalna | 86,33 m2 | 89,34 m2 |
| 10 | pom. gospodarcze | 4,72 m2 | 4,72 m2 |
| Pow. | użytkowa | 91,05 m2 | 94,06 m2 |
| Lp. | Pomieszczenie | Pow. pomieszczenia | Pow. podłogi |
| 1 | wiatrołap | 4,69 m2 | 4,69 m2 |
| 2 | korytarz | 4,21 m2 | 4,21 m2 |
| 3 | kuchnia | 9,24 m2 | 9,24 m2 |
| 4 | salon | 34,69 m2 | 37,70 m2 |
| 5 | sypialnia | 11,55 m2 | 11,55 m2 |
| 6 | garderoba | 3,76 m2 | 3,76 m2 |
| 7 | łazienka | 5,03 m2 | 5,03 m2 |
| 8 | sypialnia | 10,09 m2 | 10,09 m2 |
| 9 | WC | 3,07 m2 | 3,07 m2 |
| Pow. | mieszkalna | 86,33 m2 | 89,34 m2 |
| 10 | pom. gospodarcze | 4,72 m2 | 4,72 m2 |
| Pow. | użytkowa | 91,05 m2 | 94,06 m2 |
Wszystkie parametry
| Powierzchnia mieszkalna | 101.65 m2 |
| Pow. zabudowy | 112.81 m2 |
| Liczba pokoi | 3 |
| Liczba łazienek | 2 |
| Liczba sypialni | 2 |
| Ogrzewanie | pompa ciepła |
| Poddasze | brak |
| Wysokość parteru | 2.65 m |
| Wysokość poddasza | 3.18 m |
| Dach | dwuspadowy |
| Rodzaj zabudowy | wolnostojący |
| Pokrycie dachu | blachodachówka |
| Kąt nachylenia dachu | 40° |
| Powierzchnia dachu | 148.00 m2 |
| Powierzchnia całkowita | 225.62 m2 |
| Min. wymiary działki | 21.58 m / 17.43 m |
| Wysokość budynku | 7.23 m |
| Szerokość zabudowy | 13.58 m |
| Długość zabudowy | 9.48 m |
| Podpiwniczenie (z piwnicą) | Nie |
| Kondygnacje | parterowy z poddaszem |
| Technologia | szkieletowy drewniany |
| Garaż | bez garażu |
| Instalacje | elektryczne, sanitarne, C.O |
| Rodzaj wentylacji | grawitacyjna |
| Dodatkowe informacje | pomieszczenie gospodarcze, antresola, garderoba, master bedroom |
Rzut sytuacyjny
zapytaj o projekt
Masz pytania odnośnie projektu Ka260 Sz ?
Napisz do nas, chętnie pomożemy Ci wybrać idealny projekt domu
Napisz do nasDodatki
| Dziennik budowy | 1,- |
| Tablica budowy | 1,- |
| Projekt wentylacji mechanicznej | 1200,- |
| Kotłownia na paliwo stałe | 550,- |
| Pakiet szamba szczelnego | 300,- |
| Przydomowa oczyszczalnia ścieków | 500,- |
| Kosztorys inwestorski | 550,- |
| Dodatkowy papierowy egzemplarz projektu | 600,- |
Opis projektu
Ka260 Sz to projekt domu z pustką nad salonem o nieskomplikowanej bryle – jest zatem prosty w realizacji. Uwzględniono w nim nie tylko zadaszenie nad drzwiami wejściowymi, ale również drewnianą antresolę na tarasie, dzięki czemu ten budynek stanowi bardzo przytulny i efektownie wyglądający dom. Powierzchnia mieszkalna wynosi 101.65 m2, doskonale poczuje się tutaj zatem niewielka, 3- lub 4-osobowa rodzina. Projekt domu parterowego z dachem dwuspadowym ma także przestronną antresolę nad salonem, która może stać się biblioteczką lub dodatkową przestrzenią do pracy. To niezwykle nowoczesny projekt domu z master bedroom – z osobną garderobą i łazienką. Dodatkowa łazienka znajduje się tuż przy wiatrołapie. W prawej części budynku usytuowano otwartą kuchnię z oknami od frontu, a także salon z jadalnią i wyjściem na taras znajdujący się na tyłach. Z wiatrołapu można wejść do niewielkiego pomieszczenia gospodarczego. Budynek zaprojektowano z myślą o wygodzie – jest to dom z pompą ciepła, która w połączeniu z technologią budowy szkieletową drewnianą zapewni bardzo dobre efekty utrzymania ciepła zimą.




