Wszystkie parametry
| Powierzchnia mieszkalna | 146.06 m2 |
| Pow. zabudowy | 233.36 m2 |
| Liczba pokoi | 4 |
| Liczba łazienek | 2 |
| Liczba sypialni | 3 |
| Ogrzewanie | gazowe |
| Poddasze | strych |
| Wysokość parteru | 2.86 m |
| Wysokość poddasza | 1.95 m |
| Dach | dwuspadowy |
| Rodzaj zabudowy | wolnostojący |
| Pokrycie dachu | blacha na rąbek |
| Kąt nachylenia dachu | 30° |
| Powierzchnia dachu | 351.10 m2 |
| Powierzchnia całkowita | 233.00 m2 |
| Min. wymiary działki | 25 m / 26 m |
| Wysokość budynku | 6.4 m |
| Szerokość zabudowy | 17.00 m |
| Długość zabudowy | 19.00 m |
| Powierzchnia. tarasu | 43.00 m2 |
| Podpiwniczenie (z piwnicą) | Nie |
| Kondygnacje | parterowy |
| Technologia | murowany |
| Garaż | dwustanowiskowy |
| Instalacje | elektryczne, gazowe, sanitarne, C.O |
| Rodzaj wentylacji | grawitacyjna |
| Dodatkowe informacje | kominek, półotwarta kuchnia, garderoba, pralnia |
Dane kosztorysowe
Poniższe koszty budowy są szacunkowe i mogą się różnić ze względu na:
- lokalizację (województwo)
- realizację (system zlecony lub gospodarczy)
od 282 766 zł netto - stan surowy zamknięty
od 528 004 zł netto - stan deweloperski
Do podanych cen należy doliczyć podatek VAT.
Szczegółowy kosztorys mogą Państwo zamówić przy składaniu zamówienia na projekt domu.
____
Data opracowania: II kw. 2020
Rzut sytuacyjny
zapytaj o projekt
Masz pytania odnośnie projektu Ka27 L?
Napisz do nas, chętnie pomożemy Ci wybrać idealny projekt domu
Napisz do nasWarianty projektu
Dodatki
| Dziennik budowy | 1,- |
| Tablica budowy | 1,- |
| Projekt wentylacji mechanicznej | 1200,- |
| Projekt pompy ciepła | 800,- |
| Kotłownia na paliwo stałe | 550,- |
| Pakiet szamba szczelnego | 300,- |
| Przydomowa oczyszczalnia ścieków | 500,- |
| Kosztorys inwestorski | 550,- |
| Dodatkowy papierowy egzemplarz projektu | 600,- |
Opis projektu
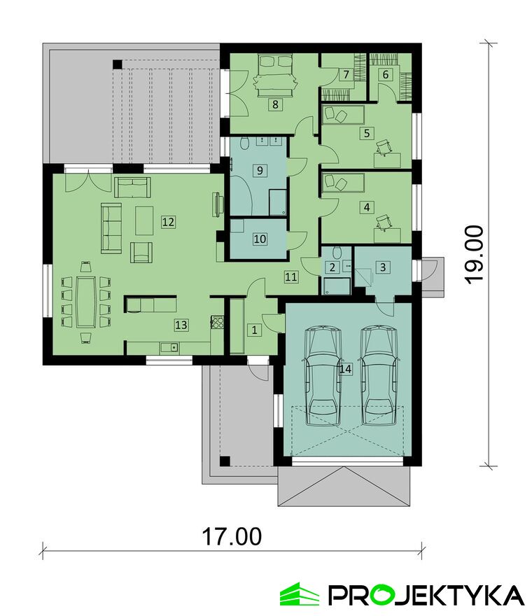
Ka27 to gotowy projekt domu parterowego. Tradycyjna kubatura z dwuspadowym dachem oraz elegancką drewnianą okładziną nadaje wyjątkowego charakteru. Ponadto gotowy projekt domu przewiduje wykonanie dwustanowiskowego garażu oraz pomieszczenia gospodarczego z osobnym wejściem.
Gotowy projekt domu parterowego w praktyczny sposób dzieli dom na dwie strefy, aby zapewnić maksymalny komfort mieszkańcom. Strefa dzienna w gotowy projekt domu parterowego, składa się z półotwartej kuchni, jadalni oraz salonu z wyjściem na zadaszony taras. Dodatkowo przewiduje on wykonanie małej łazienki dla gości.
Strefa prywatna w gotowy projekt domu jednorodzinnego składa się z 3 sypialni oraz dużej łazienki dla mieszkańców. Główna sypialnia, została wyposażona w prywatną garderobę oraz wyjście na taras. Dodatkowo, dwie sypialnie dla dzieci posiadają duże okna, aby dostarczyć maksymalną ilość światła dziennego.
Gotowy projekt domu parterowego to idealne rozwiązanie dla 4-5 osobowej rodziny, chcącej zachować swoją prywatność. Zaś umieszczenie w nim pralni, stanowi kolejną jego zaletę. Wariant projektu z dachem wielospadowym projekt Ka32.
Gotowy projekt domu parterowego w praktyczny sposób dzieli dom na dwie strefy, aby zapewnić maksymalny komfort mieszkańcom. Strefa dzienna w gotowy projekt domu parterowego, składa się z półotwartej kuchni, jadalni oraz salonu z wyjściem na zadaszony taras. Dodatkowo przewiduje on wykonanie małej łazienki dla gości.
Strefa prywatna w gotowy projekt domu jednorodzinnego składa się z 3 sypialni oraz dużej łazienki dla mieszkańców. Główna sypialnia, została wyposażona w prywatną garderobę oraz wyjście na taras. Dodatkowo, dwie sypialnie dla dzieci posiadają duże okna, aby dostarczyć maksymalną ilość światła dziennego.
Gotowy projekt domu parterowego to idealne rozwiązanie dla 4-5 osobowej rodziny, chcącej zachować swoją prywatność. Zaś umieszczenie w nim pralni, stanowi kolejną jego zaletę. Wariant projektu z dachem wielospadowym projekt Ka32.




