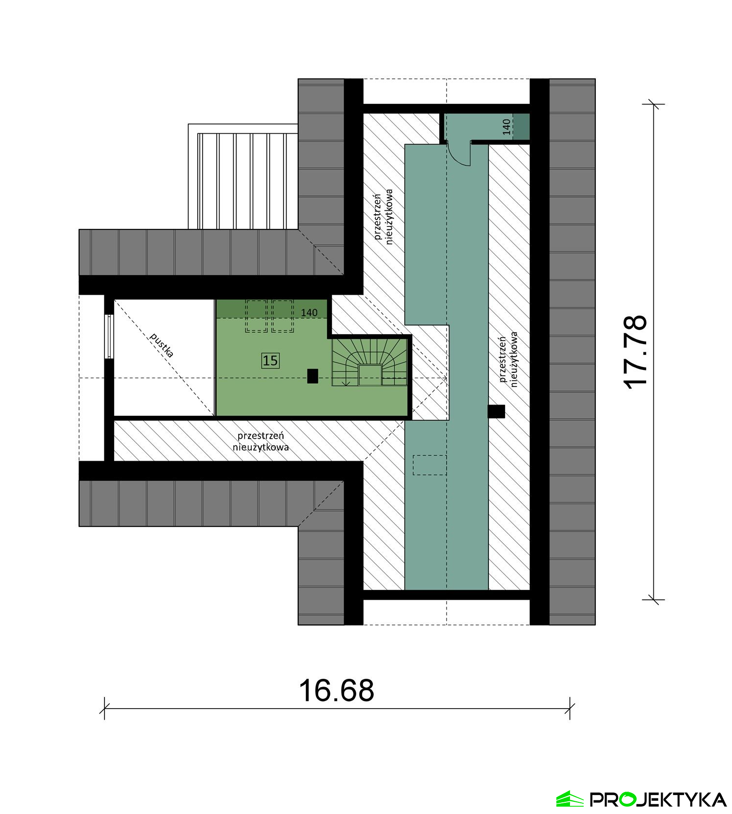
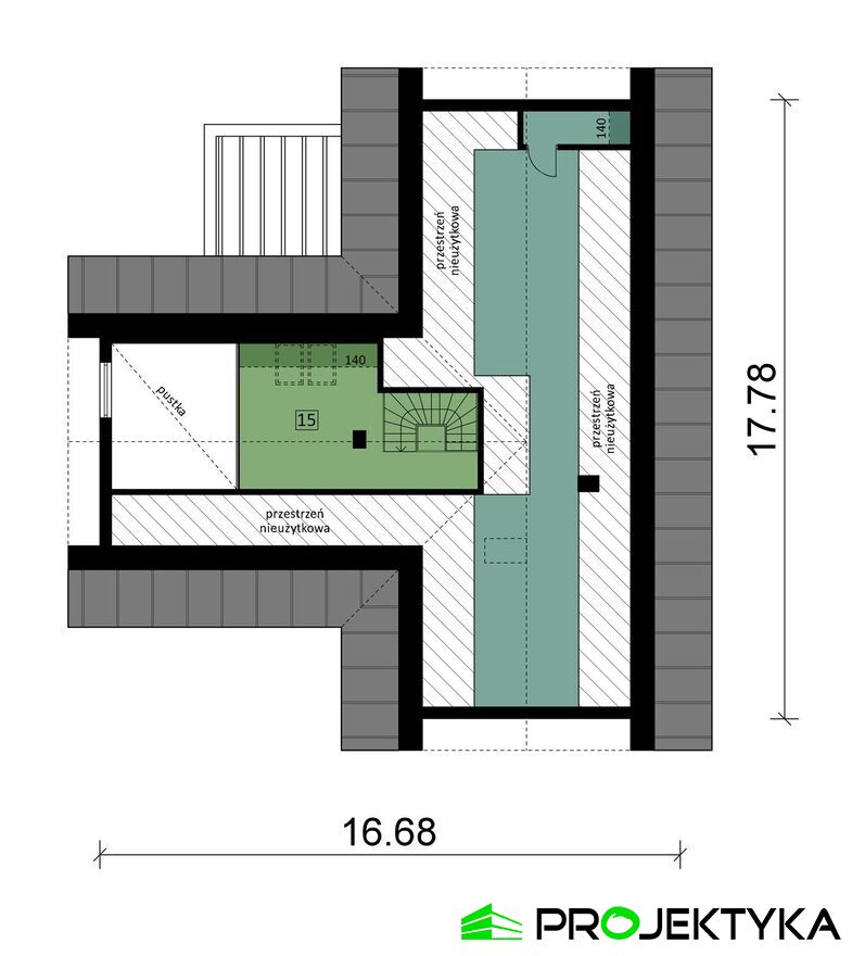
Rzuty projektu
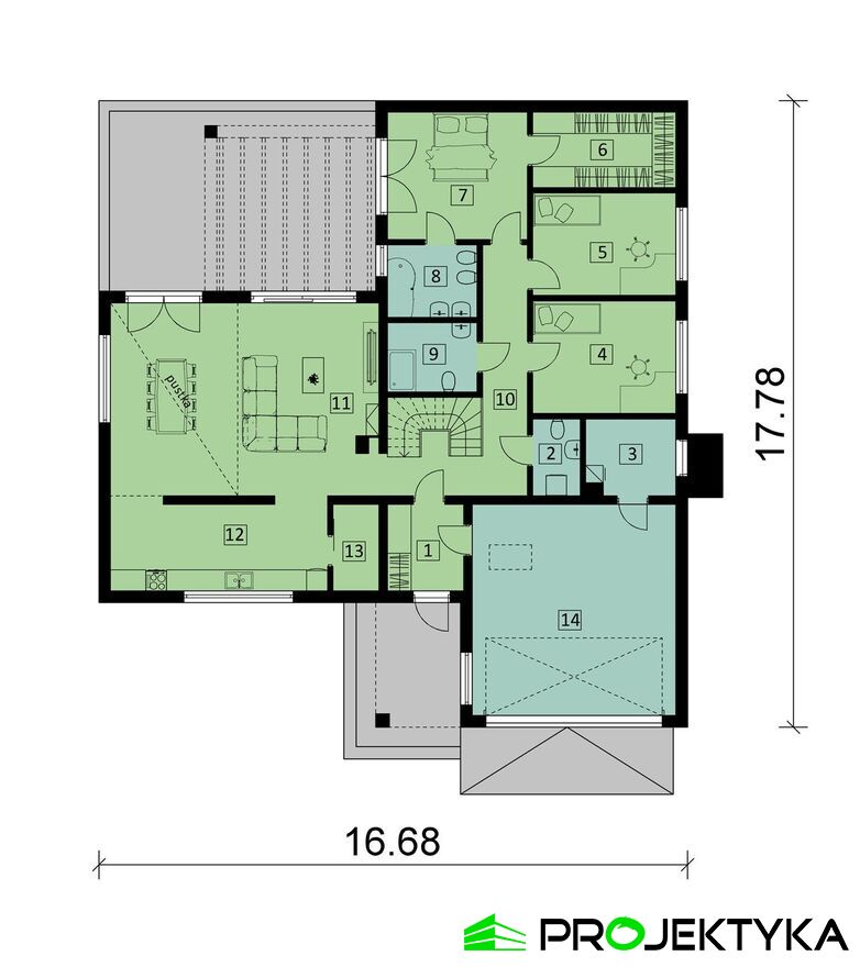
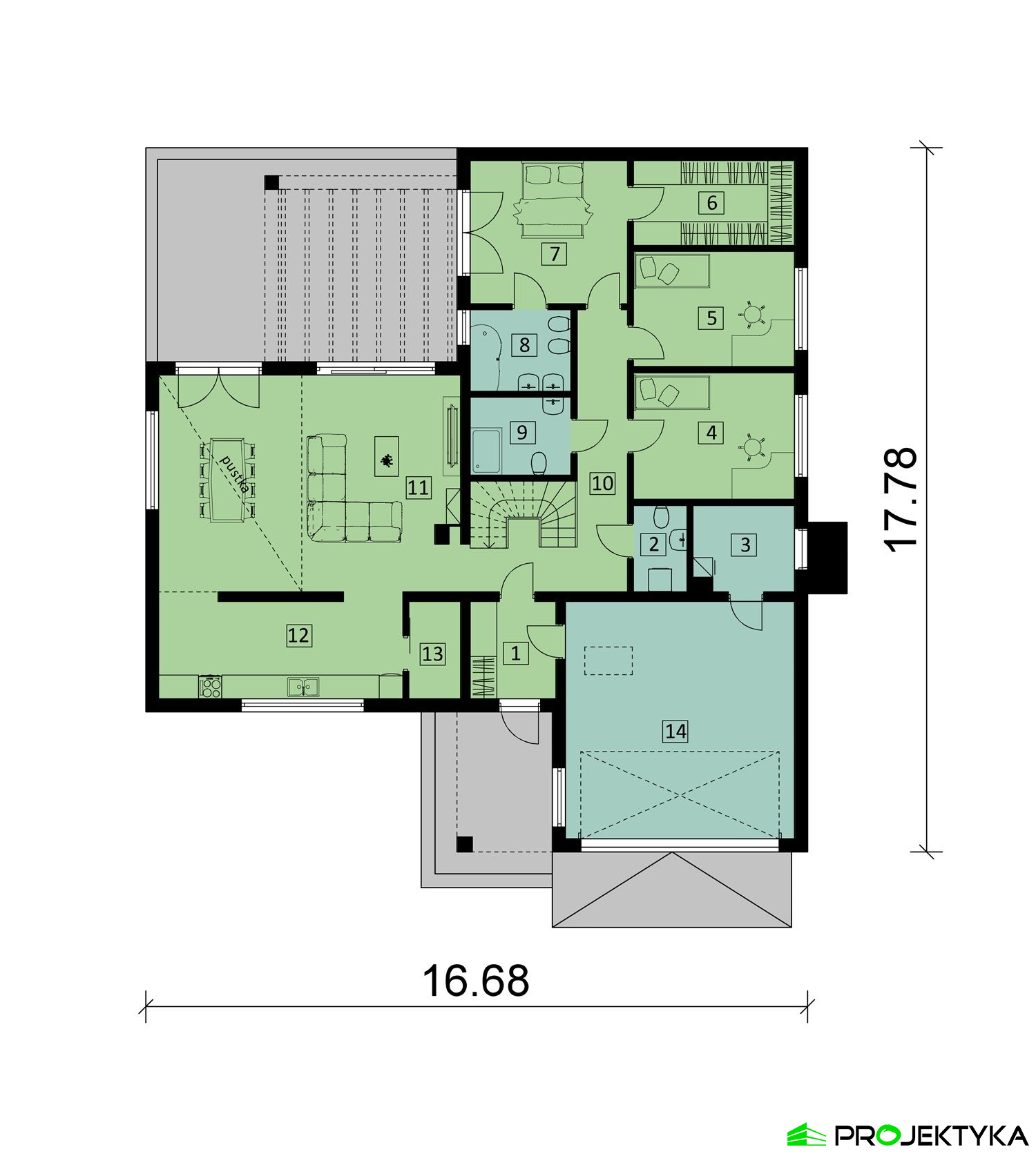
Rzut parteru

Lp. | Pomieszczenie | Pow. pomieszczenia |
1 | wiatrołap | 5,31 m2 |
2 | WC | 2,94 m2 |
4 | sypialnia | 12,99 m2 |
5 | sypialnia | 11,81 m2 |
6 | garderoba | 8,69 m2 |
7 | sypialnia | 14,30 m2 |
8 | łazienka | 5,23 m2 |
9 | łazienka | 5,00 m2 |
10 | korytarz | 16,19 m2 |
11 | salon + jadalnia | 41,45 m2 |
12 | kuchnia | 15,13 m2 |
13 | spiżarnia | 3,22 m2 |
Pow. | mieszkalna | 142,26 m2 |
3 | pom. gospodarcze | 5,40 m2 |
14 | garaż | 34,62 m2 |
Pow. | użytkowa | 182,28 m2 |
Lp. | Pomieszczenie | Pow. pomieszczenia |
1 | wiatrołap | 5,31 m2 |
2 | WC | 2,94 m2 |
4 | sypialnia | 12,99 m2 |
5 | sypialnia | 11,81 m2 |
6 | garderoba | 8,69 m2 |
7 | sypialnia | 14,30 m2 |
8 | łazienka | 5,23 m2 |
9 | łazienka | 5,00 m2 |
10 | korytarz | 16,19 m2 |
11 | salon + jadalnia | 41,45 m2 |
12 | kuchnia | 15,13 m2 |
13 | spiżarnia | 3,22 m2 |
Pow. | mieszkalna | 142,26 m2 |
3 | pom. gospodarcze | 5,40 m2 |
14 | garaż | 34,62 m2 |
Pow. | użytkowa | 182,28 m2 |
Wszystkie parametry
Powierzchnia mieszkalna | 152.93 m2 |
Pow. zabudowy | 218.08 m2 |
Liczba pokoi | 4 |
Liczba łazienek | 3 |
Liczba sypialni | 3 |
Ogrzewanie | gazowe |
Poddasze | strych |
Wysokość parteru | 2.70 m |
Dach | dwuspadowy |
Rodzaj zabudowy | wolnostojący |
Pokrycie dachu | blachodachówka, dachówka |
Kąt nachylenia dachu | 30° |
Powierzchnia dachu | 337.60 m2 |
Powierzchnia całkowita | 217.82 m2 |
Min. wymiary działki | 24.68 m / 24.78 m |
Wysokość budynku | 6.57 m |
Szerokość zabudowy | 16.68 m |
Długość zabudowy | 17.78 m |
Powierzchnia. tarasu | 42.50 m2 |
Wysokość ścianki kolankowej | 82.00 cm |
Podpiwniczenie (z piwnicą) | Nie |
Kondygnacje | parterowy |
Technologia | szkieletowy drewniany |
Garaż | dwustanowiskowy |
Instalacje | elektryczne, gazowe, sanitarne, C.O |
Rodzaj wentylacji | grawitacyjna |
Dodatkowe informacje | kominek, pomieszczenie gospodarcze, pustka nad jadalnią, antresola, półotwarta kuchnia, garderoba, spiżarnia |
Rzut sytuacyjny

zapytaj o projekt
Masz pytania odnośnie projektu Ka27 war.3 Sz L?
Napisz do nas, chętnie pomożemy Ci wybrać idealny projekt domu
Napisz do nasWarianty projektu
Dodatki
Dziennik budowy | 1,- |
Tablica budowy | 1,- |
Projekt wentylacji mechanicznej | 1200,- |
Projekt pompy ciepła | 800,- |
Kotłownia na paliwo stałe | 550,- |
Pakiet szamba szczelnego | 300,- |
Przydomowa oczyszczalnia ścieków | 500,- |
Kosztorys inwestorski | 550,- |
Dodatkowy papierowy egzemplarz projektu | 600,- |
Opis projektu
Ka27 war.3 Sz to wyjątkowy projekt domu jednorodzinnego, który wraz z garażem dwustanowiskowym prezentuje bryłę w kształcie litery T. Zadaszone wejście do domu zostało w estetyczny sposób oddzielone od części garażowej z pomieszczeniem gospodarczym, stanowiącej jedno z ramion litery T. Jej trzon stanowi wydzielona przestronna strefa dzienna – to salon połączony z jadalnią i wyjściem na duży taras, oraz oddzielna, podłużna kuchnia wygodna do zaaranżowania, wraz z małą spiżarnią. Drugie ramię litery T w tym projekcie stanowi strefa nocna – trzy sypialnie z garderobą i dwiema łazienkami oraz pralnia. Ten gotowy projekt domu jest wyjątkowy z wielu powodów, a jednym z najważniejszych jest wspaniała antresola wydzielona nad salonem i jadalnią. Całość skryta została pod dwuspadowym dachem nachylonym pod kątem 30 stopni. Jest to wspaniały dom dla rodziny, która znajdzie w nim wszystkie pomieszczenia niezbędne do wygodnego życia, a przede wszystkim dużo swobodnej przestrzeni – powierzchnia użytkowa domu wynosi 192,25 m2.