Rzuty projektu
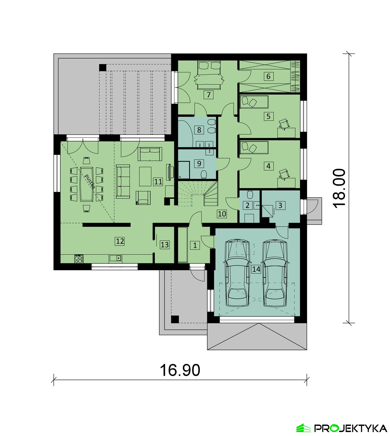
Rzut parteru
| Lp. | Pomieszczenie | Pow. pomieszczenia |
| 1 | wiatrołap | 5,31 m2 |
| 2 | pralnia | 3,01 m2 |
| 4 | sypialnia | 13,15 m2 |
| 5 | sypialnia | 11,93 m2 |
| 6 | garderoba | 8,79 m2 |
| 7 | sypialnia | 14,49 m2 |
| 8 | łazienka | 5,26 m2 |
| 9 | łazienka | 5,12 m2 |
| 10 | korytarz | 16,42 m2 |
| 11 | salon + jadalnia | 41,43 m2 |
| 12 | kuchnia | 15,20 m2 |
| 13 | spiżarnia | 3,22 m2 |
| Pow. | mieszkalna | 143,33 m2 |
| 3 | pom. gospodarcze | 5,50 m2 |
| 14 | garaż | 33,76 m2 |
| Pow. | użytkowa | 182,59 m2 |
| Lp. | Pomieszczenie | Pow. pomieszczenia |
| 1 | wiatrołap | 5,31 m2 |
| 2 | pralnia | 3,01 m2 |
| 4 | sypialnia | 13,15 m2 |
| 5 | sypialnia | 11,93 m2 |
| 6 | garderoba | 8,79 m2 |
| 7 | sypialnia | 14,49 m2 |
| 8 | łazienka | 5,26 m2 |
| 9 | łazienka | 5,12 m2 |
| 10 | korytarz | 16,42 m2 |
| 11 | salon + jadalnia | 41,43 m2 |
| 12 | kuchnia | 15,20 m2 |
| 13 | spiżarnia | 3,22 m2 |
| Pow. | mieszkalna | 143,33 m2 |
| 3 | pom. gospodarcze | 5,50 m2 |
| 14 | garaż | 33,76 m2 |
| Pow. | użytkowa | 182,59 m2 |
Wszystkie parametry
| Powierzchnia mieszkalna | 154.15 m2 |
| Pow. zabudowy | 225.89 m2 |
| Liczba pokoi | 4 |
| Liczba łazienek | 2 |
| Liczba sypialni | 3 |
| Ogrzewanie | gazowe |
| Poddasze | strych |
| Wysokość parteru | 2.70 m |
| Dach | dwuspadowy |
| Rodzaj zabudowy | wolnostojący |
| Pokrycie dachu | blacha na rąbek |
| Kąt nachylenia dachu | 30° |
| Powierzchnia dachu | 337.60 m2 |
| Powierzchnia całkowita | 225.45 m2 |
| Min. wymiary działki | 24.9 m / 25 m |
| Wysokość budynku | 6.49 m |
| Szerokość zabudowy | 16.90 m |
| Długość zabudowy | 18.00 m |
| Powierzchnia. tarasu | 42.50 m2 |
| Wysokość ścianki kolankowej | 85.00 cm |
| Podpiwniczenie (z piwnicą) | Nie |
| Kondygnacje | parterowy |
| Technologia | murowany |
| Garaż | dwustanowiskowy |
| Instalacje | elektryczne, gazowe, sanitarne, C.O |
| Rodzaj wentylacji | grawitacyjna |
| Dodatkowe informacje | kominek, pomieszczenie gospodarcze, pustka nad jadalnią, półotwarta kuchnia, garderoba, spiżarnia, pralnia |
Dane kosztorysowe
Poniższe koszty budowy są szacunkowe i mogą się różnić ze względu na:
- lokalizację (województwo)
- realizację (system zlecony lub gospodarczy)
od 478 238 zł netto - stan surowy zamknięty
od 997 555 zł netto - stan deweloperski
Do podanych cen należy doliczyć podatek VAT.
Szczegółowy kosztorys mogą Państwo zamówić przy składaniu zamówienia na projekt domu.
____
Data opracowania: II kw. 2023
Rzut sytuacyjny
zapytaj o projekt
Masz pytania odnośnie projektu Ka27 war.3 L?
Napisz do nas, chętnie pomożemy Ci wybrać idealny projekt domu
Napisz do nasWarianty projektu
Dodatki
| Dziennik budowy | 1,- |
| Tablica budowy | 1,- |
| Projekt wentylacji mechanicznej | 1200,- |
| Projekt pompy ciepła | 800,- |
| Kotłownia na paliwo stałe | 550,- |
| Pakiet szamba szczelnego | 300,- |
| Przydomowa oczyszczalnia ścieków | 500,- |
| Kosztorys inwestorski | 550,- |
| Dodatkowy papierowy egzemplarz projektu | 600,- |
Opis projektu
Ka27 war.3 to wyjątkowy projekt domu jednorodzinnego, który wraz z garażem dwustanowiskowym prezentuje bryłę w kształcie litery T. Zadaszone wejście do domu zostało w estetyczny sposób oddzielone od części garażowej z pomieszczeniem gospodarczym, stanowiącej jedno z ramion litery T. Jej trzon stanowi wydzielona przestronna strefa dzienna – to salon połączony z jadalnią i wyjściem na duży taras, oraz oddzielna, podłużna kuchnia wygodna do zaaranżowania, wraz z małą spiżarnią. Drugie ramię litery T w tym projekcie stanowi strefa nocna – trzy sypialnie z garderobą i dwiema łazienkami oraz pralnia. Ten gotowy projekt domu jest wyjątkowy z wielu powodów, a jednym z najważniejszych jest wspaniała antresola wydzielona nad salonem i jadalnią. Całość skryta została pod dwuspadowym dachem nachylonym pod kątem 30 stopni. Jest to wspaniały dom dla rodziny, która znajdzie w nim wszystkie pomieszczenia niezbędne do wygodnego życia, a przede wszystkim dużo swobodnej przestrzeni – powierzchnia użytkowa domu wynosi 193,41 m2.




