Rzuty projektu
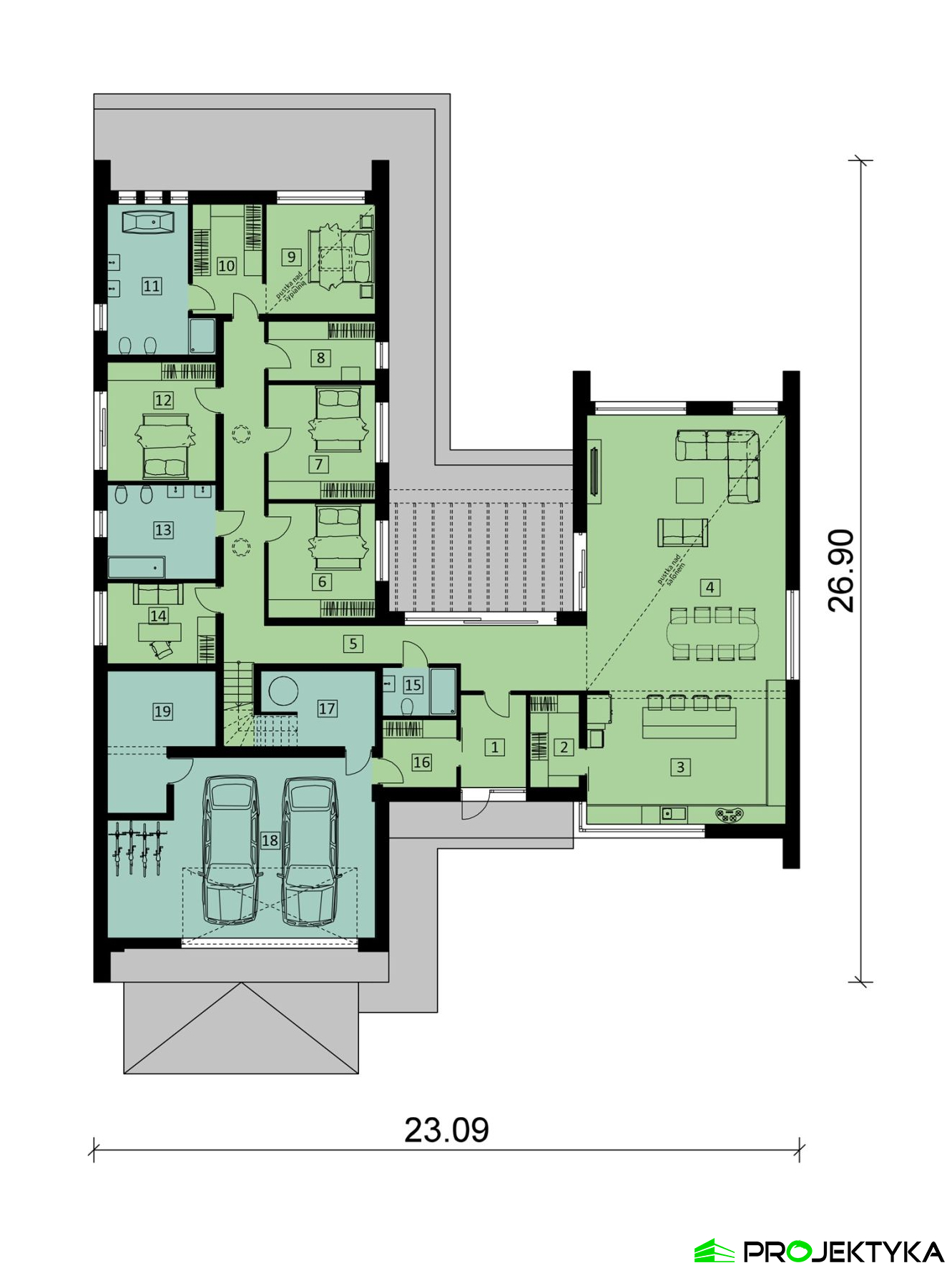
Rzut parteru
| Lp. | Pomieszczenie | Pow. pomieszczenia |
| 1 | wiatrołap | 6,56 m2 |
| 2 | spiżarnia | 4,96 m2 |
| 3 | kuchnia | 27,67 m2 |
| 4 | salon + jadalnia | 59,57 m2 |
| 5 | korytarz | 34,26 m2 |
| 6 | sypialnia | 13,16 m2 |
| 7 | sypialnia | 13,16 m2 |
| 8 | pralnia | 6,83 m2 |
| 9 | sypialnia | 12,82 m2 |
| 10 | garderoba | 8,26 m2 |
| 11 | łazienka | 14,21 m2 |
| 12 | sypialnia | 13,85 m2 |
| 13 | łazienka | 11,00 m2 |
| 14 | gabinet | 9,43 m2 |
| 15 | WC | 3,89 m2 |
| 16 | garderoba | 5,42 m2 |
| Pow. | mieszkalna | 245,05m2 |
| 17 | pom. gospodarcze | 8,90 m2 |
| 18 | garaż | 47,31 m2 |
| 19 | pom. gospodarcze | 13,08 m2 |
| Pow. | użytkowa | 314,34 m2 |
| Lp. | Pomieszczenie | Pow. pomieszczenia |
| 1 | wiatrołap | 6,56 m2 |
| 2 | spiżarnia | 4,96 m2 |
| 3 | kuchnia | 27,67 m2 |
| 4 | salon + jadalnia | 59,57 m2 |
| 5 | korytarz | 34,26 m2 |
| 6 | sypialnia | 13,16 m2 |
| 7 | sypialnia | 13,16 m2 |
| 8 | pralnia | 6,83 m2 |
| 9 | sypialnia | 12,82 m2 |
| 10 | garderoba | 8,26 m2 |
| 11 | łazienka | 14,21 m2 |
| 12 | sypialnia | 13,85 m2 |
| 13 | łazienka | 11,00 m2 |
| 14 | gabinet | 9,43 m2 |
| 15 | WC | 3,89 m2 |
| 16 | garderoba | 5,42 m2 |
| Pow. | mieszkalna | 245,05m2 |
| 17 | pom. gospodarcze | 8,90 m2 |
| 18 | garaż | 47,31 m2 |
| 19 | pom. gospodarcze | 13,08 m2 |
| Pow. | użytkowa | 314,34 m2 |
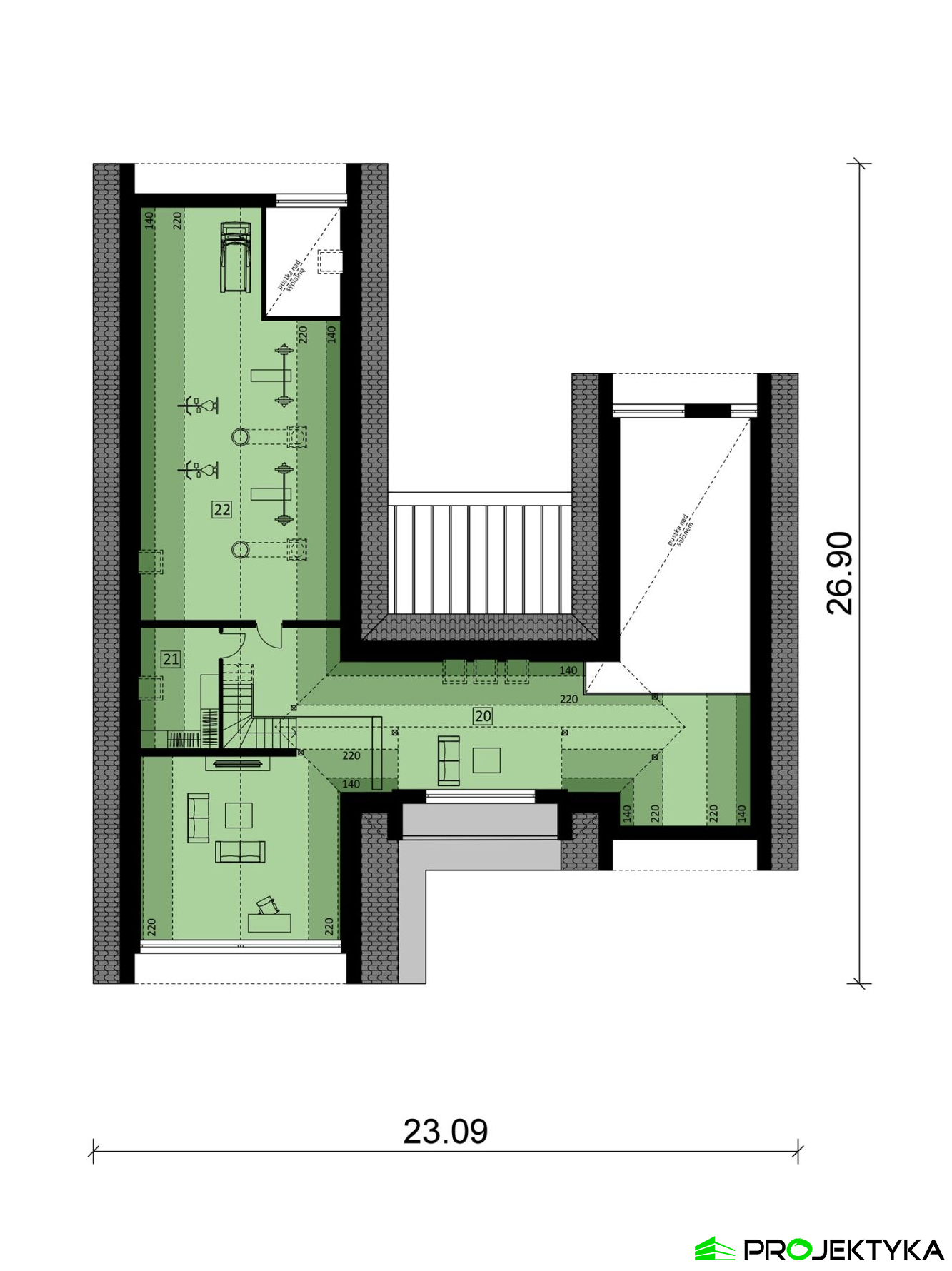
Rzut poddasza
| Lp. | Pomieszczenie | Pow. pomieszczenia | Pow. podłogi |
| 20 | antresola | 75,14 m2 | 136,27 m2 |
| 21 | garderoba | 6,44 m2 | 14,65 m2 |
| 22 | siłownia | 56,87 m2 | 105,06 m2 |
| Pow. | mieszkalna | 138,45 m2 | 255,98 m2 |
| Lp. | Pomieszczenie | Pow. pomieszczenia | Pow. podłogi |
| 20 | antresola | 75,14 m2 | 136,27 m2 |
| 21 | garderoba | 6,44 m2 | 14,65 m2 |
| 22 | siłownia | 56,87 m2 | 105,06 m2 |
| Pow. | mieszkalna | 138,45 m2 | 255,98 m2 |
Wszystkie parametry
| Powierzchnia mieszkalna | 383.5 m2 |
| Pow. zabudowy | 386.65 m2 |
| Liczba pokoi | 6 |
| Liczba łazienek | 4 |
| Liczba sypialni | 5 |
| Ogrzewanie | pompa ciepła |
| Poddasze | użytkowe |
| Wysokość parteru | 2.77 m |
| Wysokość poddasza | 2.59 m |
| Dach | dwuspadowy |
| Rodzaj zabudowy | wolnostojący |
| Pokrycie dachu | blacha na rąbek |
| Kąt nachylenia dachu | 40° |
| Powierzchnia dachu | 663.00 m2 |
| Powierzchnia całkowita | 702.73 m2 |
| Min. wymiary działki | 31.09 m / 33.58 m |
| Wysokość budynku | 8 m |
| Szerokość zabudowy | 23.09 m |
| Długość zabudowy | 26.90 m |
| Powierzchnia. tarasu | 85.00 m2 |
| Wysokość ścianki kolankowej | 1.01 cm |
| Podpiwniczenie (z piwnicą) | Nie |
| Kondygnacje | parterowy z poddaszem |
| Technologia | murowany |
| Garaż | dwustanowiskowy |
| Instalacje | elektryczne, sanitarne, C.O |
| Rodzaj wentylacji | mechaniczna |
| Dodatkowe informacje | pomieszczenie gospodarcze, antresola, gabinet, garderoba, spiżarnia, pralnia, siłownia |
Rzut sytuacyjny
zapytaj o projekt
Masz pytania odnośnie projektu Ka295 T ?
Napisz do nas, chętnie pomożemy Ci wybrać idealny projekt domu
Napisz do nasDodatki
| Dziennik budowy | 1,- |
| Tablica budowy | 1,- |
| Kotłownia na paliwo stałe | 550,- |
| Projekt ogrzewania gazowego | 600,- |
| Pakiet szamba szczelnego | 300,- |
| Przydomowa oczyszczalnia ścieków | 500,- |
| Kosztorys inwestorski | 550,- |
| Dodatkowy papierowy egzemplarz projektu | 600,- |
Opis projektu
Gotowy projekt domu Ka295 T to imponujący, nowoczesny dom o powierzchni mieszkalnej 383,5 m², zaprojektowany jako budynek parterowy z poddaszem użytkowym. Budynek ma efektowną, elegancką bryłę, dwuspadowy dach z kątem nachylenia 40°, dwustanowiskowy garaż i zaprojektowany jest technologii murowanej.
Układ przestrzenny został starannie zaprojektowany: na parterze znajdują się przestronny salon połączony z jadalnią o powierzchni około 59,60 m², otwarta kuchnia ze spiżarnią, cztery sypialnie, w tym jedna z własną łazienką i garderobą, gabinet, ogólnodostępna garderoba i duża łazienka oraz wiatrołap z garderobą z przejściem do garażu i pomieszczenia gospodarczego.
Na poddaszu znajduje się antresola, duża siłownia oraz garderoba, co wpisuje się w potrzeby nowoczesnych rodzin lub osób szukających przestrzeni do pracy, rekreacji i relaksu w domu.
To propozycja dla inwestorów, którzy oczekują domu o reprezentacyjnym charakterze, bogatej funkcjonalności i wysokim standardzie wykonania.




