Ka29 war.1 Sz

Gotowy projekt domu parterowego Ka29 war.1 Sz, to nowoczesne spojrzenie na budownictwo jednorodzinne. Minimalistyczna kubatura budynku, została oparta na geometrycznych kształtach. Elewacja zostanie wykonana z tynku strukturalnego lub betonu architektonicznego w kolorze białym, natomiast oryginalny wygląd zapewnia bardzo modna okładzina drewniana. Gotowy projekt domu parterowego zostanie wykonany w technologii drewnianej, zaś jego podstawą staną się tradycyjne ławy fundamentowe. Jako materiał ko... Pełny opis

Ka29 war.1 Sz

Oczekiwanie na projekt: 2 dni

5149,-

kup projekt
ulubione
porównaj
drukuj
Pow. mieszkalna 166.13 m2
Pow. zabudowy 259.49 m2
Wysokość budynku 4.3 m
Główny kąt dachu
Min. wymiary działki 26.02 m / 29.14 m
Kondygnacje parterowy
Technologia szkieletowy drewniany
Garaż dwustanowiskowy

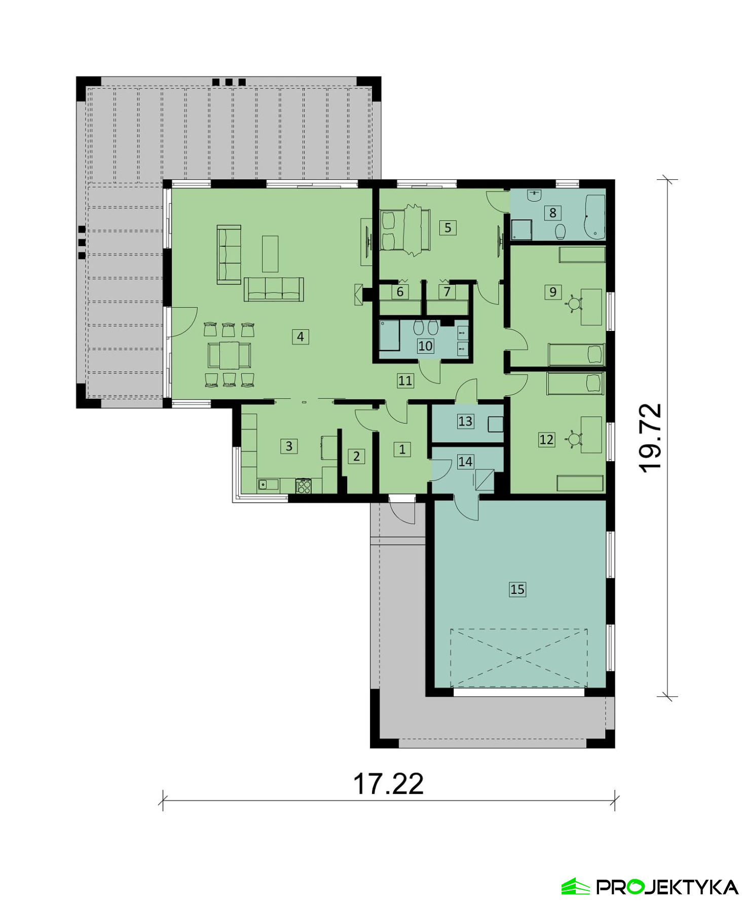
Rzuty projektu

Rzut parteru

rzut-karta-domu
Lp.PomieszczeniePow. pomieszczenia
1wiatrołap6,34 m2
2spiżarnia3,91 m2
3kuchnia12,73 m2
4salon + jadalnia61,58 m2
5sypialnia16,66 m2
6garderoba1,94 m2
7garderoba1,94 m2
8łazienka7,36 m2
9sypialnia17,02 m2
10łazienka5,04 m2
11korytarz10,45 m2
12sypialnia17,13 m2
13pralnia4,03 m2
Pow.mieszkalna166,13 m2
14pom. gospodarcze4,65 m2
15garaż46,89 m2
Pow.użytkowa217,67 m2
Lp.PomieszczeniePow. pomieszczenia
1wiatrołap6,34 m2
2spiżarnia3,91 m2
3kuchnia12,73 m2
4salon + jadalnia61,58 m2
5sypialnia16,66 m2
6garderoba1,94 m2
7garderoba1,94 m2
8łazienka7,36 m2
9sypialnia17,02 m2
10łazienka5,04 m2
11korytarz10,45 m2
12sypialnia17,13 m2
13pralnia4,03 m2
Pow.mieszkalna166,13 m2
14pom. gospodarcze4,65 m2
15garaż46,89 m2
Pow.użytkowa217,67 m2

Wszystkie parametry

Powierzchnia mieszkalna 166.13 m2
Pow. zabudowy 259.49 m2
Liczba pokoi 4
Liczba łazienek 2
Liczba sypialni 3
Ogrzewanie gazowe
Poddasze brak
Wysokość parteru 2.98 m
Dach płaski
Rodzaj zabudowy wolnostojący
Pokrycie dachu papa
Kąt nachylenia dachu
Powierzchnia dachu 260.00 m2
Powierzchnia całkowita 255.98 m2
Min. wymiary działki 26.02 m / 29.14 m
Wysokość budynku 4.3 m
Szerokość zabudowy 17.22 m
Długość zabudowy 19.72 m
Powierzchnia. tarasu 74.32 m2
Podpiwniczenie (z piwnicą) Nie
Kondygnacje parterowy
Technologia szkieletowy drewniany
Garaż dwustanowiskowy
Instalacje elektryczne, gazowe, sanitarne, C.O
Rodzaj wentylacji grawitacyjna
Dodatkowe informacje kominek, pomieszczenie gospodarcze, półotwarta kuchnia, garderoba, spiżarnia, pralnia, master bedroom

Elewacje

Rzut sytuacyjny

Lokalizacja budynku
Fundamenty: ławy fundamentowe, stopy fundamentowe
Ściany zewnętrzne: drewno konstrukcyjne, płyta wiórowa, wełna mineralna
Strop: pas dolny dźwigara prefabrykowanego MiTek
Elewacje: tynk cienkowarstwowy, okładzina elewacyjna
Ka29 war.1 Sz

zapytaj o projekt

Masz pytania odnośnie projektu Ka29 war.1 Sz ?

Napisz do nas, chętnie pomożemy Ci wybrać idealny projekt domu

Napisz do nas

Warianty projektu

Dodatki

Dziennik budowy 1,-
Tablica budowy 1,-
Projekt wentylacji mechanicznej 1200,-
Projekt pompy ciepła 800,-
Kotłownia na paliwo stałe 550,-
Pakiet szamba szczelnego 300,-
Przydomowa oczyszczalnia ścieków 500,-
Kosztorys inwestorski 550,-
Dodatkowy papierowy egzemplarz projektu 600,-

Opis projektu

Gotowy projekt domu parterowego Ka29 war.1 Sz, to nowoczesne spojrzenie na budownictwo jednorodzinne. Minimalistyczna kubatura budynku, została oparta na geometrycznych kształtach. Elewacja zostanie wykonana z tynku strukturalnego lub betonu architektonicznego w kolorze białym, natomiast oryginalny wygląd zapewnia bardzo modna okładzina drewniana. Gotowy projekt domu parterowego zostanie wykonany w technologii drewnianej, zaś jego podstawą staną się tradycyjne ławy fundamentowe. Jako materiał konstrukcyjny ścian zewnętrznych przewidujemy szkielet drewniany z drewna KVH, docieplane wełną mineralną.
Gotowy projekt domu parterowego przewiduje wykonanie dwustanowiskowego przestronnego garażu od frontowej strony budynku, z którego poprzez pomieszczenie gospodarcze możemy przejść do wiatrołapu. Gotowy projekt domu jednorodzinnego dzieli powierzchnię budynku na dwie strefy tj. dzienną oraz nocną.
W pierwszej stworzono kuchnię o powierzchni blisko 13 m2, z półotwartą podręczną spiżarnią. Ponadto gotowy projekt domu parterowego obejmuje przestronną jadalnie oraz salon, które zostaną otoczone dużym zadaszonym tarasem z widokiem na ogród. W miejscu połączenia strefy dziennej i nocnej znajdziemy łazienkę wyposażoną w; prysznic, dwie umywalki, toaletę i bidet oraz bardzo praktyczną pralnię.
Gotowy projekt domu parterowego w strefie nocnej, zakłada stworzenie sypialni dla rodziców z dwiema garderobami oraz prywatną łazienką. Ponadto znajdziemy w niej dwa pokoje dla dzieci o powierzchni blisko 18 m2 każdy.  

zapytaj o projekt

Masz pytania odnośnie projektu Ka29 war.1 Sz ?

Napisz do nas, chętnie pomożemy Ci wybrać idealny projekt domu

Napisz do nas
c4ca4238a0b923820dcc509a6f75849b