Ka35 Sz

Ka35 Sz to nowoczesny projekt domu piętrowego dla 4-5 osobowej rodziny. Elewacja budynku składa się z tynku cienkowarstwowego, bazując na geometrycznych kształtach oraz kontrastowych barwach, podkreślających modernistyczny charakter projektu. Dodatkowo umieszczenie dużych okien, zapewnia idealne oświetlenie wszystkich pomieszczeń obejmujących gotowy projekt domu jednorodzinnego. Wejście do domu prowadzi przez wiatrołap, z którego również bezpośrednio możemy przejść do jednostanowiskowego przestr... Pełny opis

Ka35 Sz

Oczekiwanie na projekt: 2 dni

4769,10 5299,-

Najniższa cena z 30 dni przed obniżką: 5299

kup projekt
ulubione
porównaj
drukuj
Pow. mieszkalna 123.76 m2
Pow. zabudowy 119.76 m2
Wysokość budynku 8.07 m
Główny kąt dachu 20°
Min. wymiary działki 20.71 m / 18.98 m
Kondygnacje piętrowy
Technologia szkielet drewniany (ściana otwarta dyfuzyjnie)
Garaż jednostanowiskowy

Rzuty projektu

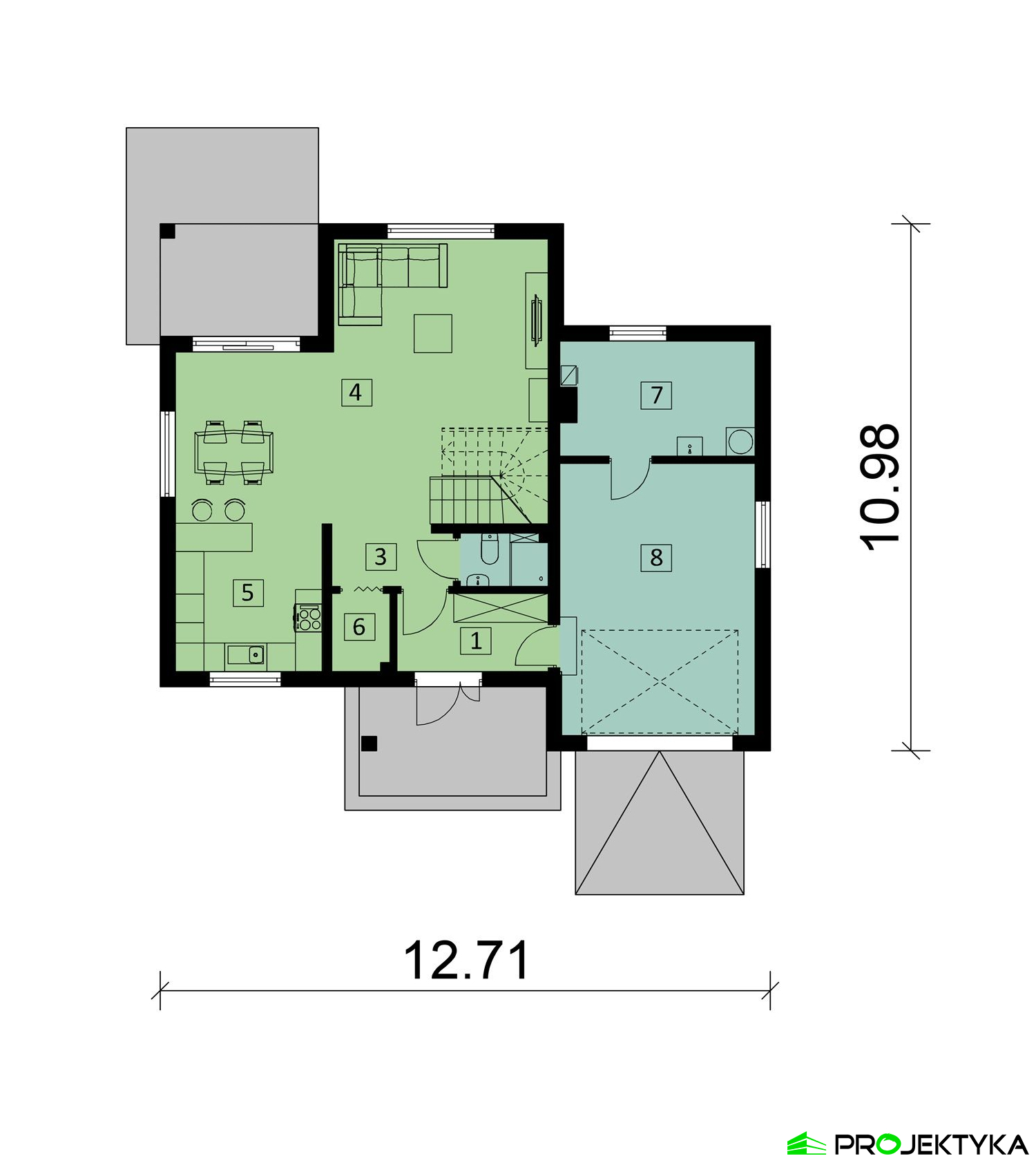
Rzut parteru

rzut-karta-domu
Lp.PomieszczeniePow. pomieszczeniaPow. podłogi
1wiatrołap5,15 m25,15 m2
2WC2,00 m22,00 m2
3korytarz3,22 m23,22 m2
4salon + jadalnia38,19 m240,59 m2
5kuchnia9,44 m29,44 m2
6schowek1,95 m21,95 m2
Pow.mieszkalna59,95 m262,35 m2
7pom. gospodarcze9,51 m29,51 m2
8garaż23,06 m223,06 m2
Pow.użytkowa92,52 m294,92 m2
Lp.PomieszczeniePow. pomieszczeniaPow. podłogi
1wiatrołap5,15 m25,15 m2
2WC2,00 m22,00 m2
3korytarz3,22 m23,22 m2
4salon + jadalnia38,19 m240,59 m2
5kuchnia9,44 m29,44 m2
6schowek1,95 m21,95 m2
Pow.mieszkalna59,95 m262,35 m2
7pom. gospodarcze9,51 m29,51 m2
8garaż23,06 m223,06 m2
Pow.użytkowa92,52 m294,92 m2

Rzut piętra

rzut-karta-domu
Lp.PomieszczeniePow. pomieszczenia
9korytarz8,60 m2
10sypialnia15,51 m2
11sypialnia13,41 m2
12garderoba4,44 m2
13sypialnia12,03 m2
14łazienka9,82 m2
Pow.mieszkalna63,81 m2
Lp.PomieszczeniePow. pomieszczenia
9korytarz8,60 m2
10sypialnia15,51 m2
11sypialnia13,41 m2
12garderoba4,44 m2
13sypialnia12,03 m2
14łazienka9,82 m2
Pow.mieszkalna63,81 m2

Wszystkie parametry

Powierzchnia mieszkalna 123.76 m2
Pow. zabudowy 119.76 m2
Liczba pokoi 4
Liczba łazienek 2
Liczba sypialni 3
Ogrzewanie gazowe
Poddasze brak
Wysokość parteru 2.70 m
Wysokość piętra 2.65 m
Dach czterospadowy
Rodzaj zabudowy wolnostojący
Pokrycie dachu blachodachówka, dachówka
Kąt nachylenia dachu 20°
Powierzchnia dachu 200.00 m2
Powierzchnia całkowita 193.33 m2
Min. wymiary działki 20.71 m / 18.98 m
Wysokość budynku 8.07 m
Szerokość zabudowy 12.71 m
Długość zabudowy 10.98 m
Podpiwniczenie (z piwnicą) Nie
Kondygnacje piętrowy
Technologia szkielet drewniany (ściana otwarta dyfuzyjnie)
Garaż jednostanowiskowy
Instalacje elektryczne, gazowe, sanitarne, C.O
Rodzaj wentylacji grawitacyjna
Dodatkowe informacje kominek, pomieszczenie gospodarcze, garderoba, schowek

Elewacje

Rzut sytuacyjny

Lokalizacja budynku
Fundamenty: ławy fundamentowe, stopy fundamentowe
Ściany zewnętrzne: szkielet drewniany docieplany wełną mineralną
Strop: drewniany nad parterem, nad piętrem dolny pas wiązara kratowego mitek
Elewacje: tynk cienkowarstwowy
Ka35 Sz

zapytaj o projekt

Masz pytania odnośnie projektu Ka35 Sz ?

Napisz do nas, chętnie pomożemy Ci wybrać idealny projekt domu

Napisz do nas

Warianty projektu

Dodatki

Dziennik budowy 1,-
Tablica budowy 1,-
Projekt wentylacji mechanicznej 1200,-
Projekt pompy ciepła 800,-
Kotłownia na paliwo stałe 550,-
Projekt ogrzewania podłogowego 500,-
Pakiet szamba szczelnego 300,-
Przydomowa oczyszczalnia ścieków 500,-
Kosztorys inwestorski 550,-
Dodatkowy papierowy egzemplarz projektu 600,-

Opis projektu

Ka35 Sz to nowoczesny projekt domu piętrowego dla 4-5 osobowej rodziny. Elewacja budynku składa się z tynku cienkowarstwowego, bazując na geometrycznych kształtach oraz kontrastowych barwach, podkreślających modernistyczny charakter projektu. Dodatkowo umieszczenie dużych okien, zapewnia idealne oświetlenie wszystkich pomieszczeń obejmujących gotowy projekt domu jednorodzinnego. 
Wejście do domu prowadzi przez wiatrołap, z którego również bezpośrednio możemy przejść do jednostanowiskowego przestronnego garażu sąsiadującego z kotłownią. Takie wydzielenie pomieszczeń gwarantuje, izolację części dziennej domu od nieprzyjemnych zapachów lub strat ciepła. Wiatrołap został zlokalizowany w pobliżu łazienki dla gości. Strefa dzienna to przestronne i bardzo dobrze oświetlone pomieszczenie o powierzchni blisko 61 m2. Zawiera duży salon z jadalnią oraz kuchnię z dużym blatem roboczym. Nowoczesny projekt domu piętrowego został również powiększony o zadaszony taras z widokiem na ogród. Ponadto bardzo praktycznym rozwiązaniem pozostaje również, wykonanie schowka na najpotrzebniejsze narzędzia gospodarcze.
Gotowy projekt domu jednorodzinnego przewiduje wykonanie piętra, na które prowadzą schody usytuowane przy ścianie garażu, aby zapewnić maksymalne wykorzystanie powierzchni użytkowej. Strefa nocna składa się, z 3 sypialni oraz dużej garderoby, która pozwala na przechowanie ubrań oraz obuwia, dzięki czemu zaoszczędzimy miejsce w pozostałych pomieszczeniach domu. Nowoczesny projekt domu piętrowego przewiduje również wykonanie dużej łazienki dla domowników, która składa się z wanny, prysznica, dwóch umywalek oraz toalety i bidetu. Całkowita powierzchnia piętra wynosi blisko 66 m2.  Wysokość parteru: w garażu i kotłowni 2,85 m. Jest to projekt koncepcyjny. Podane wymiary zewnętrzne oraz wewnątrzne są orientacyjne i mogą różnić się o ok. +10%.

zapytaj o projekt

Masz pytania odnośnie projektu Ka35 Sz ?

Napisz do nas, chętnie pomożemy Ci wybrać idealny projekt domu

Napisz do nas
c4ca4238a0b923820dcc509a6f75849b