Ka46 Sz

Ka46 to gotowy projekt domu parterowego z garażem. Nowoczesna kubatura, została podkreślona kamienną okładziną oraz białą i grafitową elewacją. Dodatkowo, zadaszony taras zlokalizowany w narożniku domu, zapewni odpoczynek w ciepłe dni.Gotowy projekt domu parterowego posiada zadaszone wejście główne prowadzące do wiatrołapu. Powierzchnia domu wynosi blisko 120 m2, co pozwoliło na wydzielenie strefy dziennej i nocnej. Dzięki czemu mieszkańcy będą mieli zapewniony komfort przez cały dzie... Pełny opis

Ka46 Sz

Oczekiwanie na projekt: 21 dni

4649,- 5149,-

Najniższa cena z 30 dni przed obniżką: 5149

kup projekt
ulubione
porównaj
drukuj
Pow. mieszkalna 120.5 m2
Wysokość budynku 4.45 m
Główny kąt dachu
Min. wymiary działki 22.85 m / 23.59 m
Kondygnacje parterowy
Technologia szkieletowy drewniany
Garaż jednostanowiskowy

Rzuty projektu

Rzut

rzut-karta-domu
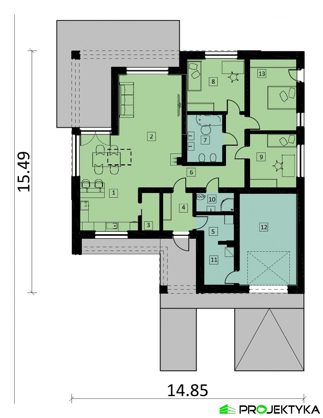
LpNazwa pomieszczeniaPow. użytkowa
1 kuchnia 10,54 m2
2 salon 38,66 m2
3 spiżarnia 3,12 m2
4 wiatrołap 5,04 m2
5 pralnia 4,11 m2
6 korytarz 10,27 m2
7 łazienka 7,41 m2
8 sypialnia 13,00 m2
9 sypialnia 10,83 m2
10 WC 3,26 m2
13 sypialnia 14,26 m2
Pow. użytkowa 120,50 m2
11 pom. gospodarcze 5,41 m2
12 garaż 21,54 m2
Pow. razem 147,45 m2
LpNazwa pomieszczeniaPow. użytkowa
1 kuchnia 10,54 m2
2 salon 38,66 m2
3 spiżarnia 3,12 m2
4 wiatrołap 5,04 m2
5 pralnia 4,11 m2
6 korytarz 10,27 m2
7 łazienka 7,41 m2
8 sypialnia 13,00 m2
9 sypialnia 10,83 m2
10 WC 3,26 m2
13 sypialnia 14,26 m2
Pow. użytkowa 120,50 m2
11 pom. gospodarcze 5,41 m2
12 garaż 21,54 m2
Pow. razem 147,45 m2

Wszystkie parametry

Powierzchnia mieszkalna 120.5 m2
Liczba pokoi 4
Liczba łazienek 2
Liczba sypialni 3
Ogrzewanie gazowe
Poddasze brak
Wysokość parteru 2.76 m
Dach Jednospadowy
Rodzaj zabudowy wolnostojący
Pokrycie dachu papa
Kąt nachylenia dachu
Powierzchnia dachu 190.91 m2
Powierzchnia całkowita 147.45 m2
Min. wymiary działki 22.85 m / 23.59 m
Wysokość budynku 4.45 m
Szerokość zabudowy 14.85 m
Długość zabudowy 15.59 m
Podpiwniczenie (z piwnicą) Nie
Kondygnacje parterowy
Technologia szkieletowy drewniany
Garaż jednostanowiskowy
Instalacje elektryczne, gazowe, sanitarne, C.O
Rodzaj wentylacji grawitacyjna
Dodatkowe informacje kominek

Elewacje

Rzut sytuacyjny

Lokalizacja budynku
Fundamenty: żelbetowe
Ściany zewnętrzne: szkielet drewniany z drewna KVH, docieplane wełną mineralną
Strop: drewniany - dolny pas wiązara kratowego MiTek
Elewacje: tynk strukturalny
Ka46 Sz

zapytaj o projekt

Masz pytania odnośnie projektu Ka46 Sz ?

Napisz do nas, chętnie pomożemy Ci wybrać idealny projekt domu

Napisz do nas

Warianty projektu

Dodatki

Dziennik budowy 1,-
Tablica budowy 1,-
Projekt wentylacji mechanicznej 1200,-
Projekt pompy ciepła 800,-
Kotłownia na paliwo stałe 550,-
Projekt ogrzewania podłogowego 500,-
Pakiet szamba szczelnego 300,-
Przydomowa oczyszczalnia ścieków 500,-
Kosztorys inwestorski 550,-

Opis projektu

Ka46 to gotowy projekt domu parterowego z garażem. Nowoczesna kubatura, została podkreślona kamienną okładziną oraz białą i grafitową elewacją. Dodatkowo, zadaszony taras zlokalizowany w narożniku domu, zapewni odpoczynek w ciepłe dni.
Gotowy projekt domu parterowego posiada zadaszone wejście główne prowadzące do wiatrołapu. Powierzchnia domu wynosi blisko 120 m2, co pozwoliło na wydzielenie strefy dziennej i nocnej. Dzięki czemu mieszkańcy będą mieli zapewniony komfort przez cały dzień.
Gotowy projekt domu parterowego w strefie dziennej składa się z, otwartej kuchni, spiżarni oraz salonu z jadalnią. Dodatkowo znajdziemy w niej łazienkę dla gości, pralnię i odrębne przejście do garażu, które zapobiega nieprzyjemnym zapachom.
Strefa nocna w gotowy projekt domu parterowego składa się z, dużej łazienki dla mieszkańców. Znajdziemy w niej miejsce na wannę, WC, bidet oraz dwie umywalki. Ponadto gotowy projekt domu parterowego przewiduje wykonanie 3 sypialni, w których z powodzeniem zmieści się łóżko, szafa oraz biurka dla dzieci.  Jest to projekt koncepcyjny. Podane wymiary zewnętrzne oraz wewnątrzne są orientacyjne i mogą różnić się o ok. +10%.

zapytaj o projekt

Masz pytania odnośnie projektu Ka46 Sz ?

Napisz do nas, chętnie pomożemy Ci wybrać idealny projekt domu

Napisz do nas
c4ca4238a0b923820dcc509a6f75849b