Rzuty projektu
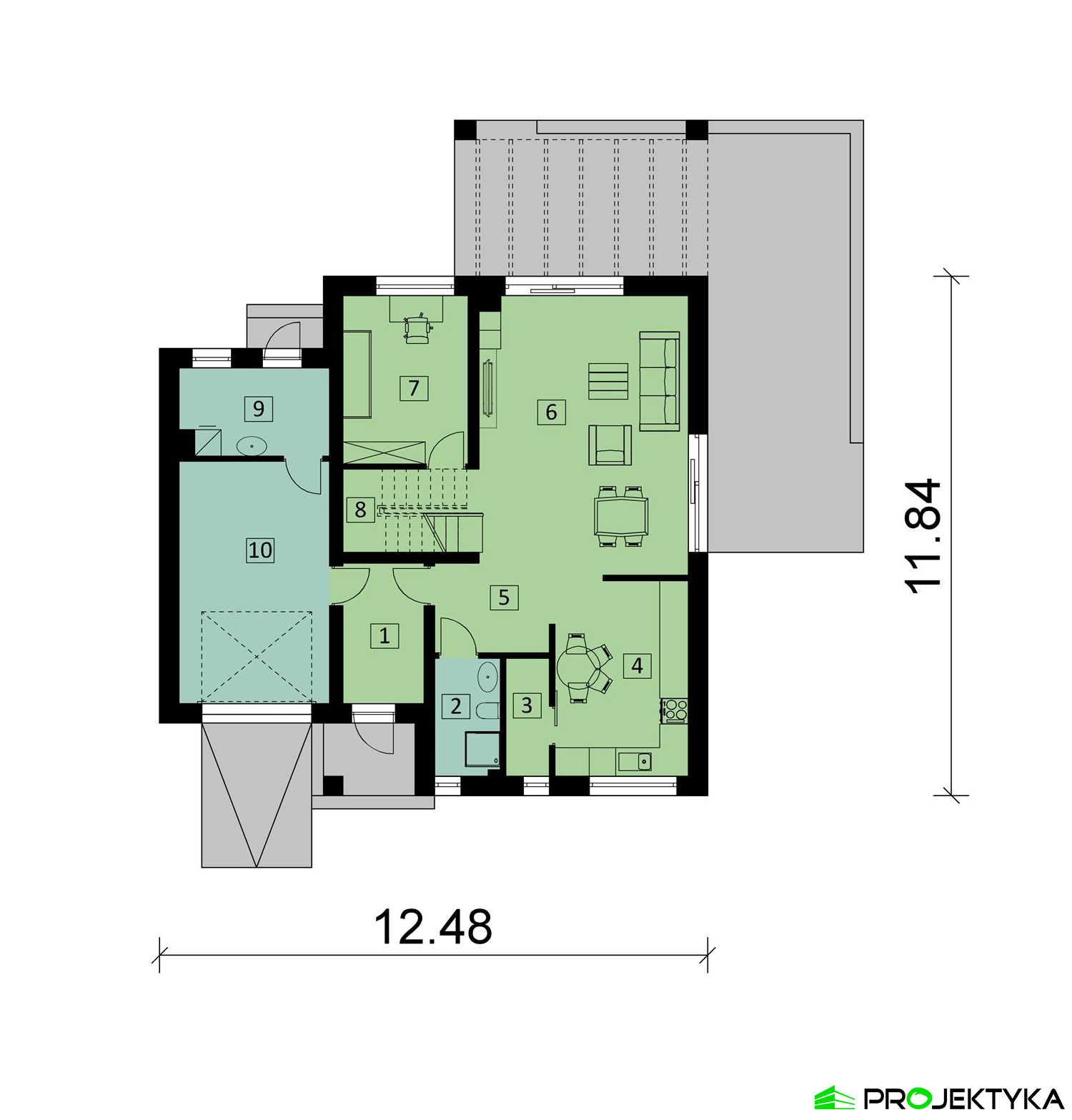
Rzut parteru
| Lp. | Pomieszczenie | Pow. pomieszczenia | Pow. podłogi |
| 1 | wiatrołap | 5,94 m2 | 5,94 m2 |
| 2 | łazienka | 3,99 m2 | 3,99 m2 |
| 3 | spiżarnia | 2,69 m2 | 2,69 m2 |
| 4 | kuchnia | 13,56 m2 | 13,56 m2 |
| 5 | korytarz | 5,19 m2 | 5,19 m2 |
| 6 | salon + jadalnia | 30,45 m2 | 30,45 m2 |
| 7 | pokój | 10,98 m2 | 10,98 m2 |
| 8 | schody | 5,13 m2 | 8,60 m2 |
| Pow. | mieszkalna | 77,93 m2 | 81,40 m2 |
| 9 | pom. gospodarcze | 6,68 m2 | 6,68 m2 |
| 10 | garaż | 18,97 m2 | 18,97 m2 |
| Pow. | użytkowa | 103,58 m2 | 107,05 m2 |
| Lp. | Pomieszczenie | Pow. pomieszczenia | Pow. podłogi |
| 1 | wiatrołap | 5,94 m2 | 5,94 m2 |
| 2 | łazienka | 3,99 m2 | 3,99 m2 |
| 3 | spiżarnia | 2,69 m2 | 2,69 m2 |
| 4 | kuchnia | 13,56 m2 | 13,56 m2 |
| 5 | korytarz | 5,19 m2 | 5,19 m2 |
| 6 | salon + jadalnia | 30,45 m2 | 30,45 m2 |
| 7 | pokój | 10,98 m2 | 10,98 m2 |
| 8 | schody | 5,13 m2 | 8,60 m2 |
| Pow. | mieszkalna | 77,93 m2 | 81,40 m2 |
| 9 | pom. gospodarcze | 6,68 m2 | 6,68 m2 |
| 10 | garaż | 18,97 m2 | 18,97 m2 |
| Pow. | użytkowa | 103,58 m2 | 107,05 m2 |
| Lp. | Pomieszczenie | Pow. pomieszczenia | Pow. podłogi |
| 1 | wiatrołap | 5,94 m2 | 5,94 m2 |
| 2 | łazienka | 3,99 m2 | 3,99 m2 |
| 3 | spiżarnia | 2,69 m2 | 2,69 m2 |
| 4 | kuchnia | 13,56 m2 | 13,56 m2 |
| 5 | korytarz | 5,19 m2 | 5,19 m2 |
| 6 | salon + jadalnia | 30,45 m2 | 30,45 m2 |
| 7 | pokój | 10,98 m2 | 10,98 m2 |
| 8 | schody | 5,13 m2 | 8,60 m2 |
| Pow. | mieszkalna | 77,93 m2 | 81,40 m2 |
| 9 | pom. gospodarcze | 6,68 m2 | 6,68 m2 |
| 10 | garaż | 18,97 m2 | 18,97 m2 |
| Pow. | użytkowa | 103,58 m2 | 107,05 m2 |
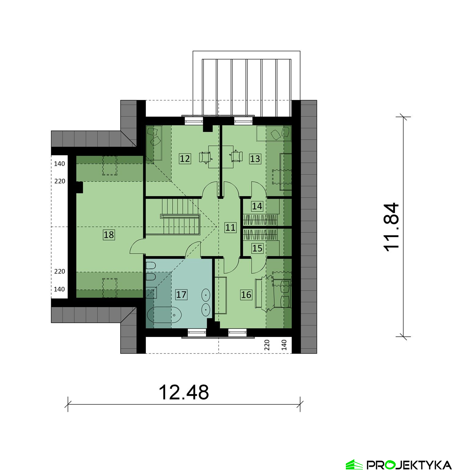
Rzut poddasza
| Lp. | Pomieszczenie | Pow. pomieszczenia | Pow. podłogi |
| 11 | korytarz + schody | 13,07 m2 | 13,07 m2 |
| 12 | sypialnia | 12,60 m2 | 15,16 m2 |
| 13 | sypialnia | 10,91 m2 | 14,42 m2 |
| 14 | garderoba | 2,57 m2 | 3,93 m2 |
| 15 | garderoba | 2,60 m2 | 3,96 m2 |
| 16 | sypialnia | 12,13 m2 | 15,58 m2 |
| 17 | łazienka | 10,82 m2 | 13,38 m2 |
| 18 | garderoba | 20,83 m2 | 27,44 m2 |
| Pow. | mieszkalna | 85,53 m2 | 106,94 m2 |
| Lp. | Pomieszczenie | Pow. pomieszczenia | Pow. podłogi |
| 11 | korytarz + schody | 13,07 m2 | 13,07 m2 |
| 12 | sypialnia | 12,60 m2 | 15,16 m2 |
| 13 | sypialnia | 10,91 m2 | 14,42 m2 |
| 14 | garderoba | 2,57 m2 | 3,93 m2 |
| 15 | garderoba | 2,60 m2 | 3,96 m2 |
| 16 | sypialnia | 12,13 m2 | 15,58 m2 |
| 17 | łazienka | 10,82 m2 | 13,38 m2 |
| 18 | garderoba | 20,83 m2 | 27,44 m2 |
| Pow. | mieszkalna | 85,53 m2 | 106,94 m2 |
| Lp. | Pomieszczenie | Pow. pomieszczenia | Pow. podłogi |
| 11 | korytarz + schody | 13,07 m2 | 13,07 m2 |
| 12 | sypialnia | 12,60 m2 | 15,16 m2 |
| 13 | sypialnia | 10,91 m2 | 14,42 m2 |
| 14 | garderoba | 2,57 m2 | 3,93 m2 |
| 15 | garderoba | 2,60 m2 | 3,96 m2 |
| 16 | sypialnia | 12,13 m2 | 15,58 m2 |
| 17 | łazienka | 10,82 m2 | 13,38 m2 |
| 18 | garderoba | 20,83 m2 | 27,44 m2 |
| Pow. | mieszkalna | 85,53 m2 | 106,94 m2 |
Wszystkie parametry
| Powierzchnia mieszkalna |
163.55 m2 |
| Pow. zabudowy |
135.89 m2 |
| Liczba pokoi |
5 |
| Liczba łazienek |
2 |
| Liczba sypialni |
3 |
| Ogrzewanie |
gazowe |
| Poddasze |
użytkowe |
| Wysokość parteru |
2.76 m |
| Wysokość poddasza |
2.88 m |
| Dach |
dwuspadowy |
| Rodzaj zabudowy |
wolnostojący |
| Pokrycie dachu |
blacha na rąbek |
| Kąt nachylenia dachu |
40° |
| Powierzchnia dachu |
238.20 m2 |
| Powierzchnia całkowita |
267.46 m2 |
| Min. wymiary działki |
20.53 m / 20.89 m |
| Wysokość budynku |
8.24 m |
| Szerokość zabudowy |
12.48 m |
| Długość zabudowy |
11.84 m |
| Powierzchnia. tarasu |
55.40 m2 |
| Wysokość ścianki kolankowej |
104.00 cm |
| Podpiwniczenie (z piwnicą) |
Nie |
| Kondygnacje |
parterowy z poddaszem |
| Technologia |
murowany |
| Garaż |
jednostanowiskowy |
| Instalacje |
elektryczne, gazowe, sanitarne, C.O |
| Rodzaj wentylacji |
grawitacyjna |
| Dodatkowe informacje |
kominek, pomieszczenie gospodarcze, dodatkowy pokój na parterze, półotwarta kuchnia, gabinet, garderoba, spiżarnia |
Rzut sytuacyjny
| Fundamenty: |
ławy fundamentowe, stopy fundamentowe |
| Ściany zewnętrzne: |
bloczki z betonu komórkowego 24 cm + styropian 20 cm |
| Strop: |
Teriva |
| Elewacje: |
tynk cienkowarstwowy, okładzina drewniana |
zapytaj o projekt
Masz pytania odnośnie projektu Ka52 war.3 ?
Napisz do nas, chętnie pomożemy Ci wybrać idealny projekt domu
Napisz do nas
Warianty projektu
Ka52 war.2
151.75m2
5749,-
Ka52 war.2 Sz
151.75m2
6099,-
Ka52 war.3 Sz
166.77m2
Najniższa cena z 30 dni przed obniżką: 6099
Opis projektu
Ka52 war.3 to gotowy projekt domu nowoczesnego, o wyjątkowej i niepowtarzalnej kubaturze. Murowana konstrukcja pokryta cienkowarstwowym tynkiem wykończonym drewnianą okładziną w przestrzeniach międzyokiennych, wyróżnia gotowy projekt domu nowoczesnego na tle innych dostępnych na rynku. Dodatkowym jego atutem jest jednostanowiskowy garaż, który dba o praktyczne aspekty całej inwestycji.
Gotowy projekt domu nowoczesnego w strefie dziennej wyróżnia półotwartą kuchnię wyposażoną w spiżarnię. Dodatkowo jadalnia połączona z salonem i bezpośrednim wyjściem na taras daje wrażenie nieograniczonej przestrzeni. Ponadto dużym atutem będzie dodatkowy pokój dla gości, który może służyć również, jako gabinet. Komfortowym i praktycznym rozwiązaniem jest pomieszczenie gospodarcze, które pozwoli nam na przechowywanie narzędzi ogrodniczych, rowerów oraz innych przedmiotów codziennego użytku.
Poddasze w gotowym projekcie domu nowoczesnego przeznaczono jako miejsce relaksu mieszkańców. Znajdziemy tu cztery przestronne sypialnie oraz łazienkę dla mieszkańców. Duża garderoba zaplanowana na poddaszu domu o powierzchni blisko 21 m2 pozwoli na swobodne przechowywanie odzieży oraz wielu innych rzeczy.