Rzuty projektu
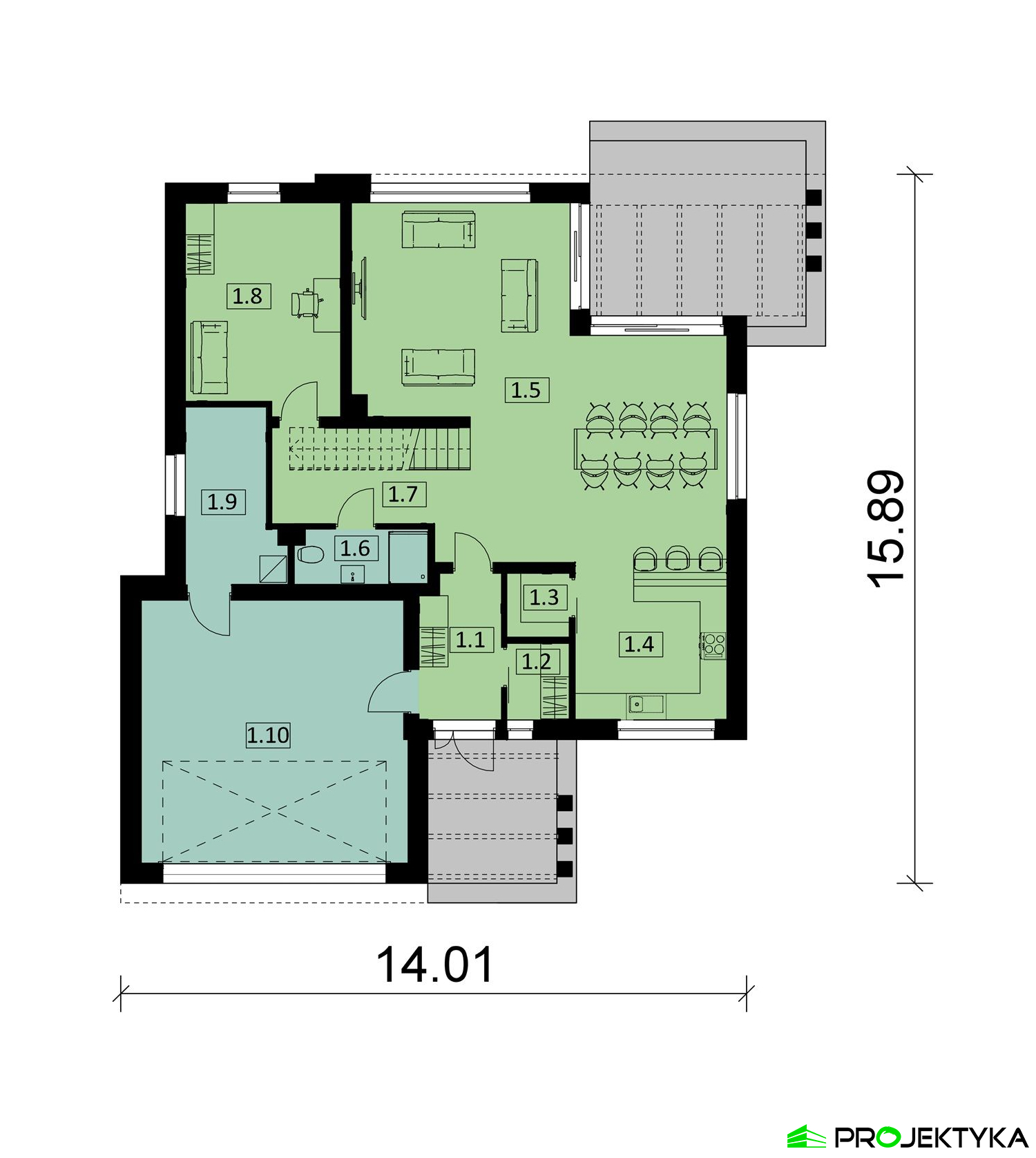
Rzut parteru
| Lp. | Pomieszczenie | Pow. pomieszczenia | Pow. podłogi |
| 1 | wiatrołap | 5,85 m2 | 5,85 m2 |
| 2 | garderoba | 2,42 m2 | 2,42 m2 |
| 3 | spiżarnia | 2,04 m2 | 2,04 m2 |
| 4 | kuchnia | 12,00 m2 | 12,00 m2 |
| 5 | salon | 50,18 m2 | 50,18 m2 |
| 6 | WC | 3,68 m2 | 3,68 m2 |
| 7 | holl + schody | 7,93 m2 | 10,27 m2 |
| 8 | gabinet | 16,02 m2 | 16,02 m2 |
| Pow. | mieszkalna | 100,12 m2 | 102,46 m2 |
| 9 | pom. gospodarcze | 7,80 m2 | 7,80 m2 |
| 10 | garaż | 35,12 m2 | 35,12 m2 |
| Pow. | użytkowa | 143,04 m2 | 145,38 m2 |
| Lp. | Pomieszczenie | Pow. pomieszczenia | Pow. podłogi |
| 1 | wiatrołap | 5,85 m2 | 5,85 m2 |
| 2 | garderoba | 2,42 m2 | 2,42 m2 |
| 3 | spiżarnia | 2,04 m2 | 2,04 m2 |
| 4 | kuchnia | 12,00 m2 | 12,00 m2 |
| 5 | salon | 50,18 m2 | 50,18 m2 |
| 6 | WC | 3,68 m2 | 3,68 m2 |
| 7 | holl + schody | 7,93 m2 | 10,27 m2 |
| 8 | gabinet | 16,02 m2 | 16,02 m2 |
| Pow. | mieszkalna | 100,12 m2 | 102,46 m2 |
| 9 | pom. gospodarcze | 7,80 m2 | 7,80 m2 |
| 10 | garaż | 35,12 m2 | 35,12 m2 |
| Pow. | użytkowa | 143,04 m2 | 145,38 m2 |
| Lp. | Pomieszczenie | Pow. pomieszczenia | Pow. podłogi |
| 1 | wiatrołap | 5,85 m2 | 5,85 m2 |
| 2 | garderoba | 2,42 m2 | 2,42 m2 |
| 3 | spiżarnia | 2,04 m2 | 2,04 m2 |
| 4 | kuchnia | 12,00 m2 | 12,00 m2 |
| 5 | salon | 50,18 m2 | 50,18 m2 |
| 6 | WC | 3,68 m2 | 3,68 m2 |
| 7 | holl + schody | 7,93 m2 | 10,27 m2 |
| 8 | gabinet | 16,02 m2 | 16,02 m2 |
| Pow. | mieszkalna | 100,12 m2 | 102,46 m2 |
| 9 | pom. gospodarcze | 7,80 m2 | 7,80 m2 |
| 10 | garaż | 35,12 m2 | 35,12 m2 |
| Pow. | użytkowa | 143,04 m2 | 145,38 m2 |
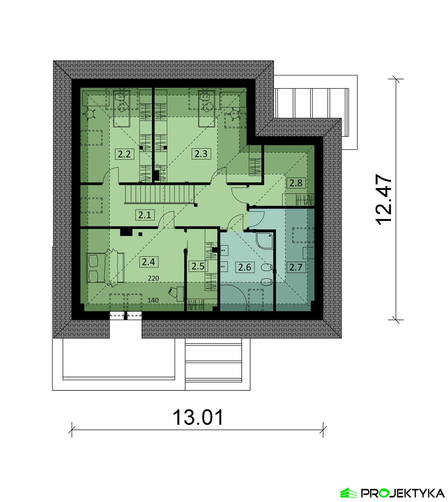
Rzut poddasza
| Lp. | Pomieszczenie | Pow. pomieszczenia | Pow. podłogi |
| 1 | holl + schody | 15,25 m2 | 17,30 m2 |
| 2 | sypialnia | 11,24 m2 | 18,27 m2 |
| 3 | sypialnia | 16,74 m2 | 24,86 m2 |
| 4 | sypialnia | 14,83 m2 | 22,74 m2 |
| 5 | garderoba | 5,25 m2 | 6,71 m2 |
| 6 | łazienka | 8,74 m2 | 11,38 m2 |
| 7 | pralnia | 6,46 m2 | 12,12 m2 |
| 8 | garderoba | 4,86 m2 | 9,15 m2 |
| Pow. | mieszkalna | 83,37 m2 | 122,53 m2 |
| Lp. | Pomieszczenie | Pow. pomieszczenia | Pow. podłogi |
| 1 | holl + schody | 15,25 m2 | 17,30 m2 |
| 2 | sypialnia | 11,24 m2 | 18,27 m2 |
| 3 | sypialnia | 16,74 m2 | 24,86 m2 |
| 4 | sypialnia | 14,83 m2 | 22,74 m2 |
| 5 | garderoba | 5,25 m2 | 6,71 m2 |
| 6 | łazienka | 8,74 m2 | 11,38 m2 |
| 7 | pralnia | 6,46 m2 | 12,12 m2 |
| 8 | garderoba | 4,86 m2 | 9,15 m2 |
| Pow. | mieszkalna | 83,37 m2 | 122,53 m2 |
| Lp. | Pomieszczenie | Pow. pomieszczenia | Pow. podłogi |
| 1 | holl + schody | 15,25 m2 | 17,30 m2 |
| 2 | sypialnia | 11,24 m2 | 18,27 m2 |
| 3 | sypialnia | 16,74 m2 | 24,86 m2 |
| 4 | sypialnia | 14,83 m2 | 22,74 m2 |
| 5 | garderoba | 5,25 m2 | 6,71 m2 |
| 6 | łazienka | 8,74 m2 | 11,38 m2 |
| 7 | pralnia | 6,46 m2 | 12,12 m2 |
| 8 | garderoba | 4,86 m2 | 9,15 m2 |
| Pow. | mieszkalna | 83,37 m2 | 122,53 m2 |
Wszystkie parametry
| Powierzchnia mieszkalna |
183.49 m2 |
| Pow. zabudowy |
178.59 m2 |
| Liczba pokoi |
5 |
| Liczba łazienek |
2 |
| Liczba sypialni |
4 |
| Ogrzewanie |
gazowe |
| Poddasze |
użytkowe |
| Wysokość parteru |
2.80 m |
| Wysokość poddasza |
2.50 m |
| Dach |
wielospadowy |
| Rodzaj zabudowy |
wolnostojący |
| Pokrycie dachu |
blachodachówka, dachówka |
| Kąt nachylenia dachu |
35° |
| Powierzchnia dachu |
236.00 m2 |
| Powierzchnia całkowita |
329.68 m2 |
| Min. wymiary działki |
21.01 m / 23.69 m |
| Wysokość budynku |
8 m |
| Szerokość zabudowy |
14.01 m |
| Długość zabudowy |
15.89 m |
| Powierzchnia. tarasu |
24.21 m2 |
| Wysokość ścianki kolankowej |
113.00 cm |
| Podpiwniczenie (z piwnicą) |
Nie |
| Kondygnacje |
parterowy z poddaszem |
| Technologia |
murowany |
| Garaż |
dwustanowiskowy |
| Instalacje |
elektryczne, gazowe, sanitarne, C.O |
| Rodzaj wentylacji |
grawitacyjna |
| Dodatkowe informacje |
kominek, pomieszczenie gospodarcze, dodatkowy pokój na parterze, gabinet, garderoba, spiżarnia, pralnia |
Rzut sytuacyjny
| Fundamenty: |
ławy fundamentowe, stopy fundamentowe |
| Ściany zewnętrzne: |
bloczki z betonu komórkowego 24 cm + styropian 20 cm |
| Strop: |
Teriva |
| Elewacje: |
tynk cienkowarstwowy, beton architektoniczny |
zapytaj o projekt
Masz pytania odnośnie projektu Ka61 ?
Napisz do nas, chętnie pomożemy Ci wybrać idealny projekt domu
Napisz do nas
Opis projektu
Ka61 to gotowy projekt domu jednorodzinnego idealny dla 5-6 osobowej rodziny. Nowoczesna kubatura podkreślona kamienną okładziną, wyróżnia go na tle innych domów. Dodatkowym atutem w gotowy projekt domu jednorodzinnego jest dwustanowiskowy garaż, w którym schronisz swoje auta przed zmiennymi warunkami atmosferycznymi.
Na parterze w gotowym projekcie domu jednorodzinnego wydzielono strefę dzienną. Znajdziemy tu duży salon połączony z jadalnią oraz otwartą kuchnię z wyspą, która podkreśla nowoczesność całego założenia. Dodatkowe pomieszczenie w pobliżu kuchni może zostać przeznaczone do przechowywania domowych przetworów. Gotowy projekt domu jednorodzinnego wzbogacony został o gabinet oraz łazienkę dla gości, dbając jednocześnie o praktyczny aspekt.
Gotowy projekt domu jednorodzinnego na piętrze domu przewiduje wykonanie dwóch pokoi dla dzieci oraz przestronnej sypialni dla gospodarzy domu. Dodatkowo została ona wyposażona w prywatną garderobę. Ponadto duża łazienka wraz z pralnią doda komfortu mieszkańcom.