Ka64

Ka64 to gotowy projekt domu jednorodzinnego utrzymany w nowoczesnym wzornictwie. Dodatkowo duże, narożne okna stanowić będą inspirację na etapie aranżacji wnętrz. Wyjątkową zaletą dla gospodarstw domowych dysponujących więcej niż jednym samochodem jest dwustanowiskowy garaż. Gotowy projekt domu jednorodzinnego wydziela dwie strefy – dzienną oraz nocną. Pierwsza z nich przewiduje wykonanie kuchni, salonu oraz jadalni na jednej, niczym nieograniczonej powierzchni. Ponadto, gotowy projekt domu jedn... Pełny opis

Ka64

Oczekiwanie na projekt: 2 dni

5949,- 6449,-

Najniższa cena z 30 dni przed obniżką: 6449

kup projekt
ulubione
porównaj
drukuj
Pow. mieszkalna 157.23 m2
Pow. zabudowy 167.81 m2
Wysokość budynku 8.5 m
Główny kąt dachu 20°
Min. wymiary działki 23.5 m / 22.48 m
Kondygnacje piętrowy
Technologia murowany
Garaż dwustanowiskowy

Rzuty projektu

Rzut parteru

rzut-karta-domu
Lp.PomieszczeniePow. pomieszczeniaPow. podłogi
1wiatrołap6,86 m26,86 m2
2spiżarnia1,75 m21,75 m2
3kuchnia12,11 m212,11 m2
4salon + schody52,99 m255,91 m2
5łazienka5,58 m25,58 m2
Pow.mieszkalna79,29 m282,21 m2
6pom. gospodarcze14,69 m214,69 m2
7garaż38,66 m238,66 m2
Pow.użytkowa53,35 m253,35 m2
Lp.PomieszczeniePow. pomieszczeniaPow. podłogi
1wiatrołap6,86 m26,86 m2
2spiżarnia1,75 m21,75 m2
3kuchnia12,11 m212,11 m2
4salon + schody52,99 m255,91 m2
5łazienka5,58 m25,58 m2
Pow.mieszkalna79,29 m282,21 m2
6pom. gospodarcze14,69 m214,69 m2
7garaż38,66 m238,66 m2
Pow.użytkowa53,35 m253,35 m2

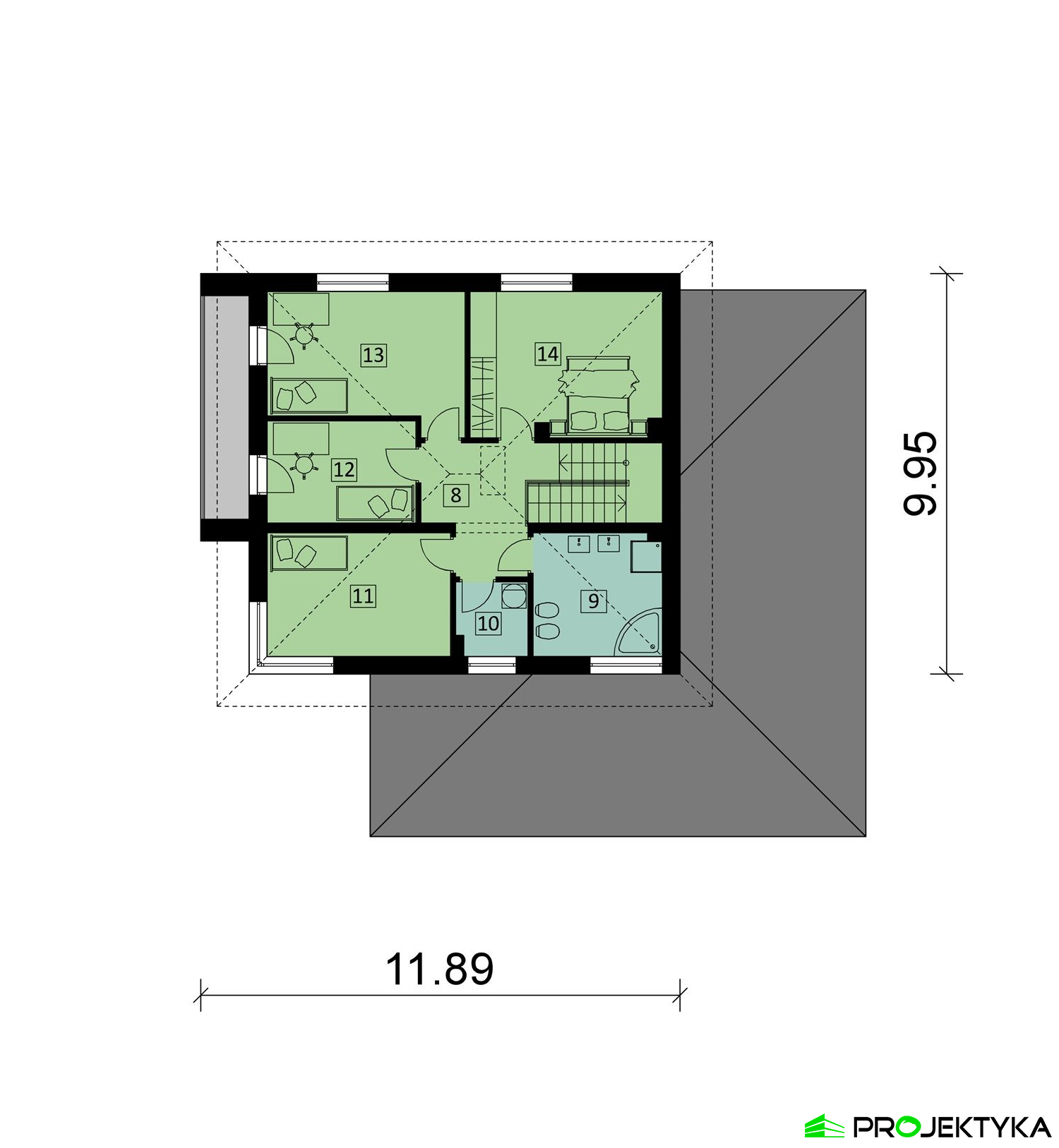
Rzut piętra

rzut-karta-domu
Lp.PomieszczeniePow. pomieszczenia
8korytarz8,65 m2
9łazienka9,78 m2
10pralnia3,22 m2
11sypialnia13,99 m2
12sypialnia9,40 m2
13sypialnia15,85 m2
14sypialnia17,05 m2
Pow.mieszkalna77,94 m2
Lp.PomieszczeniePow. pomieszczenia
8korytarz8,65 m2
9łazienka9,78 m2
10pralnia3,22 m2
11sypialnia13,99 m2
12sypialnia9,40 m2
13sypialnia15,85 m2
14sypialnia17,05 m2
Pow.mieszkalna77,94 m2

Wszystkie parametry

Powierzchnia mieszkalna 157.23 m2
Pow. zabudowy 167.81 m2
Liczba pokoi 5
Liczba łazienek 2
Liczba sypialni 4
Ogrzewanie gazowe
Poddasze brak
Wysokość parteru 2.86 m
Wysokość piętra 2.57 m
Dach czterospadowy
Rodzaj zabudowy wolnostojący
Pokrycie dachu blachodachówka, dachówka
Kąt nachylenia dachu 20°
Powierzchnia dachu 250.65 m2
Powierzchnia całkowita 277.96 m2
Min. wymiary działki 23.5 m / 22.48 m
Wysokość budynku 8.5 m
Szerokość zabudowy 15.50 m
Długość zabudowy 12.98 m
Powierzchnia. tarasu 73.67 m2
Podpiwniczenie (z piwnicą) Nie
Kondygnacje piętrowy
Technologia murowany
Garaż dwustanowiskowy
Instalacje elektryczne, gazowe, sanitarne, C.O
Rodzaj wentylacji grawitacyjna
Dodatkowe informacje kominek, pomieszczenie gospodarcze, spiżarnia, pralnia

Elewacje

Rzut sytuacyjny

Lokalizacja budynku
Fundamenty: ławy fundamentowe, stopy fundamentowe
Ściany zewnętrzne: bloczki z betonu komórkowego 24 cm + styropian 20 cm
Strop: parter: żelbetowy, monolityczny typu filigran, piętro: drewniany - pas dolny dźwigara prefabrykowanego MiTek
Elewacje: tynk cienkowarstwowy, tynk strukturalny
Ka64

zapytaj o projekt

Masz pytania odnośnie projektu Ka64 ?

Napisz do nas, chętnie pomożemy Ci wybrać idealny projekt domu

Napisz do nas

Dodatki

Dziennik budowy 1,-
Tablica budowy 1,-
Projekt wentylacji mechanicznej 1200,-
Projekt pompy ciepła 800,-
Kotłownia na paliwo stałe 550,-
Pakiet szamba szczelnego 300,-
Przydomowa oczyszczalnia ścieków 500,-
Kosztorys inwestorski 550,-
Dodatkowy papierowy egzemplarz projektu 600,-

Opis projektu

Ka64 to gotowy projekt domu jednorodzinnego utrzymany w nowoczesnym wzornictwie. Dodatkowo duże, narożne okna stanowić będą inspirację na etapie aranżacji wnętrz. Wyjątkową zaletą dla gospodarstw domowych dysponujących więcej niż jednym samochodem jest dwustanowiskowy garaż.
Gotowy projekt domu jednorodzinnego wydziela dwie strefy – dzienną oraz nocną. Pierwsza z nich przewiduje wykonanie kuchni, salonu oraz jadalni na jednej, niczym nieograniczonej powierzchni. Ponadto, gotowy projekt domu jednorodzinnego przewiduje łazienkę dla gości, zlokalizowaną w pobliżu schodów, prowadzących na kolejną kondygnację.
Strefa nocna w gotowy projekt domu jednorodzinnego zakłada wykonanie czterech sypialni, zapewniających każdemu z domowników oazę prywatności. Praktyczny charakter inwestycji podkreślono pralnią, która pomoże w codziennych pracach domowych. Ponadto na piętrze znajdziemy dużą łazienkę z wanną, prysznicem oraz dwiema umywalkami.

zapytaj o projekt

Masz pytania odnośnie projektu Ka64 ?

Napisz do nas, chętnie pomożemy Ci wybrać idealny projekt domu

Napisz do nas
c4ca4238a0b923820dcc509a6f75849b