Rzuty projektu
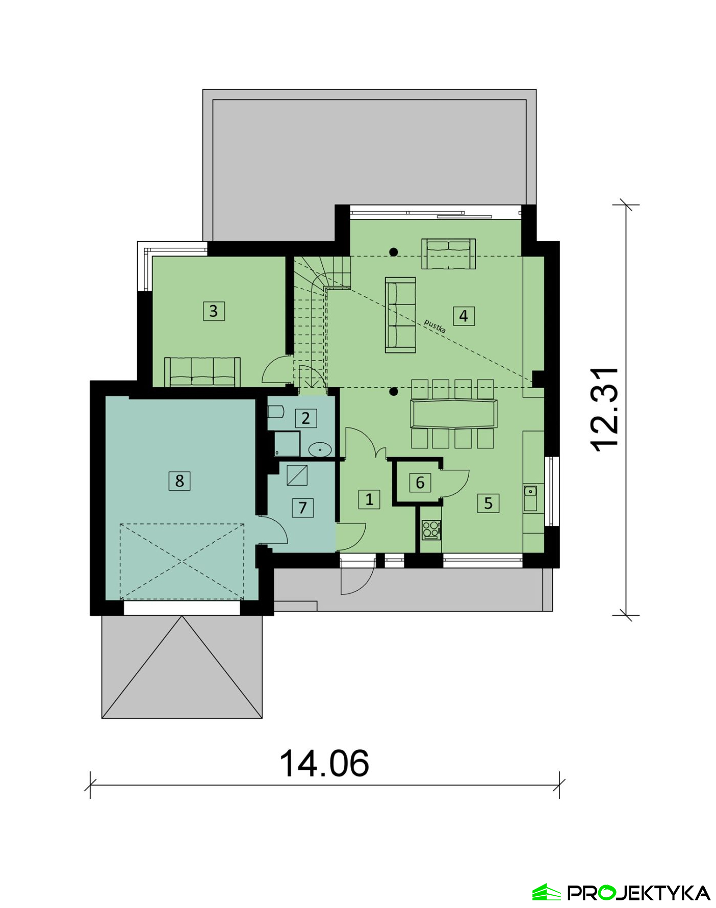
Rzut parteru
| Lp. | Pomieszczenie | Pow. pomieszczenia | Pow. podłogi |
| 1 | wiatrołap | 5,38 m2 | 5,38 m2 |
| 2 | łazienka | 3,63 m2 | 3,63 m2 |
| 3 | gabinet | 15,76 m2 | 15,76 m2 |
| 4 | salon + jadalnia + schody | 47,72 m2 | 50,52 m2 |
| 5 | kuchnia | 9,76 m2 | 9,76 m2 |
| 6 | spiżarnia | 1,55 m2 | 1,55 m2 |
| Pow. | mieszkalna | 83,96 m2 | 86,60 m2 |
| 7 | pom. gospodarcze | 5,50 m2 | 5,50 m2 |
| 8 | garaż | 27,49 m2 | 27,49 |
| Pow. | użytkowa | 116,97 m2 | 119,61 m2 |
| Lp. | Pomieszczenie | Pow. pomieszczenia | Pow. podłogi |
| 1 | wiatrołap | 5,38 m2 | 5,38 m2 |
| 2 | łazienka | 3,63 m2 | 3,63 m2 |
| 3 | gabinet | 15,76 m2 | 15,76 m2 |
| 4 | salon + jadalnia + schody | 47,72 m2 | 50,52 m2 |
| 5 | kuchnia | 9,76 m2 | 9,76 m2 |
| 6 | spiżarnia | 1,55 m2 | 1,55 m2 |
| Pow. | mieszkalna | 83,96 m2 | 86,60 m2 |
| 7 | pom. gospodarcze | 5,50 m2 | 5,50 m2 |
| 8 | garaż | 27,49 m2 | 27,49 |
| Pow. | użytkowa | 116,97 m2 | 119,61 m2 |
| Lp. | Pomieszczenie | Pow. pomieszczenia | Pow. podłogi |
| 1 | wiatrołap | 5,38 m2 | 5,38 m2 |
| 2 | łazienka | 3,63 m2 | 3,63 m2 |
| 3 | gabinet | 15,76 m2 | 15,76 m2 |
| 4 | salon + jadalnia + schody | 47,72 m2 | 50,52 m2 |
| 5 | kuchnia | 9,76 m2 | 9,76 m2 |
| 6 | spiżarnia | 1,55 m2 | 1,55 m2 |
| Pow. | mieszkalna | 83,96 m2 | 86,60 m2 |
| 7 | pom. gospodarcze | 5,50 m2 | 5,50 m2 |
| 8 | garaż | 27,49 m2 | 27,49 |
| Pow. | użytkowa | 116,97 m2 | 119,61 m2 |
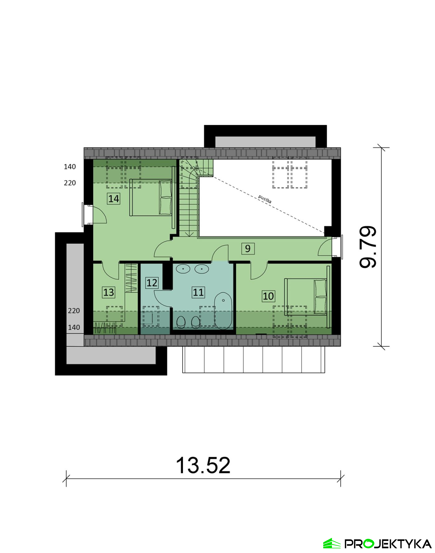
Rzut poddasza
| Lp. | Pomieszczenie | Pow. pomieszczenia | Pow. podłogi |
| 9 | korytarz | 11,51 m2 | 11,51 m2 |
| 10 | sypialnia | 12,98 m2 | 17,14 m2 |
| 11 | łazienka | 8,25 m2 | 9,84 m2 |
| 12 | pralnia | 3,56 m2 | 4,87 m2 |
| 13 | garderoba | 6,11 m2 | 8,10 m2 |
| 14 | sypialnia | 17,05 m2 | 20,75 m2 |
| Pow. | mieszkalna | 59,46 m2 | 72,21 m2 |
| Lp. | Pomieszczenie | Pow. pomieszczenia | Pow. podłogi |
| 9 | korytarz | 11,51 m2 | 11,51 m2 |
| 10 | sypialnia | 12,98 m2 | 17,14 m2 |
| 11 | łazienka | 8,25 m2 | 9,84 m2 |
| 12 | pralnia | 3,56 m2 | 4,87 m2 |
| 13 | garderoba | 6,11 m2 | 8,10 m2 |
| 14 | sypialnia | 17,05 m2 | 20,75 m2 |
| Pow. | mieszkalna | 59,46 m2 | 72,21 m2 |
| Lp. | Pomieszczenie | Pow. pomieszczenia | Pow. podłogi |
| 9 | korytarz | 11,51 m2 | 11,51 m2 |
| 10 | sypialnia | 12,98 m2 | 17,14 m2 |
| 11 | łazienka | 8,25 m2 | 9,84 m2 |
| 12 | pralnia | 3,56 m2 | 4,87 m2 |
| 13 | garderoba | 6,11 m2 | 8,10 m2 |
| 14 | sypialnia | 17,05 m2 | 20,75 m2 |
| Pow. | mieszkalna | 59,46 m2 | 72,21 m2 |
Wszystkie parametry
| Powierzchnia mieszkalna |
143.42 m2 |
| Pow. zabudowy |
146.13 m2 |
| Liczba pokoi |
4 |
| Liczba łazienek |
2 |
| Liczba sypialni |
2 |
| Ogrzewanie |
gazowe |
| Poddasze |
użytkowe |
| Wysokość parteru |
2.81 m |
| Wysokość poddasza |
2.65 m |
| Dach |
dwuspadowy |
| Rodzaj zabudowy |
wolnostojący |
| Pokrycie dachu |
blachodachówka, dachówka |
| Kąt nachylenia dachu |
45° /
3° |
| Powierzchnia dachu |
175.00 m2 |
| Powierzchnia całkowita |
269.87 m2 |
| Min. wymiary działki |
21.06 m / 21.26 m |
| Wysokość budynku |
9.39 m |
| Szerokość zabudowy |
14.06 m |
| Długość zabudowy |
12.31 m |
| Powierzchnia. tarasu |
39.00 m2 |
| Wysokość ścianki kolankowej |
90.00 cm |
| Podpiwniczenie (z piwnicą) |
Nie |
| Kondygnacje |
parterowy z poddaszem |
| Technologia |
murowany |
| Garaż |
jednostanowiskowy |
| Instalacje |
elektryczne, gazowe, sanitarne, C.O |
| Rodzaj wentylacji |
grawitacyjna |
| Dodatkowe informacje |
pomieszczenie gospodarcze, pustka nad salonem, gabinet, garderoba, spiżarnia, pralnia |
Rzut sytuacyjny
| Fundamenty: |
ławy fundamentowe, stopy fundamentowe |
| Ściany zewnętrzne: |
bloczki z betonu komórkowego 24 cm + styropian 20 cm |
| Strop: |
Teriva |
| Elewacje: |
tynk cienkowarstwowy, okładzina drewniana |
zapytaj o projekt
Masz pytania odnośnie projektu Ka72 L?
Napisz do nas, chętnie pomożemy Ci wybrać idealny projekt domu
Napisz do nas
Opis projektu
Ka72 to tani w budowie gotowy projekt domu jednorodzinnego. Atutem jest jednostanowiskowy garaż, który pozwoli na ochronę samochodu przed warunkami atmosferycznymi. Natomiast technologia murowana utrzymana w nowoczesnym stylu, zapewni trwałą i modną konstrukcję na wiele lat.
Do domu dostaniemy się przez praktyczny wiatrołap, ograniczający starty ciepła w okresie jesienno-zimowym. Strefa dzienna składa się z otwartej na salon oraz jadalnię - kuchni. Wyjątkowo praktycznym rozwiązaniem w gotowym projekcie domu jednorodzinnego jest spiżarnia, umieszczona w pobliżu kuchni. Na parterze znajdziemy również gabinet, który może służyć, jako pokój gościnny.
Tani w budowie gotowy projekt domu na poddaszu wydziela sypialnię dla właścicieli domu oraz dodatkowy pokój, który może zostać przeznaczony dla dziecka. O praktyczne aspekty, zadbano poprzez łazienkę dla mieszkańców, garderobę oraz pralnię. Tani w budowie gotowy projekt domu jednorodzinnego pozwala na wykonanie oryginalnych aranżacji dzięki zachowaniu pustki nad salonem.