Ka93 M L

Ka93 M to nowoczesny projekt domu o prostej bryle pokrytej dwuspadowym dachem. Nad wysuniętym dwustanowiskowym garażem ulokowano przestronny taras o powierzchni blisko 60 m2. Na parterze znajduje się salon połączony na kształt litery L kuchnią i jadalnią. Nad salonem zaprojektowano pustkę, która pozwoli na ciekawą aranżację wnętrza. Do kuchni przynależy niewielka spiżarnia, dodatkowo na tej kondygnacji znajduje się także niewielki gabinet, łazienka oraz dwa pomieszczenia gospodarcze. ... Pełny opis

Ka93 M L

Oczekiwanie na projekt: 21 dni

6699,-

kup projekt
ulubione
porównaj
drukuj
Pow. mieszkalna 213.39 m2
Pow. zabudowy 213.66 m2
Wysokość budynku 10.35 m
Główny kąt dachu 40°
Min. wymiary działki 26.9 m / 25.3 m
Kondygnacje piętrowy
Technologia murowany
Garaż dwustanowiskowy

Rzuty projektu

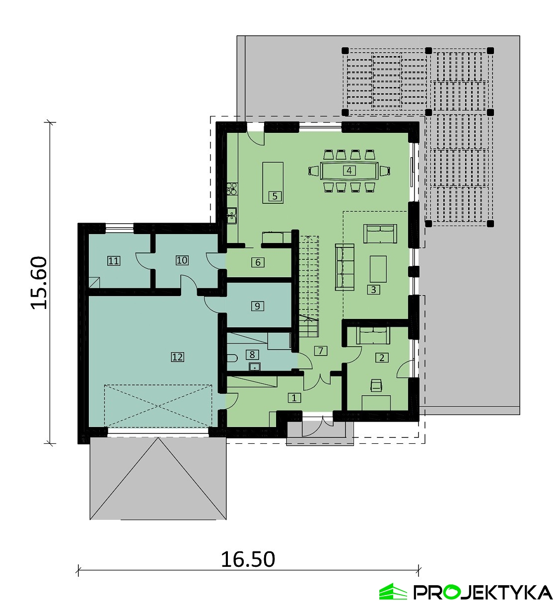
Rzut parteru

rzut-karta-domu
LpNazwa pomieszczeniaPow. użytkowa
1 wiatrołap 12,28 m2
2 gabinet 13,02 m2
3 salon 24,80 m2
4 jadalnia 20,87 m2
5 kuchnia 19,06 m2
6 spiżarrnia 5,05 m2
7 holl + schody 9,63 m2
8 łazienka 6,52 m2
Pow. użytkowa 111,23 m2
9 pom. gospodarcze 7,50 m2
10 pom. gospodarcze 8,61 m2
11 pom. gospodarcze 8,61 m2
12 garaż 41,34 m2
Pow. razem 177,29 m2
LpNazwa pomieszczeniaPow. użytkowa
1 wiatrołap 12,28 m2
2 gabinet 13,02 m2
3 salon 24,80 m2
4 jadalnia 20,87 m2
5 kuchnia 19,06 m2
6 spiżarrnia 5,05 m2
7 holl + schody 9,63 m2
8 łazienka 6,52 m2
Pow. użytkowa 111,23 m2
9 pom. gospodarcze 7,50 m2
10 pom. gospodarcze 8,61 m2
11 pom. gospodarcze 8,61 m2
12 garaż 41,34 m2
Pow. razem 177,29 m2

Rzut piętra

rzut-karta-domu
LpNazwa pomieszczeniaPow. użytkowa
1 sypialnia 17,34 m2
2 sypialnia 20,99 m2
3 korytarz 15,31 m2
4 sypialnia 16,51 m2
5 garderoba 6,79 m2
6 łazienka 8,12 m2
7 pralnia 3,93 m2
8 łazienka z sauną 13,17 m2
Pow. użytkowa 102,16 m2
LpNazwa pomieszczeniaPow. użytkowa
1 sypialnia 17,34 m2
2 sypialnia 20,99 m2
3 korytarz 15,31 m2
4 sypialnia 16,51 m2
5 garderoba 6,79 m2
6 łazienka 8,12 m2
7 pralnia 3,93 m2
8 łazienka z sauną 13,17 m2
Pow. użytkowa 102,16 m2

Wszystkie parametry

Powierzchnia mieszkalna 213.39 m2
Pow. zabudowy 213.66 m2
Liczba pokoi 5
Liczba łazienek 3
Liczba sypialni 3
Ogrzewanie gazowe
Wysokość parteru 2.80 m
Dach dwuspadowy
Rodzaj zabudowy wolnostojący
Pokrycie dachu blachodachówka, dachówka
Kąt nachylenia dachu 40°
Powierzchnia dachu 195.00 m2
Powierzchnia całkowita 363.60 m2
Min. wymiary działki 26.9 m / 25.3 m
Wysokość budynku 10.35 m
Szerokość zabudowy 16.50 m
Długość zabudowy 15.60 m
Powierzchnia. tarasu 59.47 m2
Podpiwniczenie (z piwnicą) Nie
Kondygnacje piętrowy
Technologia murowany
Garaż dwustanowiskowy
Instalacje elektryczne, gazowe, sanitarne, C.O
Dodatkowe informacje pomieszczenie gospodarcze, sauna, gabinet

Elewacje

Rzut sytuacyjny

Lokalizacja budynku
Fundamenty: ławy fundamentowe/stopy fundamentowe
Ściany zewnętrzne: gazobeton +20 cm styropianu
Strop: żelbetowy monolityczny
Elewacje: tynk cienkowarstwowy, okładzina drewniana
Ka93 M

zapytaj o projekt

Masz pytania odnośnie projektu Ka93 M L?

Napisz do nas, chętnie pomożemy Ci wybrać idealny projekt domu

Napisz do nas

Dodatki

Dziennik budowy 1,-
Tablica budowy 1,-
Projekt wentylacji mechanicznej 1200,-
Projekt pompy ciepła 800,-
Kotłownia na paliwo stałe 550,-
Projekt ogrzewania podłogowego 500,-
Pakiet szamba szczelnego 300,-
Przydomowa oczyszczalnia ścieków 500,-
Kosztorys inwestorski 550,-
Dodatkowy papierowy egzemplarz projektu 600,-

Opis projektu

Ka93 M to nowoczesny projekt domu o prostej bryle pokrytej dwuspadowym dachem. Nad wysuniętym dwustanowiskowym garażem ulokowano przestronny taras o powierzchni blisko 60 m2. Na parterze znajduje się salon połączony na kształt litery L kuchnią i jadalnią. Nad salonem zaprojektowano pustkę, która pozwoli na ciekawą aranżację wnętrza. Do kuchni przynależy niewielka spiżarnia, dodatkowo na tej kondygnacji znajduje się także niewielki gabinet, łazienka oraz dwa pomieszczenia gospodarcze. Na piętrze usytuowano pralnię, dwie sypialnie oraz apartament z prywatną łazienką i garderobą. Prawdziwą perełką tego projektu jest sauna zlokalizowana w przestronnej łazience na piętrze. Ten projekt domu ma powierzchnię użytkową aż 213.39 m2 i świetnie sprawdzi się jako miejsce do życia dla rodzin, które niezwykle cenią sobie wypoczynek w komfortowych warunkach. Wysokie okna oraz dodatkowe okna połaciowe doskonale doświetlają wnętrze, ograniczając tym samym korzystanie ze sztucznego oświetlenia. 

zapytaj o projekt

Masz pytania odnośnie projektu Ka93 M L?

Napisz do nas, chętnie pomożemy Ci wybrać idealny projekt domu

Napisz do nas
c4ca4238a0b923820dcc509a6f75849b