Ka113 S L

Ka113 S to wolnostojący projekt domu, który można połączyć z drugim segmentem. Zaprojektowany został w technologii murowanej, posiada parter i poddasze użytkowe. Mimo niewielkiej powierzchni mieszkalnej 93.08 m2, pomieszczenia zostały funkcjonalnie rozmieszczone. Ka113 S to dom niedrogi w budowie, pokryty dachem dwuspadowym nachylonym pod kątem 35°. Na parterze w hollu znajduje się klatka schodowa oraz wejście do niewielkiej łazienki. W samym wiatrołapie znajduje się przejście do pomi... Pełny opis

Ka113 S L

Oczekiwanie na projekt: 7 dni

4499,-

kup projekt
ulubione
porównaj
drukuj
Pow. mieszkalna 93.08 m2
Pow. zabudowy 75.07 m2
Wysokość budynku 8.15 m
Główny kąt dachu 35°
Min. wymiary działki 12.16 m / 17.2 m
Kondygnacje parterowy z poddaszem
Technologia murowany
Garaż bez garażu

Rzuty projektu

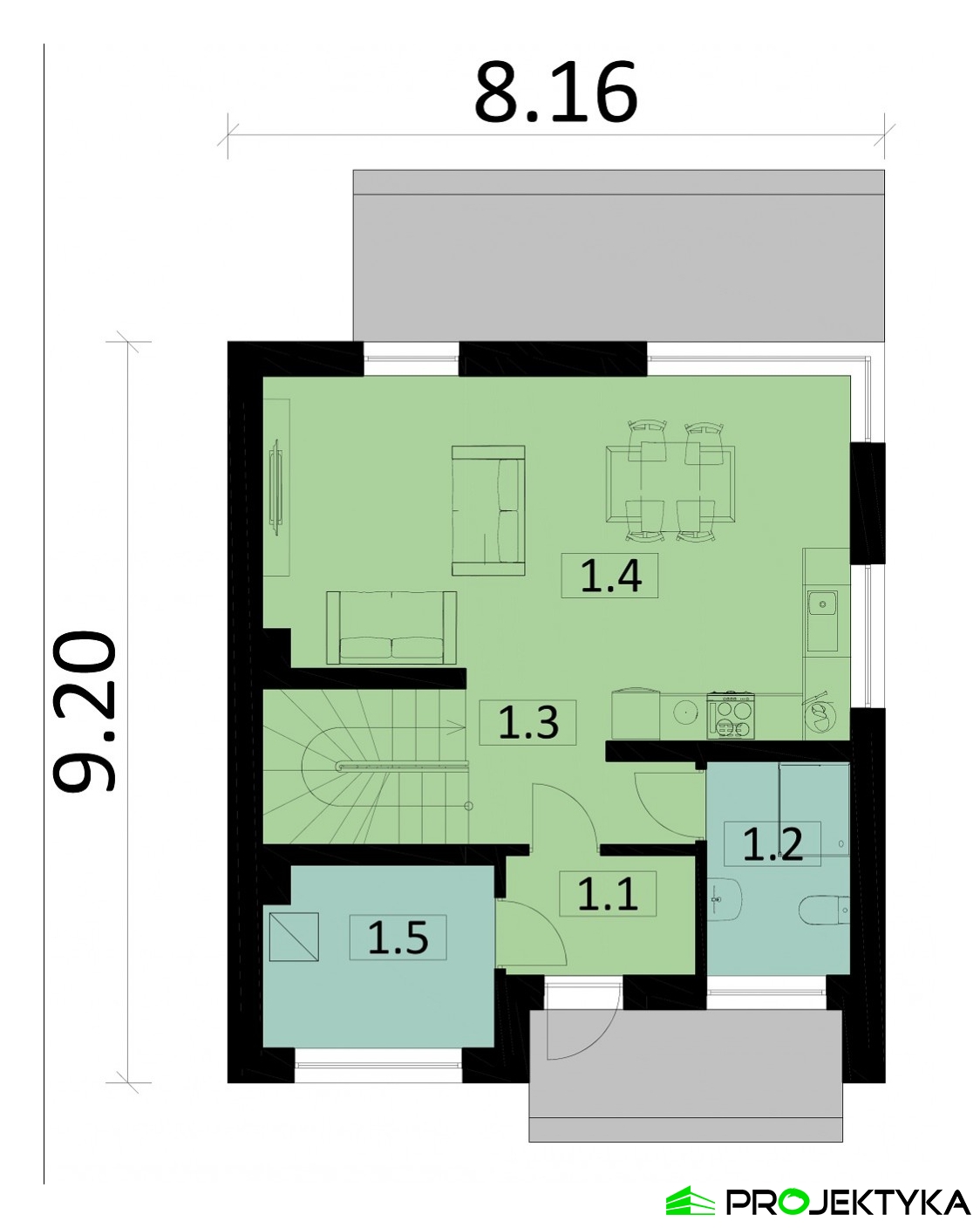
Rzut parteru

rzut-karta-domu
LpNazwa pomieszczeniaPow. mieszkalna
1 wiatrołap 3,57 m2
2 łazienka 4,80 m2
3 holl + schody 8,36 m2
4 salon + kuchnia 30,97  m2
Pow. mieszkalna 47,70 m2
5 pom. gospodarcze 6,45 m2
Pow. użytkowa 54,15 m2
LpNazwa pomieszczeniaPow. mieszkalna
1 wiatrołap 3,57 m2
2 łazienka 4,80 m2
3 holl + schody 8,36 m2
4 salon + kuchnia 30,97  m2
Pow. mieszkalna 47,70 m2
5 pom. gospodarcze 6,45 m2
Pow. użytkowa 54,15 m2

Rzut poddasza

rzut-karta-domu
LpNazwa pomieszczeniaPow. mieszkalna
1 łazienka 6,77 m2
2 holl 3,25 m2
3 sypialnia 11,19 m2
4 sypialnia 13,00 m2
5 sypialnia 11,17 m2
Pow. mieszkalna 45,38 m2
LpNazwa pomieszczeniaPow. mieszkalna
1 łazienka 6,77 m2
2 holl 3,25 m2
3 sypialnia 11,19 m2
4 sypialnia 13,00 m2
5 sypialnia 11,17 m2
Pow. mieszkalna 45,38 m2

Wszystkie parametry

Powierzchnia mieszkalna 93.08 m2
Pow. zabudowy 75.07 m2
Liczba pokoi 4
Liczba łazienek 2
Liczba sypialni 3
Ogrzewanie gazowe
Poddasze użytkowe
Wysokość parteru 2.71 m
Wysokość poddasza 2.57 m
Dach dwuspadowy
Rodzaj zabudowy wolnostojący
Pokrycie dachu blachodachówka, dachówka
Kąt nachylenia dachu 35°
Powierzchnia dachu 93.68 m2
Powierzchnia całkowita 146.52 m2
Min. wymiary działki 12.16 m / 17.2 m
Wysokość budynku 8.15 m
Szerokość zabudowy 8.16 m
Długość zabudowy 9.20 m
Wysokość ścianki kolankowej 140.00 cm
Podpiwniczenie (z piwnicą) Nie
Kondygnacje parterowy z poddaszem
Technologia murowany
Garaż bez garażu
Instalacje elektryczne, gazowe, sanitarne, C.O
Rodzaj wentylacji grawitacyjna
Dodatkowe informacje na wąską działkę, kominek, pomieszczenie gospodarcze, możliwa budowa w granicy działki

Elewacje

Rzut sytuacyjny

Lokalizacja budynku
Fundamenty: ławy fundamentowe/stopy fundamentowe
Ściany zewnętrzne: gazobeton +18 cm styropianu
Strop: Teriva
Elewacje: tynk cienkowarstwowy/płytki klinkierowe, okładzina drewniana
Ka113 S

zapytaj o projekt

Masz pytania odnośnie projektu Ka113 S L?

Napisz do nas, chętnie pomożemy Ci wybrać idealny projekt domu

Napisz do nas

Warianty projektu

Dodatki

Dziennik budowy 1,-
Tablica budowy 1,-
Projekt wentylacji mechanicznej 1200,-
Projekt pompy ciepła 800,-
Kotłownia na paliwo stałe 550,-
Projekt ogrzewania podłogowego 500,-
Pakiet szamba szczelnego 300,-
Przydomowa oczyszczalnia ścieków 500,-
Kosztorys inwestorski 550,-
Dodatkowy papierowy egzemplarz projektu 600,-

Opis projektu

Ka113 S to wolnostojący projekt domu, który można połączyć z drugim segmentem. Zaprojektowany został w technologii murowanej, posiada parter i poddasze użytkowe. Mimo niewielkiej powierzchni mieszkalnej 93.08 m2, pomieszczenia zostały funkcjonalnie rozmieszczone. Ka113 S to dom niedrogi w budowie, pokryty dachem dwuspadowym nachylonym pod kątem 35°. Na parterze w hollu znajduje się klatka schodowa oraz wejście do niewielkiej łazienki. W samym wiatrołapie znajduje się przejście do pomieszczenia gospodarczego. Sercem parteru jest przestronny aneks kuchenny z jadalnią oraz salonem, z którego wychodzi się na taras. Na poddaszu ulokowana została strefa nocna z drugą, większą łazienką oraz trzema sypialniami. Projekt ten doskonale sprawdzi się przy budowie domu na działce o minimalnych wymiarach 12.16 x 17.20 m. 

zapytaj o projekt

Masz pytania odnośnie projektu Ka113 S L?

Napisz do nas, chętnie pomożemy Ci wybrać idealny projekt domu

Napisz do nas

Projekt domu Ka113 S

c4ca4238a0b923820dcc509a6f75849b