Ka17 Sz

Gotowy projekt domu parterowego Ka17 Sz to propozycja przestronnego domu dla 4 – 5 osobowej rodziny. Elewacja utrzymana w jasnej kolorystyce, została wzbogacona o naturalne elementy, w postaci drewnianych palisad wokół okien oraz kamiennej okładziny przy wejściu głównym do domu. Gotowy projekt domu jednorodzinnego przewiduje, rozwiązania gwarantujące niskie koszty budowy.Gotowy projekt domu parterowego obejmuje zadaszone wejście do domu prowadzące przez wiatrołap do strefy dziennej. Część użytko... Pełny opis

Ka17 Sz

Oczekiwanie na projekt: 2 dni

4899,- 5299,-

Najniższa cena z 30 dni przed obniżką: 5299

kup projekt
ulubione
porównaj
drukuj
Pow. mieszkalna 121.17 m2
Pow. zabudowy 191.74 m2
Wysokość budynku 6.58 m
Główny kąt dachu 25°
Min. wymiary działki 23.69 m / 22.22 m
Kondygnacje parterowy
Technologia szkieletowy drewniany
Garaż dwustanowiskowy

Rzuty projektu

Rzut parteru

rzut-karta-domu
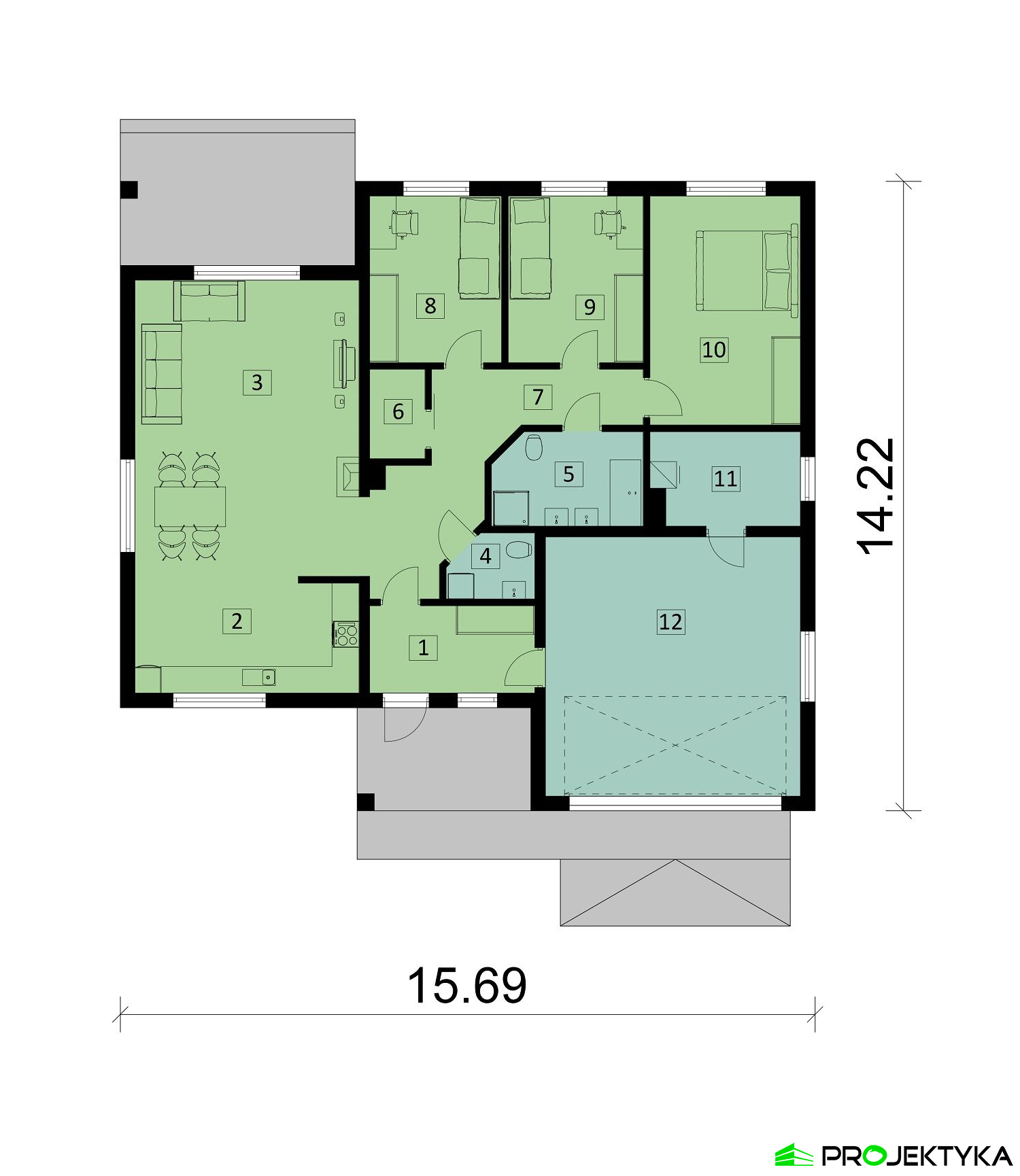
Lp.PomieszczeniePow. pomieszczenia
1wiatrołap7,37 m2
2kuchnia12,57 m2
3salon + jadalnia34,43 m2
4WC2,69 m2
5łazienka7,05 m2
6garderoba2,53 m2
7korytarz14,23 m2
8sypialnia11,22 m2
9sypialnia11,48 m2
10sypialnia17,60 m2
Pow.mieszkalna121,17 m2
11pom. gospodarcze6,95 m2
12garaż33,75 m2
Pow.użytkowa161,87 m2
Lp.PomieszczeniePow. pomieszczenia
1wiatrołap7,37 m2
2kuchnia12,57 m2
3salon + jadalnia34,43 m2
4WC2,69 m2
5łazienka7,05 m2
6garderoba2,53 m2
7korytarz14,23 m2
8sypialnia11,22 m2
9sypialnia11,48 m2
10sypialnia17,60 m2
Pow.mieszkalna121,17 m2
11pom. gospodarcze6,95 m2
12garaż33,75 m2
Pow.użytkowa161,87 m2

Wszystkie parametry

Powierzchnia mieszkalna 121.17 m2
Pow. zabudowy 191.74 m2
Liczba pokoi 4
Liczba łazienek 2
Liczba sypialni 3
Ogrzewanie gazowe
Poddasze strych
Wysokość parteru 2.70 m
Wysokość poddasza 2.40 m
Dach wielospadowy
Rodzaj zabudowy wolnostojący
Pokrycie dachu blachodachówka, dachówka
Kąt nachylenia dachu 25°
Powierzchnia dachu 302.47 m2
Powierzchnia całkowita 191.44 m2
Min. wymiary działki 23.69 m / 22.22 m
Wysokość budynku 6.58 m
Szerokość zabudowy 15.69 m
Długość zabudowy 14.22 m
Podpiwniczenie (z piwnicą) Nie
Kondygnacje parterowy
Technologia szkieletowy drewniany
Garaż dwustanowiskowy
Instalacje elektryczne, gazowe, sanitarne, C.O
Rodzaj wentylacji grawitacyjna
Dodatkowe informacje kominek, pomieszczenie gospodarcze, garderoba

Elewacje

Rzut sytuacyjny

Fundamenty: ławy fundamentowe, stopy fundamentowe
Ściany zewnętrzne: drewno konstrukcyjne, płyta wiórowa, wełna mineralna
Strop: pas dolny dźwigara prefabrykowanego MiTek
Elewacje: tynk cienkowarstwowy, okładzina drewniana
Ka17 Sz

zapytaj o projekt

Masz pytania odnośnie projektu Ka17 Sz ?

Napisz do nas, chętnie pomożemy Ci wybrać idealny projekt domu

Napisz do nas

Warianty projektu

Dodatki

Dziennik budowy 1,-
Tablica budowy 1,-
Projekt wentylacji mechanicznej 1200,-
Projekt pompy ciepła 800,-
Kotłownia na paliwo stałe 550,-
Projekt ogrzewania podłogowego 500,-
Pakiet szamba szczelnego 300,-
Przydomowa oczyszczalnia ścieków 500,-
Kosztorys inwestorski 550,-
Dodatkowy papierowy egzemplarz projektu 600,-

Opis projektu

Gotowy projekt domu parterowego Ka17 Sz to propozycja przestronnego domu dla 4 – 5 osobowej rodziny. Elewacja utrzymana w jasnej kolorystyce, została wzbogacona o naturalne elementy, w postaci drewnianych palisad wokół okien oraz kamiennej okładziny przy wejściu głównym do domu. Gotowy projekt domu jednorodzinnego przewiduje, rozwiązania gwarantujące niskie koszty budowy.
Gotowy projekt domu parterowego obejmuje zadaszone wejście do domu prowadzące przez wiatrołap do strefy dziennej. Część użytkowa domu składa się z przestronnej kuchni, wyposażonej w duży blat roboczy oraz jadalni. Ponadto elewacja tarasu została ozdobiona kamiennymi kaflami, które dodają całej bryle budynku nowoczesnego wyglądu. Dodatkowo został on zadaszony, dzięki czemu w pochmurne dni osłonisz się od deszczu. Gotowy projekt domu parterowego, zawiera również bardzo praktyczną łazienkę dla gości. Gotowy projekt domu parterowego, poprzez szeroki holl prowadzi do strefy nocnej. W której skład wchodzi sypialnia dla rodziców oraz dwa mniejsze pokoje dziecięce lub gościnne. Części nocna w gotowym projekcie domu parterowego, dodatkowo została połączona przestronną garderobą. Ponadto w strefie nocnej znajdziemy dużą łazienkę, składającą się z wanny, brodzika, toalety oraz dwóch umywalek.
Gotowy projekt domu parterowego, oddziela również cześć gospodarczą od reszty domu. Składa się ona z dużego garażu oraz kotłowni. Dostaniemy się do nich bezpośrednio z wiatrołapu, co zapewnia nam eliminacje nieprzyjemnych zapachów. Zastosowanie lekkiej konstrukcji dachu na wiązarach sprawia, iż gotowy projekt domu parterowego jest stosunkowo tani w realizacji.

zapytaj o projekt

Masz pytania odnośnie projektu Ka17 Sz ?

Napisz do nas, chętnie pomożemy Ci wybrać idealny projekt domu

Napisz do nas
c4ca4238a0b923820dcc509a6f75849b