Rzuty projektu
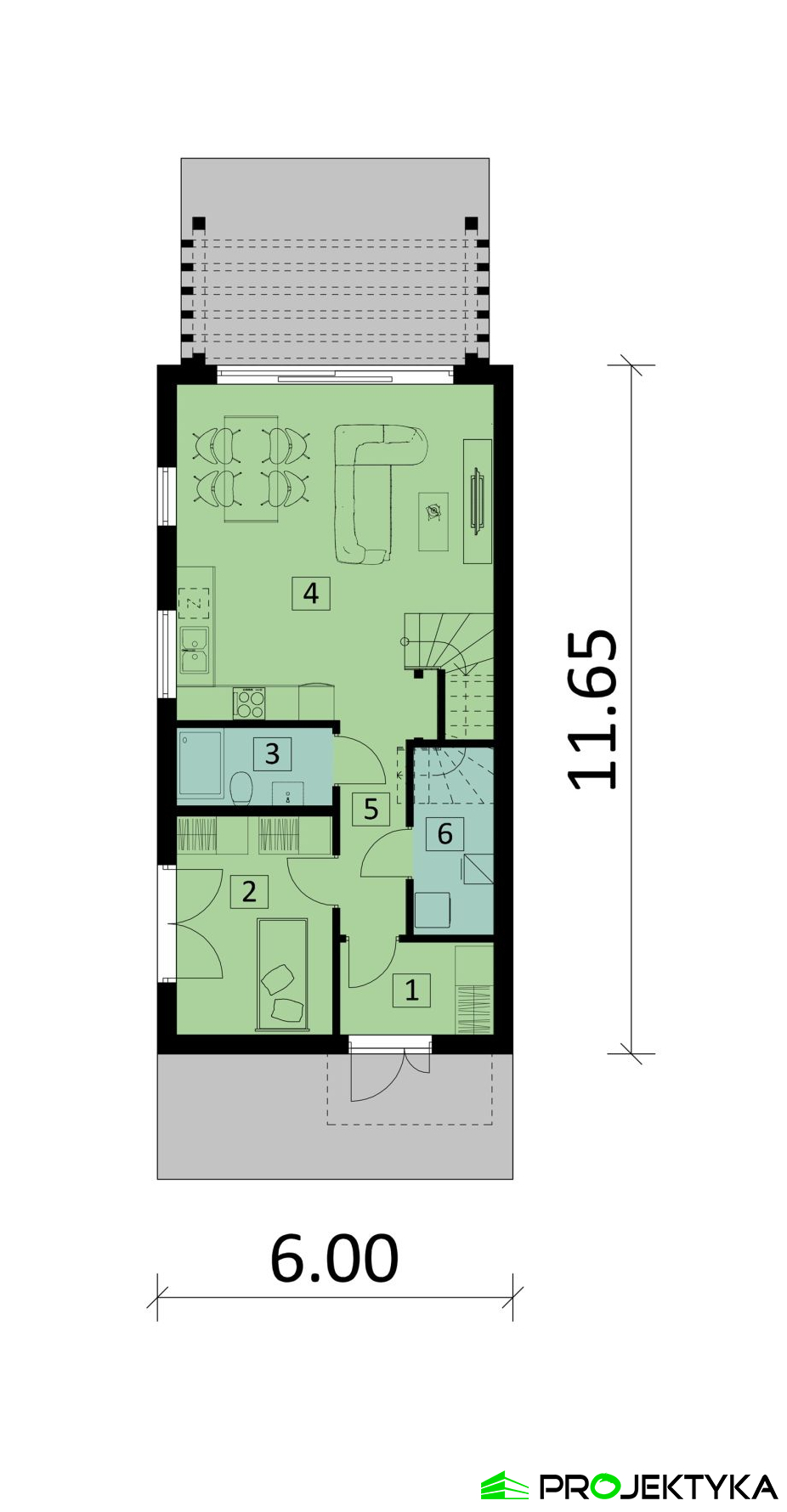
Rzut parteru
| Lp. | Pomieszczenie | Pow. pomieszczenia | Pow. podłogi |
| 1. | wiatrołap | 4,08 m2 | 4,08 m2 |
| 2 | sypialnia | 9,78 m2 | 9,78 m2 |
| 3 | łazienka | 3,50 m2 | 3,50 m2 |
| 4 | salon + kuchnia | 30,45 m2 | 32,89 m2 |
| 5 | korytarz | 4,07 m2 | 4,07 m2 |
| Pow. | mieszkalna | 51,88 m2 | 54,32 m2 |
| 6 | pom. gospodarcze | 3,89 m2 | 4,14 m2 |
| Pow. | użytkowa | 55,77 m2 | 58,46 m2 |
| Lp. | Pomieszczenie | Pow. pomieszczenia | Pow. podłogi |
| 1. | wiatrołap | 4,08 m2 | 4,08 m2 |
| 2 | sypialnia | 9,78 m2 | 9,78 m2 |
| 3 | łazienka | 3,50 m2 | 3,50 m2 |
| 4 | salon + kuchnia | 30,45 m2 | 32,89 m2 |
| 5 | korytarz | 4,07 m2 | 4,07 m2 |
| Pow. | mieszkalna | 51,88 m2 | 54,32 m2 |
| 6 | pom. gospodarcze | 3,89 m2 | 4,14 m2 |
| Pow. | użytkowa | 55,77 m2 | 58,46 m2 |
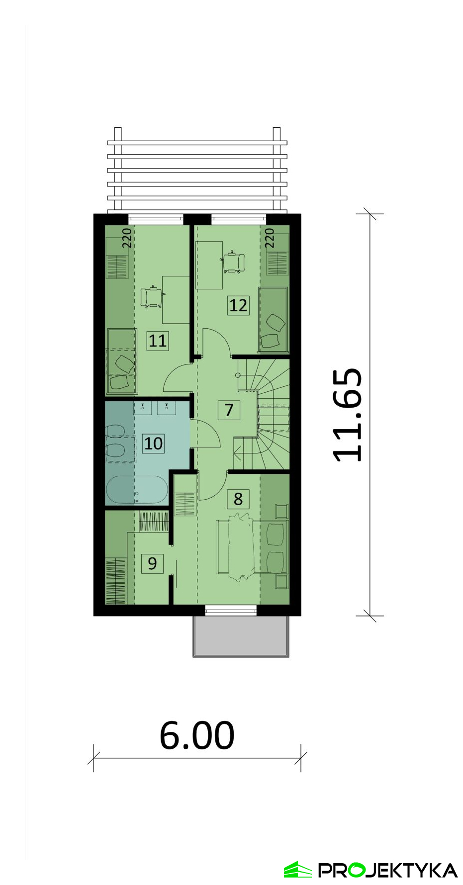
Rzut poddasza
| Lp. | Pomieszczenie | Pow. pomieszczenia | Pow. podłogi |
| 7 | korytarz | 6,87 m2 | 6,87 m2 |
| 8 | sypialnia | 11,13 m2 | 12,67 m2 |
| 9 | garderoba | 3,93 m2 | 5,11 m2 |
| 10 | łazienka | 5,54 m2 | 6,84 m2 |
| 11 | sypialnia | 10,11 m2 | 12,25 m2 |
| 12 | sypialnia | 8,84 m2 | 10,45 m2 |
| Pow. | mieszkalna | 46,42 m2 | 54,19 m2 |
| Lp. | Pomieszczenie | Pow. pomieszczenia | Pow. podłogi |
| 7 | korytarz | 6,87 m2 | 6,87 m2 |
| 8 | sypialnia | 11,13 m2 | 12,67 m2 |
| 9 | garderoba | 3,93 m2 | 5,11 m2 |
| 10 | łazienka | 5,54 m2 | 6,84 m2 |
| 11 | sypialnia | 10,11 m2 | 12,25 m2 |
| 12 | sypialnia | 8,84 m2 | 10,45 m2 |
| Pow. | mieszkalna | 46,42 m2 | 54,19 m2 |
Wszystkie parametry
| Powierzchnia mieszkalna | 98.39 m2 |
| Pow. zabudowy | 69.9 m2 |
| Liczba pokoi | 5 |
| Liczba łazienek | 2 |
| Liczba sypialni | 4 |
| Ogrzewanie | gazowe |
| Poddasze | użytkowe |
| Wysokość parteru | 2.60 m |
| Wysokość poddasza | 3.73 m |
| Dach | dwuspadowy |
| Rodzaj zabudowy | wolnostojący, całoroczny |
| Pokrycie dachu | blacha na rąbek |
| Kąt nachylenia dachu | 40° |
| Powierzchnia dachu | 92.00 m2 |
| Powierzchnia całkowita | 139.80 m2 |
| Min. wymiary działki | 13 m / 20.65 m |
| Wysokość budynku | 7.54 m |
| Szerokość zabudowy | 6.00 m |
| Długość zabudowy | 11.65 m |
| Powierzchnia. tarasu | 18.20 m2 |
| Wysokość ścianki kolankowej | 1.48 cm |
| Podpiwniczenie (z piwnicą) | Nie |
| Kondygnacje | parterowy z poddaszem |
| Technologia | szkielet drewniany (ściana otwarta dyfuzyjnie) |
| Garaż | bez garażu |
| Instalacje | elektryczne, gazowe, sanitarne, C.O |
| Rodzaj wentylacji | grawitacyjna |
| Dodatkowe informacje | pomieszczenie gospodarcze, garderoba |
Rzut sytuacyjny
zapytaj o projekt
Masz pytania odnośnie projektu Ka187 Sz ?
Napisz do nas, chętnie pomożemy Ci wybrać idealny projekt domu
Napisz do nasDodatki
| Dziennik budowy | 1,- |
| Tablica budowy | 1,- |
| Projekt wentylacji mechanicznej | 1200,- |
| Projekt pompy ciepła | 800,- |
| Projekt ogrzewania gazowego | 600,- |
| Pakiet szamba szczelnego | 300,- |
| Przydomowa oczyszczalnia ścieków | 500,- |
| Kosztorys inwestorski | 550,- |
| Dodatkowy papierowy egzemplarz projektu | 600,- |
Opis projektu
Projekt Ka187 Sz to kompaktowy, nowoczesny dom parterowy z poddaszem użytkowym na zgłoszenie do 70 m² w technologii szkieletowej drewnianej. To idealny wybór dla inwestorów szukających całorocznego domu bez garażu, który zapewnia pełen komfort mieszkania przy niskich kosztach budowy i eksploatacji.
Na parterze znajduje się funkcjonalna strefa dzienna: przestronny salon z miejscem na jadalnię, kuchnia, dodatkowy pokój idealny jako gabinet lub sypialnia gościnna, wygodna łazienka oraz praktyczne pomieszczenie gospodarcze.
Poddasze użytkowe oferuje trzy wygodne sypialnie, z których jedna posiada własną garderobę. Program uzupełnia rodzinna łazienka, zapewniająca komfort wszystkim mieszkańcom. Dzięki temu niewielki metraż został zagospodarowany maksymalnie efektywnie.
Prosta bryła, ekonomiczny dach i logiczny układ funkcjonalny sprawiają, że Ka187 Sz to projekt idealny zarówno dla rodzin, jak i osób budujących pierwszy własny dom.




