Rzuty projektu
Rzut parteru

Lp. | Pomieszczenie | Pow. pomieszczenia | Pow. podłogi |
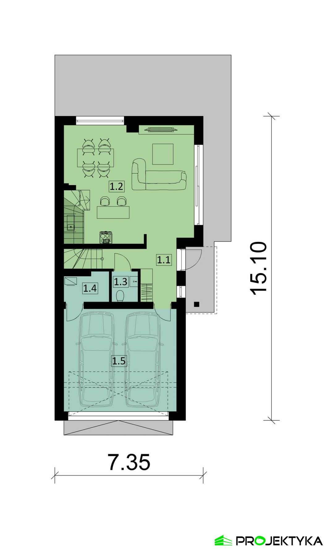
1 | wiatrołap + schody | 8,67 m2 | 8,55 m2 |
2 | salon + kuchnia + jadalnia | 37,06 m2 | 37,63 m2 |
3 | WC | 1,99 m2 | 1,99 m2 |
Pow. | mieszkalna | 47,72 m2 | 48,17 m2 |
4 | pom. gospodarcze | 3,22 m2 | 3,22 m2 |
5 | garaż | 28,64 m2 | 28,64 m2 |
Pow. | użytkowa | 79,58 m2 | 80,03 m2 |
Lp. | Pomieszczenie | Pow. pomieszczenia | Pow. podłogi |
1 | wiatrołap + schody | 8,67 m2 | 8,55 m2 |
2 | salon + kuchnia + jadalnia | 37,06 m2 | 37,63 m2 |
3 | WC | 1,99 m2 | 1,99 m2 |
Pow. | mieszkalna | 47,72 m2 | 48,17 m2 |
4 | pom. gospodarcze | 3,22 m2 | 3,22 m2 |
5 | garaż | 28,64 m2 | 28,64 m2 |
Pow. | użytkowa | 79,58 m2 | 80,03 m2 |
Rzut piętra

Lp. | Pomieszczenie | Pow. pomieszczenia | Pow. podłogi |
6 | korytarz + schody | 11,63 m2 | 13,42 m2 |
7 | łazienka | 3,63 m2 | 3,63 m2 |
8 | sypialnia | 14,71 m2 | 14,71 m2 |
9 | garderoba | 4,38 m2 | 4,38 m2 |
10 | sypialnia | 10,79 m2 | 10,79 m2 |
11 | sypialnia | 11,89 m2 | 11,89 m2 |
12 | sypialnia | 10,67 m2 | 10,67 m2 |
13 | łazienka | 7,37 m2 | 7,37 m2 |
Pow. | mieszkalna | 75,07 m2 | 76,86 m2 |
Lp. | Pomieszczenie | Pow. pomieszczenia | Pow. podłogi |
6 | korytarz + schody | 11,63 m2 | 13,42 m2 |
7 | łazienka | 3,63 m2 | 3,63 m2 |
8 | sypialnia | 14,71 m2 | 14,71 m2 |
9 | garderoba | 4,38 m2 | 4,38 m2 |
10 | sypialnia | 10,79 m2 | 10,79 m2 |
11 | sypialnia | 11,89 m2 | 11,89 m2 |
12 | sypialnia | 10,67 m2 | 10,67 m2 |
13 | łazienka | 7,37 m2 | 7,37 m2 |
Pow. | mieszkalna | 75,07 m2 | 76,86 m2 |
Wszystkie parametry
Powierzchnia mieszkalna | 122.79 m2 |
Pow. zabudowy | 103.55 m2 |
Liczba pokoi | 5 |
Liczba łazienek | 3 |
Liczba sypialni | 4 |
Ogrzewanie | gazowe |
Poddasze | strych |
Wysokość parteru | 2.80 m |
Wysokość piętra | 2.70 m |
Dach | wielospadowy |
Rodzaj zabudowy | wolnostojący |
Pokrycie dachu | blachodachówka, dachówka |
Kąt nachylenia dachu | 35° |
Powierzchnia dachu | 171.00 m2 |
Powierzchnia całkowita | 207.10 m2 |
Min. wymiary działki | 14.35 m / 23.64 m |
Wysokość budynku | 8.84 m |
Szerokość zabudowy | 7.35 m |
Długość zabudowy | 15.10 m |
Powierzchnia. tarasu | 35.00 m2 |
Podpiwniczenie (z piwnicą) | Nie |
Kondygnacje | piętrowy |
Technologia | murowany |
Garaż | dwustanowiskowy |
Instalacje | elektryczne, gazowe, sanitarne, C.O |
Rodzaj wentylacji | grawitacyjna |
Dodatkowe informacje | kominek, pomieszczenie gospodarcze, garderoba, master bedroom |
Rzut sytuacyjny

zapytaj o projekt
Masz pytania odnośnie projektu Ka271 ?
Napisz do nas, chętnie pomożemy Ci wybrać idealny projekt domu
Napisz do nasDodatki
Dziennik budowy | 1,- |
Tablica budowy | 1,- |
Projekt wentylacji mechanicznej | 1200,- |
Projekt pompy ciepła | 800,- |
Kotłownia na paliwo stałe | 550,- |
Pakiet szamba szczelnego | 300,- |
Przydomowa oczyszczalnia ścieków | 500,- |
Kosztorys inwestorski | 550,- |
Dodatkowy papierowy egzemplarz projektu | 600,- |
Opis projektu
Ka271 to oryginalny projekt domu piętrowego w technologii murowanej o powierzchni mieszkalnej wynoszącej 122.79 m2. Pokryty jest wielospadowym dachem o kącie nachylenia 35 stopni. Projekt domu piętrowego z kominkiem uwzględnia także ogrzewanie gazowe oraz wentylację grawitacyjną, należy zatem do niedrogich w budowie. Jedna ściana bez okien umożliwia usytuowanie budynku na granicy działki. Jest to projekt domu z garażem dwustanowiskowym z niewielkim pomieszczeniem gospodarczym, zlokalizowanym na frontowej, węższej ścianie budynku i z wejściem od bocznej strony, zapewniającym maksimum prywatności. W środkowej części budynku na parterze znajduje się niewielka toaleta oraz klatka schodowa, zaś w tylnej – przestronny salon z jadalnią i otwartą kuchnią, a także wyjściem na taras. Na górnej kondygnacji znajdują się łazienka oraz cztery sypialnie – w tym jedna to master bedroom, czyli z własną łazienką i garderobą. Całość jest idealnie przystosowana do zamieszkania przez nawet 5-osobową rodzinę.