Rzuty projektu
Rzut parteru
| Lp | Nazwa pomieszczenia | Pow. użytkowa |
|---|---|---|
| 1a | wiatrołap | 2,13 m2 |
| 2a | korytarz | 4,20 m2 |
| 3a | WC | 1,41 m2 |
| 4a | salon + jadalnia | 26,53 m2 |
| 5a | kuchnia | 6,82 m2 |
| Pow. użytkowa | 41,09 m2 | |
| 6a | pom. gospodarcze | 1,99 m2 |
| 7a | garaż | 18,13 m2 |
| Pow. razem | 61,21 m2 | |
TARAS 22,30 m2
| Lp | Nazwa pomieszczenia | Pow. użytkowa |
|---|---|---|
| 1a | wiatrołap | 2,13 m2 |
| 2a | korytarz | 4,20 m2 |
| 3a | WC | 1,41 m2 |
| 4a | salon + jadalnia | 26,53 m2 |
| 5a | kuchnia | 6,82 m2 |
| Pow. użytkowa | 41,09 m2 | |
| 6a | pom. gospodarcze | 1,99 m2 |
| 7a | garaż | 18,13 m2 |
| Pow. razem | 61,21 m2 | |
TARAS 22,30 m2
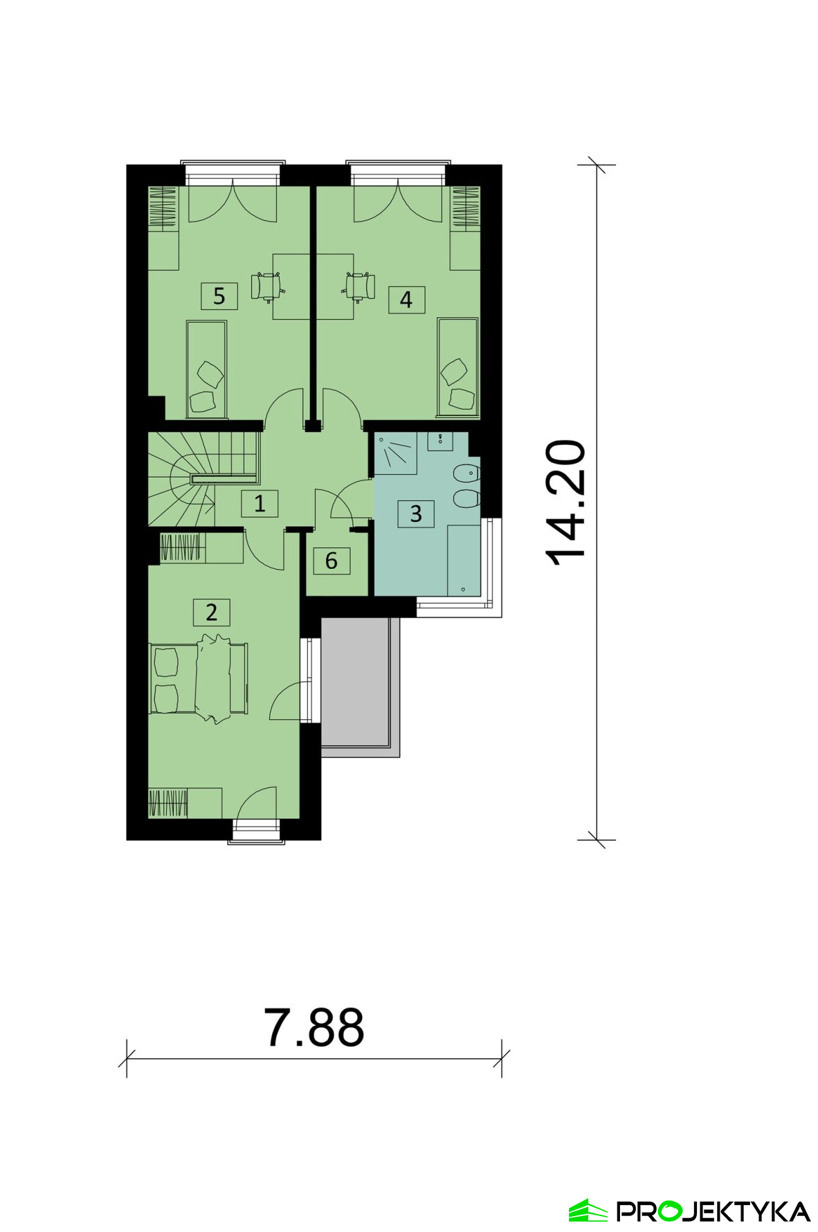
Rzut piętra
| Lp | Nazwa pomieszczenia | Pow. użytkowa |
|---|---|---|
| 1b | korytarz | 5,53 m2 |
| 2b | pokój | 18,65 m2 |
| 3b | łazienka | 7,66 m2 |
| 4b | pokój | 17,08 m2 |
| 5b | pokój | 16,66 m2 |
| 6b | schowek | 1,96 m2 |
| Pow. użytkowa | 67,54 m2 | |
| 7b | balkon | 4,21 m2 |
| Lp | Nazwa pomieszczenia | Pow. użytkowa |
|---|---|---|
| 1b | korytarz | 5,53 m2 |
| 2b | pokój | 18,65 m2 |
| 3b | łazienka | 7,66 m2 |
| 4b | pokój | 17,08 m2 |
| 5b | pokój | 16,66 m2 |
| 6b | schowek | 1,96 m2 |
| Pow. użytkowa | 67,54 m2 | |
| 7b | balkon | 4,21 m2 |
Wszystkie parametry
| Powierzchnia mieszkalna | 108.63 m2 |
| Pow. zabudowy | 90.86 m2 |
| Liczba pokoi | 4 |
| Liczba łazienek | 1 |
| Liczba sypialni | 3 |
| Ogrzewanie | gazowe |
| Wysokość parteru | 2.88 m |
| Wysokość poddasza | 2.66 m |
| Dach | płaski |
| Rodzaj zabudowy | wolnostojący |
| Pokrycie dachu | papa |
| Kąt nachylenia dachu | 3° |
| Powierzchnia dachu | 73.35 m2 |
| Powierzchnia całkowita | 178.18 m2 |
| Min. wymiary działki | 11.69 m / 24.8 m |
| Wysokość budynku | 7.72 m |
| Szerokość zabudowy | 7.69 m |
| Długość zabudowy | 14.20 m |
| Podpiwniczenie (z piwnicą) | Nie |
| Kondygnacje | piętrowy |
| Technologia | murowany |
| Garaż | jednostanowiskowy |
| Instalacje | elektryczne, gazowe, sanitarne, C.O |
| Dodatkowe informacje | na wąską działkę, kominek |
Dane kosztorysowe
Poniższe koszty budowy są szacunkowe i mogą się różnić ze względu na:
- lokalizację (województwo)
- realizację (system zlecony lub gospodarczy)
Szczegółowy kosztorys mogą Państwo zamówić przy składaniu zamówienia na projekt domu.
od 129 907 zł netto - stan surowy zamknięty
od 195 225 zł netto - stan deweloperski
Do podanych cen należy doliczyć podatek VAT.
Rzut sytuacyjny
zapytaj o projekt
Masz pytania odnośnie projektu Ka28 S L?
Napisz do nas, chętnie pomożemy Ci wybrać idealny projekt domu
Napisz do nasDodatki
| Dziennik budowy | 1,- |
| Tablica budowy | 1,- |
| Projekt wentylacji mechanicznej | 1200,- |
| Projekt pompy ciepła | 800,- |
| Kotłownia na paliwo stałe | 550,- |
| Projekt ogrzewania podłogowego | 500,- |
| Pakiet szamba szczelnego | 300,- |
| Przydomowa oczyszczalnia ścieków | 500,- |
| Kosztorys inwestorski | 550,- |
Opis projektu
Ka28 S to gotowy projekt domu jednorodzinnego, z możliwością zabudowy bliźniaczej. Elegancka i nowoczesna kubatura została podkreślona drewnianą okładziną oraz szarą elewacją. Duże okna zapewniają idealne oświetlenie, zaś jednostanowiskowy garaż dodaje mu praktycznego charakteru.
Na parterze w gotowy projekt domu jednorodzinnego zlokalizowano wiatrołap prowadzący do strefy dziennej domu. Znajdziemy w niej otwartą kuchnię oraz jadalnię z dużym salonem. Idealne oświetlenie zapewniają duże okna z wyjściem na okalający parter, taras. Dzięki centralnie umieszczonym schodom w łatwy sposób dostaniemy się na piętro.
Na piętrze w gotowy projekt domu jednorodzinnego, znajdziemy 2 sypialnie dla dzieci oraz dużą sypialnię z prywatnym balkonem dla rodziców. Dodatkowo duża łazienka dla mieszkańców pozwala na umieszczenie w niej wanny, prysznica, umywalki oraz WC. Ponadto schowek w łatwy sposób można przekształcić w garderobę. W przypadku lokalizowania segmentu w formie budynku wolnostojącego na działce, należy poszerzyć budynek o szerokość ocieplenia ściany zewnętrznej.
Na parterze w gotowy projekt domu jednorodzinnego zlokalizowano wiatrołap prowadzący do strefy dziennej domu. Znajdziemy w niej otwartą kuchnię oraz jadalnię z dużym salonem. Idealne oświetlenie zapewniają duże okna z wyjściem na okalający parter, taras. Dzięki centralnie umieszczonym schodom w łatwy sposób dostaniemy się na piętro.
Na piętrze w gotowy projekt domu jednorodzinnego, znajdziemy 2 sypialnie dla dzieci oraz dużą sypialnię z prywatnym balkonem dla rodziców. Dodatkowo duża łazienka dla mieszkańców pozwala na umieszczenie w niej wanny, prysznica, umywalki oraz WC. Ponadto schowek w łatwy sposób można przekształcić w garderobę. W przypadku lokalizowania segmentu w formie budynku wolnostojącego na działce, należy poszerzyć budynek o szerokość ocieplenia ściany zewnętrznej.




