Wszystkie parametry
| Powierzchnia mieszkalna | 100.91 m2 |
| Pow. zabudowy | 159.27 m2 |
| Liczba pokoi | 3 |
| Liczba łazienek | 2 |
| Liczba sypialni | 2 |
| Ogrzewanie | gazowe |
| Poddasze | strych |
| Wysokość parteru | 2.70 m |
| Wysokość poddasza | 2.38 m |
| Dach | dwuspadowy |
| Rodzaj zabudowy | wolnostojący |
| Pokrycie dachu | blachodachówka, dachówka |
| Kąt nachylenia dachu | 30° |
| Powierzchnia dachu | 230.00 m2 |
| Powierzchnia całkowita | 159.03 m2 |
| Min. wymiary działki | 23.8 m / 20.65 m |
| Wysokość budynku | 6.9 m |
| Szerokość zabudowy | 15.80 m |
| Długość zabudowy | 11.25 m |
| Powierzchnia. tarasu | 43.00 m2 |
| Podpiwniczenie (z piwnicą) | Nie |
| Kondygnacje | parterowy |
| Technologia | murowany |
| Garaż | jednostanowiskowy |
| Instalacje | elektryczne, gazowe, sanitarne, C.O |
| Rodzaj wentylacji | grawitacyjna |
| Dodatkowe informacje | kominek, pomieszczenie gospodarcze, spiżarnia, pralnia |
Dane kosztorysowe
Poniższe koszty budowy są szacunkowe i mogą się różnić ze względu na:
- lokalizację (województwo)
- realizację (system zlecony lub gospodarczy)
od 269 696 zł netto - stan surowy zamknięty
od 596 708 zł netto - stan deweloperski
Do podanych cen należy doliczyć podatek VAT.
Szczegółowy kosztorys mogą Państwo zamówić przy składaniu zamówienia na projekt domu.
____
Data opracowania: II kw. 2024
Rzut sytuacyjny
zapytaj o projekt
Masz pytania odnośnie projektu Ka30 L?
Napisz do nas, chętnie pomożemy Ci wybrać idealny projekt domu
Napisz do nasDodatki
| Dziennik budowy | 1,- |
| Tablica budowy | 1,- |
| Projekt wentylacji mechanicznej | 1200,- |
| Projekt pompy ciepła | 800,- |
| Kotłownia na paliwo stałe | 550,- |
| Pakiet szamba szczelnego | 300,- |
| Przydomowa oczyszczalnia ścieków | 500,- |
| Kosztorys inwestorski | 550,- |
| Dodatkowy papierowy egzemplarz projektu | 600,- |
Opis projektu
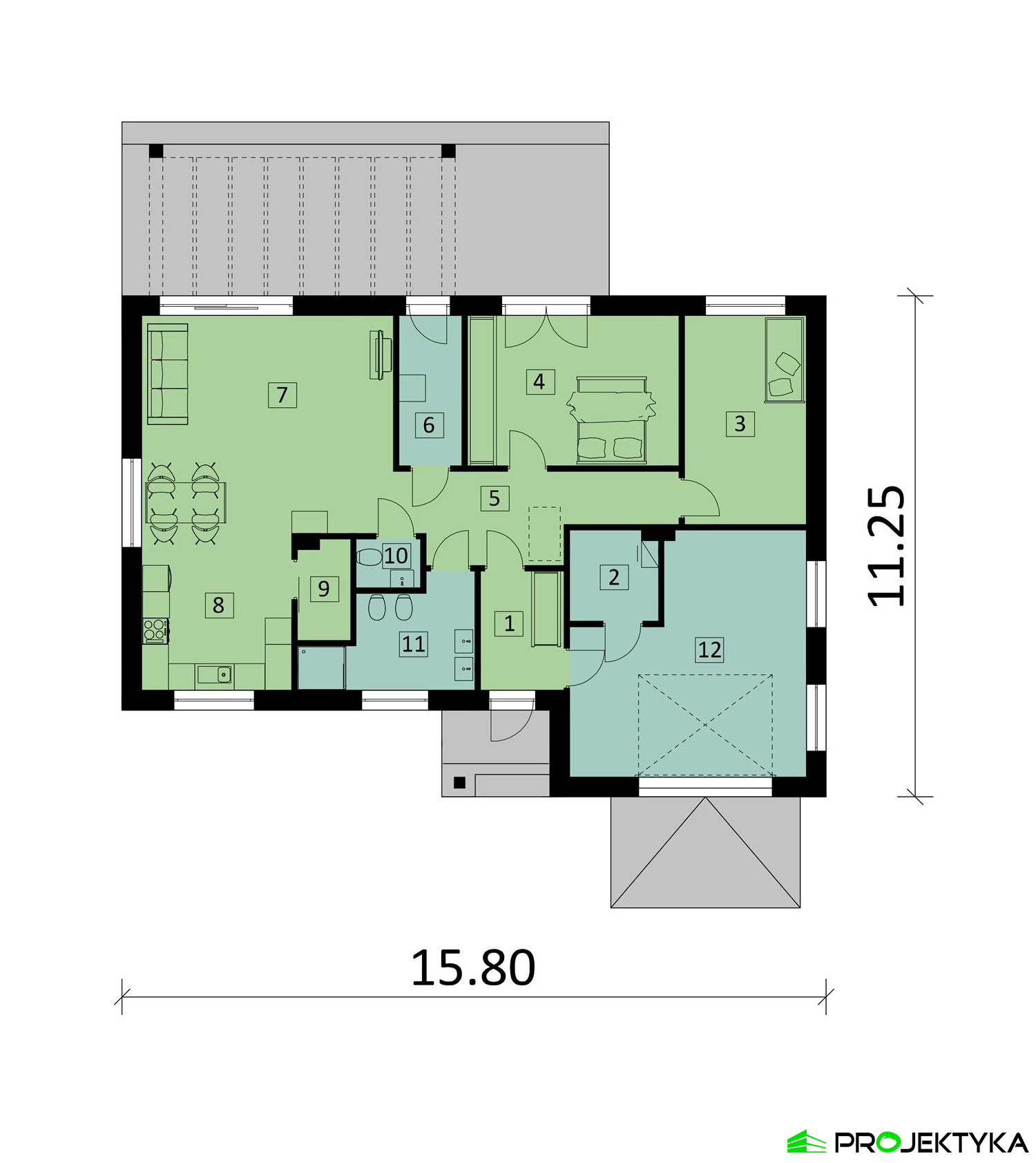
Ka30 to gotowy projekt domu parterowego, który został wykonany w tradycyjnym stylu. Prosta bryła z dwuspadowym dachem, to tani w budowie gotowy projekt domu jednorodzinnego. Minimalistyczna kubatura budynku, została urozmaicona drewnianymi palisadami. Naturalne wykończenie elewacji budynku, podkreśla wejście do domu, drzwi oraz okna tarasowe. Dwuspadowy dach jaki przewiduje gotowy projekt domu parterowego, wykonany w systemie dźwigarów prefabrykowanych, znacznie obniża koszty budowy.
Powierzchnię domu parterowego, podzielono na dwie strefy. Strefa dzienna obejmuje jasną kuchnię z dużym oknem nad blatem kuchennym oraz spiżarnię na domowe zaprawy. Dodatkowo zlokalizowano w niej jadalnię wraz z przestronnym salonem. Gotowy projekt domu parterowego, obejmuje zadaszony taras, dzięki któremu spędzisz z rodziną radosne wiosenne chwile, zaś latem osłonisz się od słońca. W strefie dziennej znajduje się również łazienka dla gości.
Projekt gotowego domu parterowego w strefie nocnej przewiduje wykonanie dużej sypialni oraz pokoju dla dzieci lub gości. Znajdziemy w niej również pralnię, która ułatwia prace gospodarcze oraz utrzymanie porządku. Gotowy projekt domu parterowego zawiera dużą kotłownię, która umożliwia zastosowanie urządzeń zasilanych różnym rodzajem opału. W jej pobliżu znajduje się również, przestronny jednostanowiskowy garaż, natomiast w przestrzeni międzydźwigarowej wydzielono strych do przechowywania przedmiotów sezonowych.
Powierzchnię domu parterowego, podzielono na dwie strefy. Strefa dzienna obejmuje jasną kuchnię z dużym oknem nad blatem kuchennym oraz spiżarnię na domowe zaprawy. Dodatkowo zlokalizowano w niej jadalnię wraz z przestronnym salonem. Gotowy projekt domu parterowego, obejmuje zadaszony taras, dzięki któremu spędzisz z rodziną radosne wiosenne chwile, zaś latem osłonisz się od słońca. W strefie dziennej znajduje się również łazienka dla gości.
Projekt gotowego domu parterowego w strefie nocnej przewiduje wykonanie dużej sypialni oraz pokoju dla dzieci lub gości. Znajdziemy w niej również pralnię, która ułatwia prace gospodarcze oraz utrzymanie porządku. Gotowy projekt domu parterowego zawiera dużą kotłownię, która umożliwia zastosowanie urządzeń zasilanych różnym rodzajem opału. W jej pobliżu znajduje się również, przestronny jednostanowiskowy garaż, natomiast w przestrzeni międzydźwigarowej wydzielono strych do przechowywania przedmiotów sezonowych.




