Rzuty projektu
Rzut
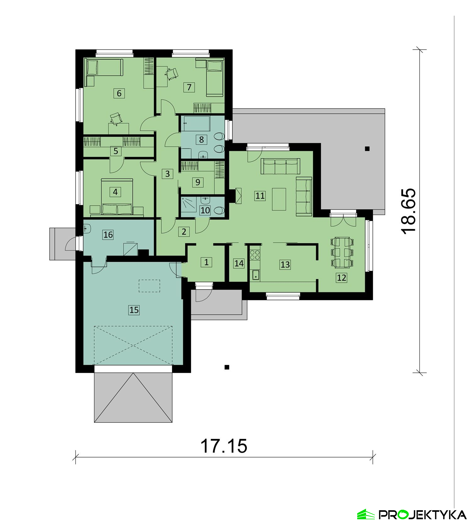
| Lp | Nazwa pomieszczenia | Pow. użytkowa |
|---|---|---|
| 1 | wiatrołap | 4,51 m2 |
| 2 | hol | 6,83 m2 |
| 3 | korytarz | 7,63 m2 |
| 4 | sypialnia | 13,71 m2 |
| 5 | garderoba | 4,81 m2 |
| 6 | sypialnia | 18,16 m2 |
| 7 | sypialnia | 12,76 m2 |
| 8 | łazienka | 6,32 m2 |
| 9 | garderoba | 4,94 m2 |
| 10 | WC | 3,05 m2 |
| 11 | salon | 25,94 m2 |
| 12 | jadalnia | 11,93 m2 |
| 13 | kuchnia | 10,34 m2 |
| Pow. użytkowa | 130,93 m2 | |
| 14 | pom. gospodarcze | 2,20 m2 |
| 15 | garaż | 34,00 m2 |
| 16 | kotłownia | 8,35 m2 |
| Pow. razem | 175,48 m2 | |
TARAS 31,98 m2
| Lp | Nazwa pomieszczenia | Pow. użytkowa |
|---|---|---|
| 1 | wiatrołap | 4,51 m2 |
| 2 | hol | 6,83 m2 |
| 3 | korytarz | 7,63 m2 |
| 4 | sypialnia | 13,71 m2 |
| 5 | garderoba | 4,81 m2 |
| 6 | sypialnia | 18,16 m2 |
| 7 | sypialnia | 12,76 m2 |
| 8 | łazienka | 6,32 m2 |
| 9 | garderoba | 4,94 m2 |
| 10 | WC | 3,05 m2 |
| 11 | salon | 25,94 m2 |
| 12 | jadalnia | 11,93 m2 |
| 13 | kuchnia | 10,34 m2 |
| Pow. użytkowa | 130,93 m2 | |
| 14 | pom. gospodarcze | 2,20 m2 |
| 15 | garaż | 34,00 m2 |
| 16 | kotłownia | 8,35 m2 |
| Pow. razem | 175,48 m2 | |
TARAS 31,98 m2
Wszystkie parametry
| Powierzchnia mieszkalna | 130.93 m2 |
| Pow. zabudowy | 218.86 m2 |
| Liczba pokoi | 4 |
| Liczba łazienek | 2 |
| Liczba sypialni | 3 |
| Ogrzewanie | gazowe |
| Poddasze | brak |
| Wysokość parteru | 2.70 m |
| Dach | wielospadowy |
| Rodzaj zabudowy | wolnostojący |
| Pokrycie dachu | blachodachówka, dachówka |
| Kąt nachylenia dachu | 25° |
| Powierzchnia dachu | 322.31 m2 |
| Powierzchnia całkowita | 218.86 m2 |
| Min. wymiary działki | 25.15 m / 26.65 m |
| Wysokość budynku | 5.83 m |
| Szerokość zabudowy | 17.15 m |
| Długość zabudowy | 18.65 m |
| Podpiwniczenie (z piwnicą) | Nie |
| Kondygnacje | parterowy |
| Technologia | murowany |
| Garaż | dwustanowiskowy |
| Instalacje | elektryczne, gazowe, sanitarne, C.O |
| Rodzaj wentylacji | grawitacyjna |
| Dodatkowe informacje | kominek, pomieszczenie gospodarcze, półotwarta kuchnia, garderoba |
Rzut sytuacyjny
zapytaj o projekt
Masz pytania odnośnie projektu Ka40 ?
Napisz do nas, chętnie pomożemy Ci wybrać idealny projekt domu
Napisz do nasWarianty projektu
Dodatki
| Dziennik budowy | 1,- |
| Tablica budowy | 1,- |
| Projekt wentylacji mechanicznej | 1200,- |
| Projekt pompy ciepła | 800,- |
| Kotłownia na paliwo stałe | 550,- |
| Projekt ogrzewania podłogowego | 500,- |
| Pakiet szamba szczelnego | 300,- |
| Przydomowa oczyszczalnia ścieków | 500,- |
| Kosztorys inwestorski | 550,- |
| Dodatkowy papierowy egzemplarz projektu | 600,- |
Opis projektu
Gotowy projekt domu parterowego Ka40 został wykonany w technologii murowanej. Elewacja z tynku strukturalnego ozdobiona palisadami drewnianymi, podkreśliła jego nowoczesny charakter. Dodatkowo gotowy projekt domu przewiduje dwustanowiskowy garaż oraz kotłownię.
Strefa dzienna w gotowy projekt domu parterowego zakłada wykonanie półotwartej kuchni z długim blatem roboczym, oraz jadalni z okazałym oknem tarasowym. Na taras możemy wyjść zarówno z jadalni oraz przestronnego i dobrze oświetlonego salonu. Dodatkowo w strefie dziennej umieszczono pomieszczenie gospodarcze i łazienkę dla gości.
Gotowy projekt domu parterowego w strefie nocnej przewiduje 3 sypialnie oraz 2 garderoby. Do wszystkich pomieszczeń dostaniemy się dzięki długiemu korytarzowi. Ponadto umieszczono w niej łaziankę dla mieszkańców, w której znajdziemy wannę, umywalkę, prysznic, WC.
Strefa dzienna w gotowy projekt domu parterowego zakłada wykonanie półotwartej kuchni z długim blatem roboczym, oraz jadalni z okazałym oknem tarasowym. Na taras możemy wyjść zarówno z jadalni oraz przestronnego i dobrze oświetlonego salonu. Dodatkowo w strefie dziennej umieszczono pomieszczenie gospodarcze i łazienkę dla gości.
Gotowy projekt domu parterowego w strefie nocnej przewiduje 3 sypialnie oraz 2 garderoby. Do wszystkich pomieszczeń dostaniemy się dzięki długiemu korytarzowi. Ponadto umieszczono w niej łaziankę dla mieszkańców, w której znajdziemy wannę, umywalkę, prysznic, WC.




