Ka40 Sz

Gotowy projekt domu parterowego Ka40 Sz został wykonany w technologii drewnianej. Elewacja z tynku strukturalnego ozdobiona palisadami drewnianymi, podkreśliła jego nowoczesny charakter. Dodatkowo gotowy projekt domu przewiduje dwustanowiskowy garaż oraz kotłownię. Strefa dzienna w gotowy projekt domu parterowego zakłada wykonanie półotwartej kuchni z długim blatem roboczym, oraz jadalni z okazałym oknem tarasowym. Na taras możemy wyjść zarówno z jadalni oraz przestronnego i dobrze oświetlonego ... Pełny opis

Ka40 Sz

Oczekiwanie na projekt: 21 dni

5149,-

kup projekt
ulubione
porównaj
drukuj
Pow. mieszkalna 133.13 m2
Min. wymiary działki 25.15 m / 26.65 m
Kondygnacje parterowy
Technologia szkieletowy drewniany
Garaż dwustanowiskowy

Rzuty projektu

Rzut

rzut-karta-domu
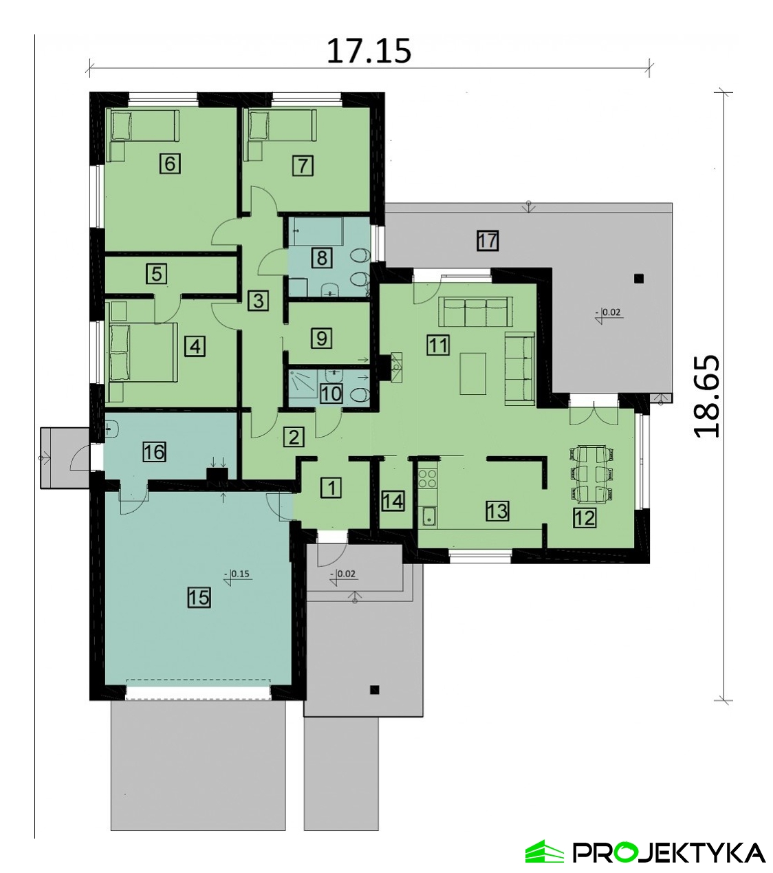
LpNazwa pomieszczeniaPow. użytkowa
1 wiatrołap 4,51 m2
2 hol 6,83 m2
3 korytarz 7,63 m2
4 sypialnia 13,71 m2
5 garderoba 4,81 m2
6 sypialnia 18,16 m2
7 sypialnia 12,76 m2
8 łazienka 6,32 m2
9 garderoba 4,94 m2
10 WC 3,05 m2
11 salon 25,94 m2
12 jadalnia 11,93 m2
13 kuchnia 10,34 m2
14 pom. gospodarcze 2,20 m2
Pow. użytkowa 133,13 m2
15 garaż 34,00 m2
16 kotłownia 8,35 m2
17 taras 31,98 m2
LpNazwa pomieszczeniaPow. użytkowa
1 wiatrołap 4,51 m2
2 hol 6,83 m2
3 korytarz 7,63 m2
4 sypialnia 13,71 m2
5 garderoba 4,81 m2
6 sypialnia 18,16 m2
7 sypialnia 12,76 m2
8 łazienka 6,32 m2
9 garderoba 4,94 m2
10 WC 3,05 m2
11 salon 25,94 m2
12 jadalnia 11,93 m2
13 kuchnia 10,34 m2
14 pom. gospodarcze 2,20 m2
Pow. użytkowa 133,13 m2
15 garaż 34,00 m2
16 kotłownia 8,35 m2
17 taras 31,98 m2

Wszystkie parametry

Liczba pokoi 4
Liczba łazienek 2
Liczba sypialni 3
Dach wielospadowy
Rodzaj zabudowy wolnostojący
Min. wymiary działki 25.15 m / 26.65 m
Szerokość zabudowy 17.15 m
Długość zabudowy 18.65 m
Podpiwniczenie (z piwnicą) Nie
Kondygnacje parterowy
Technologia szkieletowy drewniany
Garaż dwustanowiskowy
Instalacje elektryczne, gazowe, sanitarne, C.O
Dodatkowe informacje kominek, półotwarta kuchnia

Elewacje

Rzut sytuacyjny

Lokalizacja budynku
Fundamenty: ławy żelbetowe/stopy fundamentowe
Ściany zewnętrzne: szkielet drewniany z drewna KVH, docieplane wełną mineralną
Strop: drewniany - dolny pas wiązara kratowego MiTek
Elewacje: tynk cienkowarstwowy/okładzina drewniana
Ka40 Sz

zapytaj o projekt

Masz pytania odnośnie projektu Ka40 Sz ?

Napisz do nas, chętnie pomożemy Ci wybrać idealny projekt domu

Napisz do nas

Warianty projektu

Dodatki

Dziennik budowy 1,-
Tablica budowy 1,-
Projekt wentylacji mechanicznej 1200,-
Projekt pompy ciepła 800,-
Kotłownia na paliwo stałe 550,-
Projekt ogrzewania podłogowego 500,-
Pakiet szamba szczelnego 300,-
Przydomowa oczyszczalnia ścieków 500,-
Kosztorys inwestorski 550,-

Opis projektu

Gotowy projekt domu parterowego Ka40 Sz został wykonany w technologii drewnianej. Elewacja z tynku strukturalnego ozdobiona palisadami drewnianymi, podkreśliła jego nowoczesny charakter. Dodatkowo gotowy projekt domu przewiduje dwustanowiskowy garaż oraz kotłownię. 
Strefa dzienna w gotowy projekt domu parterowego zakłada wykonanie półotwartej kuchni z długim blatem roboczym, oraz jadalni z okazałym oknem tarasowym. Na taras możemy wyjść zarówno z jadalni oraz przestronnego i dobrze oświetlonego salonu. Dodatkowo w strefie dziennej umieszczono pomieszczenie gospodarcze i łazienkę dla gości. 
Gotowy projekt domu parterowego w strefie nocnej przewiduje 3 sypialnie oraz 2 garderoby. Do wszystkich pomieszczeń dostaniemy się dzięki długiemu korytarzowi. Ponadto umieszczono w niej łaziankę dla mieszkańców, w której znajdziemy wannę, umywalkę, prysznic, WC. Jest to projekt koncepcyjny. Podane wymiary zewnętrzne oraz wewnątrzne są orientacyjne i mogą różnić się o ok. +10%.

zapytaj o projekt

Masz pytania odnośnie projektu Ka40 Sz ?

Napisz do nas, chętnie pomożemy Ci wybrać idealny projekt domu

Napisz do nas
c4ca4238a0b923820dcc509a6f75849b