Rzuty projektu
                        
                                                            
                                    
                                        
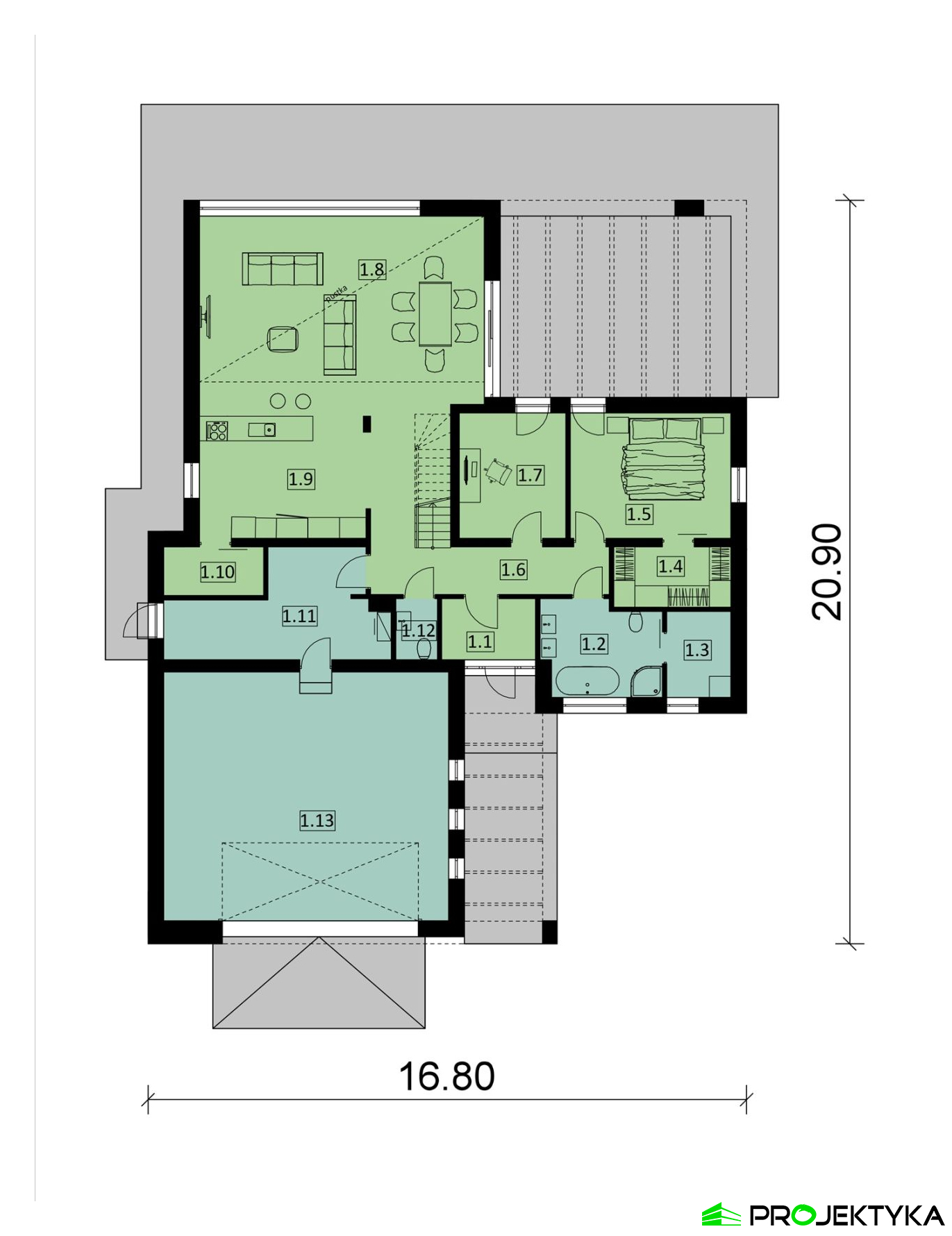
Rzut parteru
                                    
                                    
                                        
                                    
                                                                            
                                            | Lp. | Pomieszczenie | Pow. pomieszczenia | 
| 1. | wiatrołap | 4,54 m2 | 
| 2 | łazienka | 8,69 m2 | 
| 3. | pralnia | 4,36 m2 | 
| 4 | garderoba | 5,59 m2 | 
| 5 | sypialnia | 15,88 m2 | 
| 6 | holl | 17,52 m2 | 
| 7 | gabinet | 10,56 m2 | 
| 8 | salon + jadalnia | 42,40 m2 | 
| 9 | kuchnia | 17,86 m2 | 
| 10 | spiżarnia | 3,84 m2 | 
| 12 | WC | 2,01 m2 | 
| Pow. | mieszkalna | 133,25 m2 | 
| 11 | pom. gospodarcze | 14,65 m2 | 
| 13 | garaż | 56,00 m2 | 
| Pow. | użytkowa | 203,90 m2 | 
                                         
                                        
                                            | Lp. | Pomieszczenie | Pow. pomieszczenia | 
| 1. | wiatrołap | 4,54 m2 | 
| 2 | łazienka | 8,69 m2 | 
| 3. | pralnia | 4,36 m2 | 
| 4 | garderoba | 5,59 m2 | 
| 5 | sypialnia | 15,88 m2 | 
| 6 | holl | 17,52 m2 | 
| 7 | gabinet | 10,56 m2 | 
| 8 | salon + jadalnia | 42,40 m2 | 
| 9 | kuchnia | 17,86 m2 | 
| 10 | spiżarnia | 3,84 m2 | 
| 12 | WC | 2,01 m2 | 
| Pow. | mieszkalna | 133,25 m2 | 
| 11 | pom. gospodarcze | 14,65 m2 | 
| 13 | garaż | 56,00 m2 | 
| Pow. | użytkowa | 203,90 m2 | 
                                         
                                                                     
                                                            
                                    
                                        
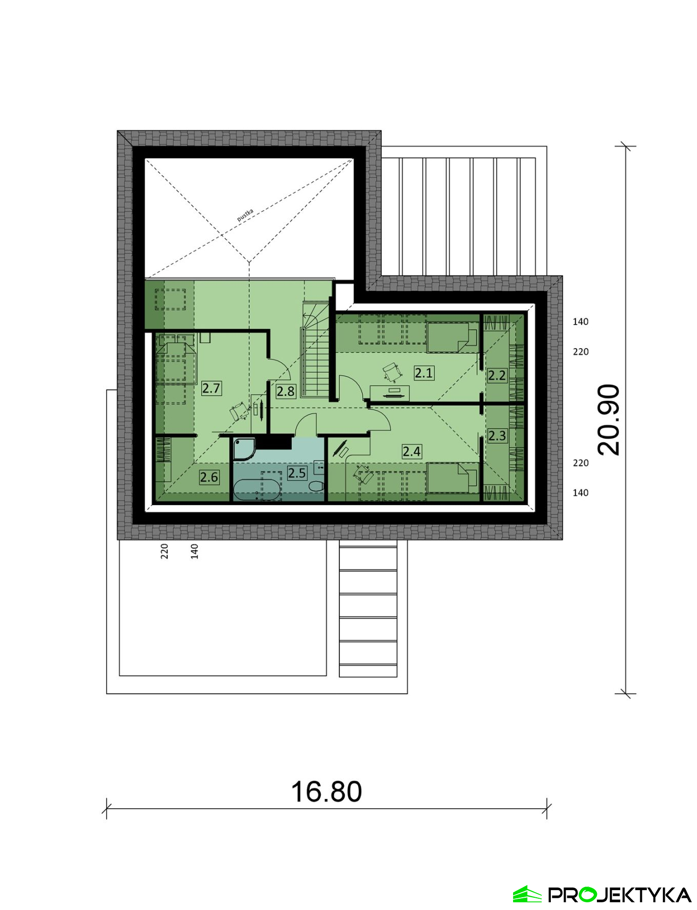
Rzut poddasza
                                    
                                    
                                        
                                    
                                                                            
                                            | Lp. | Pomieszczenie | Pow. pomieszczenia | 
| 1. | sypialnia | 13,35 m2 | 
| 2 | garderoba | 1,96 m2 | 
| 3. | garderoba | 2,17 m2 | 
| 4 | sypialnia | 14,14 m2 | 
| 5 | łazienka | 5,43 m2 | 
| 6 | garderoba | 3,31 m2 | 
| 7 | sypialnia | 12,94 m2 | 
| 8 | korytarz | 18,60 m2 | 
| Pow. | mieszkalna | 71,90 m2 | 
                                         
                                        
                                            | Lp. | Pomieszczenie | Pow. pomieszczenia | 
| 1. | sypialnia | 13,35 m2 | 
| 2 | garderoba | 1,96 m2 | 
| 3. | garderoba | 2,17 m2 | 
| 4 | sypialnia | 14,14 m2 | 
| 5 | łazienka | 5,43 m2 | 
| 6 | garderoba | 3,31 m2 | 
| 7 | sypialnia | 12,94 m2 | 
| 8 | korytarz | 18,60 m2 | 
| Pow. | mieszkalna | 71,90 m2 | 
                                         
                                                                     
                                                     
                        
                     
                                
                    Wszystkie parametry
                    
                        
                            
                                
                                                                            
                                            | Powierzchnia mieszkalna  | 
                                            205.15 m2 | 
                                        
                                                                                                                
                                            | Pow. zabudowy  | 
                                            251.43 m2 | 
                                        
                                                                                                                
                                            | Liczba pokoi | 
                                            5 | 
                                        
                                                                                                                
                                            | Liczba łazienek | 
                                            3 | 
                                        
                                                                                                                
                                            | Liczba sypialni | 
                                            4 | 
                                        
                                                                                                                
                                            | Ogrzewanie | 
                                            gazowe | 
                                        
                                                                                                                
                                            | Poddasze | 
                                            użytkowe | 
                                        
                                                                                                                
                                            | Wysokość parteru | 
                                            2.78 m | 
                                        
                                                                                                                                                    
                                            | Wysokość poddasza | 
                                            2.62 m | 
                                        
                                                                                                                
                                            | Dach | 
                                            wielospadowy | 
                                        
                                                                                                                
                                            | Rodzaj zabudowy | 
                                            wolnostojący | 
                                        
                                                                                                                                                    
                                            | Pokrycie dachu | 
                                            dachówka | 
                                        
                                                                                                                
                                            | Kąt nachylenia dachu | 
                                            35°  | 
                                        
                                                                                                                                                    
                                            | Powierzchnia dachu | 
                                            311.00 m2 | 
                                        
                                                                    
                            
                         
                        
                            
                                
                                                                            
                                            | Powierzchnia całkowita  | 
                                            566.88 m2 | 
                                        
                                                                                                                                                                                        
                                            | Min. wymiary działki | 
                                             24.8 m / 28.9 m | 
                                        
                                                                                                                
                                            | Wysokość budynku | 
                                            7.57 m | 
                                        
                                                                                                                
                                            | Szerokość zabudowy | 
                                            16.80 m | 
                                        
                                                                                                                
                                            | Długość zabudowy | 
                                            20.90 m | 
                                        
                                    
                                                                            
                                            | Powierzchnia. tarasu | 
                                            46.55 m2 | 
                                        
                                                                                                            
                                        | Podpiwniczenie (z piwnicą) | 
                                        Nie | 
                                    
                                                                                                                                                                                                                            
                                            | Kondygnacje | 
                                            parterowy z poddaszem | 
                                        
                                                                                                                
                                            | Technologia | 
                                            murowany | 
                                        
                                                                                                                
                                            | Garaż | 
                                            dwustanowiskowy | 
                                        
                                                                                                                
                                            | Instalacje | 
                                            elektryczne, gazowe, sanitarne, C.O | 
                                        
                                                                                                                                                                                                                            
                                            | Rodzaj wentylacji | 
                                            grawitacyjna | 
                                        
                                                                                                                
                                            | Dodatkowe informacje | 
                                            pomieszczenie gospodarcze, pustka nad salonem, pokój dla seniora, dodatkowy pokój na parterze, gabinet, garderoba, spiżarnia, pralnia, master bedroom | 
                                        
                                                                                                        
                            
                         
                     
                 
                
                                                                                
                                                                
                                                                
                            Rzut sytuacyjny
                            
                                                                    
                                        
                                    
                                                                            
                                            
                                                
                                                                                                            
                                                            | Fundamenty: | 
                                                            płyta fundamentowa | 
                                                        
                                                                                                                                                                
                                                            | Ściany zewnętrzne:  | 
                                                            gazobeton +20 cm styropianu | 
                                                        
                                                                                                                                                                
                                                            | Strop:  | 
                                                            Teriva | 
                                                        
                                                                                                                                                                
                                                            | Elewacje:  | 
                                                            tynk cienkowarstwowy/okładzina drewniana | 
                                                        
                                                                                                    
                                            
                                         
                                                                                                 
                         
                                                            
                        
                            
                            
                                zapytaj o projekt
                                Masz pytania odnośnie projektu Ka5 ?
                                Napisz do nas, chętnie pomożemy Ci wybrać idealny projekt domu
                                
                                    Napisz do nas
                                                                    
                             
                         
                     
                                                                
                                                                                                                                                
                                                                
                            Opis projektu
                            
                                Ka5 to gotowy projekt domu nowoczesnego, który zachwyca połączeniem geometrycznej kubatury z wielospadowym dachem. Dodatkowo drewniana i kamienna okładzina z wyjątkowym ażurowym zadaszeniem wejścia głównego i tarasu, z pewnością wyróżni Twój dom na tle innych w okolicy. Ponadto, dwustanowiskowy garaż nadaje mu funkcjonalnego charakteru. 
Kolejną zaletą w gotowy projekt domu z użytkowym poddaszem w nowoczesnym stylu, jest duża otwarta kuchnia połączona z jadalnią i salonem o powierzchni blisko 60 m2. Z tego miejsca przez duże okna, zapewniające idealne oświetlenie całego wnętrza, możemy podziwiać ogród. Wyjątkowym rozwiązaniem w gotowy projekt domu nowoczesnego jest możliwość wyjścia na taras nie tylko z salonu, ale sypialni i gabinetu, co pozwoli Ci odpocząć na świeżym powietrzu, w każdej chwili przebywania w domu, bez konieczności przechodzenia do innego pomieszczenia. Na parterze w gotowy projekt domu nowoczesnego zaplanowano wykonanie dużej łazienki oraz pomieszczeń gospodarczych takich jak; pralnia, garderoba oraz spiżarnia, które pomagają w codziennym utrzymaniu czystości. 
Gotowy projekt domu z użytkowym poddaszem, w strefie nocnej wydziela trzy sypialnie z prywatnymi garderobami oraz łazienkę z wanną i prysznicem. Gotowy projekt domu nowoczesnego okaże się idealnym wyborem, dla dużej rodziny. Natomiast wydzielenie na parterze dodatkowej sypialni, łazienki oraz garderoby do prywatnego wykorzystania przez seniora, zapewni prywatność każdemu pokoleniu.