Rzuty projektu
Rzut parteru
| Lp. | Pomieszczenie | Pow. pomieszczenia |
| 1. | wiatrołap | 4,54 m2 |
| 2 | łazienka | 8,69 m2 |
| 3. | pralnia | 4,36 m2 |
| 4 | garderoba | 5,59 m2 |
| 5 | sypialnia | 15,88 m2 |
| 6 | holl | 17,52 m2 |
| 7 | gabinet | 10,56 m2 |
| 8 | salon + jadalnia | 42,40 m2 |
| 9 | kuchnia | 17,86 m2 |
| 10 | spiżarnia | 3,84 m2 |
| 12 | WC | 2,01 m2 |
| Pow. | mieszkalna | 133,25 m2 |
| 11 | pom. gospodarcze | 14,65 m2 |
| 13 | garaż | 56,00 m2 |
| Pow. | użytkowa | 203,90 m2 |
| Lp. | Pomieszczenie | Pow. pomieszczenia |
| 1. | wiatrołap | 4,54 m2 |
| 2 | łazienka | 8,69 m2 |
| 3. | pralnia | 4,36 m2 |
| 4 | garderoba | 5,59 m2 |
| 5 | sypialnia | 15,88 m2 |
| 6 | holl | 17,52 m2 |
| 7 | gabinet | 10,56 m2 |
| 8 | salon + jadalnia | 42,40 m2 |
| 9 | kuchnia | 17,86 m2 |
| 10 | spiżarnia | 3,84 m2 |
| 12 | WC | 2,01 m2 |
| Pow. | mieszkalna | 133,25 m2 |
| 11 | pom. gospodarcze | 14,65 m2 |
| 13 | garaż | 56,00 m2 |
| Pow. | użytkowa | 203,90 m2 |
| Lp. | Pomieszczenie | Pow. pomieszczenia |
| 1. | wiatrołap | 4,54 m2 |
| 2 | łazienka | 8,69 m2 |
| 3. | pralnia | 4,36 m2 |
| 4 | garderoba | 5,59 m2 |
| 5 | sypialnia | 15,88 m2 |
| 6 | holl | 17,52 m2 |
| 7 | gabinet | 10,56 m2 |
| 8 | salon + jadalnia | 42,40 m2 |
| 9 | kuchnia | 17,86 m2 |
| 10 | spiżarnia | 3,84 m2 |
| 12 | WC | 2,01 m2 |
| Pow. | mieszkalna | 133,25 m2 |
| 11 | pom. gospodarcze | 14,65 m2 |
| 13 | garaż | 56,00 m2 |
| Pow. | użytkowa | 203,90 m2 |
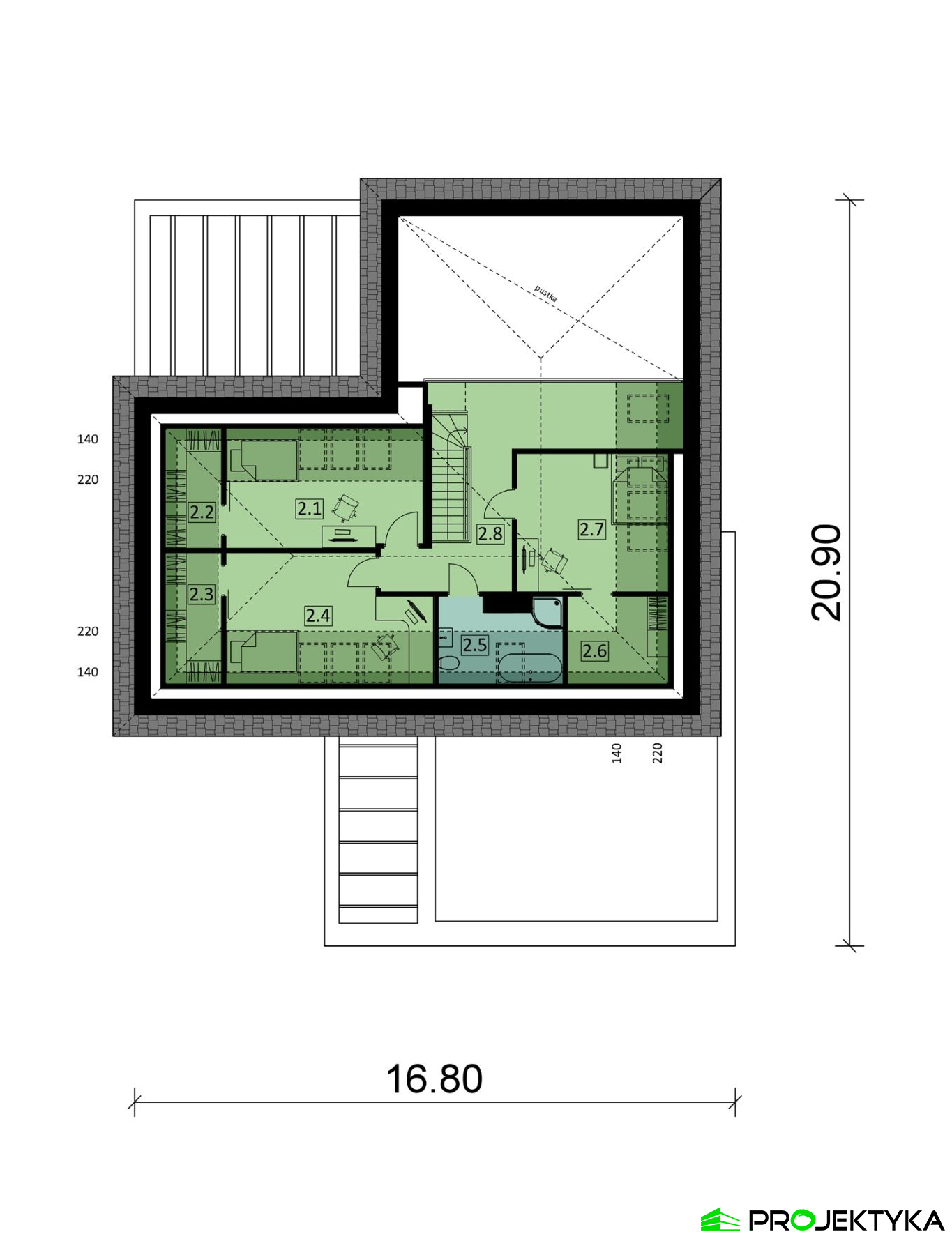
Rzut poddasza
| Lp. | Pomieszczenie | Pow. pomieszczenia |
| 1. | sypialnia | 13,35 m2 |
| 2 | garderoba | 1,96 m2 |
| 3. | garderoba | 2,17 m2 |
| 4 | sypialnia | 14,14 m2 |
| 5 | łazienka | 5,43 m2 |
| 6 | garderoba | 3,31 m2 |
| 7 | sypialnia | 12,94 m2 |
| 8 | korytarz | 18,60 m2 |
| Pow. | mieszkalna | 71,90 m2 |
| Lp. | Pomieszczenie | Pow. pomieszczenia |
| 1. | sypialnia | 13,35 m2 |
| 2 | garderoba | 1,96 m2 |
| 3. | garderoba | 2,17 m2 |
| 4 | sypialnia | 14,14 m2 |
| 5 | łazienka | 5,43 m2 |
| 6 | garderoba | 3,31 m2 |
| 7 | sypialnia | 12,94 m2 |
| 8 | korytarz | 18,60 m2 |
| Pow. | mieszkalna | 71,90 m2 |
| Lp. | Pomieszczenie | Pow. pomieszczenia |
| 1. | sypialnia | 13,35 m2 |
| 2 | garderoba | 1,96 m2 |
| 3. | garderoba | 2,17 m2 |
| 4 | sypialnia | 14,14 m2 |
| 5 | łazienka | 5,43 m2 |
| 6 | garderoba | 3,31 m2 |
| 7 | sypialnia | 12,94 m2 |
| 8 | korytarz | 18,60 m2 |
| Pow. | mieszkalna | 71,90 m2 |
Wszystkie parametry
| Powierzchnia mieszkalna |
205.15 m2 |
| Pow. zabudowy |
251.43 m2 |
| Liczba pokoi |
5 |
| Liczba łazienek |
3 |
| Liczba sypialni |
4 |
| Ogrzewanie |
gazowe |
| Poddasze |
użytkowe |
| Wysokość parteru |
2.78 m |
| Wysokość poddasza |
2.62 m |
| Dach |
wielospadowy |
| Rodzaj zabudowy |
wolnostojący |
| Pokrycie dachu |
dachówka |
| Kąt nachylenia dachu |
35° |
| Powierzchnia dachu |
311.00 m2 |
| Powierzchnia całkowita |
566.88 m2 |
| Min. wymiary działki |
24.8 m / 28.9 m |
| Wysokość budynku |
7.57 m |
| Szerokość zabudowy |
16.80 m |
| Długość zabudowy |
20.90 m |
| Powierzchnia. tarasu |
46.55 m2 |
| Podpiwniczenie (z piwnicą) |
Nie |
| Kondygnacje |
parterowy z poddaszem |
| Technologia |
murowany |
| Garaż |
dwustanowiskowy |
| Instalacje |
elektryczne, gazowe, sanitarne, C.O |
| Rodzaj wentylacji |
grawitacyjna |
| Dodatkowe informacje |
pomieszczenie gospodarcze, pustka nad salonem, pokój dla seniora, dodatkowy pokój na parterze, gabinet, garderoba, spiżarnia, pralnia, master bedroom |
Rzut sytuacyjny
| Fundamenty: |
płyta fundamentowa |
| Ściany zewnętrzne: |
gazobeton +20 cm styropianu |
| Strop: |
Teriva |
| Elewacje: |
tynk cienkowarstwowy/okładzina drewniana |
zapytaj o projekt
Masz pytania odnośnie projektu Ka5 L?
Napisz do nas, chętnie pomożemy Ci wybrać idealny projekt domu
Napisz do nas
Opis projektu
Ka5 to gotowy projekt domu nowoczesnego, który zachwyca połączeniem geometrycznej kubatury z wielospadowym dachem. Dodatkowo drewniana i kamienna okładzina z wyjątkowym ażurowym zadaszeniem wejścia głównego i tarasu, z pewnością wyróżni Twój dom na tle innych w okolicy. Ponadto, dwustanowiskowy garaż nadaje mu funkcjonalnego charakteru.
Kolejną zaletą w gotowy projekt domu z użytkowym poddaszem w nowoczesnym stylu, jest duża otwarta kuchnia połączona z jadalnią i salonem o powierzchni blisko 60 m2. Z tego miejsca przez duże okna, zapewniające idealne oświetlenie całego wnętrza, możemy podziwiać ogród. Wyjątkowym rozwiązaniem w gotowy projekt domu nowoczesnego jest możliwość wyjścia na taras nie tylko z salonu, ale sypialni i gabinetu, co pozwoli Ci odpocząć na świeżym powietrzu, w każdej chwili przebywania w domu, bez konieczności przechodzenia do innego pomieszczenia. Na parterze w gotowy projekt domu nowoczesnego zaplanowano wykonanie dużej łazienki oraz pomieszczeń gospodarczych takich jak; pralnia, garderoba oraz spiżarnia, które pomagają w codziennym utrzymaniu czystości.
Gotowy projekt domu z użytkowym poddaszem, w strefie nocnej wydziela trzy sypialnie z prywatnymi garderobami oraz łazienkę z wanną i prysznicem. Gotowy projekt domu nowoczesnego okaże się idealnym wyborem, dla dużej rodziny. Natomiast wydzielenie na parterze dodatkowej sypialni, łazienki oraz garderoby do prywatnego wykorzystania przez seniora, zapewni prywatność każdemu pokoleniu.