Rzuty projektu
                        
                                                            
                                    
                                        
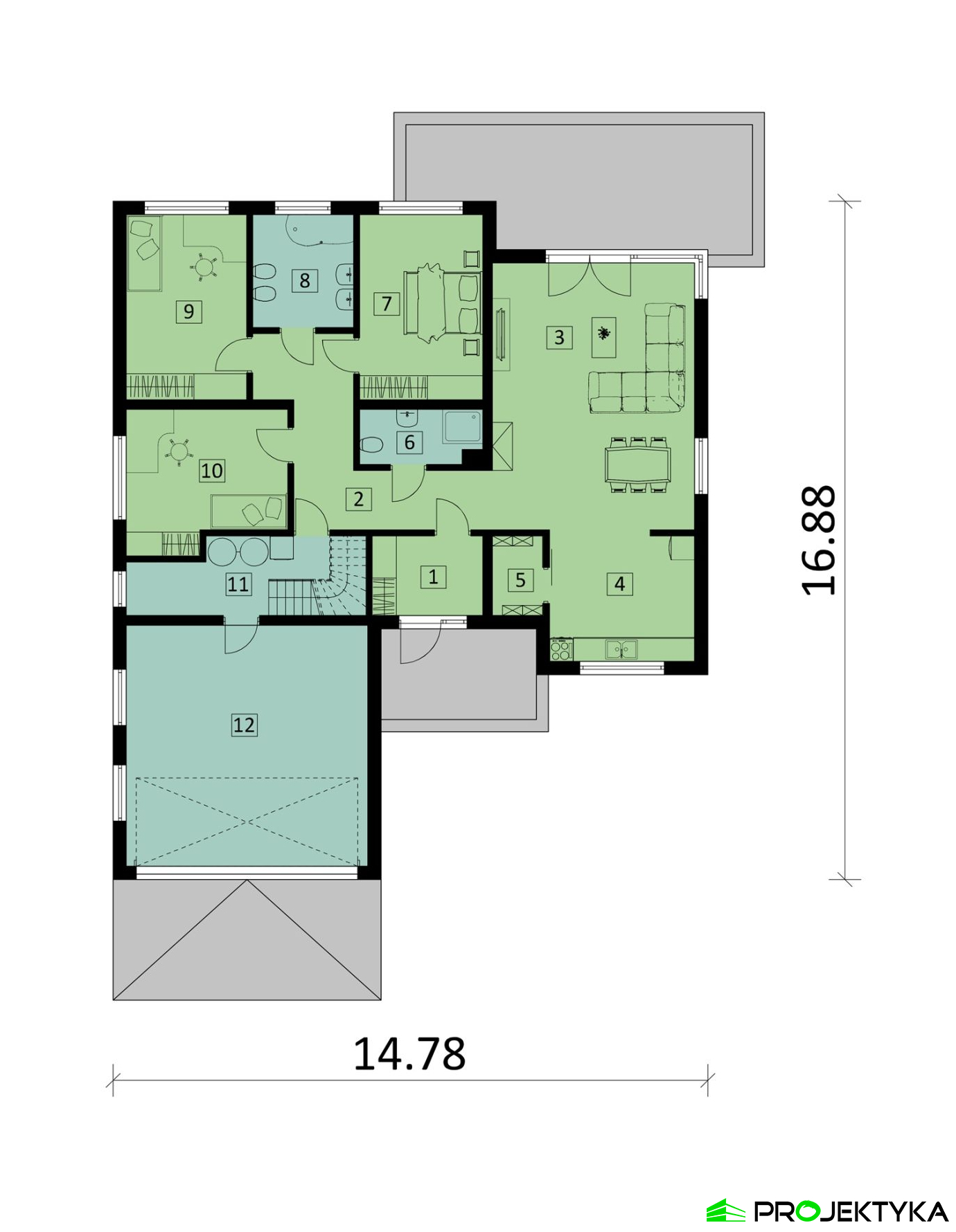
Rzut parteru 
                                    
                                    
                                        
                                    
                                                                            
                                            | Lp. | Pomieszczenie | Pow. pomieszczenia | Pow. podłogi | 
| 1 | wiatrołap | 5,45 m2 | 5,45 m2 | 
| 2 | korytarz | 14,08 m2 | 14,08 m2 | 
| 3 | salon + jadalnia | 33,76 m2 | 33,76 m2 | 
| 4 | kuchnia | 11,23 m2 | 11,23 m2 | 
| 5 | spiżarnia | 2,48 m2 | 2,48 m2 | 
| 6 | WC | 4,00 m2 | 4,00 m2 | 
| 7 | sypialnia | 14,11 m2 | 14,11 m2 | 
| 8 | łazienka | 7,05 m2 | 7,05 m2 | 
| 9 | sypialnia | 13,78 m2 | 13,78 m2 | 
| 10 | sypialnia | 13,22 m2 | 13,22 m2 | 
| Pow. | mieszkalna | 119,16 m2 | 119,16 m2 | 
| 11 | pom. gospodarcze | 11,32 m2 | 13,66 m2 | 
| 12 | garaż | 36,00 m2 | 36,00 m2 | 
| Pow. | użytkowa | 166,48 m2 | 168,82 m2 | 
                                         
                                        
                                            | Lp. | Pomieszczenie | Pow. pomieszczenia | Pow. podłogi | 
| 1 | wiatrołap | 5,45 m2 | 5,45 m2 | 
| 2 | korytarz | 14,08 m2 | 14,08 m2 | 
| 3 | salon + jadalnia | 33,76 m2 | 33,76 m2 | 
| 4 | kuchnia | 11,23 m2 | 11,23 m2 | 
| 5 | spiżarnia | 2,48 m2 | 2,48 m2 | 
| 6 | WC | 4,00 m2 | 4,00 m2 | 
| 7 | sypialnia | 14,11 m2 | 14,11 m2 | 
| 8 | łazienka | 7,05 m2 | 7,05 m2 | 
| 9 | sypialnia | 13,78 m2 | 13,78 m2 | 
| 10 | sypialnia | 13,22 m2 | 13,22 m2 | 
| Pow. | mieszkalna | 119,16 m2 | 119,16 m2 | 
| 11 | pom. gospodarcze | 11,32 m2 | 13,66 m2 | 
| 12 | garaż | 36,00 m2 | 36,00 m2 | 
| Pow. | użytkowa | 166,48 m2 | 168,82 m2 | 
                                         
                                                                     
                                                     
                        
                     
                                
                    Wszystkie parametry
                    
                        
                            
                                
                                                                            
                                            | Powierzchnia mieszkalna  | 
                                            119.16 m2 | 
                                        
                                                                                                                
                                            | Pow. zabudowy  | 
                                            197.36 m2 | 
                                        
                                                                                                                
                                            | Liczba pokoi | 
                                            4 | 
                                        
                                                                                                                
                                            | Liczba łazienek | 
                                            2 | 
                                        
                                                                                                                
                                            | Liczba sypialni | 
                                            3 | 
                                        
                                                                                                                
                                            | Ogrzewanie | 
                                            pompa ciepła | 
                                        
                                                                                                                
                                            | Poddasze | 
                                            strych | 
                                        
                                                                                                                
                                            | Wysokość parteru | 
                                            2.75 m | 
                                        
                                                                                                                                                    
                                            | Wysokość poddasza | 
                                            2.18 m | 
                                        
                                                                                                                
                                            | Dach | 
                                            wielospadowy | 
                                        
                                                                                                                
                                            | Rodzaj zabudowy | 
                                            wolnostojący | 
                                        
                                                                                                                                                    
                                            | Pokrycie dachu | 
                                            dachówka | 
                                        
                                                                                                                
                                            | Kąt nachylenia dachu | 
                                            25°  | 
                                        
                                                                                                                                                    
                                            | Powierzchnia dachu | 
                                            312.58 m2 | 
                                        
                                                                    
                            
                         
                        
                            
                                
                                                                            
                                            | Powierzchnia całkowita  | 
                                            197.36 m2 | 
                                        
                                                                                                                                                                                        
                                            | Min. wymiary działki | 
                                             22.78 m / 24.88 m | 
                                        
                                                                                                                
                                            | Wysokość budynku | 
                                            6.88 m | 
                                        
                                                                                                                
                                            | Szerokość zabudowy | 
                                            14.78 m | 
                                        
                                                                                                                
                                            | Długość zabudowy | 
                                            16.88 m | 
                                        
                                    
                                                                            
                                            | Powierzchnia. tarasu | 
                                            29.00 m2 | 
                                        
                                                                                                            
                                        | Podpiwniczenie (z piwnicą) | 
                                        Nie | 
                                    
                                                                                                                                                                                                                            
                                            | Kondygnacje | 
                                            parterowy | 
                                        
                                                                                                                
                                            | Technologia | 
                                            szkieletowy drewniany | 
                                        
                                                                                                                
                                            | Garaż | 
                                            dwustanowiskowy | 
                                        
                                                                                                                
                                            | Instalacje | 
                                            elektryczne, gazowe, sanitarne, C.O | 
                                        
                                                                                                                                                                                                                            
                                            | Rodzaj wentylacji | 
                                            grawitacyjna | 
                                        
                                                                                                                
                                            | Dodatkowe informacje | 
                                            kominek, pomieszczenie gospodarcze | 
                                        
                                                                                                        
                            
                         
                     
                 
                
                                                                                
                                                                                    
                            Rzut sytuacyjny
                            
                                                                    
                                        
                                    
                                                                            
                                            
                                                
                                                                                                            
                                                            | Fundamenty: | 
                                                            ławy fundamentowe, stopy fundamentowe | 
                                                        
                                                                                                                                                                
                                                            | Ściany zewnętrzne:  | 
                                                            szkielet drewniany docieplany wełną mineralną | 
                                                        
                                                                                                                                                                
                                                            | Strop:  | 
                                                            pas dolny dźwigara prefabrykowanego MiTek | 
                                                        
                                                                                                                                                                
                                                            | Elewacje:  | 
                                                            tynk cienkowarstwowy, deski elewacyjne | 
                                                        
                                                                                                    
                                            
                                         
                                                                                                 
                         
                                                            
                        
                            
                            
                                zapytaj o projekt
                                Masz pytania odnośnie projektu Ka50 Sz ?
                                Napisz do nas, chętnie pomożemy Ci wybrać idealny projekt domu
                                
                                    Napisz do nas
                                                                    
                             
                         
                     
                                                                
                                                                                                                                                
                                                                
                            Opis projektu
                            
                                Gotowy projektu domu Ka50 Sz bazuje na nowoczesnej kubaturze, w połączeniu z naturalnymi materiałami. Drewniana stolarka okienna i drzwiowa w połączeniu z przestronnym, zadaszonym tarasem od strony ogrodu, nadaje mu sielskiego charakteru. Ponadto, ogromną zaleta w gotowy projekt domu jest dwustanowiskowy garaż. 
Gotowy projekt domu Ka50 Sz to idealne rozwiązanie dla 4-5 osobowej rodziny. Projekt oddziela strefę dzienną od nocnej. W pierwszej znajdziemy spiżarnię oraz półotwartą kuchnie z dużym blatem roboczym, który zapewni swobodne gotowanie. Ponadto, gotowy projekt domu w jej sąsiedztwie zakłada wykonanie jadalni oraz salonu z wyjściem na taras. Natomiast, łazienka dla gości dodaje całemu wnętrzu funkcjonalności. 
Strefa nocna składa się, z sypialni dla rodziców oraz dwóch sypialni dla dzieci o blisko 15 m2 każdy. Duża łazienka z wanną oraz dwiema umywalkami, pozwoli na bezproblemowe wykonanie porannych czynności nawet kilku osób jednocześnie. Zaś, pomieszczenie gospodarcze pozwoli na utrzymanie porządku w całym domu.