Ka50 Sz L

Gotowy projektu domu Ka50 Sz bazuje na nowoczesnej kubaturze, w połączeniu z naturalnymi materiałami. Drewniana stolarka okienna i drzwiowa w połączeniu z przestronnym, zadaszonym tarasem od strony ogrodu, nadaje mu sielskiego charakteru. Ponadto, ogromną zaleta w gotowy projekt domu jest dwustanowiskowy garaż. Gotowy projekt domu Ka50 Sz to idealne rozwiązanie dla 4-5 osobowej rodziny. Projekt oddziela strefę dzienną od nocnej. W pierwszej znajdziemy spiżarnię oraz półotwartą kuchnie z dużym bl... Pełny opis

Ka50 Sz L

Oczekiwanie na projekt: 2 dni

5199,-

kup projekt
ulubione
porównaj
drukuj
Pow. mieszkalna 119.16 m2
Pow. zabudowy 197.36 m2
Wysokość budynku 6.88 m
Główny kąt dachu 25°
Min. wymiary działki 22.78 m / 24.88 m
Kondygnacje parterowy
Technologia szkieletowy drewniany
Garaż dwustanowiskowy

Rzuty projektu

Rzut parteru

rzut-karta-domu
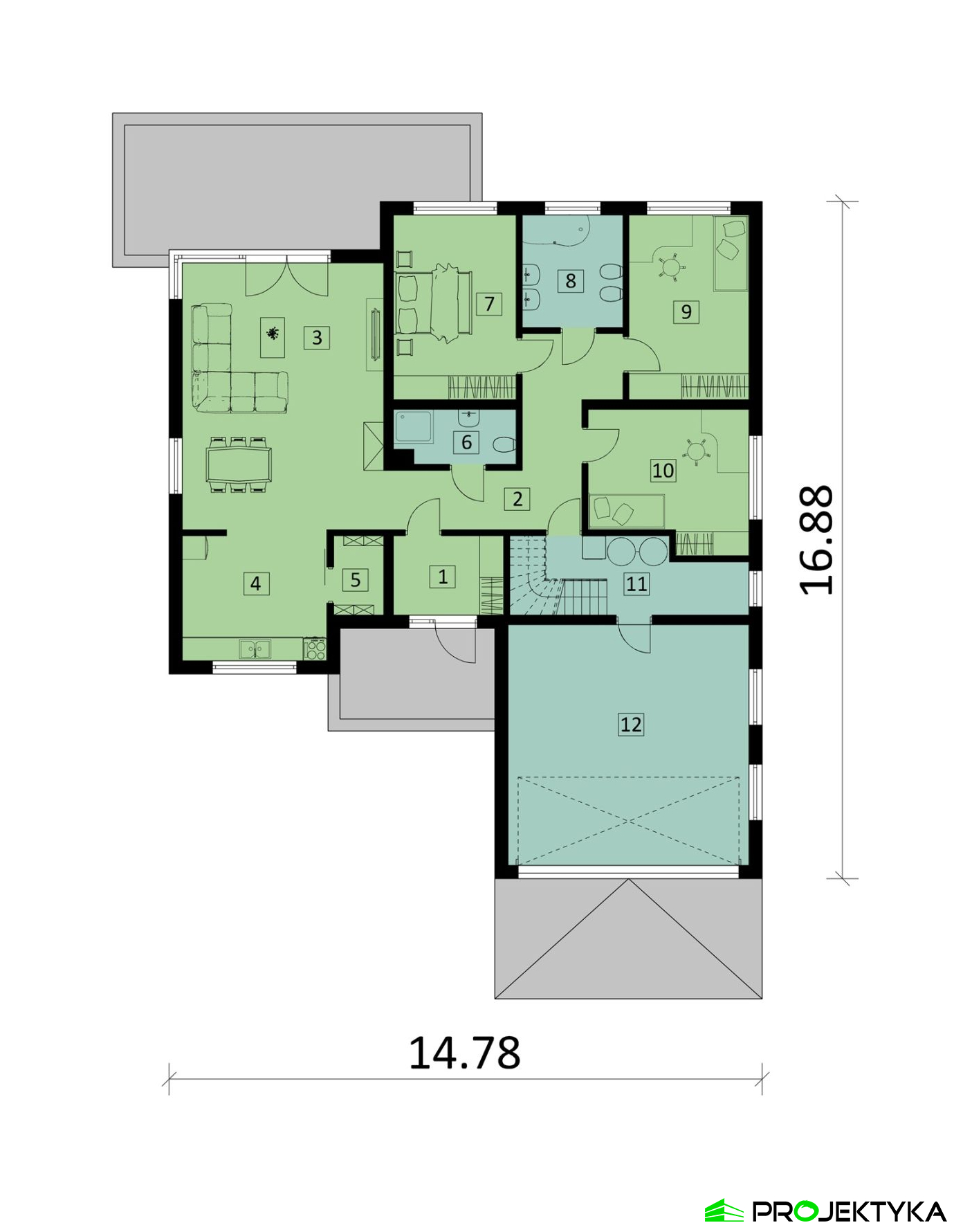
Lp.PomieszczeniePow. pomieszczeniaPow. podłogi
1wiatrołap5,45 m25,45 m2
2korytarz14,08 m214,08 m2
3salon + jadalnia33,76 m233,76 m2
4kuchnia11,23 m211,23 m2
5spiżarnia2,48 m22,48 m2
6WC4,00 m24,00 m2
7sypialnia14,11 m214,11 m2
8łazienka7,05 m27,05 m2
9sypialnia13,78 m213,78 m2
10sypialnia13,22 m213,22 m2
Pow.mieszkalna119,16 m2119,16 m2
11pom. gospodarcze11,32 m213,66 m2
12garaż36,00 m236,00 m2
Pow.użytkowa166,48 m2168,82 m2
Lp.PomieszczeniePow. pomieszczeniaPow. podłogi
1wiatrołap5,45 m25,45 m2
2korytarz14,08 m214,08 m2
3salon + jadalnia33,76 m233,76 m2
4kuchnia11,23 m211,23 m2
5spiżarnia2,48 m22,48 m2
6WC4,00 m24,00 m2
7sypialnia14,11 m214,11 m2
8łazienka7,05 m27,05 m2
9sypialnia13,78 m213,78 m2
10sypialnia13,22 m213,22 m2
Pow.mieszkalna119,16 m2119,16 m2
11pom. gospodarcze11,32 m213,66 m2
12garaż36,00 m236,00 m2
Pow.użytkowa166,48 m2168,82 m2

Wszystkie parametry

Powierzchnia mieszkalna 119.16 m2
Pow. zabudowy 197.36 m2
Liczba pokoi 4
Liczba łazienek 2
Liczba sypialni 3
Ogrzewanie pompa ciepła
Poddasze strych
Wysokość parteru 2.75 m
Wysokość poddasza 2.18 m
Dach wielospadowy
Rodzaj zabudowy wolnostojący
Pokrycie dachu dachówka
Kąt nachylenia dachu 25°
Powierzchnia dachu 312.58 m2
Powierzchnia całkowita 197.36 m2
Min. wymiary działki 22.78 m / 24.88 m
Wysokość budynku 6.88 m
Szerokość zabudowy 14.78 m
Długość zabudowy 16.88 m
Powierzchnia. tarasu 29.00 m2
Podpiwniczenie (z piwnicą) Nie
Kondygnacje parterowy
Technologia szkieletowy drewniany
Garaż dwustanowiskowy
Instalacje elektryczne, gazowe, sanitarne, C.O
Rodzaj wentylacji grawitacyjna
Dodatkowe informacje kominek, pomieszczenie gospodarcze

Elewacje

Rzut sytuacyjny

Lokalizacja budynku
Fundamenty: ławy fundamentowe, stopy fundamentowe
Ściany zewnętrzne: szkielet drewniany docieplany wełną mineralną
Strop: pas dolny dźwigara prefabrykowanego MiTek
Elewacje: tynk cienkowarstwowy, deski elewacyjne
Ka50 Sz

zapytaj o projekt

Masz pytania odnośnie projektu Ka50 Sz L?

Napisz do nas, chętnie pomożemy Ci wybrać idealny projekt domu

Napisz do nas

Warianty projektu

Dodatki

Dziennik budowy 1,-
Tablica budowy 1,-
Projekt wentylacji mechanicznej 1200,-
Projekt pompy ciepła 800,-
Kotłownia na paliwo stałe 550,-
Pakiet szamba szczelnego 300,-
Przydomowa oczyszczalnia ścieków 500,-
Kosztorys inwestorski 550,-
Dodatkowy papierowy egzemplarz projektu 600,-

Opis projektu

Gotowy projektu domu Ka50 Sz bazuje na nowoczesnej kubaturze, w połączeniu z naturalnymi materiałami. Drewniana stolarka okienna i drzwiowa w połączeniu z przestronnym, zadaszonym tarasem od strony ogrodu, nadaje mu sielskiego charakteru. Ponadto, ogromną zaleta w gotowy projekt domu jest dwustanowiskowy garaż.
Gotowy projekt domu Ka50 Sz to idealne rozwiązanie dla 4-5 osobowej rodziny. Projekt oddziela strefę dzienną od nocnej. W pierwszej znajdziemy spiżarnię oraz półotwartą kuchnie z dużym blatem roboczym, który zapewni swobodne gotowanie. Ponadto, gotowy projekt domu w jej sąsiedztwie zakłada wykonanie jadalni oraz salonu z wyjściem na taras. Natomiast, łazienka dla gości dodaje całemu wnętrzu funkcjonalności.
Strefa nocna składa się, z sypialni dla rodziców oraz dwóch sypialni dla dzieci o blisko 15 m2 każdy. Duża łazienka z wanną oraz dwiema umywalkami, pozwoli na bezproblemowe wykonanie porannych czynności nawet kilku osób jednocześnie. Zaś, pomieszczenie gospodarcze pozwoli na utrzymanie porządku w całym domu.

zapytaj o projekt

Masz pytania odnośnie projektu Ka50 Sz L?

Napisz do nas, chętnie pomożemy Ci wybrać idealny projekt domu

Napisz do nas
c4ca4238a0b923820dcc509a6f75849b