Ka53

Ka53 to gotowy projekt domu parterowego utrzymany w sielskim wzornictwie z elementami modernizmu. Dom zostanie wykonany w technologii murowanej, zaś jego formę uatrakcyjni stolarka w kolorze drewnopodobnym oraz okładzina drewniana. Ponadto, dwustanowiskowy garaż, podkreśla jego funkcjonalność. Do strefy dziennej w gotowy projekt domu parterowego wejdziemy przez wiatrołap, chroniący nas przed stratami ciepła w chłodne dni. Powierzchnia użytkowa, została zaprojektowana w centralnej części domu, be... Pełny opis

Ka53

Oczekiwanie na projekt: 21 dni

4099,- 4499,-

Najniższa cena z 30 dni przed obniżką: 4499

kup projekt
ulubione
porównaj
drukuj
Pow. mieszkalna 104.46 m2
Pow. zabudowy 181.34 m2
Wysokość budynku 5.7 m
Główny kąt dachu 25°
Min. wymiary działki 19.25 m / 30.49 m
Kondygnacje parterowy
Technologia murowany
Garaż dwustanowiskowy

Rzuty projektu

Rzut

rzut-karta-domu
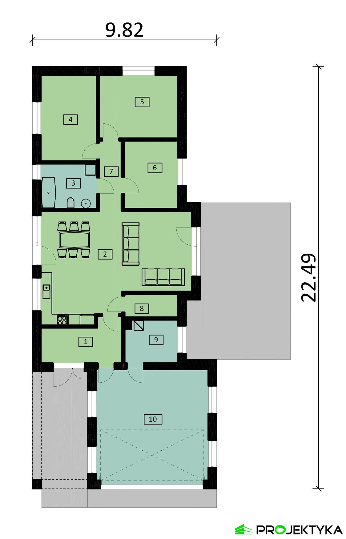
LpNazwa pomieszczeniaPow. użytkowa
1 wiatrołap 9,06 m2
2 salon z ankesem 41,66 m2
3 łazienka 7,21 m2
4 sypialnia 13,82 m2
5 sypialnia 14,20 m2
6 sypialnia 10,45 m2
7 korytarz 4,50 m2
8 garderoba 3,56 m2
Pow. użytkowa 104,46 m2
9 pom. gospodarcze 6,46 m2
10 garaż 35,40 m2
Pow. razem 146,32 m2
LpNazwa pomieszczeniaPow. użytkowa
1 wiatrołap 9,06 m2
2 salon z ankesem 41,66 m2
3 łazienka 7,21 m2
4 sypialnia 13,82 m2
5 sypialnia 14,20 m2
6 sypialnia 10,45 m2
7 korytarz 4,50 m2
8 garderoba 3,56 m2
Pow. użytkowa 104,46 m2
9 pom. gospodarcze 6,46 m2
10 garaż 35,40 m2
Pow. razem 146,32 m2

Wszystkie parametry

Powierzchnia mieszkalna 104.46 m2
Pow. zabudowy 181.34 m2
Liczba pokoi 4
Liczba łazienek 1
Liczba sypialni 3
Ogrzewanie gazowe
Poddasze brak
Wysokość parteru 2.75 m
Dach wielospadowy
Rodzaj zabudowy wolnostojący
Pokrycie dachu blachodachówka, dachówka
Kąt nachylenia dachu 25°
Powierzchnia dachu 286.00 m2
Powierzchnia całkowita 181.34 m2
Min. wymiary działki 19.25 m / 30.49 m
Wysokość budynku 5.7 m
Szerokość zabudowy 9.82 m
Długość zabudowy 22.49 m
Podpiwniczenie (z piwnicą) Nie
Kondygnacje parterowy
Technologia murowany
Garaż dwustanowiskowy
Instalacje elektryczne, gazowe, sanitarne, C.O
Dodatkowe informacje na wąską działkę, pomieszczenie gospodarcze

Elewacje

Rzut sytuacyjny

Lokalizacja budynku
Fundamenty: ławy fundamentowe/stopy fundamentowe
Ściany zewnętrzne: gazobeton +20 cm styropianu
Strop: pas dolny dźwigara prefabrykowanego MiTek
Elewacje: tynk cienkowarstwowy, okładzina drewniana
Ka53

zapytaj o projekt

Masz pytania odnośnie projektu Ka53 ?

Napisz do nas, chętnie pomożemy Ci wybrać idealny projekt domu

Napisz do nas

Warianty projektu

Dodatki

Dziennik budowy 1,-
Tablica budowy 1,-
Projekt wentylacji mechanicznej 1200,-
Projekt pompy ciepła 800,-
Kotłownia na paliwo stałe 550,-
Projekt ogrzewania podłogowego 500,-
Pakiet szamba szczelnego 300,-
Przydomowa oczyszczalnia ścieków 500,-
Kosztorys inwestorski 550,-
Dodatkowy papierowy egzemplarz projektu 600,-

Opis projektu

Ka53 to gotowy projekt domu parterowego utrzymany w sielskim wzornictwie z elementami modernizmu. Dom zostanie wykonany w technologii murowanej, zaś jego formę uatrakcyjni stolarka w kolorze drewnopodobnym oraz okładzina drewniana. Ponadto, dwustanowiskowy garaż, podkreśla jego funkcjonalność.
Do strefy dziennej w gotowy projekt domu parterowego wejdziemy przez wiatrołap, chroniący nas przed stratami ciepła w chłodne dni. Powierzchnia użytkowa, została zaprojektowana w centralnej części domu, bez dodatkowych przesłon. Otwarta kuchnia połączona z jadalnią oraz salonem z wyjściem na taras to otwarta przestrzeń, która pozytywnie wpływa na nasz odpoczynek.
W strefie nocnej znajdziemy 3 sypialnie oraz łazienkę. Rozkład pomieszczeń w gotowy projekt domu parterowego, gwarantuje utrzymanie prywatności każdego domownika. Dodatkowo garderoba, pozwala na utrzymanie porządku w domu. 

zapytaj o projekt

Masz pytania odnośnie projektu Ka53 ?

Napisz do nas, chętnie pomożemy Ci wybrać idealny projekt domu

Napisz do nas
c4ca4238a0b923820dcc509a6f75849b