Ka59 Sz

Ka59 Sz to gotowy projekt domu parterowego, który z łatwością można przekształcić w gotowy projekt domu z użytkowym poddaszem. Zaprojektowany w technologii szkieletowej drewnianej. Atutem z pewnością okaże się dwustanowiskowy garaż połączony z kotłownią.Gotowy projekt domu parterowego został podzielony na dwie części. W jednej z nich znajduje się otwarta kuchnia połączona z jadalnią oraz salonem z bezpośrednim wyjściem na taras. Ponadto spiżarnia wraz z łazienką dla gości zadbają o funkcjonalnoś... Pełny opis

Ka59 Sz

Oczekiwanie na projekt: 2 dni

5299,-

kup projekt
ulubione
porównaj
drukuj
Pow. mieszkalna 114.66 m2
Pow. zabudowy 192.57 m2
Wysokość budynku 7.65 m
Główny kąt dachu 30°
Min. wymiary działki 21.58 m / 25.46 m
Kondygnacje parterowy z poddaszem do adaptacji
Technologia szkieletowy drewniany
Garaż dwustanowiskowy

Rzuty projektu

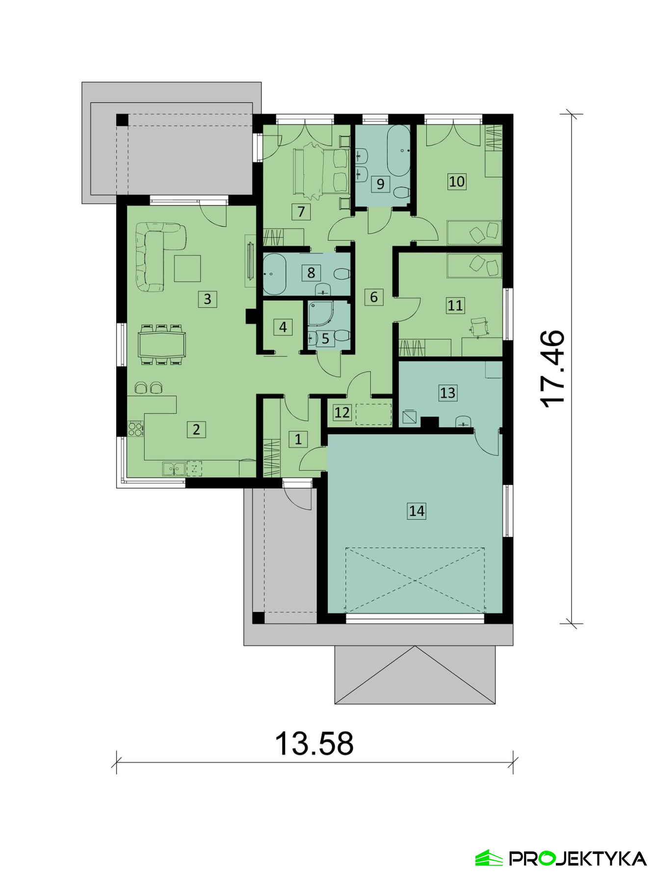
Rzut parteru

rzut-karta-domu
Lp.PomieszczeniePow. pomieszczenia
1wiatrołap5,41 m2
2kuchnia12,72 m2
3salon28,52 m2
4spiżarnia2,36 m2
5WC2,53 m2
6korytarz13,41 m2
7sypialnia12,53 m2
8łazienka4,50 m2
9łazienka5,36 m2
10sypialnia12,32 m2
11sypialnia12,76 m2
12garderoba2,24 m2
Pow.mieszkalna114,66 m2
13kotłownia7,91 m2
14garaż36,90 m2
Pow.użytkowa159,47 m2
Lp.PomieszczeniePow. pomieszczenia
1wiatrołap5,41 m2
2kuchnia12,72 m2
3salon28,52 m2
4spiżarnia2,36 m2
5WC2,53 m2
6korytarz13,41 m2
7sypialnia12,53 m2
8łazienka4,50 m2
9łazienka5,36 m2
10sypialnia12,32 m2
11sypialnia12,76 m2
12garderoba2,24 m2
Pow.mieszkalna114,66 m2
13kotłownia7,91 m2
14garaż36,90 m2
Pow.użytkowa159,47 m2

Wszystkie parametry

Powierzchnia mieszkalna 114.66 m2
Pow. zabudowy 192.57 m2
Liczba pokoi 4
Liczba łazienek 2
Liczba sypialni 3
Ogrzewanie gazowe
Poddasze do adaptacji
Wysokość parteru 2.81 m
Wysokość poddasza 2.35 m
Dach wielospadowy
Rodzaj zabudowy wolnostojący
Pokrycie dachu blachodachówka, dachówka
Kąt nachylenia dachu 30°
Powierzchnia dachu 294.00 m2
Powierzchnia całkowita 192.57 m2
Min. wymiary działki 21.58 m / 25.46 m
Wysokość budynku 7.65 m
Szerokość zabudowy 13.58 m
Długość zabudowy 17.46 m
Powierzchnia. tarasu 23.28 m2
Podpiwniczenie (z piwnicą) Nie
Kondygnacje parterowy z poddaszem do adaptacji
Technologia szkieletowy drewniany
Garaż dwustanowiskowy
Instalacje elektryczne, gazowe, sanitarne, C.O
Kalenica prostopadła do frontu
Rodzaj wentylacji grawitacyjna
Dodatkowe informacje kominek, kotłownia, garderoba, spiżarnia

Elewacje

Rzut sytuacyjny

Fundamenty: płyta fundamentowa
Ściany zewnętrzne: szkielet drewniany docieplany wełną mineralną
Strop: pas dolny dźwigara prefabrykowanego MiTek
Elewacje: tynk cienkowarstwowy, okładzina drewniana
Ka59 Sz

zapytaj o projekt

Masz pytania odnośnie projektu Ka59 Sz ?

Napisz do nas, chętnie pomożemy Ci wybrać idealny projekt domu

Napisz do nas

Warianty projektu

Dodatki

Dziennik budowy 1,-
Tablica budowy 1,-
Projekt wentylacji mechanicznej 1200,-
Projekt pompy ciepła 800,-
Kotłownia na paliwo stałe 550,-
Pakiet szamba szczelnego 300,-
Przydomowa oczyszczalnia ścieków 500,-
Kosztorys inwestorski 550,-
Dodatkowy papierowy egzemplarz projektu 600,-

Opis projektu

Ka59 Sz to gotowy projekt domu parterowego, który z łatwością można przekształcić w gotowy projekt domu z użytkowym poddaszem. Zaprojektowany w technologii szkieletowej drewnianej. Atutem z pewnością okaże się dwustanowiskowy garaż połączony z kotłownią.
Gotowy projekt domu parterowego został podzielony na dwie części. W jednej z nich znajduje się otwarta kuchnia połączona z jadalnią oraz salonem z bezpośrednim wyjściem na taras. Ponadto spiżarnia wraz z łazienką dla gości zadbają o funkcjonalność całego wnętrza. Druga część przeznaczona jest dla mieszkańców. Bardzo praktycznym rozwiązaniem w gotowym projekcie domu jest przestronna sypialnia dla gospodarzy połączona z prywatną łazienką oraz możliwością wyjścia na taras. Dla dzieci zaprojektowano 2 pokoje o powierzchni użytkowej ok. 13 m2.
W projekcie w przyszłości można zaadaptować poddasze, schody na górę zostały przewidziane w garderobie i kotłowni. 

zapytaj o projekt

Masz pytania odnośnie projektu Ka59 Sz ?

Napisz do nas, chętnie pomożemy Ci wybrać idealny projekt domu

Napisz do nas
c4ca4238a0b923820dcc509a6f75849b