Wszystkie parametry
| Powierzchnia mieszkalna | 114.66 m2 |
| Pow. zabudowy | 192.57 m2 |
| Liczba pokoi | 4 |
| Liczba łazienek | 2 |
| Liczba sypialni | 3 |
| Ogrzewanie | gazowe |
| Poddasze | do adaptacji |
| Wysokość parteru | 2.81 m |
| Wysokość poddasza | 2.35 m |
| Dach | wielospadowy |
| Rodzaj zabudowy | wolnostojący |
| Pokrycie dachu | blachodachówka, dachówka |
| Kąt nachylenia dachu | 30° |
| Powierzchnia dachu | 294.00 m2 |
| Powierzchnia całkowita | 192.57 m2 |
| Min. wymiary działki | 21.58 m / 25.46 m |
| Wysokość budynku | 7.65 m |
| Szerokość zabudowy | 13.58 m |
| Długość zabudowy | 17.46 m |
| Powierzchnia. tarasu | 23.28 m2 |
| Podpiwniczenie (z piwnicą) | Nie |
| Kondygnacje | parterowy z poddaszem do adaptacji |
| Technologia | szkieletowy drewniany |
| Garaż | dwustanowiskowy |
| Instalacje | elektryczne, gazowe, sanitarne, C.O |
| Kalenica | prostopadła do frontu |
| Rodzaj wentylacji | grawitacyjna |
| Dodatkowe informacje | kominek, kotłownia, garderoba, spiżarnia |
Rzut sytuacyjny
zapytaj o projekt
Masz pytania odnośnie projektu Ka59 Sz L?
Napisz do nas, chętnie pomożemy Ci wybrać idealny projekt domu
Napisz do nasDodatki
| Dziennik budowy | 1,- |
| Tablica budowy | 1,- |
| Projekt wentylacji mechanicznej | 1200,- |
| Projekt pompy ciepła | 800,- |
| Kotłownia na paliwo stałe | 550,- |
| Pakiet szamba szczelnego | 300,- |
| Przydomowa oczyszczalnia ścieków | 500,- |
| Kosztorys inwestorski | 550,- |
| Dodatkowy papierowy egzemplarz projektu | 600,- |
Opis projektu
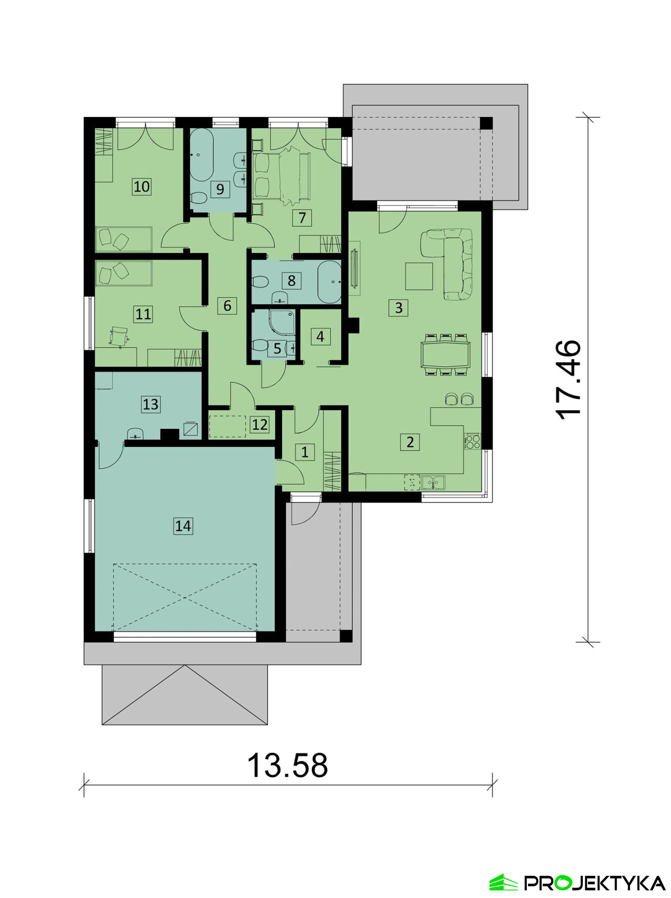
Ka59 Sz to gotowy projekt domu parterowego, który z łatwością można przekształcić w gotowy projekt domu z użytkowym poddaszem. Zaprojektowany w technologii szkieletowej drewnianej. Atutem z pewnością okaże się dwustanowiskowy garaż połączony z kotłownią.
Gotowy projekt domu parterowego został podzielony na dwie części. W jednej z nich znajduje się otwarta kuchnia połączona z jadalnią oraz salonem z bezpośrednim wyjściem na taras. Ponadto spiżarnia wraz z łazienką dla gości zadbają o funkcjonalność całego wnętrza. Druga część przeznaczona jest dla mieszkańców. Bardzo praktycznym rozwiązaniem w gotowym projekcie domu jest przestronna sypialnia dla gospodarzy połączona z prywatną łazienką oraz możliwością wyjścia na taras. Dla dzieci zaprojektowano 2 pokoje o powierzchni użytkowej ok. 13 m2.
W projekcie w przyszłości można zaadaptować poddasze, schody na górę zostały przewidziane w garderobie i kotłowni.
Gotowy projekt domu parterowego został podzielony na dwie części. W jednej z nich znajduje się otwarta kuchnia połączona z jadalnią oraz salonem z bezpośrednim wyjściem na taras. Ponadto spiżarnia wraz z łazienką dla gości zadbają o funkcjonalność całego wnętrza. Druga część przeznaczona jest dla mieszkańców. Bardzo praktycznym rozwiązaniem w gotowym projekcie domu jest przestronna sypialnia dla gospodarzy połączona z prywatną łazienką oraz możliwością wyjścia na taras. Dla dzieci zaprojektowano 2 pokoje o powierzchni użytkowej ok. 13 m2.
W projekcie w przyszłości można zaadaptować poddasze, schody na górę zostały przewidziane w garderobie i kotłowni.




