Rzuty projektu
                        
                                                            
                                    
                                        
Rzut parteru
                                    
                                    
                                         
                                    
                                                                            
                                            
| Lp | Nazwa pomieszczenia | Pow. użytkowa | 
|---|
| 1 | wiatrołap | 3,99 m2 | 
| 2 | kuchnia | 18,17 m2 | 
| 3 | salon z jadalnią | 42,05 m2 | 
| 4 | WC | 2,56 m2 | 
| 5 | korytarz i schody | 14,73 m2 | 
| Pow. użytkowa | 81,50 m2 | 
| 6 | garaż | 20,40 m2 | 
| Pow. razem | 101,90 m2 
 | 
                                         
                                        
                                            
| Lp | Nazwa pomieszczenia | Pow. użytkowa | 
|---|
| 1 | wiatrołap | 3,99 m2 | 
| 2 | kuchnia | 18,17 m2 | 
| 3 | salon z jadalnią | 42,05 m2 | 
| 4 | WC | 2,56 m2 | 
| 5 | korytarz i schody | 14,73 m2 | 
| Pow. użytkowa | 81,50 m2 | 
| 6 | garaż | 20,40 m2 | 
| Pow. razem | 101,90 m2 
 | 
                                         
                                                                     
                                                            
                                    
                                        
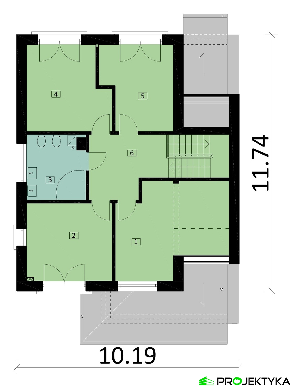
Rzut piętra
                                    
                                    
                                         
                                    
                                                                            
                                            
| Lp | Nazwa pomieszczenia | Pow. użytkowa | 
|---|
| 1 | sypialnia | 13,73 m2 | 
| 2 | sypialnia | 14,14 m2 | 
| 3 | łazienka | 8,01 m2 | 
| 4 | sypialnia | 14,25 m2 | 
| 5 | sypialnia | 12,18 m2 | 
| 6 | korytarz | 9,67 m2 | 
| Pow. użytkowa | 71,98 m2 
 | 
                                         
                                        
                                            
| Lp | Nazwa pomieszczenia | Pow. użytkowa | 
|---|
| 1 | sypialnia | 13,73 m2 | 
| 2 | sypialnia | 14,14 m2 | 
| 3 | łazienka | 8,01 m2 | 
| 4 | sypialnia | 14,25 m2 | 
| 5 | sypialnia | 12,18 m2 | 
| 6 | korytarz | 9,67 m2 | 
| Pow. użytkowa | 71,98 m2 
 | 
                                         
                                                                     
                                                     
                        
                     
                                
                    Wszystkie parametry
                    
                        
                            
                                
                                                                            
                                            | Powierzchnia mieszkalna | 153.48 m2 | 
                                                                                                                
                                            | Pow. zabudowy | 126.8 m2 | 
                                                                                                                
                                            | Liczba pokoi | 5 | 
                                                                                                                
                                            | Liczba łazienek | 2 | 
                                                                                                                
                                            | Liczba sypialni | 4 | 
                                                                                                                
                                            | Ogrzewanie | gazowe | 
                                                                                                                
                                            | Poddasze | brak | 
                                                                                                                
                                            | Wysokość parteru | 2.86 m | 
                                                                                                                                                                                        
                                            | Dach | czterospadowy | 
                                                                                                                
                                            | Rodzaj zabudowy | wolnostojący | 
                                                                                                                                                    
                                            | Pokrycie dachu | blachodachówka, dachówka | 
                                                                                                                
                                            | Kąt nachylenia dachu | 20° | 
                                                                                                                                                    
                                            | Powierzchnia dachu | 175.10 m2 | 
                                                                    
                            
                         
                        
                            
                                
                                                                            
                                            | Powierzchnia całkowita | 362.47 m2 | 
                                                                                                                                                                                        
                                            | Min. wymiary działki | 17.19 m / 22.24 m | 
                                                                                                                
                                            | Wysokość budynku | 8.39 m | 
                                                                                                                
                                            | Szerokość zabudowy | 10.19 m | 
                                                                                                                
                                            | Długość zabudowy | 13.24 m | 
                                    
                                                                                                            
                                        | Podpiwniczenie (z piwnicą) | Nie | 
                                                                                                                                                                                                                            
                                            | Kondygnacje | piętrowy | 
                                                                                                                
                                            | Technologia | murowany | 
                                                                                                                
                                            | Garaż | jednostanowiskowy | 
                                                                                                                
                                            | Instalacje | elektryczne, gazowe, sanitarne | 
                                                                                                                                                                                                                                                                
                                            | Dodatkowe informacje | kominek | 
                                                                                                        
                            
                         
                     
                 
                
                                                                                
                                                                                    
                            Rzut sytuacyjny
                            
                                                                    
                                         
                                    
                                                                            
                                            
                                                
                                                                                                            
                                                            | Fundamenty: | ławy fundamentowe | 
                                                                                                                                                                
                                                            | Ściany zewnętrzne: | bloczki silikatowe + 20 cm styropianu | 
                                                                                                                                                                
                                                            | Strop: | Teriva | 
                                                                                                                                                                
                                                            | Elewacje: | tynk cienkowarstwowy, okładzina elewacyjna | 
                                                                                                    
                                            
                                         
                                                                                                 
                         
                                                            
                        
                            
                            
                                zapytaj o projekt
                                Masz pytania odnośnie projektu Ka60 S ?
                                Napisz do nas, chętnie pomożemy Ci wybrać idealny projekt domu
                                
                                    Napisz do nas
                                                                    
                             
                         
                     
                                                                
                                                                                                                                                
                                                                
                            Opis projektu
                            
                                Ka60 S to gotowy projekt domu piętrowego. Możliwość zbliźniaczenia zabudowy to ogromna zaleta, dla właścicieli większych działek, którzy planują rozbudowę domu dla najbliższych przy jednoczesnym zachowaniu odrębności gospodarstw domowych.
Gotowy projekt domu piętrowego został wykonany w technologii murowanej. Dodatkowo zaprojektowano w nim jednostanowiskowy garaż. Gotowy projekt domu piętrowego o powierzchni użytkowej sięgającej 154 m2, wydziela strefę dzienną na parterze oraz nocną przeznaczoną do relaksu mieszkańców na piętrze domu. 
W strefie dziennej w gotowym projekcie domu piętrowego znajdziemy otwartą kuchnię połączoną z jadalnią oraz salonem o bezpośrednim wyjściu na zadaszony taras. Ponadto umieszczono tu łazienkę dla gości.
Na piętrze w gotowym projekcie domu piętrowego znajdziemy 3 sypialnie z balkonem oraz jedną z dużymi oknami balkonowymi. Dodatkowo przestronna łazienka dla mieszkańców o powierzchni 8 m2, znacznie ułatwi poranne przygotowywania domowników do wyjścia.