Ka60 S L

Ka60 S to gotowy projekt domu piętrowego. Możliwość zbliźniaczenia zabudowy to ogromna zaleta, dla właścicieli większych działek, którzy planują rozbudowę domu dla najbliższych przy jednoczesnym zachowaniu odrębności gospodarstw domowych.Gotowy projekt domu piętrowego został wykonany w technologii murowanej. Dodatkowo zaprojektowano w nim jednostanowiskowy garaż. Gotowy projekt domu piętrowego o powierzchni użytkowej sięgającej 154 m2, wydziela strefę dzienną na parterze oraz nocną pr... Pełny opis

Ka60 S L

Oczekiwanie na projekt: 14 dni

4799,- 5299,-

Najniższa cena z 30 dni przed obniżką: 5299

kup projekt
ulubione
porównaj
drukuj
Pow. mieszkalna 153.48 m2
Pow. zabudowy 126.8 m2
Wysokość budynku 8.39 m
Główny kąt dachu 20°
Min. wymiary działki 17.19 m / 22.24 m
Kondygnacje piętrowy
Technologia murowany
Garaż jednostanowiskowy

Rzuty projektu

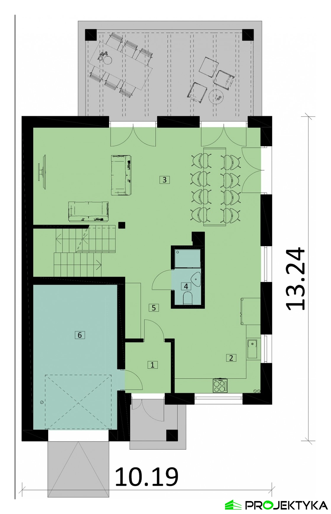
Rzut parteru

rzut-karta-domu
LpNazwa pomieszczeniaPow. użytkowa
1 wiatrołap 3,99 m2
2 kuchnia 18,17 m2
3 salon z jadalnią 42,05 m2
4 WC 2,56 m2
5 korytarz i schody 14,73 m2
Pow. użytkowa 81,50 m2
6 garaż 20,40 m2
Pow. razem 101,90 m2
LpNazwa pomieszczeniaPow. użytkowa
1 wiatrołap 3,99 m2
2 kuchnia 18,17 m2
3 salon z jadalnią 42,05 m2
4 WC 2,56 m2
5 korytarz i schody 14,73 m2
Pow. użytkowa 81,50 m2
6 garaż 20,40 m2
Pow. razem 101,90 m2

Rzut piętra

rzut-karta-domu
LpNazwa pomieszczeniaPow. użytkowa
1 sypialnia 13,73 m2
2 sypialnia 14,14 m2
3 łazienka 8,01 m2
4 sypialnia 14,25 m2
5 sypialnia 12,18 m2
6 korytarz 9,67 m2
Pow. użytkowa 71,98 m2
LpNazwa pomieszczeniaPow. użytkowa
1 sypialnia 13,73 m2
2 sypialnia 14,14 m2
3 łazienka 8,01 m2
4 sypialnia 14,25 m2
5 sypialnia 12,18 m2
6 korytarz 9,67 m2
Pow. użytkowa 71,98 m2

Wszystkie parametry

Powierzchnia mieszkalna 153.48 m2
Pow. zabudowy 126.8 m2
Liczba pokoi 5
Liczba łazienek 2
Liczba sypialni 4
Ogrzewanie gazowe
Poddasze brak
Wysokość parteru 2.86 m
Dach czterospadowy
Rodzaj zabudowy wolnostojący
Pokrycie dachu blachodachówka, dachówka
Kąt nachylenia dachu 20°
Powierzchnia dachu 175.10 m2
Powierzchnia całkowita 362.47 m2
Min. wymiary działki 17.19 m / 22.24 m
Wysokość budynku 8.39 m
Szerokość zabudowy 10.19 m
Długość zabudowy 13.24 m
Podpiwniczenie (z piwnicą) Nie
Kondygnacje piętrowy
Technologia murowany
Garaż jednostanowiskowy
Instalacje elektryczne, gazowe, sanitarne
Dodatkowe informacje kominek

Elewacje

Rzut sytuacyjny

Lokalizacja budynku
Fundamenty: ławy fundamentowe
Ściany zewnętrzne: bloczki silikatowe + 20 cm styropianu
Strop: Teriva
Elewacje: tynk cienkowarstwowy, okładzina elewacyjna
Ka60 S

zapytaj o projekt

Masz pytania odnośnie projektu Ka60 S L?

Napisz do nas, chętnie pomożemy Ci wybrać idealny projekt domu

Napisz do nas

Warianty projektu

Dodatki

Dziennik budowy 1,-
Tablica budowy 1,-
Projekt wentylacji mechanicznej 1200,-
Projekt pompy ciepła 800,-
Kotłownia na paliwo stałe 550,-
Projekt ogrzewania podłogowego 500,-
Pakiet szamba szczelnego 300,-
Przydomowa oczyszczalnia ścieków 500,-
Kosztorys inwestorski 550,-
Dodatkowy papierowy egzemplarz projektu 600,-

Opis projektu

Ka60 S to gotowy projekt domu piętrowego. Możliwość zbliźniaczenia zabudowy to ogromna zaleta, dla właścicieli większych działek, którzy planują rozbudowę domu dla najbliższych przy jednoczesnym zachowaniu odrębności gospodarstw domowych.
Gotowy projekt domu piętrowego został wykonany w technologii murowanej. Dodatkowo zaprojektowano w nim jednostanowiskowy garaż. Gotowy projekt domu piętrowego o powierzchni użytkowej sięgającej 154 m2, wydziela strefę dzienną na parterze oraz nocną przeznaczoną do relaksu mieszkańców na piętrze domu.
W strefie dziennej w gotowym projekcie domu piętrowego znajdziemy otwartą kuchnię połączoną z jadalnią oraz salonem o bezpośrednim wyjściu na zadaszony taras. Ponadto umieszczono tu łazienkę dla gości.
Na piętrze w gotowym projekcie domu piętrowego znajdziemy 3 sypialnie z balkonem oraz jedną z dużymi oknami balkonowymi. Dodatkowo przestronna łazienka dla mieszkańców o powierzchni 8 m2, znacznie ułatwi poranne przygotowywania domowników do wyjścia.

zapytaj o projekt

Masz pytania odnośnie projektu Ka60 S L?

Napisz do nas, chętnie pomożemy Ci wybrać idealny projekt domu

Napisz do nas
c4ca4238a0b923820dcc509a6f75849b