Ka86 S L

Ka86 S to gotowy projekt domu jednorodzinnego, z możliwością późniejszej rozbudowy. Kubatura budynku pozwala na przekształcenie domu jednorodzinnego, w gotowy projekt domu szeregowego. Nowoczesna elewacja, została podkreślona drewnianą i kamienną okładziną, która idealnie współgra ze stalowymi detalami. Gotowy projekt domu jednorodzinnego wydziela strefę dzienną na parterze, zaś nocna na piętrze domu. W pierwszej z nich, znajdziemy świetlisty salon z bezpośrednim wyjściem na taras oraz jadalnię.... Pełny opis

Ka86 S L

Oczekiwanie na projekt: 7 dni

5299,-

kup projekt
ulubione
porównaj
drukuj
Pow. mieszkalna 117.98 m2
Pow. zabudowy 92.48 m2
Wysokość budynku 9.03 m
Główny kąt dachu 20°
Min. wymiary działki 12.86 m / 23.1 m
Kondygnacje piętrowy
Technologia murowany
Garaż jednostanowiskowy

Rzuty projektu

Rzut parteru

rzut-karta-domu
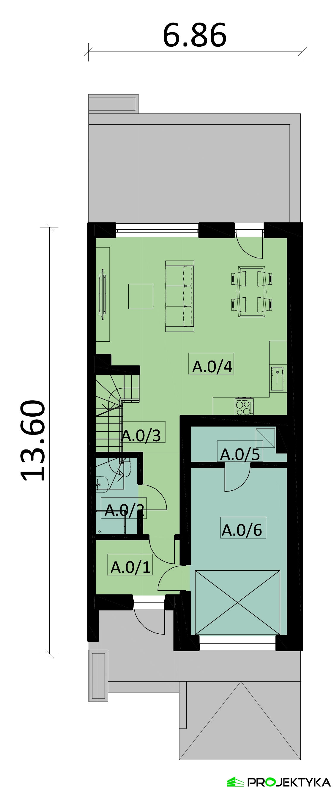
LpNazwa pomieszczeniaPow. użytkowa
1 wiatrołap 4,94 m2
2 WC 3,49 m2
3 holl 5,61 m2
4 salon + kuchnia 32,80 m2
Pow. użytkowa 46,84 m2
5 pom. gospodarcze 3,45 m2
6 garaż 16,96 m2
Pow. razem 67,25 m2

 

LpNazwa pomieszczeniaPow. użytkowa
1 wiatrołap 4,94 m2
2 WC 3,49 m2
3 holl 5,61 m2
4 salon + kuchnia 32,80 m2
Pow. użytkowa 46,84 m2
5 pom. gospodarcze 3,45 m2
6 garaż 16,96 m2
Pow. razem 67,25 m2

 

Rzut piętra

rzut-karta-domu
LpNazwa pomieszczeniaPow. użytkowa
7 pokój 11,75 m2
8 pokój 14,63 m2
9 łazienka 7,75 m2
10 pokój 13,89 m2
11 pokój 13,68 m2
12 korytarz 9,44 m2
Pow. użytkowa 71,14 m2
LpNazwa pomieszczeniaPow. użytkowa
7 pokój 11,75 m2
8 pokój 14,63 m2
9 łazienka 7,75 m2
10 pokój 13,89 m2
11 pokój 13,68 m2
12 korytarz 9,44 m2
Pow. użytkowa 71,14 m2

Wszystkie parametry

Powierzchnia mieszkalna 117.98 m2
Pow. zabudowy 92.48 m2
Liczba pokoi 5
Liczba łazienek 2
Liczba sypialni 4
Ogrzewanie gazowe
Poddasze brak
Wysokość parteru 2.70 m
Dach dwuspadowy
Rodzaj zabudowy wolnostojący
Pokrycie dachu blachodachówka, dachówka
Kąt nachylenia dachu 20°
Powierzchnia dachu 131.14 m2
Powierzchnia całkowita 181.29 m2
Min. wymiary działki 12.86 m / 23.1 m
Wysokość budynku 9.03 m
Szerokość zabudowy 6.86 m
Długość zabudowy 13.60 m
Podpiwniczenie (z piwnicą) Nie
Kondygnacje piętrowy
Technologia murowany
Garaż jednostanowiskowy
Instalacje elektryczne, gazowe, sanitarne, C.O
Dodatkowe informacje kominek, pomieszczenie gospodarcze

Elewacje

Rzut sytuacyjny

Lokalizacja budynku
Fundamenty: ławy fundamentowe
Ściany zewnętrzne: gazobeton +20 cm styropianu
Strop: Teriva + dolny pas dźwigarów dachowych
Elewacje: tynk cienkowarstwowy/deski elewacyjne
Ka86 S

zapytaj o projekt

Masz pytania odnośnie projektu Ka86 S L?

Napisz do nas, chętnie pomożemy Ci wybrać idealny projekt domu

Napisz do nas

Warianty projektu

Dodatki

Dziennik budowy 1,-
Tablica budowy 1,-
Projekt wentylacji mechanicznej 1200,-
Projekt pompy ciepła 800,-
Kotłownia na paliwo stałe 550,-
Projekt ogrzewania podłogowego 500,-
Pakiet szamba szczelnego 300,-
Przydomowa oczyszczalnia ścieków 500,-
Kosztorys inwestorski 550,-
Dodatkowy papierowy egzemplarz projektu 600,-

Opis projektu

Ka86 S to gotowy projekt domu jednorodzinnego, z możliwością późniejszej rozbudowy. Kubatura budynku pozwala na przekształcenie domu jednorodzinnego, w gotowy projekt domu szeregowego. Nowoczesna elewacja, została podkreślona drewnianą i kamienną okładziną, która idealnie współgra ze stalowymi detalami.
Gotowy projekt domu jednorodzinnego wydziela strefę dzienną na parterze, zaś nocna na piętrze domu. W pierwszej z nich, znajdziemy świetlisty salon z bezpośrednim wyjściem na taras oraz jadalnię. Dodatkowo, otwarta kuchnia w gotowy projekt domu jednorodzinnego pozwoli na swobodne poruszanie się w niej. Praktycznym rozwiązaniem jest jednostanowiskowy garaż, w sąsiedztwie którego, znajdziemy pomieszczenie gospodarcze.
Strefa relaksu została wyodrębniona na piętrze w gotowy projekt domu jednorodzinnego. Znajdziemy tu cztery sypialnie, które idealnie wpiszą się w obraz sześcioosobowej rodziny. Dodatkowa łazienka, przeznaczona tylko dla mieszkańców, stanie się niezwykle istotnym rozwiązaniem podczas porannych przygotowań do wyjścia całej rodziny.  W przypadku lokalizowania segmentu w formie budynku wolnostojącego na działce, należy poszerzyć budynek o szerokość ocieplenia ściany zewnętrznej.

zapytaj o projekt

Masz pytania odnośnie projektu Ka86 S L?

Napisz do nas, chętnie pomożemy Ci wybrać idealny projekt domu

Napisz do nas
c4ca4238a0b923820dcc509a6f75849b