Rzuty projektu
                        
                                                            
                                    
                                        
Rzut
                                    
                                    
                                         
                                    
                                                                            
                                            
| Lp | Nazwa pomieszczenia | Pow. użytkowa | 
|---|
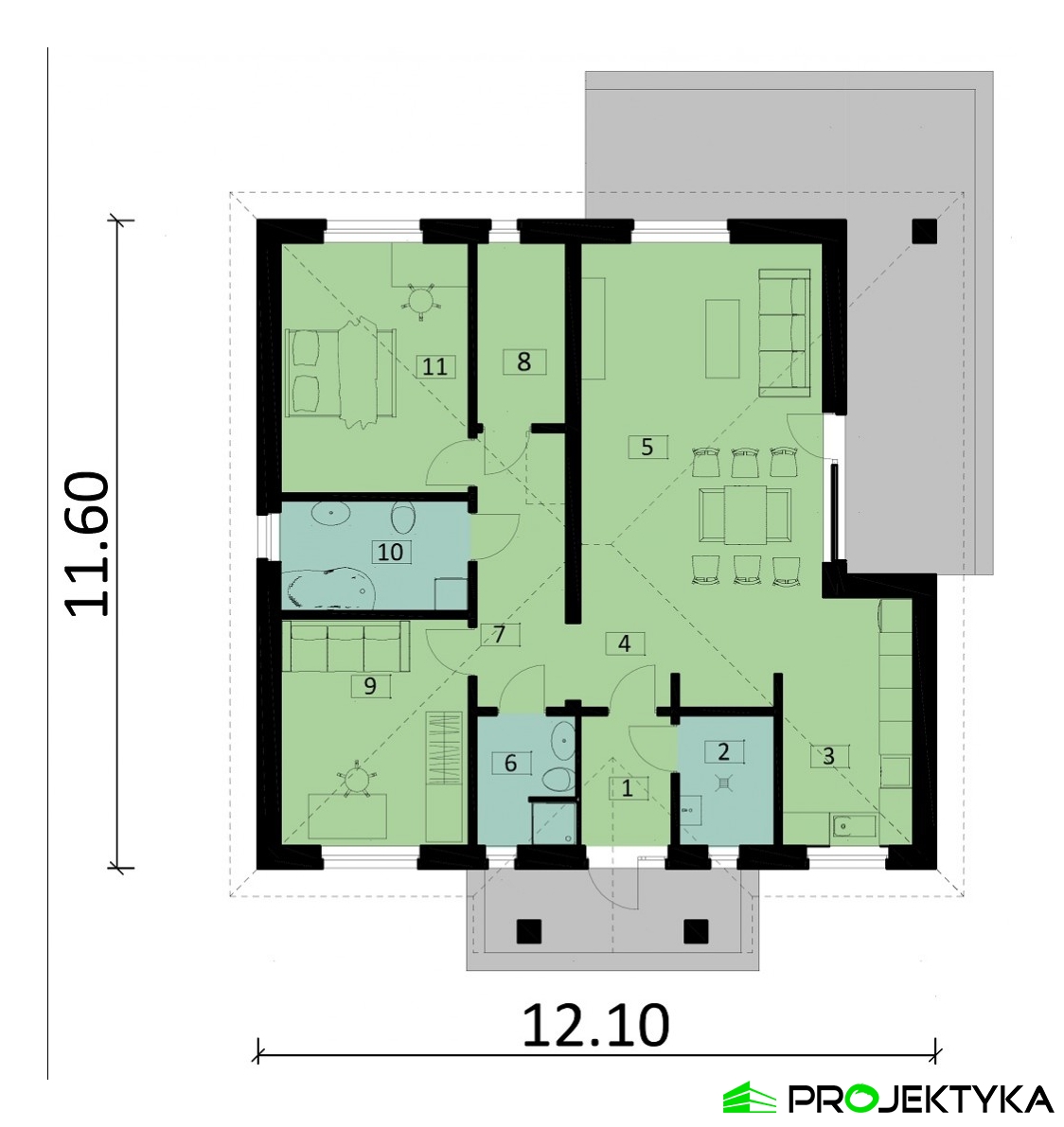
| 1 | wiatrołap | 3,80 m2 | 
| 3 | kuchnia | 9,86 m2 | 
| 4 | przedpokój | 7,60 m2 | 
| 5 | salon | 27,11 m2 | 
| 6 | łazienka | 4,10 m2 | 
| 7 | korytarz | 8,02 m2 | 
| 8 | garderoba | 5,18 m2 | 
| 9 | sypialnia | 13,57 m2 | 
| 10 | łazienka | 6,60 m2 | 
| 11 | sypialnia | 14,94 m2 | 
| Pow. użytkowa | 100,78 m2 | 
| 2 | kotłownia | 3,96 m2 | 
| Pow. razem | 104,74 m2 
 | 
Podane wymiary powierzchni wewnętrznych są orientacyjne i mogą różnić się o ok. +10%. 
                                         
                                        
                                            
| Lp | Nazwa pomieszczenia | Pow. użytkowa | 
|---|
| 1 | wiatrołap | 3,80 m2 | 
| 3 | kuchnia | 9,86 m2 | 
| 4 | przedpokój | 7,60 m2 | 
| 5 | salon | 27,11 m2 | 
| 6 | łazienka | 4,10 m2 | 
| 7 | korytarz | 8,02 m2 | 
| 8 | garderoba | 5,18 m2 | 
| 9 | sypialnia | 13,57 m2 | 
| 10 | łazienka | 6,60 m2 | 
| 11 | sypialnia | 14,94 m2 | 
| Pow. użytkowa | 100,78 m2 | 
| 2 | kotłownia | 3,96 m2 | 
| Pow. razem | 104,74 m2 
 | 
Podane wymiary powierzchni wewnętrznych są orientacyjne i mogą różnić się o ok. +10%. 
                                         
                                                                     
                                                     
                        
                     
                                
                    Wszystkie parametry
                    
                        
                            
                                
                                                                            
                                            | Powierzchnia mieszkalna | 100.78 m2 | 
                                                                                                                
                                            | Pow. zabudowy | 130.76 m2 | 
                                                                                                                
                                            | Liczba pokoi | 3 | 
                                                                                                                
                                            | Liczba łazienek | 2 | 
                                                                                                                
                                            | Liczba sypialni | 2 | 
                                                                                                                
                                            | Ogrzewanie | pompa ciepła | 
                                                                                                                
                                            | Poddasze | strych | 
                                                                                                                
                                            | Wysokość parteru | 2.80 m | 
                                                                                                                                                    
                                            | Wysokość poddasza | 3.80 m | 
                                                                                                                
                                            | Dach | czterospadowy | 
                                                                                                                
                                            | Rodzaj zabudowy | wolnostojący | 
                                                                                                                                                    
                                            | Pokrycie dachu | blachodachówka, dachówka | 
                                                                                                                
                                            | Kąt nachylenia dachu | 35° | 
                                                                                                                                                    
                                            | Powierzchnia dachu | 205.00 m2 | 
                                                                    
                            
                         
                        
                            
                                
                                                                            
                                            | Powierzchnia całkowita | 130.76 m2 | 
                                                                                                                                                                                        
                                            | Min. wymiary działki | 19.1 m / 19.69 m | 
                                                                                                                
                                            | Wysokość budynku | 7.85 m | 
                                                                                                                
                                            | Szerokość zabudowy | 12.10 m | 
                                                                                                                
                                            | Długość zabudowy | 11.60 m | 
                                    
                                                                                                            
                                        | Podpiwniczenie (z piwnicą) | Nie | 
                                                                                                                                                                                                                            
                                            | Kondygnacje | parterowy | 
                                                                                                                
                                            | Technologia | szkieletowy drewniany | 
                                                                                                                
                                            | Garaż | bez garażu | 
                                                                                                                
                                            | Instalacje | elektryczne, sanitarne, C.O | 
                                                                                                                                                                                                                            
                                            | Rodzaj wentylacji | grawitacyjna | 
                                                                                                                
                                            | Dodatkowe informacje | kotłownia, garderoba | 
                                                                                                        
                            
                         
                     
                 
                
                                                                                
                                                                                    
                            Rzut sytuacyjny
                            
                                                                    
                                         
                                    
                                                                            
                                            
                                                
                                                                                                            
                                                            | Fundamenty: | ławy fundamentowe/stopy fundamentowe | 
                                                                                                                                                                
                                                            | Ściany zewnętrzne: | drewno konstrukcyjne, płyta wiórowa, wełna mineralna | 
                                                                                                                                                                
                                                            | Strop: | drewniany | 
                                                                                                                                                                
                                                            | Elewacje: | tynk strukturalny, okładzina drewniana | 
                                                                                                    
                                            
                                         
                                                                                                 
                         
                                                            
                        
                            
                            
                                zapytaj o projekt
                                Masz pytania odnośnie projektu Ka9 Sz ?
                                Napisz do nas, chętnie pomożemy Ci wybrać idealny projekt domu
                                
                                    Napisz do nas
                                                                    
                             
                         
                     
                                                                
                                                                                                                                                
                                                                
                            Opis projektu
                            
                                Ka9 Sz to wyjątkowy projekt domu jednorodzinnego w minimalistycznym, nowoczesnym stylu. Jego powierzchnia mieszkalna wynosi 100.78 m2 i doskonale nadaje się dla trzyosobowej rodziny zapewniając dość przestrzeni do wygodnego mieszkania. Ten projekt domu parterowego nie uwzględnia garażu, ale posiada strych z możliwością zaadaptowania, zwieńczony czterospadowym dachem. Nad wejściem znajduje się dwuspadowe zadaszenie wsparte na filarach, co nadaje domowi bardzo klimatycznego charakteru. Frontowym wejściem wchodzi się do wiatrołapu, z którego można przejść bezpośrednio do kotłowni. Jedna połowa domu stanowi wygodną strefę dzienną. Jest tam przestronny salon z jadalnią i wyjściem na taras okalający tylną część domu. Kuchnia o charakterze półotwartym jest nieco schowana, choć połączona bezpośrednio z jadalnią. W drugiej części domu zaprojektowano strefę nocną z dwiema dużymi sypialniami, garderobą oraz dwiema łazienkami. Ten gotowy projekt domu jest bardzo korzystny i zapewnia domownikom wiele swobody, zarówno gdy chodzi o mieszkanie, jak i możliwości zaadaptowania strychu. 
Jest to projekt koncepcyjny. Podane wymiary zewnętrzne oraz wewnątrzne są orientacyjne i mogą różnić się o ok. +10%.