Ka9 Sz L

Ka9 Sz to wyjątkowy projekt domu jednorodzinnego w minimalistycznym, nowoczesnym stylu. Jego powierzchnia mieszkalna wynosi 100.78 m2 i doskonale nadaje się dla trzyosobowej rodziny zapewniając dość przestrzeni do wygodnego mieszkania. Ten projekt domu parterowego nie uwzględnia garażu, ale posiada strych z możliwością zaadaptowania, zwieńczony czterospadowym dachem. Nad wejściem znajduje się dwuspadowe zadaszenie wsparte na filarach, co nadaje domowi bardzo klimatycznego charakteru. ... Pełny opis

Ka9 Sz L

Oczekiwanie na projekt: 21 dni

4499,- 4949,-

Najniższa cena z 30 dni przed obniżką: 4949

kup projekt
ulubione
porównaj
drukuj
Pow. mieszkalna 100.78 m2
Pow. zabudowy 130.76 m2
Wysokość budynku 7.85 m
Główny kąt dachu 35°
Min. wymiary działki 19.1 m / 19.69 m
Kondygnacje parterowy
Technologia szkieletowy drewniany
Garaż bez garażu

Rzuty projektu

Rzut

rzut-karta-domu
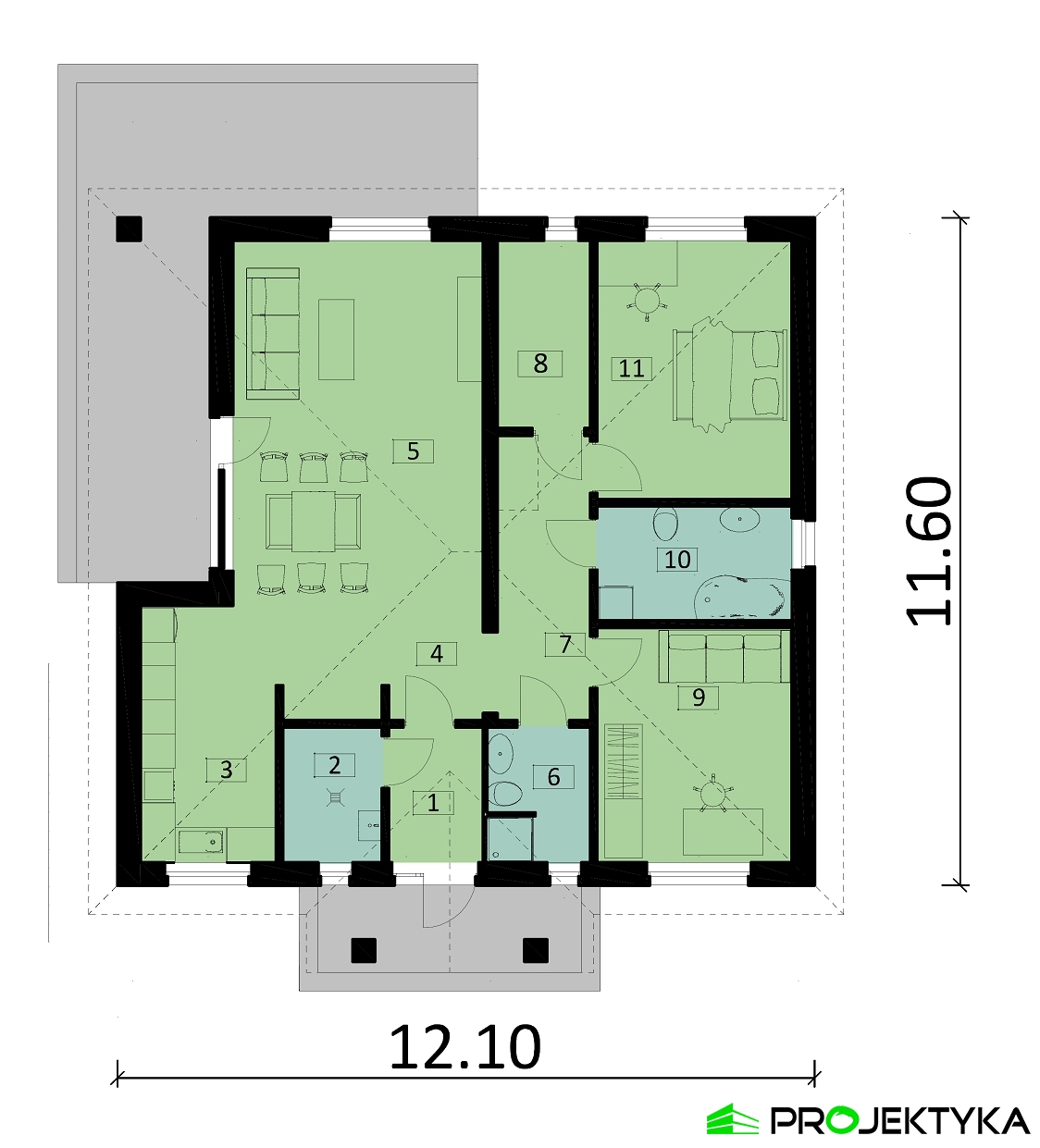
LpNazwa pomieszczeniaPow. użytkowa
1 wiatrołap 3,80 m2
3 kuchnia 9,86 m2
4 przedpokój 7,60 m2
5 salon 27,11 m2
6 łazienka 4,10 m2
7 korytarz 8,02 m2
8 garderoba 5,18 m2
9 sypialnia 13,57 m2
10 łazienka 6,60 m2
11 sypialnia 14,94 m2
Pow. użytkowa 100,78 m2
2 kotłownia 3,96 m2
Pow. razem  104,74 m2

Podane wymiary powierzchni wewnętrznych są orientacyjne i mogą różnić się o ok. +10%. 

LpNazwa pomieszczeniaPow. użytkowa
1 wiatrołap 3,80 m2
3 kuchnia 9,86 m2
4 przedpokój 7,60 m2
5 salon 27,11 m2
6 łazienka 4,10 m2
7 korytarz 8,02 m2
8 garderoba 5,18 m2
9 sypialnia 13,57 m2
10 łazienka 6,60 m2
11 sypialnia 14,94 m2
Pow. użytkowa 100,78 m2
2 kotłownia 3,96 m2
Pow. razem  104,74 m2

Podane wymiary powierzchni wewnętrznych są orientacyjne i mogą różnić się o ok. +10%. 

Wszystkie parametry

Powierzchnia mieszkalna 100.78 m2
Pow. zabudowy 130.76 m2
Liczba pokoi 3
Liczba łazienek 2
Liczba sypialni 2
Ogrzewanie pompa ciepła
Poddasze strych
Wysokość parteru 2.80 m
Wysokość poddasza 3.80 m
Dach czterospadowy
Rodzaj zabudowy wolnostojący
Pokrycie dachu blachodachówka, dachówka
Kąt nachylenia dachu 35°
Powierzchnia dachu 205.00 m2
Powierzchnia całkowita 130.76 m2
Min. wymiary działki 19.1 m / 19.69 m
Wysokość budynku 7.85 m
Szerokość zabudowy 12.10 m
Długość zabudowy 11.60 m
Podpiwniczenie (z piwnicą) Nie
Kondygnacje parterowy
Technologia szkieletowy drewniany
Garaż bez garażu
Instalacje elektryczne, sanitarne, C.O
Rodzaj wentylacji grawitacyjna
Dodatkowe informacje kotłownia, garderoba

Elewacje

Rzut sytuacyjny

Fundamenty: ławy fundamentowe/stopy fundamentowe
Ściany zewnętrzne: drewno konstrukcyjne, płyta wiórowa, wełna mineralna
Strop: drewniany
Elewacje: tynk strukturalny, okładzina drewniana
Ka9 Sz

zapytaj o projekt

Masz pytania odnośnie projektu Ka9 Sz L?

Napisz do nas, chętnie pomożemy Ci wybrać idealny projekt domu

Napisz do nas

Warianty projektu

Dodatki

Dziennik budowy 1,-
Tablica budowy 1,-
Projekt wentylacji mechanicznej 1200,-
Kotłownia na paliwo stałe 550,-
Projekt ogrzewania podłogowego 500,-
Pakiet szamba szczelnego 300,-
Przydomowa oczyszczalnia ścieków 500,-
Kosztorys inwestorski 550,-
Dodatkowy papierowy egzemplarz projektu 600,-

Opis projektu

Ka9 Sz to wyjątkowy projekt domu jednorodzinnego w minimalistycznym, nowoczesnym stylu. Jego powierzchnia mieszkalna wynosi 100.78 m2 i doskonale nadaje się dla trzyosobowej rodziny zapewniając dość przestrzeni do wygodnego mieszkania. Ten projekt domu parterowego nie uwzględnia garażu, ale posiada strych z możliwością zaadaptowania, zwieńczony czterospadowym dachem. Nad wejściem znajduje się dwuspadowe zadaszenie wsparte na filarach, co nadaje domowi bardzo klimatycznego charakteru. Frontowym wejściem wchodzi się do wiatrołapu, z którego można przejść bezpośrednio do kotłowni. Jedna połowa domu stanowi wygodną strefę dzienną. Jest tam przestronny salon z jadalnią i wyjściem na taras okalający tylną część domu. Kuchnia o charakterze półotwartym jest nieco schowana, choć połączona bezpośrednio z jadalnią. W drugiej części domu zaprojektowano strefę nocną z dwiema dużymi sypialniami, garderobą oraz dwiema łazienkami. Ten gotowy projekt domu jest bardzo korzystny i zapewnia domownikom wiele swobody, zarówno gdy chodzi o mieszkanie, jak i możliwości zaadaptowania strychu.  Jest to projekt koncepcyjny. Podane wymiary zewnętrzne oraz wewnątrzne są orientacyjne i mogą różnić się o ok. +10%.

zapytaj o projekt

Masz pytania odnośnie projektu Ka9 Sz L?

Napisz do nas, chętnie pomożemy Ci wybrać idealny projekt domu

Napisz do nas
c4ca4238a0b923820dcc509a6f75849b