Ka123 S L

Ka123 S to projekt domu jednorodzinnego do zbliźniaczenia. Jest to dom piętrowy pokryty wielospadowym dachem, idealny dla dużych rodzin z uwagi na powierzchnię użytkową wynoszącą aż 130.28 m2. Gotowy projekt domu piętrowego wybudowany został w stylu nowoczesnym w technologii murowanej. Dach pokryto blachodachówką, a wysokie okna górnej kondygnacji zostały zabezpieczone efektownymi szklanymi balustradami. Na tylnej części domu uwzględniono przestronny taras, a w jednej z sypialni od fr... Pełny opis

Ka123 S L

Oczekiwanie na projekt: 7 dni

5649,-

kup projekt
ulubione
porównaj
drukuj
Pow. mieszkalna 130.28 m2
Pow. zabudowy 98.39 m2
Wysokość budynku 9 m
Główny kąt dachu 25°
Min. wymiary działki 13 m / 20.5 m
Kondygnacje piętrowy
Technologia murowany
Garaż jednostanowiskowy

Rzuty projektu

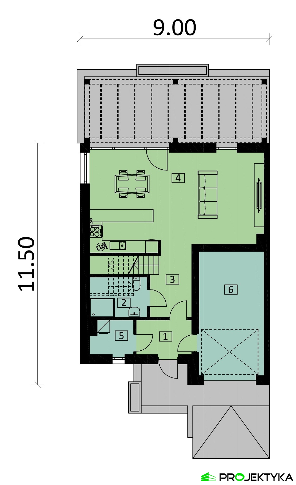
Rzut parteru

rzut-karta-domu
LpNazwa pomieszczeniaPow. użytkowa
1 witarołap 4,37 m2
2 łazienka 4,65 m2
3 korytarz + schody 9,25 m2
4 salon + kuchnia + jadalnia 37,53 m2
Pow. użytkowa 55,80 m2
5 pom. gospodarcze 3,20 m2
6 garaż 18,29 m2
Pow. parteru 77,29 m2
LpNazwa pomieszczeniaPow. użytkowa
1 witarołap 4,37 m2
2 łazienka 4,65 m2
3 korytarz + schody 9,25 m2
4 salon + kuchnia + jadalnia 37,53 m2
Pow. użytkowa 55,80 m2
5 pom. gospodarcze 3,20 m2
6 garaż 18,29 m2
Pow. parteru 77,29 m2

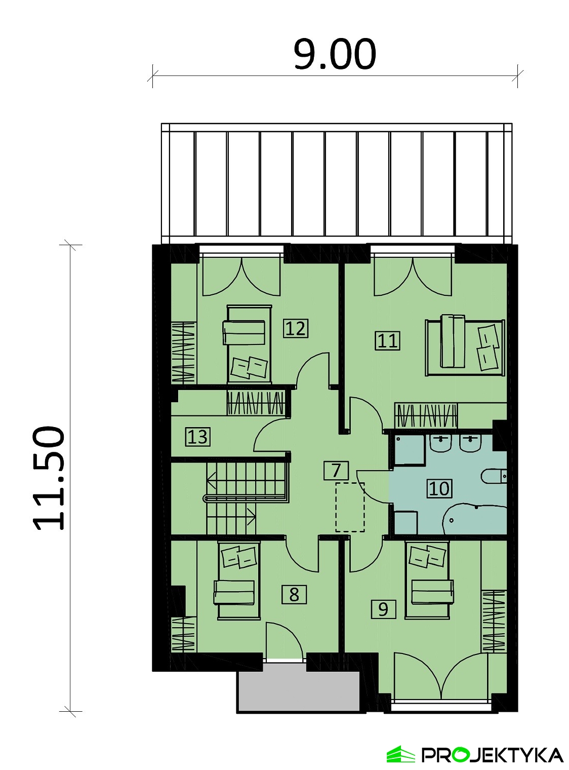
Rzut piętra

rzut-karta-domu
LpNazwa pomieszczeniaPow. użytkowa
7 korytarz 8,25 m2
8 sypialnia 11,34 m2
9 sypialnia 14,43 m2
10 łazienka 6,85 m2
11 sypialnia 16,44 m2
12 sypialnia 12,48 m2
13 garderoba 4,69 m2
Pow. piętra 74,48 m2
LpNazwa pomieszczeniaPow. użytkowa
7 korytarz 8,25 m2
8 sypialnia 11,34 m2
9 sypialnia 14,43 m2
10 łazienka 6,85 m2
11 sypialnia 16,44 m2
12 sypialnia 12,48 m2
13 garderoba 4,69 m2
Pow. piętra 74,48 m2

Wszystkie parametry

Powierzchnia mieszkalna 130.28 m2
Pow. zabudowy 98.39 m2
Liczba pokoi 5
Liczba łazienek 2
Liczba sypialni 4
Ogrzewanie gazowe
Poddasze brak
Wysokość parteru 2.70 m
Dach wielospadowy
Rodzaj zabudowy wolnostojący
Pokrycie dachu blachodachówka, dachówka
Kąt nachylenia dachu 25°
Powierzchnia dachu 135.00 m2
Powierzchnia całkowita 196.78 m2
Min. wymiary działki 13 m / 20.5 m
Wysokość budynku 9 m
Szerokość zabudowy 9.00 m
Długość zabudowy 11.50 m
Podpiwniczenie (z piwnicą) Nie
Kondygnacje piętrowy
Technologia murowany
Garaż jednostanowiskowy
Instalacje elektryczne, gazowe, sanitarne, C.O
Dodatkowe informacje kominek, pomieszczenie gospodarcze

Elewacje

Rzut sytuacyjny

Lokalizacja budynku
Fundamenty: ławy fundamentowe
Ściany zewnętrzne: gazobeton +20 cm styropianu
Strop: parter: Teriva / piętro: dolny pas dźwigarów dachowych
Elewacje: tynk cienkowarstwowy, okładzina drewniana
Ka123 S

zapytaj o projekt

Masz pytania odnośnie projektu Ka123 S L?

Napisz do nas, chętnie pomożemy Ci wybrać idealny projekt domu

Napisz do nas

Warianty projektu

Dodatki

Dziennik budowy 1,-
Tablica budowy 1,-
Projekt wentylacji mechanicznej 1200,-
Projekt pompy ciepła 800,-
Kotłownia na paliwo stałe 550,-
Projekt ogrzewania podłogowego 500,-
Pakiet szamba szczelnego 300,-
Przydomowa oczyszczalnia ścieków 500,-
Kosztorys inwestorski 550,-
Dodatkowy papierowy egzemplarz projektu 600,-

Opis projektu

Ka123 S to projekt domu jednorodzinnego do zbliźniaczenia. Jest to dom piętrowy pokryty wielospadowym dachem, idealny dla dużych rodzin z uwagi na powierzchnię użytkową wynoszącą aż 130.28 m2. Gotowy projekt domu piętrowego wybudowany został w stylu nowoczesnym w technologii murowanej. Dach pokryto blachodachówką, a wysokie okna górnej kondygnacji zostały zabezpieczone efektownymi szklanymi balustradami. Na tylnej części domu uwzględniono przestronny taras, a w jednej z sypialni od frontu znajduje się dodatkowy niewielki balkon.  Na dolnej kondygnacji znajduje się jednostanowiskowy garaż zlokalizowany od frontu, niewielkie pomieszczenie gospodarcze oraz łazienka z WC. W dalszej części domu na parterze umieszczono przestronną strefę dzienną – salon z jadalnią oraz kuchnię. Na górnej kondygnacji zaaranżowano typową strefę nocną, na którą składają się cztery duże sypialnie, łazienka oraz garderoba. W salonie uwzględniono ogrzewanie kominkowe, które wprowadzi do domu niezwykły klimat. 

zapytaj o projekt

Masz pytania odnośnie projektu Ka123 S L?

Napisz do nas, chętnie pomożemy Ci wybrać idealny projekt domu

Napisz do nas
c4ca4238a0b923820dcc509a6f75849b