Rzuty projektu
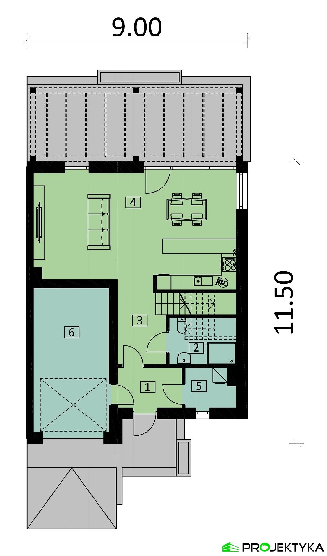
Rzut parteru
| Lp | Nazwa pomieszczenia | Pow. użytkowa |
| 1 |
witarołap |
4,37 m2 |
| 2 |
łazienka |
4,65 m2 |
| 3 |
korytarz + schody |
9,25 m2 |
| 4 |
salon + kuchnia + jadalnia |
37,53 m2 |
| Pow. użytkowa |
55,80 m2 |
| 5 |
pom. gospodarcze |
3,20 m2 |
| 6 |
garaż |
18,29 m2 |
| Pow. parteru |
77,29 m2
|
| Lp | Nazwa pomieszczenia | Pow. użytkowa |
| 1 |
witarołap |
4,37 m2 |
| 2 |
łazienka |
4,65 m2 |
| 3 |
korytarz + schody |
9,25 m2 |
| 4 |
salon + kuchnia + jadalnia |
37,53 m2 |
| Pow. użytkowa |
55,80 m2 |
| 5 |
pom. gospodarcze |
3,20 m2 |
| 6 |
garaż |
18,29 m2 |
| Pow. parteru |
77,29 m2
|
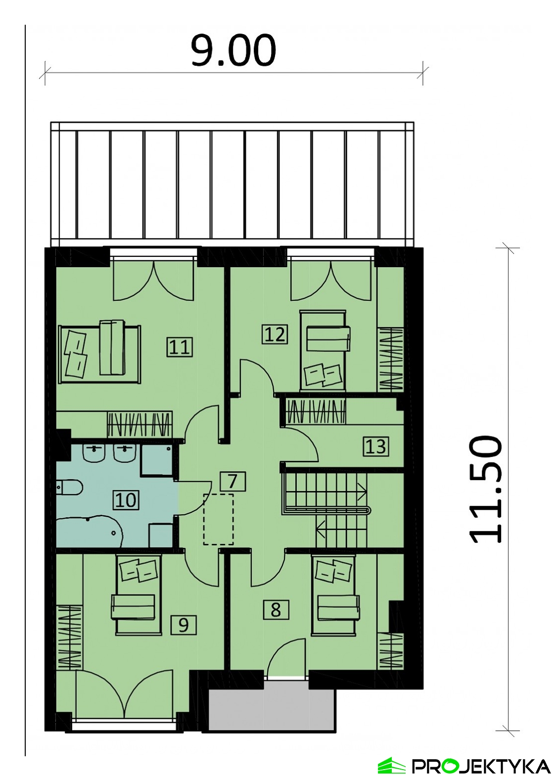
Rzut piętra
| Lp | Nazwa pomieszczenia | Pow. użytkowa |
| 7 |
korytarz |
8,25 m2 |
| 8 |
sypialnia |
11,34 m2 |
| 9 |
sypialnia |
14,43 m2 |
| 10 |
łazienka |
6,85 m2 |
| 11 |
sypialnia |
16,44 m2 |
| 12 |
sypialnia |
12,48 m2 |
| 13 |
garderoba |
4,69 m2 |
| Pow. piętra |
74,48 m2
|
| Lp | Nazwa pomieszczenia | Pow. użytkowa |
| 7 |
korytarz |
8,25 m2 |
| 8 |
sypialnia |
11,34 m2 |
| 9 |
sypialnia |
14,43 m2 |
| 10 |
łazienka |
6,85 m2 |
| 11 |
sypialnia |
16,44 m2 |
| 12 |
sypialnia |
12,48 m2 |
| 13 |
garderoba |
4,69 m2 |
| Pow. piętra |
74,48 m2
|
Wszystkie parametry
| Powierzchnia mieszkalna |
130.28 m2 |
| Pow. zabudowy |
98.39 m2 |
| Liczba pokoi |
5 |
| Liczba łazienek |
2 |
| Liczba sypialni |
4 |
| Ogrzewanie |
gazowe |
| Poddasze |
brak |
| Wysokość parteru |
2.70 m |
| Dach |
wielospadowy |
| Rodzaj zabudowy |
wolnostojący |
| Pokrycie dachu |
blachodachówka, dachówka |
| Kąt nachylenia dachu |
25° |
| Powierzchnia dachu |
135.00 m2 |
| Powierzchnia całkowita |
196.78 m2 |
| Min. wymiary działki |
13 m / 20.5 m |
| Wysokość budynku |
9 m |
| Szerokość zabudowy |
9.00 m |
| Długość zabudowy |
11.50 m |
| Podpiwniczenie (z piwnicą) |
Nie |
| Kondygnacje |
piętrowy |
| Technologia |
murowany |
| Garaż |
jednostanowiskowy |
| Instalacje |
elektryczne, gazowe, sanitarne, C.O |
| Dodatkowe informacje |
kominek, pomieszczenie gospodarcze |
Rzut sytuacyjny
| Fundamenty: |
ławy fundamentowe |
| Ściany zewnętrzne: |
gazobeton +20 cm styropianu |
| Strop: |
parter: Teriva / piętro: dolny pas dźwigarów dachowych |
| Elewacje: |
tynk cienkowarstwowy, okładzina drewniana |
zapytaj o projekt
Masz pytania odnośnie projektu Ka123 S ?
Napisz do nas, chętnie pomożemy Ci wybrać idealny projekt domu
Napisz do nas
Warianty projektu
Ka123 war.1
253.96m2
9799,-
Opis projektu
Ka123 S to projekt domu jednorodzinnego do zbliźniaczenia. Jest to dom piętrowy pokryty wielospadowym dachem, idealny dla dużych rodzin z uwagi na powierzchnię użytkową wynoszącą aż 130.28 m2. Gotowy projekt domu piętrowego wybudowany został w stylu nowoczesnym w technologii murowanej. Dach pokryto blachodachówką, a wysokie okna górnej kondygnacji zostały zabezpieczone efektownymi szklanymi balustradami. Na tylnej części domu uwzględniono przestronny taras, a w jednej z sypialni od frontu znajduje się dodatkowy niewielki balkon. Na dolnej kondygnacji znajduje się jednostanowiskowy garaż zlokalizowany od frontu, niewielkie pomieszczenie gospodarcze oraz łazienka z WC. W dalszej części domu na parterze umieszczono przestronną strefę dzienną – salon z jadalnią oraz kuchnię. Na górnej kondygnacji zaaranżowano typową strefę nocną, na którą składają się cztery duże sypialnie, łazienka oraz garderoba. W salonie uwzględniono ogrzewanie kominkowe, które wprowadzi do domu niezwykły klimat.