Ka123 war.1 S L

Ka123 war.1 S to projekt domu jednorodzinnego do zbliźniaczenia. Jest to dom piętrowy pokryty wielospadowym dachem, idealny dla dużych rodzin z uwagi na powierzchnię użytkową wynoszącą aż 150.27 m2. Gotowy projekt domu piętrowego wybudowany został w stylu nowoczesnym w technologii murowanej. Dach pokryto blachodachówką, a wysokie okna górnej kondygnacji zostały zabezpieczone efektownymi szklanymi balustradami. Na tylnej części domu uwzględniono przestronny taras, a w jednej z sypialni... Pełny opis

Ka123 war.1 S L

Oczekiwanie na projekt: 7 dni

5649,-

kup projekt
ulubione
porównaj
drukuj
Pow. mieszkalna 126.98 m2
Pow. zabudowy 95.89 m2
Wysokość budynku 8.9 m
Główny kąt dachu 23°
Min. wymiary działki 12 m / 21.5 m
Kondygnacje piętrowy
Technologia murowany
Garaż jednostanowiskowy

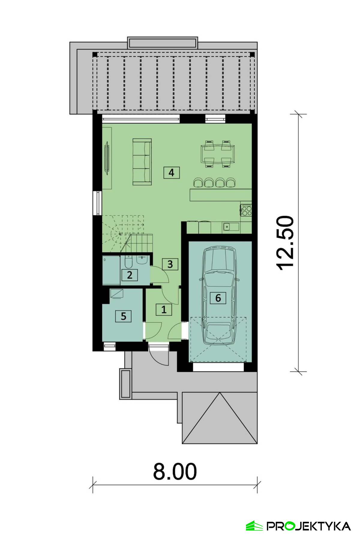
Rzuty projektu

Rzut parteru

rzut-karta-domu
Lp.PomieszczeniePow. pomieszczeniaPow. podłogi
1wiatrołap4,57 m24,57 m2
2łazienka3,50 m23,50 m2
3korytarz + schody8,10 m28,66 m2
4kuchnia + jadalnia + salon36,25 m236,25 m2
Pow.mieszkalna52,42 m252,98 m2
5pom. gospodarcze5,00 m25,00 m2
6garaż18,29 m218,29 m2
Pow.użytkowa75,71 m276,27 m2
Lp.PomieszczeniePow. pomieszczeniaPow. podłogi
1wiatrołap4,57 m24,57 m2
2łazienka3,50 m23,50 m2
3korytarz + schody8,10 m28,66 m2
4kuchnia + jadalnia + salon36,25 m236,25 m2
Pow.mieszkalna52,42 m252,98 m2
5pom. gospodarcze5,00 m25,00 m2
6garaż18,29 m218,29 m2
Pow.użytkowa75,71 m276,27 m2

Rzut piętra

rzut-karta-domu
Lp.PomieszczeniePow. pomieszczenia
7korytarz8,83 m2
8sypialnia12,94 m2
9sypialnia14,04 m2
10łazienka7,02 m2
11garderoba4,38 m2
12sypialnia13,70 m2
13sypialnia13,65 m2
Pow.mieszkalna74,56 m2
Lp.PomieszczeniePow. pomieszczenia
7korytarz8,83 m2
8sypialnia12,94 m2
9sypialnia14,04 m2
10łazienka7,02 m2
11garderoba4,38 m2
12sypialnia13,70 m2
13sypialnia13,65 m2
Pow.mieszkalna74,56 m2

Wszystkie parametry

Powierzchnia mieszkalna 126.98 m2
Pow. zabudowy 95.89 m2
Liczba pokoi 5
Liczba łazienek 2
Liczba sypialni 4
Ogrzewanie gazowe
Poddasze brak
Wysokość parteru 2.70 m
Wysokość piętra 2.60 m
Dach wielospadowy
Rodzaj zabudowy wolnostojący
Pokrycie dachu blachodachówka, dachówka
Kąt nachylenia dachu 23°
Powierzchnia dachu 118.69 m2
Powierzchnia całkowita 191.78 m2
Min. wymiary działki 12 m / 21.5 m
Wysokość budynku 8.9 m
Szerokość zabudowy 8.00 m
Długość zabudowy 12.50 m
Podpiwniczenie (z piwnicą) Nie
Kondygnacje piętrowy
Technologia murowany
Garaż jednostanowiskowy
Instalacje elektryczne, gazowe, sanitarne, C.O
Rodzaj wentylacji grawitacyjna
Dodatkowe informacje pomieszczenie gospodarcze, garderoba

Rzut sytuacyjny

Fundamenty: ławy fundamentowe, stopy fundamentowe
Ściany zewnętrzne: gazobeton +20 cm styropianu
Strop: parter: Teriva / piętro: dolny pas dźwigarów dachowych
Elewacje: tynk cienkowarstwowy, panele drewniana
Ka123 war.1 S

zapytaj o projekt

Masz pytania odnośnie projektu Ka123 war.1 S L?

Napisz do nas, chętnie pomożemy Ci wybrać idealny projekt domu

Napisz do nas

Warianty projektu

Dodatki

Dziennik budowy 1,-
Tablica budowy 1,-
Projekt wentylacji mechanicznej 1200,-
Projekt pompy ciepła 800,-
Kotłownia na paliwo stałe 550,-
Pakiet szamba szczelnego 300,-
Przydomowa oczyszczalnia ścieków 500,-
Kosztorys inwestorski 550,-
Dodatkowy papierowy egzemplarz projektu 600,-

Opis projektu

Ka123 war.1 S to projekt domu jednorodzinnego do zbliźniaczenia. Jest to dom piętrowy pokryty wielospadowym dachem, idealny dla dużych rodzin z uwagi na powierzchnię użytkową wynoszącą aż 150.27 m2. Gotowy projekt domu piętrowego wybudowany został w stylu nowoczesnym w technologii murowanej. Dach pokryto blachodachówką, a wysokie okna górnej kondygnacji zostały zabezpieczone efektownymi szklanymi balustradami. Na tylnej części domu uwzględniono przestronny taras, a w jednej z sypialni od frontu znajduje się dodatkowy niewielki balkon.  Na dolnej kondygnacji znajduje się jednostanowiskowy garaż zlokalizowany od frontu, niewielkie pomieszczenie gospodarcze oraz łazienka z WC. W dalszej części domu na parterze umieszczono przestronną strefę dzienną – salon z jadalnią oraz kuchnię. Na górnej kondygnacji zaaranżowano typową strefę nocną, na którą składają się cztery duże sypialnie, łazienka oraz garderoba. W salonie uwzględniono ogrzewanie kominkowe, które wprowadzi do domu niezwykły klimat. 

zapytaj o projekt

Masz pytania odnośnie projektu Ka123 war.1 S L?

Napisz do nas, chętnie pomożemy Ci wybrać idealny projekt domu

Napisz do nas
c4ca4238a0b923820dcc509a6f75849b