Ka23 war.2 T

Gotowy projekt domu Ka23 war.2 T to nowoczesny dom parterowy z dwustanowiskowym garażem oraz pomieszczeniem gospodarczym. Projekt domu wykonany w technologii murowanej, gwarantuje trwałość konstrukcji na lata. Elewacja, została wykończona elegancką kamienną okładziną, która idealnie współgra z wielospadowym dachem.Gotowy projekt domu parterowego przewiduje ok. 145 m2 powierzchni mieszkalnej, na której znajdziecie Państwo 2 łazienki oraz 4 pokoje, w tym 3 sypialnie. Do domu prowadzi za... Pełny opis

Ka23 war.2 T

Oczekiwanie na projekt: 2 dni

5199,-

kup projekt
ulubione
porównaj
drukuj
Pow. mieszkalna 144.68 m2
Pow. zabudowy 228.87 m2
Wysokość budynku 6.99 m
Główny kąt dachu 25°
Min. wymiary działki 21.53 m / 28 m
Kondygnacje parterowy
Technologia murowany
Garaż dwustanowiskowy

Rzuty projektu

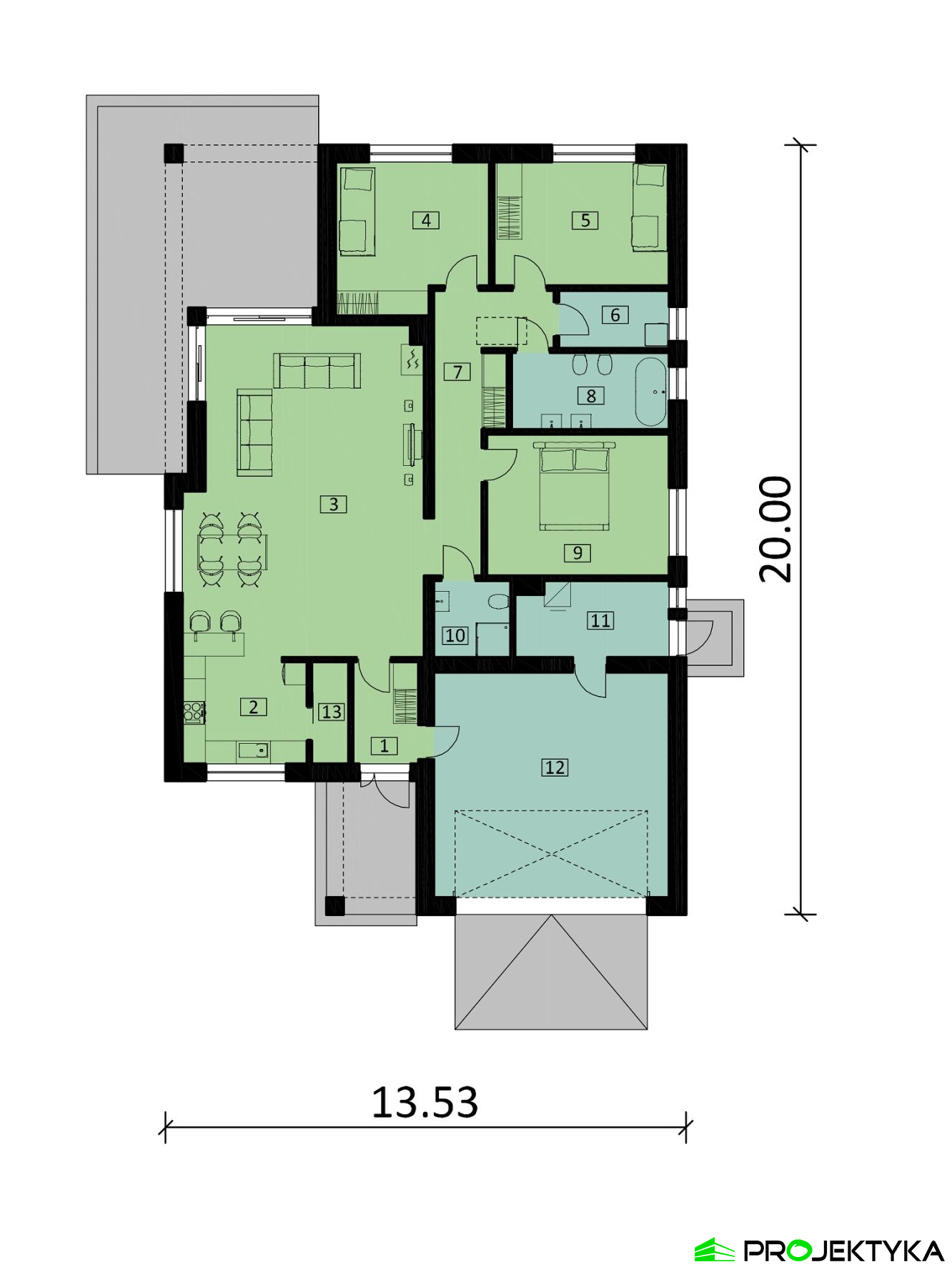
Rzut parteru

rzut-karta-domu
Lp.PomieszczeniePow. pomieszczenia
1wiatrołap4,50 m2
2kuchnia8,89 m2
3salon + jadalnia51,75 m2
4sypialnia14,78 m2
5sypialnia14,65 m2
6pralnia4,30 m2
7korytarz13,64 m2
8łazienka8,18 m2
9sypialnia17,44 m2
10WC4,00 m2
13spiżarnia2,55 m2
Pow.mieszkalna144,68 m2
11pom. gospodarcze7,73 m2
12garaż35,80 m2
Pow.użytkowa188,21  m2
Lp.PomieszczeniePow. pomieszczenia
1wiatrołap4,50 m2
2kuchnia8,89 m2
3salon + jadalnia51,75 m2
4sypialnia14,78 m2
5sypialnia14,65 m2
6pralnia4,30 m2
7korytarz13,64 m2
8łazienka8,18 m2
9sypialnia17,44 m2
10WC4,00 m2
13spiżarnia2,55 m2
Pow.mieszkalna144,68 m2
11pom. gospodarcze7,73 m2
12garaż35,80 m2
Pow.użytkowa188,21  m2

Wszystkie parametry

Powierzchnia mieszkalna 144.68 m2
Pow. zabudowy 228.87 m2
Liczba pokoi 4
Liczba łazienek 2
Liczba sypialni 3
Ogrzewanie gazowe
Poddasze strych
Wysokość parteru 2.88 m
Wysokość poddasza 2.35 m
Dach wielospadowy
Rodzaj zabudowy wolnostojący
Pokrycie dachu blachodachówka, dachówka
Kąt nachylenia dachu 25°
Powierzchnia dachu 360.94 m2
Powierzchnia całkowita 228.87 m2
Min. wymiary działki 21.53 m / 28 m
Wysokość budynku 6.99 m
Szerokość zabudowy 13.53 m
Długość zabudowy 20.00 m
Podpiwniczenie (z piwnicą) Nie
Kondygnacje parterowy
Technologia murowany
Garaż dwustanowiskowy
Instalacje elektryczne, gazowe, sanitarne, C.O
Rodzaj wentylacji grawitacyjna
Dodatkowe informacje kominek, pomieszczenie gospodarcze, spiżarnia, pralnia

Elewacje

Rzut sytuacyjny

Lokalizacja budynku
Fundamenty: ławy fundamentowe, stopy fundamentowe
Ściany zewnętrzne: gazobeton +20 cm styropianu
Strop: Teriva - tradycyjna więźba dachowa
Elewacje: tynk cienkowarstwowy/beton architektoniczny
Ka23 war.2 T

zapytaj o projekt

Masz pytania odnośnie projektu Ka23 war.2 T ?

Napisz do nas, chętnie pomożemy Ci wybrać idealny projekt domu

Napisz do nas

Warianty projektu

Dodatki

Dziennik budowy 1,-
Tablica budowy 1,-
Projekt wentylacji mechanicznej 1200,-
Projekt pompy ciepła 800,-
Kotłownia na paliwo stałe 550,-
Pakiet szamba szczelnego 300,-
Przydomowa oczyszczalnia ścieków 500,-
Kosztorys inwestorski 550,-
Dodatkowy papierowy egzemplarz projektu 600,-

Opis projektu

Gotowy projekt domu Ka23 war.2 T to nowoczesny dom parterowy z dwustanowiskowym garażem oraz pomieszczeniem gospodarczym. Projekt domu wykonany w technologii murowanej, gwarantuje trwałość konstrukcji na lata. Elewacja, została wykończona elegancką kamienną okładziną, która idealnie współgra z wielospadowym dachem.
Gotowy projekt domu parterowego przewiduje ok. 145 m2 powierzchni mieszkalnej, na której znajdziecie Państwo 2 łazienki oraz 4 pokoje, w tym 3 sypialnie. Do domu prowadzi zadaszone wejście, które poprzez wiatrołap wprowadzi nas do części dziennej. Gotowy projekt domu w strefie gościnnej składa się z przestronnej otwartej kuchni ze spiżarnią oraz jadalnią. Dodatkowo, optymalnie oświetlony salon posiada bezpośrednie wyjście na taras, który urozmaici ciepłe letnie dni.
Strefa nocna w gotowy projekt domu parterowego została praktycznie oddzielona od części dziennej, zapewniając maksimum prywatności. Znajdziemy w niej dużą sypialnię dla rodziców oraz dwie mniejsze dla dzieci lub gości. Dodatkowo umieszczenie w niej dużej łazienki dla mieszkańców oraz pralni, dodaje funkcjonalnego charakteru.

zapytaj o projekt

Masz pytania odnośnie projektu Ka23 war.2 T ?

Napisz do nas, chętnie pomożemy Ci wybrać idealny projekt domu

Napisz do nas
c4ca4238a0b923820dcc509a6f75849b